Partizan1981 Опубліковано: 8 жовтня 2009 Поділитись Опубліковано: 8 жовтня 2009 Добрый день. Потихоньку занимаюсь набросками дома для себя, хочу вначале все тщательно спланировать и в будущем перейти к постройке. Основные стены хочу выстроить из ракушняка, толщиной 400 мм, потом 50 мм воздушной прослойки, потом облицовочный кирпич 125 мм. Достаточно ли будет такой толщины стен в 575 мм для нашей климатической зоны? Хочу минимальной траты газа при отоплении. Похвалите-поругайте. Чертежик с набросками во вложении. ЗЫ: прошу Админов не ругать - в названии темы палец соскочил с буквы Д на букву Б, исправьте пожалуйста. С уважением.Мой Дом.pdf Посилання на коментар Поділитися на інших сайтах More sharing options...
LM Опубліковано: 8 жовтня 2009 Поділитись Опубліковано: 8 жовтня 2009 ...ЗЫ: прошу Админов не ругать - в названии темы палец соскочил с буквы Д на букву Б, исправьте пожалуйста. С уважением. :D Исправил. LM В течение 3-х часов это можете сделать самостоятельно: жмете кнопку "Правка" и ... Посилання на коментар Поділитися на інших сайтах More sharing options...
Валерий Валентинович Опубліковано: 8 жовтня 2009 Поділитись Опубліковано: 8 жовтня 2009 Дом бля семьи на 4 человека.......... :D Начало веселое! Если серьезно, то план немножко не понятен. Не все размеры и т.д. И почему решили строить из ракушняка? Вы живете на юге или в Крыму? Посилання на коментар Поділитися на інших сайтах More sharing options...
Partizan1981 Опубліковано: 8 жовтня 2009 Автор Поділитись Опубліковано: 8 жовтня 2009 :D Исправил. LM В течение 3-х часов это можете сделать самостоятельно: жмете кнопку "Правка" и ... :D Сорри, но кнопка "Правка" не позволяет изменять название Темы. Спасибо, что исправили. ;) Дом бля семьи на 4 человека.......... :D Начало веселое! Если серьезно, то план немножко не понятен. Не все размеры и т.д. И почему решили строить из ракушняка? Вы живете на юге или в Крыму? :D:D:D Живу в Киеве. Ракушняк выбрал прежде всего из-за экологии и стоимости. Переубедите если че. Для начала важен вопрос толщины наружных стен. Если 575 мм это мало/много - корректируйте, буду править чертеж. Остальные размеры пока не имеют значение. С ув. Посилання на коментар Поділитися на інших сайтах More sharing options...
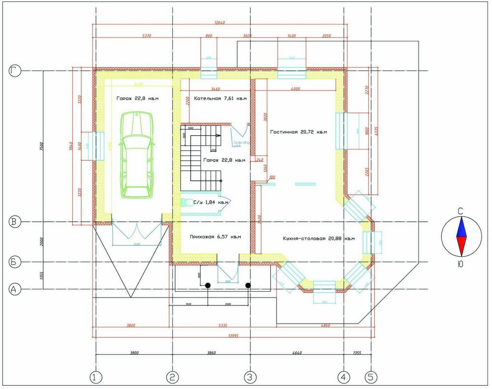
Partizan1981 Опубліковано: 8 жовтня 2009 Автор Поділитись Опубліковано: 8 жовтня 2009 Дорисовал. Смотрите, что скажете? ;) Кстати, это только первый этаж, мансардный еще буду рисовать.Мой Дом.pdf Посилання на коментар Поділитися на інших сайтах More sharing options...
olekss Опубліковано: 8 жовтня 2009 Поділитись Опубліковано: 8 жовтня 2009 1. Если гараж планируется холодным - его стенки можно "упростить до 1.5 кирпича. Соответственно, если теплый - внутреннюю стенку сделать без ракушняка. 2. Проверить что длин лестничного пролета достаточно для и поднятия на высоту 2го этажа. На глаз - если высота больше 3м - лестница будет некомфортной из-за большой высоты ступени. Посилання на коментар Поділитися на інших сайтах More sharing options...
Partizan1981 Опубліковано: 12 жовтня 2009 Автор Поділитись Опубліковано: 12 жовтня 2009 1. Если гараж планируется холодным - его стенки можно "упростить до 1.5 кирпича. Соответственно, если теплый - внутреннюю стенку сделать без ракушняка. 2. Проверить что длин лестничного пролета достаточно для и поднятия на высоту 2го этажа. На глаз - если высота больше 3м - лестница будет некомфортной из-за большой высоты ступени. 1) Гараж пусть будет теплым, но спецом отопление туда проводить не буду. 2) При высоте в 3 м такой лестницы достаточно. Дорисовал - зацените.Дом.pdf Посилання на коментар Поділитися на інших сайтах More sharing options...
Partizan1981 Опубліковано: 13 жовтня 2009 Автор Поділитись Опубліковано: 13 жовтня 2009 Что, никому не интересно обсудить????? 8-) Посилання на коментар Поділитися на інших сайтах More sharing options...
terola Опубліковано: 13 жовтня 2009 Поділитись Опубліковано: 13 жовтня 2009 Что, никому не интересно обсудить????? 8-) Лично мне не нравиться расположение санузла. Лестница, обычно, красивое сооружение, а вы его прячите. А кухня-столовая красивая. У меня муж тоже хочет эркер для обеденного стола. Посилання на коментар Поділитися на інших сайтах More sharing options...
Partizan1981 Опубліковано: 13 жовтня 2009 Автор Поділитись Опубліковано: 13 жовтня 2009 Лично мне не нравиться расположение санузла. Лестница, обычно, красивое сооружение, а вы его прячите. А кухня-столовая красивая. У меня муж тоже хочет эркер для обеденного стола. Вы правы. Я сам что то протупил. Немного видоизменил, перенес С/у под лестницу и там же сделал небольшую кладовую для веников швабр и пр. Смотрите. Посилання на коментар Поділитися на інших сайтах More sharing options...
terola Опубліковано: 13 жовтня 2009 Поділитись Опубліковано: 13 жовтня 2009 О красотень ... Вы какой общей площадью дом планируете? Мне ваш первый этаж очень нравиться. Для себя, я бы продлила гараж, нарисовала бы в нем симетричный эркер, и поселила бы туда маму. Очень интересно посмотреть 2й этаж Посилання на коментар Поділитися на інших сайтах More sharing options...
inspektor Опубліковано: 13 жовтня 2009 Поділитись Опубліковано: 13 жовтня 2009 О красотень ... Вы какой общей площадью дом планируете? Мне ваш первый этаж очень нравиться. Для себя, я бы продлила гараж, нарисовала бы в нем симетричный эркер, и поселила бы туда маму. Очень интересно посмотреть 2й этаж А машиной как потом заехать? Посилання на коментар Поділитися на інших сайтах More sharing options...
inspektor Опубліковано: 13 жовтня 2009 Поділитись Опубліковано: 13 жовтня 2009 А чем Вы рисуете? Как будет выглядеть фасад? Посилання на коментар Поділитися на інших сайтах More sharing options...
terola Опубліковано: 13 жовтня 2009 Поділитись Опубліковано: 13 жовтня 2009 А машиной как потом заехать? У меня гараж будет отдельно;) Мне главное мамочку пристроить, с машиной легче Посилання на коментар Поділитися на інших сайтах More sharing options...
Partizan1981 Опубліковано: 13 жовтня 2009 Автор Поділитись Опубліковано: 13 жовтня 2009 О красотень ... Вы какой общей площадью дом планируете? Мне ваш первый этаж очень нравиться. Для себя, я бы продлила гараж, нарисовала бы в нем симетричный эркер, и поселила бы туда маму. Очень интересно посмотреть 2й этаж 1) Селить маму не хочу :D 2) 2-й эт в процессе. Не хочу выкладывать наброски. А чем Вы рисуете? Как будет выглядеть фасад? AutoCad 2010. Фасад позже нарисую. Как и разрезы. У меня гараж будет отдельно;) Строить гараж отдельно - перерасход материала и полезной площади. ;) Посилання на коментар Поділитися на інших сайтах More sharing options...
terola Опубліковано: 13 жовтня 2009 Поділитись Опубліковано: 13 жовтня 2009 1) Селить маму не хочу :D 2) 2-й эт в процессе. Не хочу выкладывать наброски. AutoCad 2010. Фасад позже нарисую. Как и разрезы. Строить гараж отдельно - перерасход материала и полезной площади. ;) Это зависит от площади участка - на 6 сотках перерасход, а на 15 сотках можно себе позволить хоз. блок - гараж+мастерская+сарай, еще и на басейн место останеться Посилання на коментар Поділитися на інших сайтах More sharing options...
Partizan1981 Опубліковано: 13 жовтня 2009 Автор Поділитись Опубліковано: 13 жовтня 2009 Это зависит от площади участка - на 6 сотках перерасход, а на 15 сотках можно себе позволить хоз. блок - гараж+мастерская+сарай, еще и на басейн место останеться Согласен. Но! Этот домик я рисую под свои запросы. Максимум полезных площадей - минимум материала. Второй этаж хочу сделать мансардным. Скоро выложу наброски - оцените. Посилання на коментар Поділитися на інших сайтах More sharing options...
sergo77 Опубліковано: 13 жовтня 2009 Поділитись Опубліковано: 13 жовтня 2009 Вы правы. Я сам что то протупил. Немного видоизменил, перенес С/у под лестницу и там же сделал небольшую кладовую для веников швабр и пр. Смотрите. При входе я бы сделал тамбур, чтобы холодный воздух зимой моментом не заходил в дом, он-же прихожая-раздевалка. И еще думаю будет темновато у Вас в прихожей-холе и возле лестницы. 8-) Посилання на коментар Поділитися на інших сайтах More sharing options...
Dalman Опубліковано: 14 жовтня 2009 Поділитись Опубліковано: 14 жовтня 2009 План очень понравился, но вот окна в прихожей не хватает Посилання на коментар Поділитися на інших сайтах More sharing options...
Partizan1981 Опубліковано: 14 жовтня 2009 Автор Поділитись Опубліковано: 14 жовтня 2009 План очень понравился, но вот окна в прихожей не хватает Есть вариант сделать окно (можно или с главного фасада или со стороны гаража), но я там планировал здоровенный шкаф-купе поставить.8-). Можно окно сделать над гаражем (там где лестница). Посилання на коментар Поділитися на інших сайтах More sharing options...
Игорь- Sim Опубліковано: 18 жовтня 2009 Поділитись Опубліковано: 18 жовтня 2009 Дорисовал. Смотрите, что скажете? ;) Кстати, это только первый этаж, мансардный еще буду рисовать. может моё замечание..поздно...но сдесь плохо учитанно расположение комнат (нельзя жилые комнаты с северной стороны...) Посилання на коментар Поділитися на інших сайтах More sharing options...
Olek Опубліковано: 18 жовтня 2009 Поділитись Опубліковано: 18 жовтня 2009 (змінено) Не нравится отсутствие хотя бы маленькой спальни на первом этаже.Ощущение этого неудобства придет со временем.Ваш проект похож на Архетоновский (Ямайка Твист Е-791) Змінено 18 жовтня 2009 користувачем Olek дополнение Посилання на коментар Поділитися на інших сайтах More sharing options...
kamin_2006 Опубліковано: 19 жовтня 2009 Поділитись Опубліковано: 19 жовтня 2009 Дорисовал. Смотрите, что скажете? ;) Кстати, это только первый этаж, мансардный еще буду рисовать. А как насчет такого проекта, очень похож по планировке; proekty.muratordom.com.ua/projekt?grupa=1&IdProjektu=293&IdKolekcji=&id_grupy=0&typ_budynku=&nazwa=&symbol=%D1%86101&powierzchnia_od=%D0%BE%D1%82&powierzchnia_do=%D0%B4%D0%BE&powierzchnia_zab_od=%D0%BE%D1%82&powierzchnia_zab_do=%D0%B4%D0%BE&typ_budynku_dom=brak_dom&typ_budynku_garaz=brak_garaz&x=30&y=9&nr=1 Посилання на коментар Поділитися на інших сайтах More sharing options...
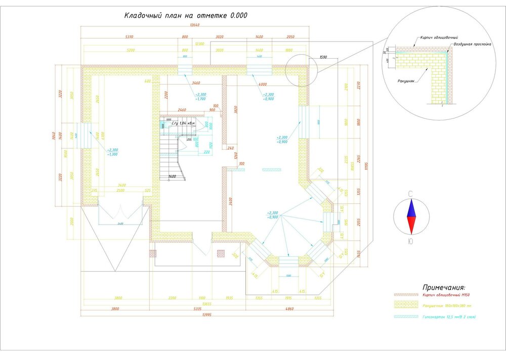
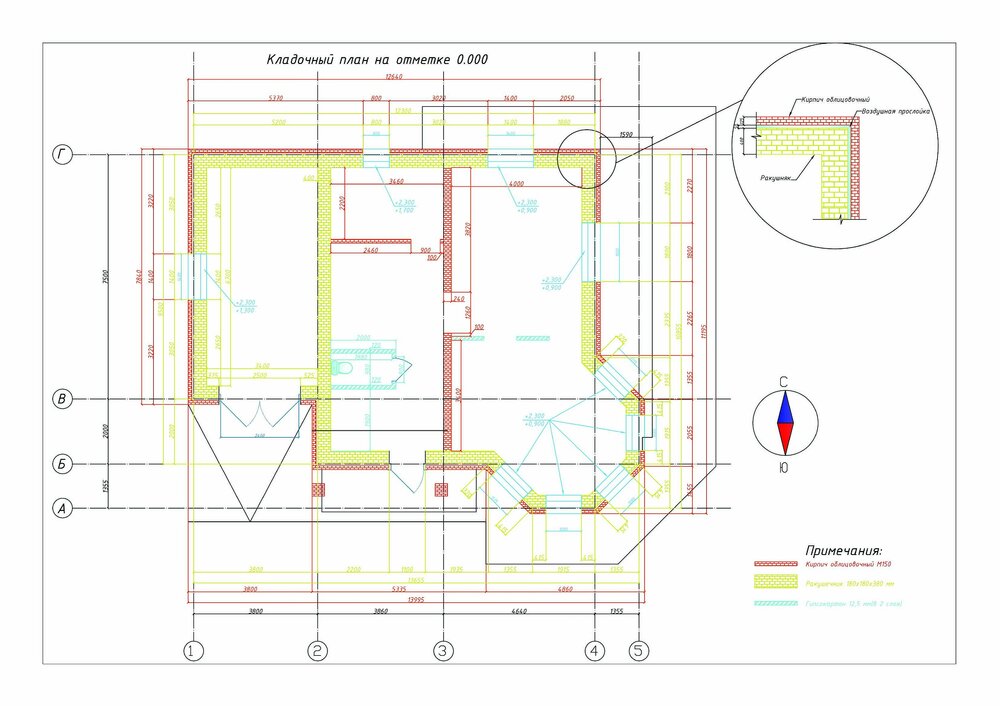
Partizan1981 Опубліковано: 19 жовтня 2009 Автор Поділитись Опубліковано: 19 жовтня 2009 может моё замечание..поздно...но сдесь плохо учитанно расположение комнат (нельзя жилые комнаты с северной стороны...) Почему же? Не нравится отсутствие хотя бы маленькой спальни на первом этаже.Ощущение этого неудобства придет со временем.Ваш проект похож на Архетоновский (Ямайка Твист Е-791) Когда то давно, я увидел вот этот домик: (ссылка устарела) Понравился как внешне, так и показался мне минимально материало-затратным и максимально комфортным для проживания семьи из 4-х человек. Это действительно Ямайка. Кое-что решил для себя изменить, что то убрать, что то добавить. А как насчет такого проекта, очень похож по планировке; (ссылка устарела) Уважаемая Кamin. Какое то сходство конечно есть, но в общем это 2 совершенно разных строения. С уважением. ЗЫ: На днях выложу 2-й этажик. ЗЫ 2: Так и никто не сказал по поводу толщины стен. Достаточно ли будет при постройке выполнить основные стены из ракушечника 180х180х400 мм, потом оставить воздушную прослойку в 50 мм и облицевать кирпичем? Теплая ли будет данная конструкция? Или вместо воздуха между ракушечником и кирпичем все-же следует монтировать пенопласт? Посилання на коментар Поділитися на інших сайтах More sharing options...
Влад273 Опубліковано: 19 жовтня 2009 Поділитись Опубліковано: 19 жовтня 2009 ЗЫ 2: 1. Так и никто не сказал по поводу толщины стен. Достаточно ли будет при постройке выполнить основные стены из ракушечника 180х180х400 мм, потом оставить воздушную прослойку в 50 мм и облицевать кирпичем? 2. Теплая ли будет данная конструкция? 3. Или вместо воздуха между ракушечником и кирпичем все-же следует монтировать пенопласт? 1. Если 400мм - это толщина стены, то достаточно. Если же толщина будет 180мм - можно попробовать увеличить прослойку до 100мм. Если сомневаетесь - обратитесь к инженерам - теплотехникам, они сделают расчет. 2. По идее теплая: в Одессе, Хесоне многие дома построены только из ракушняка. Конечно, там климат помягче, но у Вас это компенсируется добавлением прослойки+кирпич. У меня пеноблок 200мм + 70мм пеноизол + керамический облицовочный кирпич - полет нормальный: зимой тепло, летом прохладно. Хотя не забываем, что теплоизоляционные свойства пеноблока выше, чем у ракушняка. 3. пенопласт - ни в коем случае: он паронепроницаемый. Варианты прослойки : воздух, заливка пеноизола (как у меня) или засыпка перлита. 1 Посилання на коментар Поділитися на інших сайтах More sharing options...
Рекомендовані повідомлення
Створіть акаунт або увійдіть у нього для коментування
Ви маєте бути користувачем, щоб залишити коментар
Створити акаунт
Зареєструйтеся для отримання акаунта. Це просто!
Зареєструвати акаунтУвійти
Вже зареєстровані? Увійдіть тут.
Увійти зараз