Перейти до публікації
Пошук в
  • Додатково...
Шукати результати, які містять...
Шукати результати в...

Киев. Изготовление 2 крыш (битумка, подшивка, водосток)

finlex888

Рекомендовані повідомлення

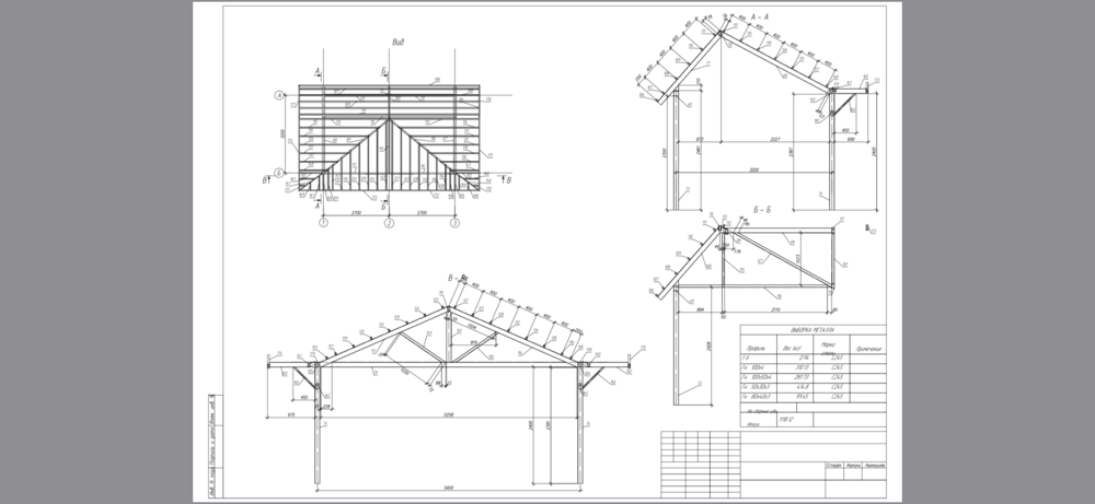
В Киеве нужно изготовить 2 крыши (открытой беседки и сарая) под ключ. На сарае односкатная (размер 4,30х4,30). На беседке чуть сложнее - проект крыши во вложении. Покрытие - битумка. Подшивка - софит пластиковый

617B0E40-DC4C-4B03-BD74-D4692EDCED79.thumb.png.e907c4488d69ee5a28868d19b6e2da91.png

29ADAC2D-E536-4F4E-A686-BA946EB25B7F.thumb.png.a766252e70534d963ac403d8a4426f66.png

CF9F3FB0-2D97-451F-BD65-4CAF00DF7AF5.thumb.png.a0455bbddd0a9697f54cc3bfa6ff886a.png

C2A70592-5BFA-4DE8-A2E3-92FB495BA247.thumb.png.1048f655070b6de4ae0e9cc2fc855cb8.png

Посилання на коментар
Поділитися на інших сайтах

Створіть акаунт або увійдіть у нього для коментування

Ви маєте бути користувачем, щоб залишити коментар

Створити акаунт

Зареєструйтеся для отримання акаунта. Це просто!

Зареєструвати акаунт

Увійти

Вже зареєстровані? Увійдіть тут.

Увійти зараз
×
×
  • Створити...