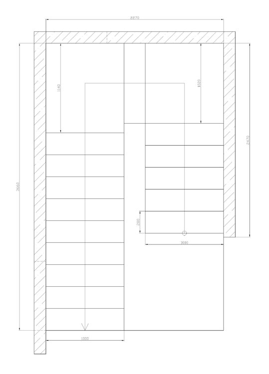
Игорь Викторович Опубліковано: 30 листопада 2018 Поділитись Опубліковано: 30 листопада 2018 помогите сделать проект лестницы,лестница металлическая открытая профильная труба 100 х 50(60) размеры и фото,лестница на второй этаж без запобижнх ступенек, хочу такую как на чертеже:связь по телефону 0672310291, на почту innaigor1@rambler.ru или в личку. Посилання на коментар Поділитися на інших сайтах More sharing options...
valerazaz Опубліковано: 1 грудня 2018 Поділитись Опубліковано: 1 грудня 2018 Стены гипсокартон Посилання на коментар Поділитися на інших сайтах More sharing options...
Деревянщик Опубліковано: 1 грудня 2018 Поділитись Опубліковано: 1 грудня 2018 Доброе утро, уважаемые форумчане. На самом деле товарищ, как бы по тактичней написать, пишет неправду. Ему сделали уже два проекта, один из них мой. Правда, платить за них ниже его достоинства. Во всяком случае мне он не заплатил ни копейки, мотивируя это тем, что у него есть похожий. Правду говоря, свою работу я не закончил, по причине "похожести". Полтора часа объяснения по телефону, о удобности, рациональности, конструктиве и прочих вещах не убедили товарища в рациональности такой лестницы, а значит не являются поводом оплачивать мой труд. За первый проект он, я так понял, тоже не заплатил, иначе как объяснить исчезновение первых проектировщиков -изготовителей лестниц. Их исчезновение, на мой взгляд, можно объяснить только отрицательным уровнем порядочности Игоря Викторовича. Так-что у кого есть много свободного времени, семьи и прочих мотиваторов, - смело можно бесплатно потерять свое время с Игорем Викторовичем. Галереею проектов Игоря Викторовича, включая мою незаконченную работу, прилагаю. 2 Посилання на коментар Поділитися на інших сайтах More sharing options...
valerazaz Опубліковано: 1 грудня 2018 Поділитись Опубліковано: 1 грудня 2018 Лично я проект не составляю ни когда все в голове Выезд, и консультация платная, и ни как иначе Составления проекта только после оплати. 1 Посилання на коментар Поділитися на інших сайтах More sharing options...
Деревянщик Опубліковано: 1 грудня 2018 Поділитись Опубліковано: 1 грудня 2018 И это правильно. К сожалению, я сейчас с переломом ноги дома лечусь. Поэтому работаю через интернет и часто приходится доверять людям. Да и мошейники на этом сайте, к счастью, не такое частое явление. Посилання на коментар Поділитися на інших сайтах More sharing options...
viksel Опубліковано: 1 грудня 2018 Поділитись Опубліковано: 1 грудня 2018 помогите сделать проект лестницы,лестница металлическая открытая профильная труба 100 х 50(60) размеры и фото,лестница на второй этаж без запобижнх ступенек, хочу такую как на чертеже:связь по телефону 0672310291, на почту innaigor1@rambler.ru или в личку. Проект с шаблонами 1;1 ступеней и косоуров-150 убитых енотов.Предоплата-:D 1 Посилання на коментар Поділитися на інших сайтах More sharing options...
Игорь Викторович Опубліковано: 1 грудня 2018 Автор Поділитись Опубліковано: 1 грудня 2018 Уважаемый Вадим если вы пищете на меня жалобу так пишите всю правду.В моём объявлении чётко указано что я хочу(,лестница на второй этаж без запобижнх ступенек, хочу такую как на чертеже)вы мне позвонили,я вам рассказал,есть план лестницы сделайте мне пожалуйста расчёты, ваши услуги стоят 1000грн я согласился их оплатить.Потом вы мне перезвонили и сказали что вы сделали мне эскиз или наброски,но немного другое, без расчётов,ну бросайте посмотрим,получаю: звоню человеку,говорю зачем вы мне прислали лестницу с четырьмя запобижными ступенями,гениальный ответ:вам нужна такая,зачем я что вас просил сделать проект с такими ступеньками, нет,мне нужны две ровные площадки как у меня на чертеже.Говорю человеку, что у меня есть план лестницы с такими ступеньками,вы мне об этом не говорили,так я просил вас просчитать мой чертёж,говорю человеку, что бы вы не подумали, что я могу воспользоваться вашими чертежами я вышлю вам свои,вот мои: а я вам вышлю свои,не надо мне высылать нечего, мне не нужен второй такой проект,зачем мне два одинаковых,нет вы всё равно мне присылаете,и говорите что это проект моей лестницы: ,звоню и ещё раз объясняю человеку, что мне надо,получаю ответ, что с моим проектом надо поиграться подумать,ну так подумайте поиграйтесь, я же не бесплатно вас прошу, сумму вы озвучили,я согласился и не торговался,а что с этим делать,откуда я знаю что вы с ним будете делать? ответ:я вам сейчас пришлю номер карточки вы мне перешлёте 500грн,я ведь работал, да но вы работали не с моими чертежами. Ответ:я попробую их просчитать, может что то получится,и вы мне заплатите 1000грн,дальше идёт навязывание мне своего проекта ,ещё раз объясняю человеку, что я хочу от него, спрашиваю,а что с моим не так,ваш проект хороший грамотный ,но мало данных не все расчёты,могу просчитать,,Что будет в расчётах?ответ:, сколько тон метала вам нужно, что бы сварщик вас не обманул,хорошо говорю,я устал с вами спорить,предлагаю альтернативу,просчитайте мне недостающие расчёты, как специалист,а я вам заплачу 500грн,у меня ведь есть уже проект и с ваших слов хороший,вам же рисовать нечего не надо всё уже сделано.Ответ:нет вы мне заплатите 500грн за мой проект и плюс 1000грн за то что я вам его просчитаю.Хорошо берём тайм аут до сегодняшнего вечера,я покажу свой проект сварщику,он скажет каких расчётов ему не хватает в МОЁМ проекте и созвонимся.Вместо этого вы выставили меня на форуме как злостного неплательщика,который кидает Форумчан на лева и на права.Я заказчик и я плачу деньги за свои требования,а за ваши бурные фантазии с полу проектами у меня нет ни малейшего желания платить. Уважаемый Вадим это мой дом это моя лестница и мне решать что мне подходит а что нет,вы хоть и опытный форумчанин, но это не даёт вам право обливать меня грязью и считать меня непорядочным,а так же делать какие то умозаключения в мой адрес,мне очень хочется ответить вам,вашими же словами , что вы написали в мой адрес,я не хочу и не буду опускаться до то кого, это очень низко. А теперь пусть форум нас рассудит. Посилання на коментар Поділитися на інших сайтах More sharing options...
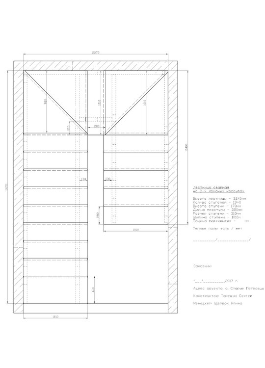
Деревянщик Опубліковано: 1 грудня 2018 Поділитись Опубліковано: 1 грудня 2018 (змінено) Игорь Викторович, любой вменяемый человек, понимает, что создать визуализацию без предварительного просчета высоты и ширины каждой ступени с учетом Вашего интерьера невозможно. И то что вы получили от меня уже визуализацию, говорит о серьезности моего подхода. Тем более, что мой вариант совпадает с вариантом предыдущих, убежавших от вас ранее исполнителей. Вы мне предложили доделать проект и получить от вас АЖ 500 ГРН. Заметьте не 1500, как вы тут пишете, и не 1000, как мы договаривались, а целых 500 грн. И это в том случае, если ваш сварщик подтвердит необходимость в такой работе. То-есть наша договоренность почему-то должна зависеть от третьего лица. А если сварщик не подтвердит необходимость чертежей, то я ничего за свою работу не получу. Но я договаривался с Вами, и работал по Вашему заказу, учитывая Вашу ситуацию. При чем тут вообще-то сварщик? По вашим словам, по решению какого-то сварщика (может и хорошего) я мог бы получить за два дня работы аж на 500 грн. Спасибо за такую щедрость, дякую. На мой взгляд, вы придумали такую "отмазку" со сварщиком для "кидалова". (Решил применить Вашу терминологию) Я же мол тут не при чем, это сварщик сказал, что Вам деньги незачем платить. А я хотел, но сварщик-злодей...)) То, что вы "кидаете налево и направо", как вы выразились, не мое утверждение, а по всей видимости ваше личное чистосердечное признание в момент эмоционального всплеска. Кроме меня, других вами "кинутых" я не знаю. Но может еще подтянутся )) P.S. Кстати, для гостей "из-за перебрика", поясняю, что ступени "забижные", а не "запобижни",от тяжелого для вас в изучении украинского языка глагола "забігати", по россейски -"забежать". Слава Украине. Змінено 1 грудня 2018 користувачем Деревянщик Посилання на коментар Поділитися на інших сайтах More sharing options...
valerazaz Опубліковано: 2 грудня 2018 Поділитись Опубліковано: 2 грудня 2018 Вариант с 4 забежными лутше так как высота подъёма меньше, и они большые дискомфорта в ходьбе не будет, это хорошо для людей пожилого возраста Но сложней в исполнении Можно сделать как требует закажчик, тем самим упростить роботу сварщику но усложнит жызнь закажчика. Есть тенденция много закажчиков сами усложняют себе жызнь питаясь економить а в итоге выходит дороже. Касаемо лестницы открытого типа он не безопасен если в доме будут дети, так что лутше подумать, и сделать раз, и правильно. 1 Посилання на коментар Поділитися на інших сайтах More sharing options...
Игорь Викторович Опубліковано: 2 грудня 2018 Автор Поділитись Опубліковано: 2 грудня 2018 Я в УКРАИНЕ живу 38лет.Здесь мой дом, семья, дети, внуки и друзья! Мой сын воевал за УКРАИНУ и был в АТО в первой волне больше года! Я больше года помогал бригаде из 120 человек, и душой и сердцем я Украинец. Моя грамматическая ошибка,не даёт вам право называть меня ( гостем "из-за перебрика").Вы хотели меня унизить и оскорбить,у вас это получилось. Дальнейшую переписку считаю бессмысленной,так как она переходит в политическую,модератора прошу удалить эту тему.Всем большое спасибо за комментарии и советы. ГЕРОЯМ СЛАВА!!! Посилання на коментар Поділитися на інших сайтах More sharing options...
Деревянщик Опубліковано: 2 грудня 2018 Поділитись Опубліковано: 2 грудня 2018 Доброе утро. Тему, на мой взгляд, удалять не следует. Форум для того и создан, чтобы страна знала своих героев. По сухому остатку, вы получили нужную информацию, консультацию, а я день проработал бесплатно. Прикрывать свои личные"художества" то решением сварщика, то геройством сына, то "политическими" составляющими, на мой взгляд не по мужски. Форум для того и существует, чтобы его участники могли избегать ошибок в строительстве. "Кидание" на деньги исполнителей, тоже ошибка, но уже от заказчиков. Предостеречь их от таких действий и показать последствия - вот цель моих сообщений. Теперь при работе с Вами подрядчики будут знать, что с Вас нужно брать 100% предоплаты и еще 20% на "нервы". Хорошего дня. Посилання на коментар Поділитися на інших сайтах More sharing options...
pump Опубліковано: 2 грудня 2018 Поділитись Опубліковано: 2 грудня 2018 На самом деле товарищ, как бы по тактичней написать, пишет неправду. Ему сделали уже два проекта, один из них мой. Правда, платить за них ниже его достоинства. Полтора часа объяснения по телефону, о удобности, рациональности, конструктиве и прочих вещах не убедили товарища в рациональности такой лестницыДеревянщик, вы непорядочный человек, если пытаетесь очернить "заказчика" за отказ платить за то что ему нафиг не вср@лось. Топикстартер в первом сообщении указал свои требования: лестница на второй этаж без запобижнх ступенек хочу такую Что тут неясного? А вы суетесь со своим мнением, которое никого не волнует. 1 Посилання на коментар Поділитися на інших сайтах More sharing options...
Деревянщик Опубліковано: 2 грудня 2018 Поділитись Опубліковано: 2 грудня 2018 А вы наверное тот самый"сварщик":lol::lol: А если серьезно то, по вашему мнению, хотя меня оно тоже не интересует, требовать свои ЗАРАБОТАННЫЕ деньги нынче не порядочно? И заказчик, по вашему мнению, имеет право под любым надуманным поводом не расчитыватся с подрядчиком. Я правильно понял? Надо вас запомнить:D Если бы товарищ со мной сразу соизволил рассчитаться, то и мое мнение никто не узнал Посилання на коментар Поділитися на інших сайтах More sharing options...
valerazaz Опубліковано: 2 грудня 2018 Поділитись Опубліковано: 2 грудня 2018 Каждое мнения имеет право на жызнь, но есть ище здравый смисл от для этого этот форум чтобы многие избегали ошыбок, и перерасхода по деньгам, и головняка. Делать как хочется с не понятным результатом это привилегия богатих, простите 7 раз отмеряют, и 1 раз сделают. От закажчик хочет с площадкой мне интересно это требования закажчика или сварщика, по нормальному он сам должен составить проект, и учесть все нюансы для Обшыаки деревом которых не будет описано ни в одном проекте тут нужен опит, и практика это если сделать раз, и на всегда. Если результат не важен можно делать как вздумается. 1 Посилання на коментар Поділитися на інших сайтах More sharing options...
pump Опубліковано: 2 грудня 2018 Поділитись Опубліковано: 2 грудня 2018 А вы наверное тот самый"сварщик":lol::lol: А если серьезно то, по вашему мнению, хотя меня оно тоже не интересует, требовать свои ЗАРАБОТАННЫЕ деньги нынче не порядочно? И заказчик, по вашему мнению, имеет право под любым надуманным поводом не расчитыватся с подрядчиком. Я правильно понял? Надо вас запомнить:D Если бы товарищ со мной сразу соизволил рассчитаться, то и мое мнение никто не узналЯ в сварке полный "0", как и вы в проектировании. :lol: Да и память у вас сильно хромает. А если серьезно, то я свое мнение высказал: заказчик хочет лестницу с площадкой, так чего ж вы лезете с запобижными. Еще и за деньги. Так чего вы "включаете дурака" и хотите денех ЗА НЕВЫПОЛНЕННУЮ РАБОТУ, т.к. то. что вы нарисовали - это не то, что описанов 1-м сообщении. Все - вопрос закрыт. 1 Посилання на коментар Поділитися на інших сайтах More sharing options...
Деревянщик Опубліковано: 3 грудня 2018 Поділитись Опубліковано: 3 грудня 2018 Товарищ, не хочется, вам грубо отвечать, но вроде не вы мне задачу ставили, не с вами я общался, так что не вам и тему закрывать. Хотя возможно, вы второе обличье Игоря Викторовича, отсюда опять слово "запобижными" и желание тему закрыть. И на что только не идут подобные заказчики, чтобы людям только деньги не платить ))) 1 Посилання на коментар Поділитися на інших сайтах More sharing options...
xserk Опубліковано: 4 грудня 2018 Поділитись Опубліковано: 4 грудня 2018 Самое смешное в том, что реально если в эти размеры всунуть просто площадку или даже 2 , лестница получится НАМНОГО хуже чем предложили уже 2 проектанта... и наверняка это было подробно и обоснованно разяснено.. уверен на 99% что дело в косоруком но дешовом сварщике)) 1% на упертость и завышенное чсв заказчика... "Я все знаю лучше вас"(с) И вот даже не понятно что хуже.... 2 Посилання на коментар Поділитися на інших сайтах More sharing options...
pump Опубліковано: 4 грудня 2018 Поділитись Опубліковано: 4 грудня 2018 Товарищ, не хочется, вам грубо отвечать, но вроде не вы мне задачу ставили, не с вами я общался, так что не вам и тему закрывать. Хотя возможно, вы второе обличье Игоря Викторовича, отсюда опять слово "запобижными" и желание тему закрыть. И на что только не идут подобные заказчики, чтобы людям только деньги не платить )))Какой, к черту, вы мне товарищь? - не приведи госпади. Вам повезло, что не я ставил вам задачу, иначе бы результат был другой. , только я не закрывал тему, а написал, что для меня вопрос закрыт. А слово "Запобижные" скопировано из текста сообщений, так что, не учите меня грамоте, а остальных жить. И на что только не идут подобные "проектЫровщики", лишь бы на халяву денег срубить. Посилання на коментар Поділитися на інших сайтах More sharing options...
Деревянщик Опубліковано: 4 грудня 2018 Поділитись Опубліковано: 4 грудня 2018 Самое смешное в том, что реально если в эти размеры всунуть просто площадку или даже 2 , лестница получится НАМНОГО хуже чем предложили уже 2 проектанта... и наверняка это было подробно и обоснованно разяснено.. уверен на 99% что дело в косоруком но дешовом сварщике)) 1% на упертость и завышенное чсв заказчика... "Я все знаю лучше вас"(с) И вот даже не понятно что хуже.... К сожалению, смешного ничего не вижу. Особенно когда тебя кидают на деньги. Был весной месяц в Польше. Довелось ехать в Кракове в трамвае. Половина трамвая -украинцы. Сказал, что не знаю, как заплатить за проезд, так человек 10 сразу пришли на помощь, и объяснили , и к аппарату подвели. Один заплатить даже захотел, спросил, есть ли у меня злотые. Уезжают лучшие, к сожалению, потому тут все больше и больше неадекватов. Зато тупым жлобам, особенно при власти - раздолье Посилання на коментар Поділитися на інших сайтах More sharing options...
viksel Опубліковано: 4 грудня 2018 Поділитись Опубліковано: 4 грудня 2018 Деревянщик Вы меня извините,и мне Вас жалко как колегу,но Вы сами виноваты.Во первых никому никогда не навязывайтесь,да же если кризис.Человек написал в разделе лестницы о потребности проекта,а вы как стахановец стучитесь сами к нему в личку и за 1000 грн рисуете в архикаде проекты.....Во первых такая работа стоит больше..во вторых рисовать в архикаде лестницы в разы тяжелее чем в програмах что специально сделаны для лестниц.Дело конечно Ваше за сколько продавать свой труд,только потом не огорчайтесь.Ушлые застройщики любят создавать тендеры,находят самого дешевого и сразу показывают ему "место" ...Думайте. 2 Посилання на коментар Поділитися на інших сайтах More sharing options...
Деревянщик Опубліковано: 5 грудня 2018 Поділитись Опубліковано: 5 грудня 2018 Деревянщик Вы меня извините,и мне Вас жалко как колегу,но Вы сами виноваты.Во первых никому никогда не навязывайтесь,да же если кризис.Человек написал в разделе лестницы о потребности проекта,а вы как стахановец стучитесь сами к нему в личку и за 1000 грн рисуете в архикаде проекты.....Во первых такая работа стоит больше..во вторых рисовать в архикаде лестницы в разы тяжелее чем в програмах что специально сделаны для лестниц.Дело конечно Ваше за сколько продавать свой труд,только потом не огорчайтесь.Ушлые застройщики любят создавать тендеры,находят самого дешевого и сразу показывают ему "место" ...Думайте. Спасибо за понимание. К сожалению в настоящее время я лечу сломанную ногу, из-за чего мои возможности по работе очень сузились. Во-вторых, дома жена с маленьким ребенком в декрете. Поэтому приходится оперировать своими возможностями и надеяться на порядочных заказчиков. К сожалению, на этом ресурсе, да как и везде, не все такие. А так Вы правы. Надеюсь, мой пример выявил тут уже таких двоих. Так что мой труд не напрасен, кто-то благодаря мне сбережет свое время и деньги и сделает выводы. Посилання на коментар Поділитися на інших сайтах More sharing options...
Деревянщик Опубліковано: 5 грудня 2018 Поділитись Опубліковано: 5 грудня 2018 рисуете в архикаде проекты.....Во первых такая работа стоит больше..во вторых рисовать в архикаде лестницы в разы тяжелее чем в програмах что специально сделаны для лестниц. Вы будете в шоке, но я еще и в автокаде людей рисую 3 Посилання на коментар Поділитися на інших сайтах More sharing options...
Welddn Опубліковано: 6 грудня 2018 Поділитись Опубліковано: 6 грудня 2018 НИКОГДА БЕЗ ПРЕДОПЛАТЫ НЕ ОТДАВАЙТЕ ПРОЕКТ. Почему? Получив проект на руки человек пойдет искать "сварщика" подешевле, в интернете полно обЪявлений "сварщик, сварочные работы по вашему проекту" - незаменимых нет, но иногда люди не видят разницы между "сварщик, сварочные работы по вашему проекту" и "сварщик, сварочные работы, проектирование, изготовление, монтаж". Зачастую по обЪявлению "сварщик, сварочные работы по вашему проекту" дилетант, но Заказчик узнает об этом только после оплаты задатка исполнителю, покупки материалов, начала работ - результат предсказуем. Совет Заказчикам: Обязательно перед подписанием договора поинтересуйтесь количеством изготовленых лестниц, проверьте фото с сайта исполнителя на авторство, воочию взгляните на выполненные работы, пройдитесь по лестнице, поговорите с обладателями лестниц производителя! В построении лестницы есть масса ньюансов про которые начинающие не подозревают, даже имея на руках проект. Лучшая реклама - "сарафанное радио". Совет начинающим: Используйте фото чужих работ только с целью самосовершенствования и никогда в рекламе, читайте больше тематической технической литературы. Подписывайтесь, чтобы быть в курсе новостей You are welcome! Всем добра! #WeldDN Любите искусство в себе, а не себя в искусстве. 4 Посилання на коментар Поділитися на інших сайтах More sharing options...
Рекомендовані повідомлення
Створіть акаунт або увійдіть у нього для коментування
Ви маєте бути користувачем, щоб залишити коментар
Створити акаунт
Зареєструйтеся для отримання акаунта. Це просто!
Зареєструвати акаунтУвійти
Вже зареєстровані? Увійдіть тут.
Увійти зараз