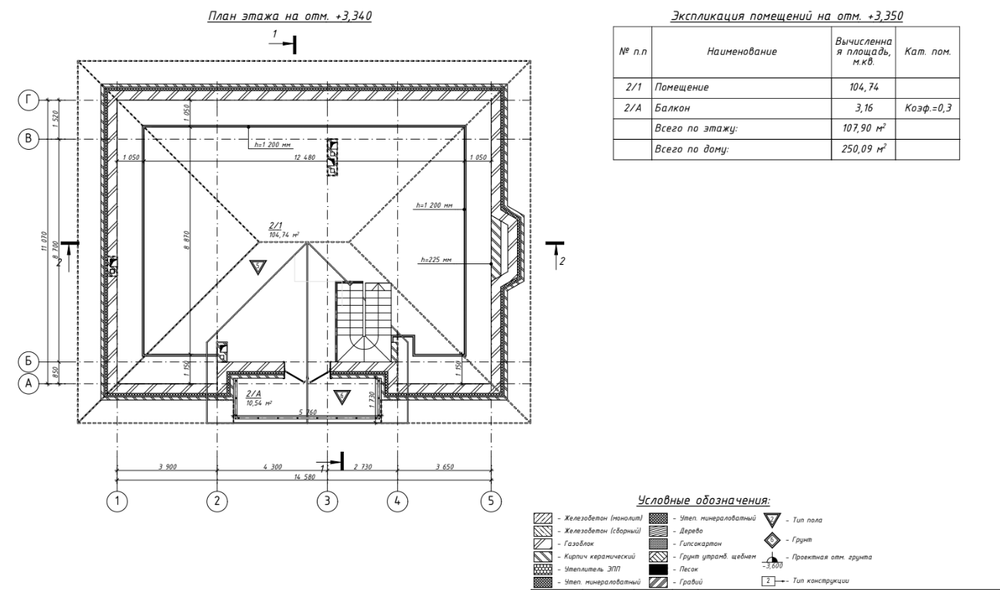
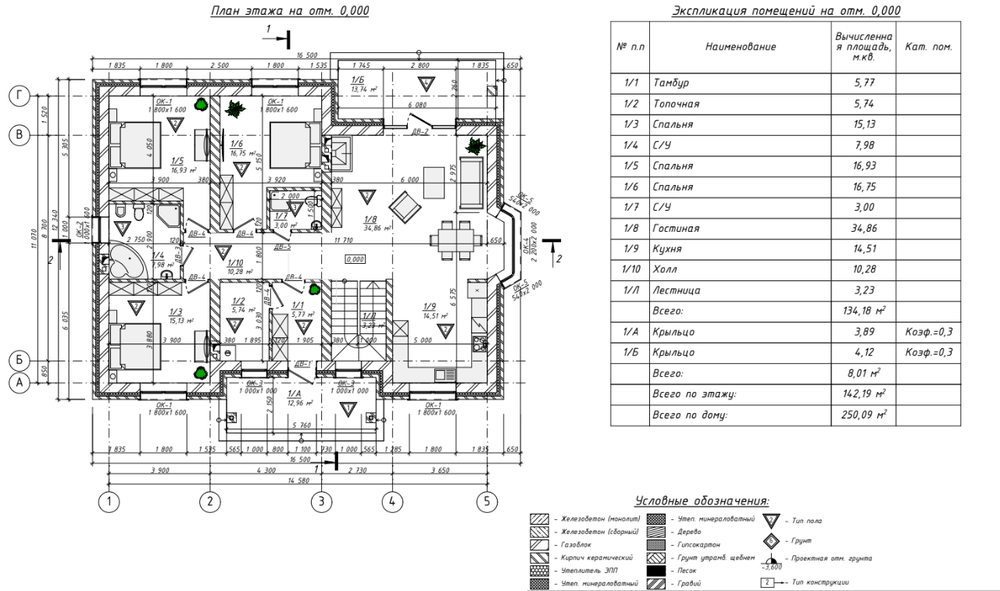
borisd Опубліковано: 5 грудня 2018 Поділитись Опубліковано: 5 грудня 2018 Всем привет. Решил создать тему, чтобы закрепить для себя хронологию событий и осветить строительство своего одноэтажника с мансардой по мотивам z10 для тех кому нравится этот проект. Краткое описание хронологии, которое буду детально описывать в последующих постах: 2014 - 2016 зарождение идеи строительства и поиск участка. Сентябрь 2016 - покупка участка с ветхим домом. Зима 2016-2017 - слом ветхого дома и поиск проекта который нравится. Зима-весна 2017 - Попытка купить z10 от z500 и осознание, что проще заказать проект по мотивам с нуля. Заказ проекта. Лето 2017 - фундаментные работы по дому Осень 2017 - фундаментные работы по гаражу Май-Август 2018 - возведение коробки дома Сентябрь-Октябрь 2018 - Кровельные работы по дому и возведение коробки гаража. Ноябрь 2018 - Монтаж септика. Начало кровельных работ по гаражу, которое не окончено из-за того что подвел поставщик битумной черепицы. Видео снятое после монтажа кровли: 6 Посилання на коментар Поділитися на інших сайтах More sharing options...
Gitan Опубліковано: 5 грудня 2018 Поділитись Опубліковано: 5 грудня 2018 Харькову привет! Какой район? Посилання на коментар Поділитися на інших сайтах More sharing options...
borisd Опубліковано: 5 грудня 2018 Автор Поділитись Опубліковано: 5 грудня 2018 Харькову привет! Какой район? Привет! Строюсь на Большой Даниловке. А Вы? Посилання на коментар Поділитися на інших сайтах More sharing options...
Gitan Опубліковано: 5 грудня 2018 Поділитись Опубліковано: 5 грудня 2018 Привет! Строюсь на Большой Даниловке. А Вы? Там же..... Посилання на коментар Поділитися на інших сайтах More sharing options...
ROS_SUMY Опубліковано: 5 грудня 2018 Поділитись Опубліковано: 5 грудня 2018 Подпишусь и понаблюдаю) Посилання на коментар Поділитися на інших сайтах More sharing options...
Агитатор Опубліковано: 6 грудня 2018 Поділитись Опубліковано: 6 грудня 2018 Тоже Б Даниловка. За Дубровским А у Вас какой район? Удачи! Посилання на коментар Поділитися на інших сайтах More sharing options...
dushes86 Опубліковано: 6 грудня 2018 Поділитись Опубліковано: 6 грудня 2018 Наткнулся в другой ветке на ваш ответ по ценнику проделанных работ. Сурово, хоть и не скажу, что прям сильно удивлен. Успехов в стройке! Посилання на коментар Поділитися на інших сайтах More sharing options...
borisd Опубліковано: 29 червня 2020 Автор Поділитись Опубліковано: 29 червня 2020 Прошло уже полтора года с момента создания темы и есть смысл перечислить сделанное за это время: - ноябрь-декабрь 2018 - заливка фундамента фасадного забора. - март 2019 - возведение столбов фасадного забора. - апрель 2019 - покрытие оставшейся части кровли гаража битумной черепицей. - май-июнь 2019 - установка откатных ворот и калитки, сварные рамки на пролеты фасадного забора. Установка входных и внутрених дверей в гараж, а также дверей и металлического каркаса лестницы в подвал под гаражем. - июнь-август 2019 - заказ и монтаж окон в доме и гараже. - июль 2019 - нашел дизайнера интерьеров и заказал проект. - август-сентябрь 2019 - штукатурка гаража и подвала под гаражем. - октябрь 2019 - установка подъемных ворот в гараж. - ноябрь 2019 - положена брусчатка на заезд в гараж. - апрель 2019 - заказал пол куба досок и сделал прототип лестницы на второй этаж. - май 2020 - на мансардном этаже возведены оставшиеся внутрение перегородки из силикатного кирпича. Начаты работы по электрике, слаботочке и прокладке сигнализации. Провел итернет и появилась возможность наконец установить пару камер видеонаблюдения. - июнь 2020 - зашит досками фасадный забор. Заказан проект по отоплению, получена спецификация оборудования. Для камина установлен дымоход schiedel. И хочу поделиться свежим обзорным видео с квадрокоптера: 3 Посилання на коментар Поділитися на інших сайтах More sharing options...
borisd Опубліковано: 30 червня 2020 Автор Поділитись Опубліковано: 30 червня 2020 Вот еще видео монтажа дымохода Schiedel UNI Дымоходы и вент каналы были подняты в 2018 при строительстве коробки и кровли. Для дымохода внутри помещения в несущей стене была оставлена штроба в полтора кирпича или 380х380мм. Перед кровлей эта штроба закрывается: И после кровли идет закрытый кирпичный канал. Когда в этом году дошли руки занятся камином, то оказалось, что практически все предлагали использовать дымоход из нержавейки или комбинированое решение из shiedel внутри помещения и потом преход на нержавейку. Но было найдено альтернативное решение и сегмент дымохода длиной 3.5м был собран на земле, затем обварен уголком 45х4 и полосой 40х4. И вся эта конструкция была успешно установлена в существующий кирпичный канал. 3 Посилання на коментар Поділитися на інших сайтах More sharing options...
Марч80 Опубліковано: 1 липня 2020 Поділитись Опубліковано: 1 липня 2020 Удачи вам в строительстве! Если можно, выложите больше фото готового фасада Посилання на коментар Поділитися на інших сайтах More sharing options...
dvirodov Опубліковано: 2 липня 2020 Поділитись Опубліковано: 2 липня 2020 Но было найдено альтернативное решение и сегмент дымохода длиной 3.5м был собран на земле, затем обварен уголком 45х4 и полосой 40х4. А разве у Шиделя нельзя через блоки пропускать арматуру для стяжки? Посилання на коментар Поділитися на інших сайтах More sharing options...
borisd Опубліковано: 2 липня 2020 Автор Поділитись Опубліковано: 2 липня 2020 А разве у Шиделя нельзя через блоки пропускать арматуру для стяжки? Можно. Но те кто монтировал решили, что уголком надежнее, учитывая возможные рывки при работе стрелы крана. 1 Посилання на коментар Поділитися на інших сайтах More sharing options...
Технолог Опубліковано: 2 липня 2020 Поділитись Опубліковано: 2 липня 2020 Ну вот зачем вы утеплили кровлю до проведения мокрых работ? Посилання на коментар Поділитися на інших сайтах More sharing options...
borisd Опубліковано: 2 липня 2020 Автор Поділитись Опубліковано: 2 липня 2020 Ну вот зачем вы утеплили кровлю до проведения мокрых работ? Замечание принимается. Но так было дешевле, т.к. уложить утеплитель во время монтажа стропил сверху, проще, чем снизу. И есть мысль, что паробарьер все же не даст намокнуть утеплителю сверх меры, а вент-зазор перед битумкой обеспечит высыхание. Посилання на коментар Поділитися на інших сайтах More sharing options...
borisd Опубліковано: 29 липня 2020 Автор Поділитись Опубліковано: 29 липня 2020 Стою перед дилемой выбора, что использовать как подложку под водяной теплый пол. Ребята, которые делали тепловой расчет предлагают использовать "Рулонный джет Purmo 25 mm (изоляция для пола) плотность 35 кг/м куб" за 5 евро/м2 или "Рулонный Rolltherm 25 mm (изоляция для пола) плотность 25 кг/м куб" за 3 евро/м2. Вот и хотел спросить есть ли особые отличия по сравнению с обычным пенопластом или синим пенополистиролом + пленкой? Посилання на коментар Поділитися на інших сайтах More sharing options...
ARCH INNOVATION Опубліковано: 29 липня 2020 Поділитись Опубліковано: 29 липня 2020 Стою перед дилемой выбора, что использовать как подложку под водяной теплый пол. Ребята, которые делали тепловой расчет предлагают использовать "Рулонный джет Purmo 25 mm (изоляция для пола) плотность 35 кг/м куб" за 5 евро/м2 или "Рулонный Rolltherm 25 mm (изоляция для пола) плотность 25 кг/м куб" за 3 евро/м2. Вот и хотел спросить есть ли особые отличия по сравнению с обычным пенопластом или синим пенополистиролом + пленкой? Я бы делал из обычного ППС, для самоуспокоения можно еще фольгу маркерную постелить. Посилання на коментар Поділитися на інших сайтах More sharing options...
mib Опубліковано: 29 липня 2020 Поділитись Опубліковано: 29 липня 2020 Стою перед дилемой выбора, что использовать как подложку под водяной теплый пол. Ребята, которые делали тепловой расчет предлагают использовать "Рулонный джет Purmo 25 mm (изоляция для пола) плотность 35 кг/м куб" за 5 евро/м2 или "Рулонный Rolltherm 25 mm (изоляция для пола) плотность 25 кг/м куб" за 3 евро/м2. Вот и хотел спросить есть ли особые отличия по сравнению с обычным пенопластом или синим пенополистиролом + пленкой? Что то меня толщина смущает в 2,5 сантиметра, они от чего отталкивались когда расчеты делали? Возможно от источника отопления что он сможет покрыть эти потери? А не от экономии на том самом утеплении? Когда делал себе расчеты то оптимально получилось 10см экструдера и то получается что то около 8 ватт потерь с квадрата 15 окупались лет за 30 но они у меня и не влазили Я это к тому что вы уточните что было точкой отсчета, экономия и окупаемость или тепловая мощность Посилання на коментар Поділитися на інших сайтах More sharing options...
borisd Опубліковано: 29 липня 2020 Автор Поділитись Опубліковано: 29 липня 2020 Что то меня толщина смущает в 2,5 сантиметра, они от чего отталкивались когда расчеты делали? Возможно от источника отопления что он сможет покрыть эти потери? А не от экономии на том самом утеплении? У меня залита монолитная плита 25-30см, которая уже утеплена 5см ППС. И эти 25мм доп. утепления больше нужны, чтобы уменьшить инерцию теплого пола. 1 Посилання на коментар Поділитися на інших сайтах More sharing options...
Gitan Опубліковано: 30 липня 2020 Поділитись Опубліковано: 30 липня 2020 У меня залита монолитная плита 25-30см, которая уже утеплена 5см ППС. И эти 25мм доп. утепления больше нужны, чтобы уменьшить инерцию теплого пола. 5 см мало. Делайте 10 см ЭППС или ППС 1 Посилання на коментар Поділитися на інших сайтах More sharing options...
borisd Опубліковано: 30 липня 2020 Автор Поділитись Опубліковано: 30 липня 2020 5 см мало. Делайте 10 см ЭППС или ППС К сожалению уже установлена раздвижная система на выходе на терассу и она ограничивает толщину утеления+стяжки по высоте. Как вариант можно отбойником выдолбить саму плиту чернового пола, чтобы туда влезло больше утеплителя. Только вопрос будет ли это рационально. 1 Посилання на коментар Поділитися на інших сайтах More sharing options...
Рекомендовані повідомлення
Створіть акаунт або увійдіть у нього для коментування
Ви маєте бути користувачем, щоб залишити коментар
Створити акаунт
Зареєструйтеся для отримання акаунта. Це просто!
Зареєструвати акаунтУвійти
Вже зареєстровані? Увійдіть тут.
Увійти зараз