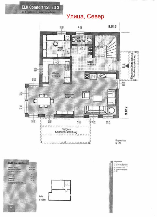
ALEXX17 Опубліковано: 13 жовтня 2009 Поділитись Опубліковано: 13 жовтня 2009 Нашел, на мой взгляд, интерсный проект коттеджа. Зацените пож. Хотелось бы услышать ваше мнение. предполагаю строить из ГБ. Посилання на коментар Поділитися на інших сайтах More sharing options...
ALEXX17 Опубліковано: 13 жовтня 2009 Автор Поділитись Опубліковано: 13 жовтня 2009 Гм.. Плохой проект? Никого... Посилання на коментар Поділитися на інших сайтах More sharing options...
Partizan1981 Опубліковано: 13 жовтня 2009 Поділитись Опубліковано: 13 жовтня 2009 Гм.. Плохой проект? Никого... Довольно таки не плохо. Гараж не планируете? Прошу уделить внимание для "гардеробной", так как моя милая меня раскритиковала, что я упустил это помещение, и теперь заново все перепланирую. Хотя кому как..... Посилання на коментар Поділитися на інших сайтах More sharing options...
Danshow Опубліковано: 13 жовтня 2009 Поділитись Опубліковано: 13 жовтня 2009 Мне нравится, довольно компактно. Я бы добавил холодный тамбур, чтобы наружная дверь не покрывалась конденсатом зимой. Еще очень полезной будет большая кладовая рядом с кухней. Где планируете ставить котел и насосную станцию? Посилання на коментар Поділитися на інших сайтах More sharing options...
ALEXX17 Опубліковано: 13 жовтня 2009 Автор Поділитись Опубліковано: 13 жовтня 2009 Мне нравится, довольно компактно. Я бы добавил холодный тамбур, чтобы наружная дверь не покрывалась конденсатом зимой. Еще очень полезной будет большая кладовая рядом с кухней. Где планируете ставить котел и насосную станцию? Дык на фоте ELK 1 эт. Есть помещение которое может исспользоваться как Котельная и тех помещение. На втором варианте первого этажа там комната жилая, в этом случае котел в туалете без душкабины. Насос в скважине. Тамбур, наверное да. Думал сделать вход с фасада, но нужно убрать куда-то туалет. Посилання на коментар Поділитися на інших сайтах More sharing options...
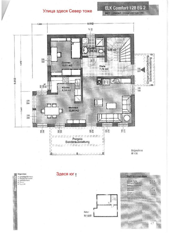
Dalman Опубліковано: 14 жовтня 2009 Поділитись Опубліковано: 14 жовтня 2009 Согласен с Danshow по-поводу тамбура, а кухня желательно чтобы закрывалась дверью, возможно раздвижной. Посилання на коментар Поділитися на інших сайтах More sharing options...
inspektor Опубліковано: 14 жовтня 2009 Поділитись Опубліковано: 14 жовтня 2009 Мне кухня была-бы маловатой. Посилання на коментар Поділитися на інших сайтах More sharing options...
ALEXX17 Опубліковано: 14 жовтня 2009 Автор Поділитись Опубліковано: 14 жовтня 2009 Согласен с Danshow по-поводу тамбура, а кухня желательно чтобы закрывалась дверью, возможно раздвижной. C кухней так и будет, тамбур наверное, но нужно будет переносить вход на фасад т.к. размеры участка не позволят сделать тамбур сбоку. Посилання на коментар Поділитися на інших сайтах More sharing options...
ALEXX17 Опубліковано: 14 жовтня 2009 Автор Поділитись Опубліковано: 14 жовтня 2009 Мне кухня была-бы маловатой. Маловатой для чего? Если приготовить еду то, имхо, достаточно. Если "посидеть" то есть прекрасный столик в столовой или гостинной. Посилання на коментар Поділитися на інших сайтах More sharing options...
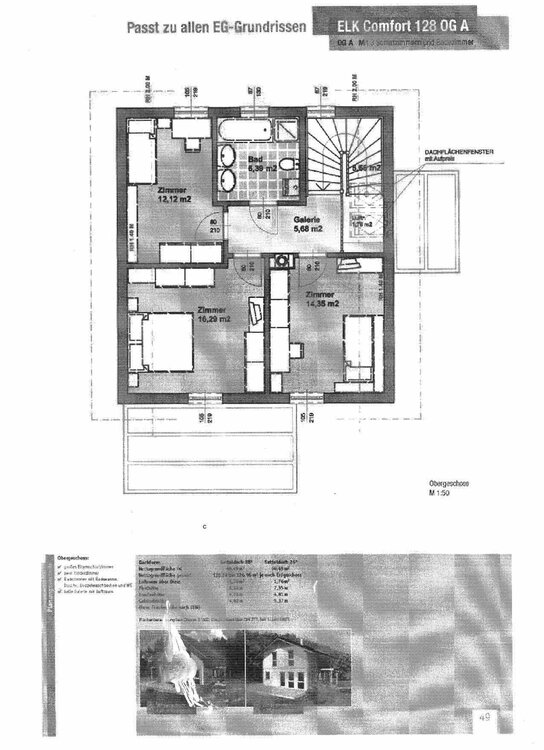
alexmetall Опубліковано: 15 жовтня 2009 Поділитись Опубліковано: 15 жовтня 2009 Нормательный проект, хороший выбор. Лестницу подправить - и можно строить Посилання на коментар Поділитися на інших сайтах More sharing options...
ALEXX17 Опубліковано: 15 жовтня 2009 Автор Поділитись Опубліковано: 15 жовтня 2009 А че подправить-то? Посилання на коментар Поділитися на інших сайтах More sharing options...
alexmetall Опубліковано: 16 жовтня 2009 Поділитись Опубліковано: 16 жовтня 2009 ступени- прямые, и только на повороте сделать забежными Посилання на коментар Поділитися на інших сайтах More sharing options...
yri Опубліковано: 18 жовтня 2009 Поділитись Опубліковано: 18 жовтня 2009 www.elk.at/index.php?id=fhaustyp&hausid=CO_128_38S_EG1_OGA&bfkz=f Так глядеть поудобнее Посилання на коментар Поділитися на інших сайтах More sharing options...
kamin_2006 Опубліковано: 19 жовтня 2009 Поділитись Опубліковано: 19 жовтня 2009 Нашел, на мой взгляд, интерсный проект коттеджа. Зацените пож. Хотелось бы услышать ваше мнение. предполагаю строить из ГБ. Попробуйте еще на этом сайте посмотреть, Вам обязательно что-то понравится: proekty.muratordom.com.ua/kolekcje.htm Посилання на коментар Поділитися на інших сайтах More sharing options...
ALEXX17 Опубліковано: 19 жовтня 2009 Автор Поділитись Опубліковано: 19 жовтня 2009 www.elk.at/index.php?id=fhaustyp&hausid=CO_128_38S_EG1_OGA&bfkz=f Так глядеть поудобнее Планировка та же. А крыша нам нравиться в нашем вариаете. Посилання на коментар Поділитися на інших сайтах More sharing options...
ALEXX17 Опубліковано: 19 жовтня 2009 Автор Поділитись Опубліковано: 19 жовтня 2009 Попробуйте еще на этом сайте посмотреть, Вам обязательно что-то понравится: proekty.muratordom.com.ua/kolekcje.htm А я ВАС узнал. Сколько будет стоить проект Укромный 3, под ГБ 375*200*600 и я бы хотел заднюю часть сделать ровной и выход в сад из гостинной и комнаты. Сколько это займет по времени? Посилання на коментар Поділитися на інших сайтах More sharing options...
Рекомендовані повідомлення
Створіть акаунт або увійдіть у нього для коментування
Ви маєте бути користувачем, щоб залишити коментар
Створити акаунт
Зареєструйтеся для отримання акаунта. Це просто!
Зареєструвати акаунтУвійти
Вже зареєстровані? Увійдіть тут.
Увійти зараз