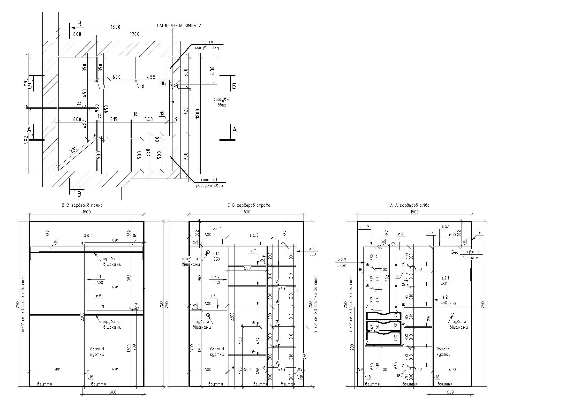
yrukslavko Опубліковано: 27 червня 2019 Поділитись Опубліковано: 27 червня 2019 Доброго дня це мій перший проект вмонтованої шафи купе та поличок гардеробної кімнати які планую збирати дома сам. Нехочеться "попалитись" не врахувати якісь технічні, конструктивні моменти та естетичні у зв'язку з відсутністю практики... але є бажання інструмент та натхнення. Тому буду щиро вдячний за поради та допомогу у виготовленні даних меблів. -по вмонтованій шафі: планується для 4 чол. 2 дорослих та 2 дітей, розмір шафи l=2040мм h=2500 глибина шафа буде різною див.фото.https://www.stroimdom.com.ua/forum/attachment.php?attachmentid=663088&stc=1&d=1561643828 бокова стінка відсутня планую кріпити до цегляної стіни з правого боку та злівого боку до стіни з газобетону. Задню стінку не планував робити. Допоможіть внутрішнім наповненням шафи? Як правильно кріпити полички та стійки (штифт конфірмат)?розміри елементів https://www.stroimdom.com.ua/forum/attachment.php?attachmentid=663089&stc=1&d=1561643828 Двері планував 3 секційнідетально ще нерозробляв. -гердеробна кімната розміром 1800мм на 1800мм.https://www.stroimdom.com.ua/forum/attachment.php?attachmentid=663090&stc=1&d=1561643828 При вході з права глубина поличок 350мм з ліва 500мм та прямо 600мм. Як кріпити між собою елементи?розміри детелей https://www.stroimdom.com.ua/forum/attachment.php?attachmentid=663091&stc=1&d=1561643828 Якщо по розкрою та кромкуванню більш менш розібрався Найбільшим невідомим для мене є вказання де і які отвори сверлити, щоб потім самому несверлити та купляти кондуктори та шаблони. Посилання на коментар Поділитися на інших сайтах More sharing options...
lagish Опубліковано: 29 червня 2019 Поділитись Опубліковано: 29 червня 2019 бокова стінка відсутня планую кріпити до цегляної стіни з правого боку та злівого боку до стіни з газобетону. Маємо певну економію матеріалу,натомість значне ускладнення монтажу поличок до стіни. В ящику доведеться передню стінку робити меншої висоти (приблизно на 30мм) через виріз у фасаді під ручку. Довжину ящика зручно робити відповідно до довжини направляючих.Тобто 450мм або 500мм замість 480мм. 1 Посилання на коментар Поділитися на інших сайтах More sharing options...
yrukslavko Опубліковано: 1 липня 2019 Автор Поділитись Опубліковано: 1 липня 2019 дякую по ящику внесу коректову розмірів. Чи можете ще підсказати по кріпленню полиць до центральних стійокhttps://www.stroimdom.com.ua/forum/attachment.php?attachmentid=663347&stc=1&d=1561959232? Посилання на коментар Поділитися на інших сайтах More sharing options...
Zalmej Опубліковано: 2 липня 2019 Поділитись Опубліковано: 2 липня 2019 Коли я перший раз робив собі тумби різні, то все заганяв в 3Д модель. Одразу видно всі помилки. Посилання на коментар Поділитися на інших сайтах More sharing options...
Рекомендовані повідомлення
Створіть акаунт або увійдіть у нього для коментування
Ви маєте бути користувачем, щоб залишити коментар
Створити акаунт
Зареєструйтеся для отримання акаунта. Це просто!
Зареєструвати акаунтУвійти
Вже зареєстровані? Увійдіть тут.
Увійти зараз