Roland Опубліковано: 22 липня 2019 Поділитись Опубліковано: 22 липня 2019 Доброго дня, побудували 2-поверховий будинок. Зараз на етапі накриття даху. Недавно помітили що є проблеми з розчином кладки на першому поверсі. Зробили аналіз розчину: орієнтовно 50% першого поверху M25 інша M50. Цегла повнотіла M100. Стіни в півтори цегли. Розчин M25 пористий і його можна вишкрабати цвяхом з помірними зусиллями. Скоріш за все причина в тому що в розчин дали занадто багато пластифікатора. Стіни стоять один рік поки ніде тріщин немає але питання: Чи можна якось укріпити підсилити стіни будинку щоб не було проблем надалі: - Обробити додатково чимось? - Міцніша штукатурка? - Армування? - Розібрати і.т.д Хто стикався буду вдячний за пораду. Дякую Посилання на коментар Поділитися на інших сайтах More sharing options...
stlav Опубліковано: 22 липня 2019 Поділитись Опубліковано: 22 липня 2019 Добрый день. Если не ошибаюсь то кирпича м100 на растворе м25 для двух этажей более чем. Дайте план этажей и разрез. Прикину, посчитаю. Что у Вас за перекрытие, плиты, монолит, балки? Армопояс есть? Пирог пола второго этажа? Какая кровля: двускатная, вальмовая? пирог, материал? Мансарда есть, нет, планируется в будущем? Посилання на коментар Поділитися на інших сайтах More sharing options...
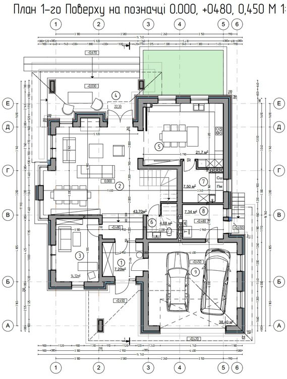
Roland Опубліковано: 23 липня 2019 Автор Поділитись Опубліковано: 23 липня 2019 @stlav дякую за відповідь. Два повноцінні поверхи орієнтовно 330 і 310 см висотою. Два перекриття. На другому поверсі проблем з кладкою немає. Дах 4-скатний, керамочерепиця. В фундаменті і перекриттях впевнений. Там бетон марки не нижче М300 - M350 точно. План поверхів додаю. Дякую. Посилання на коментар Поділитися на інших сайтах More sharing options...
stlav Опубліковано: 23 липня 2019 Поділитись Опубліковано: 23 липня 2019 Перекрытие первого этажа, это что плиты, монолит, балки? Перекрытие второго этажа, это что плиты, монолит, балки? Если перекрытия из плит то дайте раскладку плит на планах, хотя бы в paint нарисуйте. Какой пирог пола на втором этаже? Какой пирог на чердачном перекрытии? Если нет плана кровли, то дайте фото или схематически на плане второго этажа покажите куда опираются несущие элементы кровли: стойки, раскосы. Армопояса под перекрытиями есть или нет? Необходимо определить самую нагруженную стену и собрать нагрузку на нее. То что самая нагруженная стена будет одна из центральных понятно, не понятно какая именно. Посилання на коментар Поділитися на інших сайтах More sharing options...
Рекомендовані повідомлення
Створіть акаунт або увійдіть у нього для коментування
Ви маєте бути користувачем, щоб залишити коментар
Створити акаунт
Зареєструйтеся для отримання акаунта. Це просто!
Зареєструвати акаунтУвійти
Вже зареєстровані? Увійдіть тут.
Увійти зараз