Перейти до публікації
Пошук в
  • Додатково...
Шукати результати, які містять...
Шукати результати в...

Разводка отопления (+ТП на 1 эт.) и сантехники в тауне

kasolapyj

Рекомендовані повідомлення

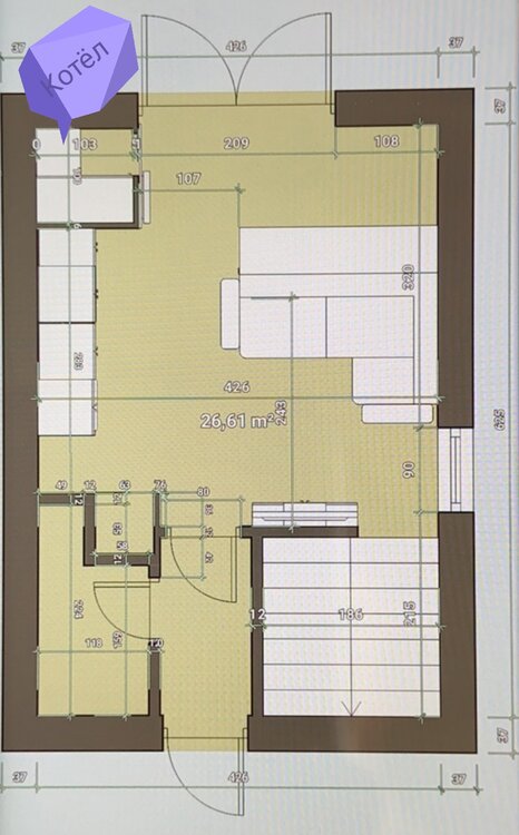
Добрый день. Есть пол-дома (дуплекс) на два этажа (+мансарда) на границе Софиевской и Петропавловской Борщаговки, метраж - 75 кв. м.

Нужен просчёт по разводке отопления (первый этаж - тёплый пол, второй и мансарда - под радиаторы) + сантехники/канализации (дополнительно).

Желание ТП сделать на трубе Rehau, стоит двухконтурный котёл Protherm.

IMG_20200311_113624.thumb.jpg.64d5c082b51635f8a4b2231fa120c401.jpg

IMG_20200311_113728.thumb.jpg.737eddbc58296e7fe50d8b66969bb0f0.jpg

Посилання на коментар
Поділитися на інших сайтах

Створіть акаунт або увійдіть у нього для коментування

Ви маєте бути користувачем, щоб залишити коментар

Створити акаунт

Зареєструйтеся для отримання акаунта. Це просто!

Зареєструвати акаунт

Увійти

Вже зареєстровані? Увійдіть тут.

Увійти зараз
×
×
  • Створити...