Перейти до публікації
Пошук в
  • Додатково...
Шукати результати, які містять...
Шукати результати в...

пристройка к дому

torrwald

Рекомендовані повідомлення

доброго времени суток, ув. форумчане!

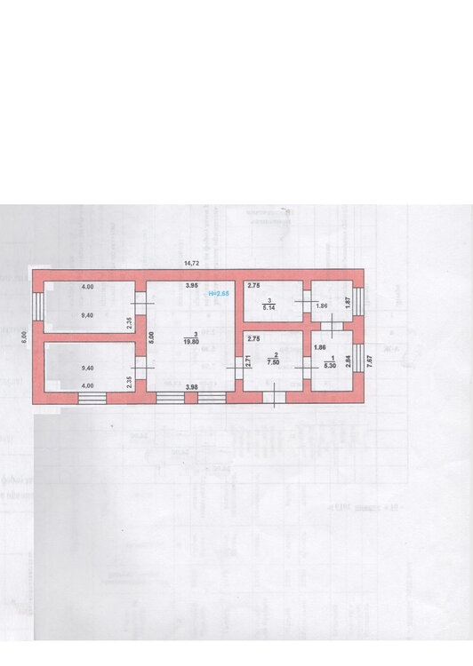
Имеется вопрос. Есть дом 6х10, одноэтажный фундамент ленточный, камень бут, заглублен на 0.7 м, столько же и цоколь по высоте... стены - известняк, сложенный на глиняном растворе :pozor:

Необходимо сделать одноэтажную пристройку к дому примерно 5х6 ( с торца дома) что бы получился в итоге вариант со второго фото. Вопрос, связывать ли два новых фундамента, если да, то как, если нет, то каким образом выполнить зазор. Далее как быть со стенами, связывать или нет старые с новыми? Возможно стоит пристройкук выполнить в облегченном варианте... Хочется услышать мнение авторитетных строителей:oops:

А то чайник...

1945022152_.thumb.jpg.7eb1cfcae59d161f3718426510457aa9.jpg

1937044620_.thumb.jpg.ae6cc12b1ba51d28a1b235a3eab24f98.jpg

Посилання на коментар
Поділитися на інших сайтах

Створіть акаунт або увійдіть у нього для коментування

Ви маєте бути користувачем, щоб залишити коментар

Створити акаунт

Зареєструйтеся для отримання акаунта. Це просто!

Зареєструвати акаунт

Увійти

Вже зареєстровані? Увійдіть тут.

Увійти зараз
×
×
  • Створити...