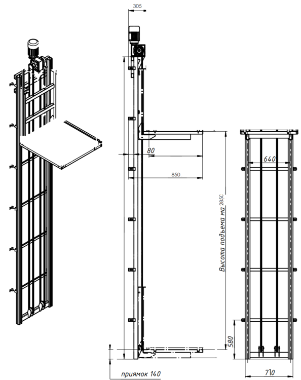
krasiva Опубліковано: 16 вересня 2021 Поділитись Опубліковано: 16 вересня 2021 интересует подъемник с платформой для частного пользования. нужно чтобы поместился в нишу 85х70 грузоподъемность ДО 100 кг. одна остановка на 2,8 м. платформа должна останавливаться в уровень со вторым этажом. Посилання на коментар Поділитися на інших сайтах More sharing options...
krasiva Опубліковано: 17 вересня 2021 Автор Поділитись Опубліковано: 17 вересня 2021 не срочно :о) жду предложений Посилання на коментар Поділитися на інших сайтах More sharing options...
krasiva Опубліковано: 17 вересня 2021 Автор Поділитись Опубліковано: 17 вересня 2021 ищу мастера вот такое дело сделать ! :о) Посилання на коментар Поділитися на інших сайтах More sharing options...
Рекомендовані повідомлення
Створіть акаунт або увійдіть у нього для коментування
Ви маєте бути користувачем, щоб залишити коментар
Створити акаунт
Зареєструйтеся для отримання акаунта. Це просто!
Зареєструвати акаунтУвійти
Вже зареєстровані? Увійдіть тут.
Увійти зараз