Oxkon Опубліковано: 12 листопада 2009 Поділитись Опубліковано: 12 листопада 2009 Ищу бригаду на сооружение фундамента. Ленточный, мелкозаглубленный. Глубина заложения - 1300. Высота над землей 600-700. ширина ленты 300. Под половиной дома подвал. Посилання на коментар Поділитися на інших сайтах More sharing options...
асстрой Опубліковано: 12 листопада 2009 Поділитись Опубліковано: 12 листопада 2009 Ищу бригаду на сооружение фундамента. Ленточный, мелкозаглубленный. Глубина заложения - 1300. Высота над землей 600-700. ширина ленты 300. Под половиной дома подвал.[/Q Бригада с Боярки, ответили в личку! Посилання на коментар Поділитися на інших сайтах More sharing options...
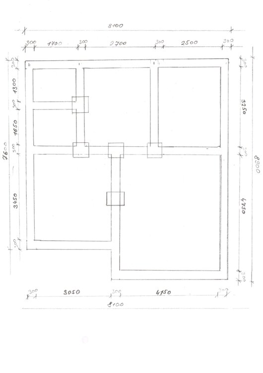
Oxkon Опубліковано: 12 листопада 2009 Автор Поділитись Опубліковано: 12 листопада 2009 Уважаемые строители, отвечающие в личку. Я НЕ ЗНАЮ колличество кубов в моем фундаменте, поэтому и прикрепила эскиз фундаметнта. Хотелось бы увидеть цену за работу, а не за куб. Еще добавлю, что материалов и оборудования, кроме электричества, воды и бетономешалки у меня нет. Жду предложений. Посилання на коментар Поділитися на інших сайтах More sharing options...
асстрой Опубліковано: 12 листопада 2009 Поділитись Опубліковано: 12 листопада 2009 Уважаемые строители, отвечающие в личку. Я НЕ ЗНАЮ колличество кубов в моем фундаменте, поэтому и прикрепила эскиз фундаметнта. Хотелось бы увидеть цену за работу, а не за куб. Еще добавлю, что материалов и оборудования, кроме электричества, воды и бетономешалки у меня нет. Жду предложений. Просчитал и отправил в личку! А где находится объект, можно узнать??? Посилання на коментар Поділитися на інших сайтах More sharing options...
Oxkon Опубліковано: 12 листопада 2009 Автор Поділитись Опубліковано: 12 листопада 2009 Ну прям беда какая-то Скорей всего, я плохо изъясняюсь, непрофессионально..... Я хотела бы, чтобы мне озвучили СУММУ ДЕНЕГ, которую я должна заплатить строителям за все: за работу, материалы, бетон, небетон, все-все, короче. Очень буду благодарна! Посилання на коментар Поділитися на інших сайтах More sharing options...
асстрой Опубліковано: 12 листопада 2009 Поділитись Опубліковано: 12 листопада 2009 Да нет, не беда, всё правильно Вы хотите, это моя ошибка,что не спросил сразу месторасположение, далековато нам, и жилья как я понял у Вас нет для ребят. Ну это такое дело, Бог в помощь Вам, надеюсь бригаду быстро найдете! и рекомендации у наших форумчан будут классные! Посилання на коментар Поділитися на інших сайтах More sharing options...
Oxkon Опубліковано: 12 листопада 2009 Автор Поділитись Опубліковано: 12 листопада 2009 Да нет, не беда, всё правильно Вы хотите, это моя ошибка,что не спросил сразу месторасположение, далековато нам, и жилья как я понял у Вас нет для ребят. Ну это такое дело, Бог в помощь Вам, надеюсь бригаду быстро найдете! и рекомендации у наших форумчан будут классные! Спасибо за пожелания и Вам всего доброго! Посилання на коментар Поділитися на інших сайтах More sharing options...
Архимед Опубліковано: 12 листопада 2009 Поділитись Опубліковано: 12 листопада 2009 Спасибо за пожелания и Вам всего доброго! Если можно узнать где находится объект. Регеон вообще нужен для рассчета стоимости накладных расходов.тел0970160613 Сергей. Посилання на коментар Поділитися на інших сайтах More sharing options...
Oxkon Опубліковано: 12 листопада 2009 Автор Поділитись Опубліковано: 12 листопада 2009 Т.к. изначально не написала месторасположения объекта, исправляюсь: Белая Церковь Посилання на коментар Поділитися на інших сайтах More sharing options...
Bladimer Опубліковано: 12 листопада 2009 Поділитись Опубліковано: 12 листопада 2009 Т.к. изначально не написала месторасположения объекта, исправляюсь: Белая Церковь Здравствуйте. Я сейчас нахожусь совсем рядом. Звоните или оставьте телефон в лучку! Можем посмотреть и подсчитать все на месте. 09760768672 Посилання на коментар Поділитися на інших сайтах More sharing options...
Архимед Опубліковано: 12 листопада 2009 Поділитись Опубліковано: 12 листопада 2009 Здравствуйте. Я сейчас нахожусь совсем рядом. Звоните или оставьте телефон в лучку! Можем посмотреть и подсчитать все на месте. 09760768672 Подкоректируйте номер я перезвоню.;) Посилання на коментар Поділитися на інших сайтах More sharing options...
Рекомендовані повідомлення
Створіть акаунт або увійдіть у нього для коментування
Ви маєте бути користувачем, щоб залишити коментар
Створити акаунт
Зареєструйтеся для отримання акаунта. Це просто!
Зареєструвати акаунтУвійти
Вже зареєстровані? Увійдіть тут.
Увійти зараз