Перейти до публікації
Пошук в
  • Додатково...
Шукати результати, які містять...
Шукати результати в...

Житловий комплекс "PetrovSky" Вишгородський район,с.Нові Петрівці, вул. 1-го Травня

ProfGroup

Рекомендовані повідомлення

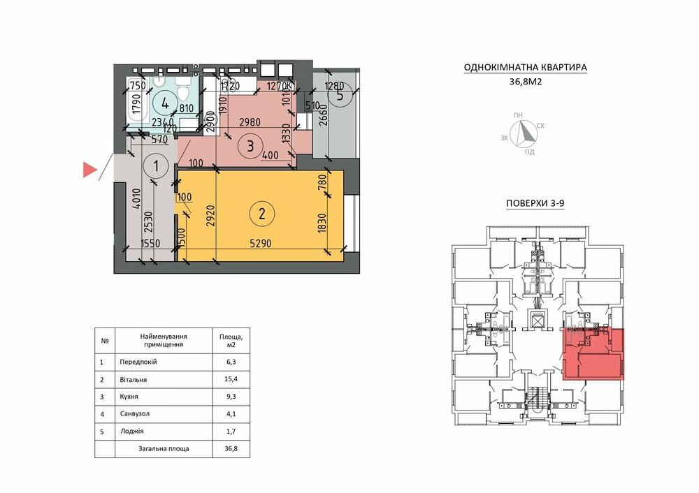
Нове будівництво багатоквартирних житлових будинків з торгово-офісними приміщеннями (перша-п’ята черги будівництва) на розі вул. 1-го Травня та пров. 1-го Травня, с. Нові Петрівці,  Вишгородський район,  Київська область.

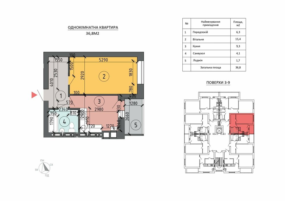
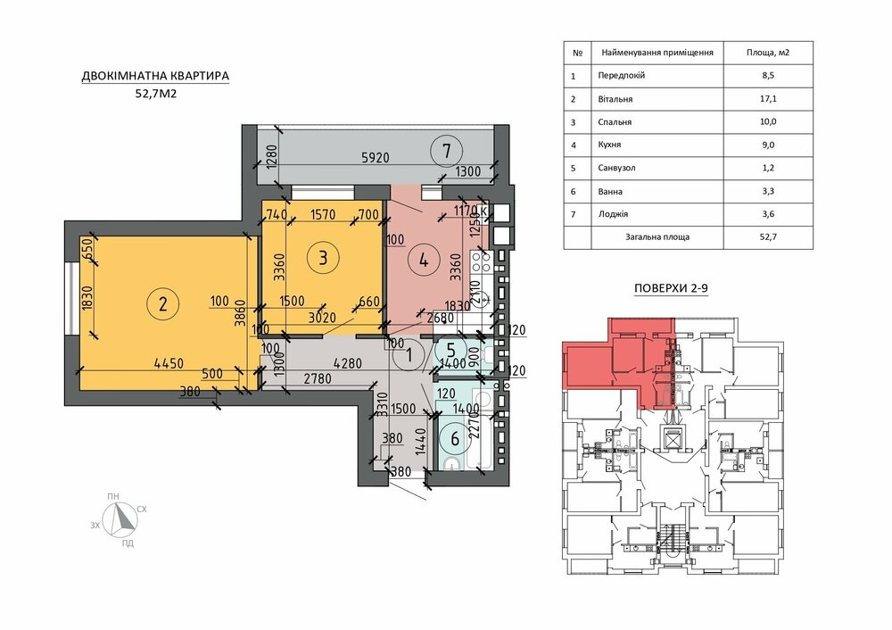
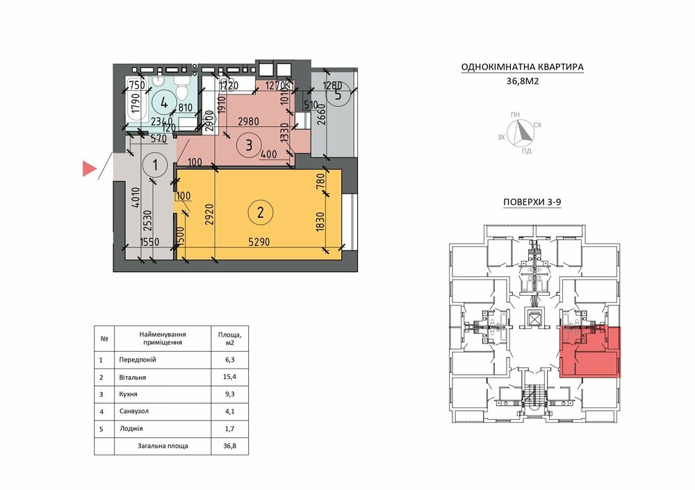
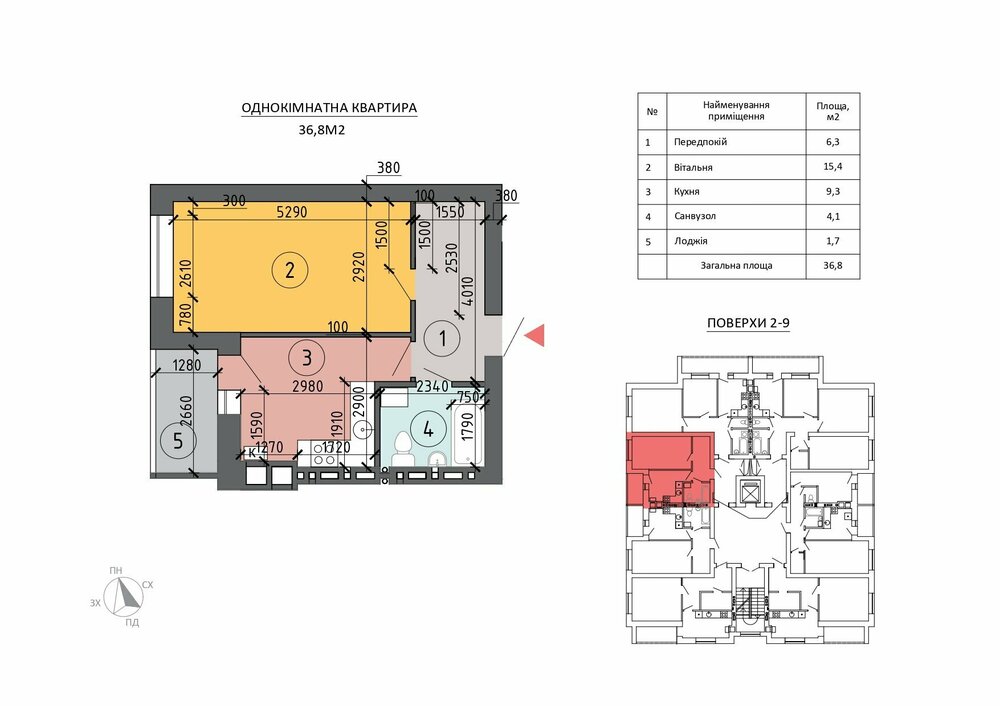
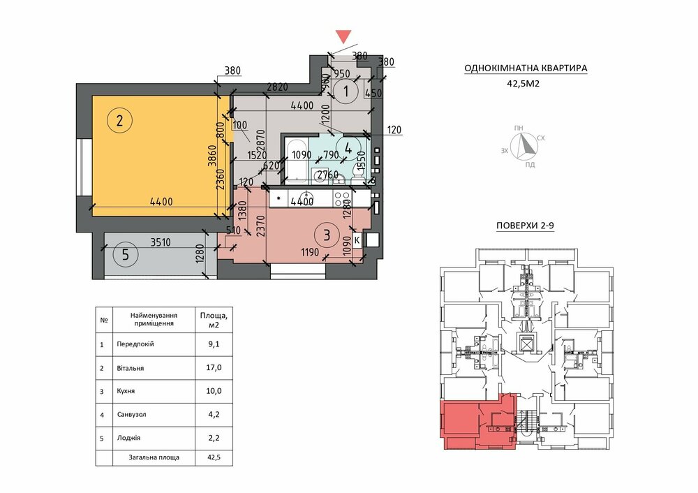
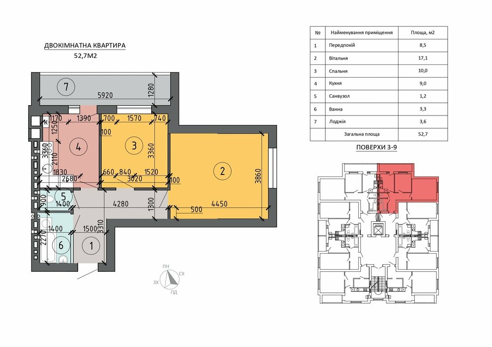
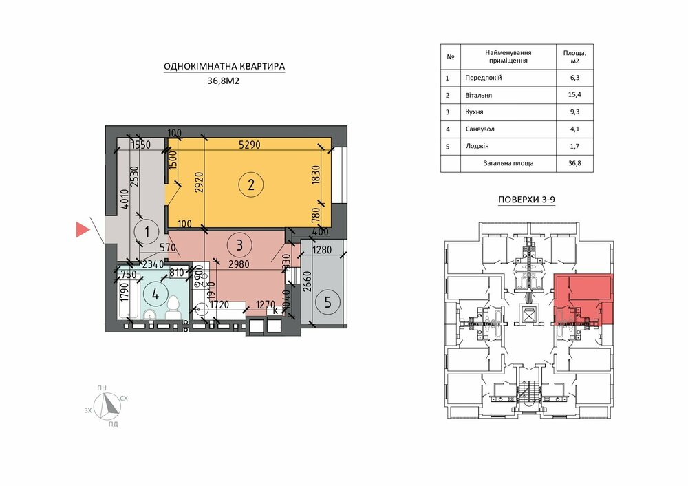
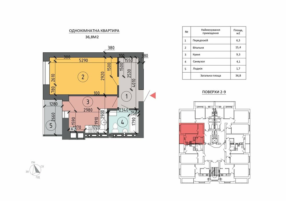
У продажу квартири:
▪️1-кімнатні площею 36,8 та 42,5 кв.м.
▪️2-кімнатні площею 52,7 та 66 кв.м.
▪️3-кімнатні площею 72,6 кв.м.
Ціна від 20500 грн/м2
🔸 Розстрочка від Забудовника до 24 місяців!
🔸 Перший внесок від 50%
🔸 П’ять 9-ти поверхових цегляних будинків;
🔸 Наземна гостьова парковка;
🔸 Сучасний благоустрій та озеленення подвір’я;
🔸 Безпечні дитячі майданчики.

Комплектація квартири:
– чорнова штукатурка(обробка) стін,
– вхідні металеві двері,
– сантехніка розведена по стоякам,
– металопластикові вікна,
– встановлені лічильники на всі види комунікацій: вода, електрика; газ
– опалення- індивідуальне (2-х контурний газовий котел)
– ввідний кабель електроенергії
– Централізовані комунікації (водопостачання, каналізація, газопостачання та електрифікація)

11 км. від Києва, Вишгородський район, с. Нові Петрівці, вул. 1-го Травня

petryellow.jpg

2k1.jpg

№ 16, 24, 32, 40, 48, 56, 64.jpg

№ 17, 25, 25, 33, 41, 49, 57, 65 — копия.jpg

№ 17, 25, 25, 33, 41, 49, 57, 65.jpg

№ 18, 26, 34, 42, 50, 58, 66 — копия.jpg

№ 18, 26, 34, 42, 50, 58, 66.jpg

№5, 12, 20,28,36,44,52,60.jpg

№6, 13, 21,29, 37, 45, 53, 61 — копия.jpg

№6, 13, 21,29, 37, 45, 53, 61.jpg

№7, 14, 22, 30, 38, 46, 54, 62 — копия.jpg

№7, 14, 22, 30, 38, 46, 54, 62.jpg

№8, 15, 23, 31, 39, 47, 55, 63.jpg

№9.jpg

№10.jpg

№11, 19,27, 35, 43, 51, 59, 67.jpg

Посилання на коментар
Поділитися на інших сайтах

Новини будівництва ЖК "PETROVSKY" вул. 1-го Травня від 26.10.2021 року

Секція №1:

завершені роботи з монтажу металопластикових конструкцій (вікон) на 4-6-му поверсі; ведуться підготовчі роботи з монтажу металопластикових конструкцій (вікон) на 7-8-му поверсі;

тривають роботи по влаштуванню покрівлі будинку;

завершені роботи з монтажу міжкімнатних перегородок на 9-му поверсі;

тривають роботи по влаштуванню лівневої каналізації;

завершені роботи з монтажу вхідних груп цокольного поверху;

З повагою, команда #профгруп

 

244774546_3143175442583807_7648883076737566583_n.jpg

248445688_3143175452583806_9132740013198139351_n.jpg

248887403_3143175449250473_7493085053050588075_n.jpg

249184476_3143175445917140_7157089433434639762_n.jpg

Посилання на коментар
Поділитися на інших сайтах

  • 2 тижні потому...

Новини будівництва ЖК "PETROVSKY" вул. 1-го Травня від 09.11.2021 року

 Секція №1:

 *завершені роботи з монтажу металопластикових конструкцій (вікон) на 2-9-му поверсі;                                                             

*завершені роботи по влаштуванню покрівлі будинку;

*тривають роботи по влаштуванню лівневої каналізації;

*ведуться роботи з утеплення фасаду будинку;

З повагою, команда Профгруп

#profgroup #profgrouprealty #недвижимость #недвижимостькиев #вышгород #vyshgorod #жквишгород #жкборисоглебский #жкборисоглебский2 #стартлайф #жк4карата #жксмарагдовемісто #жкфранцузскийквартал #жкфранцузскийбульвар #жкпетровский #petrovsky #новыепетровцыpetrovsky #новыепетровцы #вишгородмоємісто #вишгородпрекрасен #вишгороськийрайон

254350209_3154986874735997_2588800990267354802_n — копия.jpg

254352278_3154986861402665_6963152799379664343_n — копия.jpg

254956236_3154986878069330_1496910906751313669_n.jpg

254996961_3154986868069331_4120541441429960935_n.jpg

255592601_3154986871402664_1225749596693544164_n.jpg

Посилання на коментар
Поділитися на інших сайтах

  • 1 місяць потому...

Новини будівництва ЖК "PETROVSKY" вул. 1-го Травня від 07.12.2021 року

Секція №1: продовжуються роботи по зворотньому підсипанню цокольного поверху;

продовжуються роботи з утеплення фасаду будинку;

ведуться підготовчі роботи з монтажу металопластикових конструкцій (вікон) на 1-му поверсі

З повагою, команда #профгруп
 

265013917_3176188292615855_3732221457326982764_n.jpg

265154948_3176188279282523_455679757975964643_n.jpg

265298159_3176188289282522_8229532693281187194_n.jpg

265312262_3176188285949189_2987026291905768144_n.jpg

265336609_3176188282615856_4084454215396633084_n.jpg

Посилання на коментар
Поділитися на інших сайтах

Створіть акаунт або увійдіть у нього для коментування

Ви маєте бути користувачем, щоб залишити коментар

Створити акаунт

Зареєструйтеся для отримання акаунта. Це просто!

Зареєструвати акаунт

Увійти

Вже зареєстровані? Увійдіть тут.

Увійти зараз
×
×
  • Створити...