100TON Опубліковано: 1 лютого 2022 Поділитись Опубліковано: 1 лютого 2022 Помогите правильно выбрать фундамент, сделали проект с архитектором, в прошлом году пригласили прораба, насчитал на 10 000 $ только материалов - предлагал 9 свай, фундамент высотой 1.40 м., утепленный пеноплексом, внутрь гидроизоляция, песок, слой пеноплекса и стяжка поверх всего с арматурой, ну что - то был не готов к таким растратам да и он не внушал доверия, какие советы можете дать? Днепропетровская область, г. Каменское, участок возле р. Днепр, грунт глиняный (если я правильно запомнил) Посилання на коментар Поділитися на інших сайтах More sharing options...
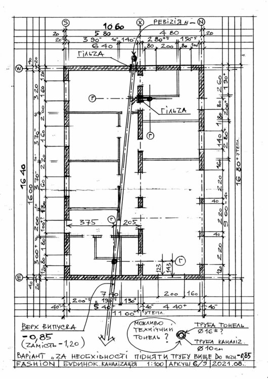
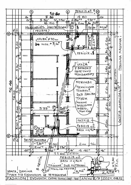
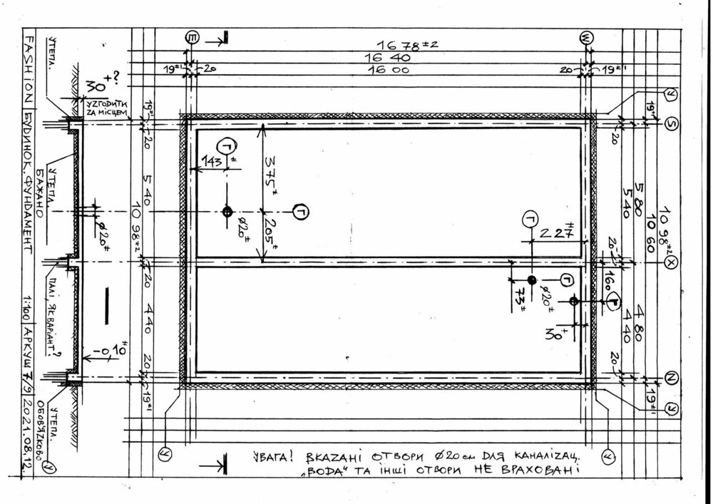
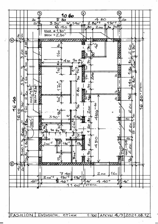
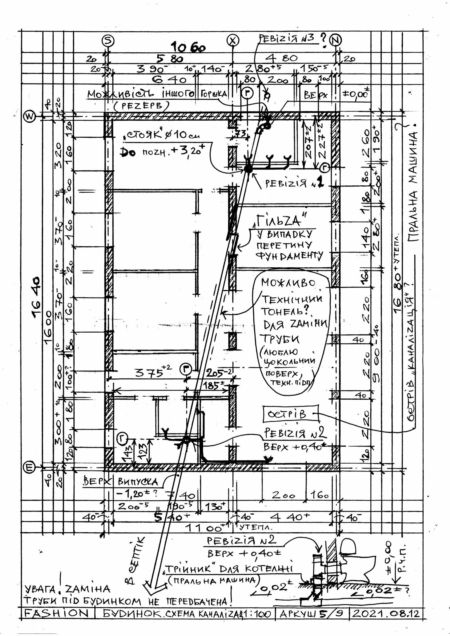
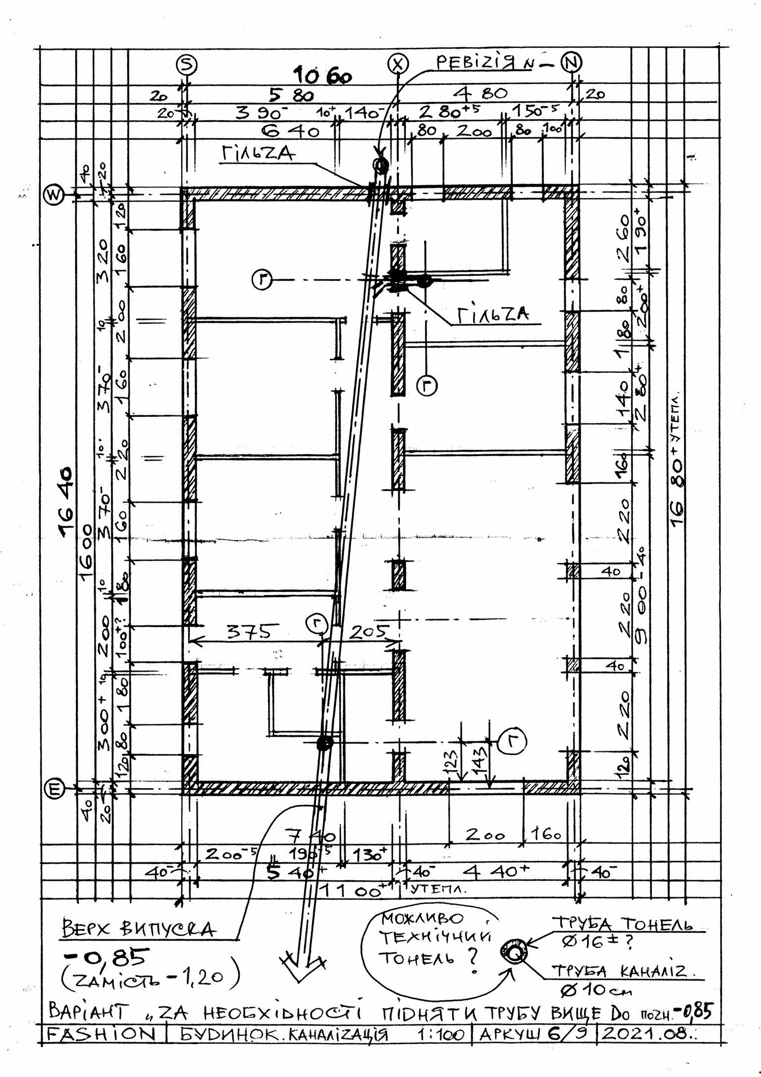
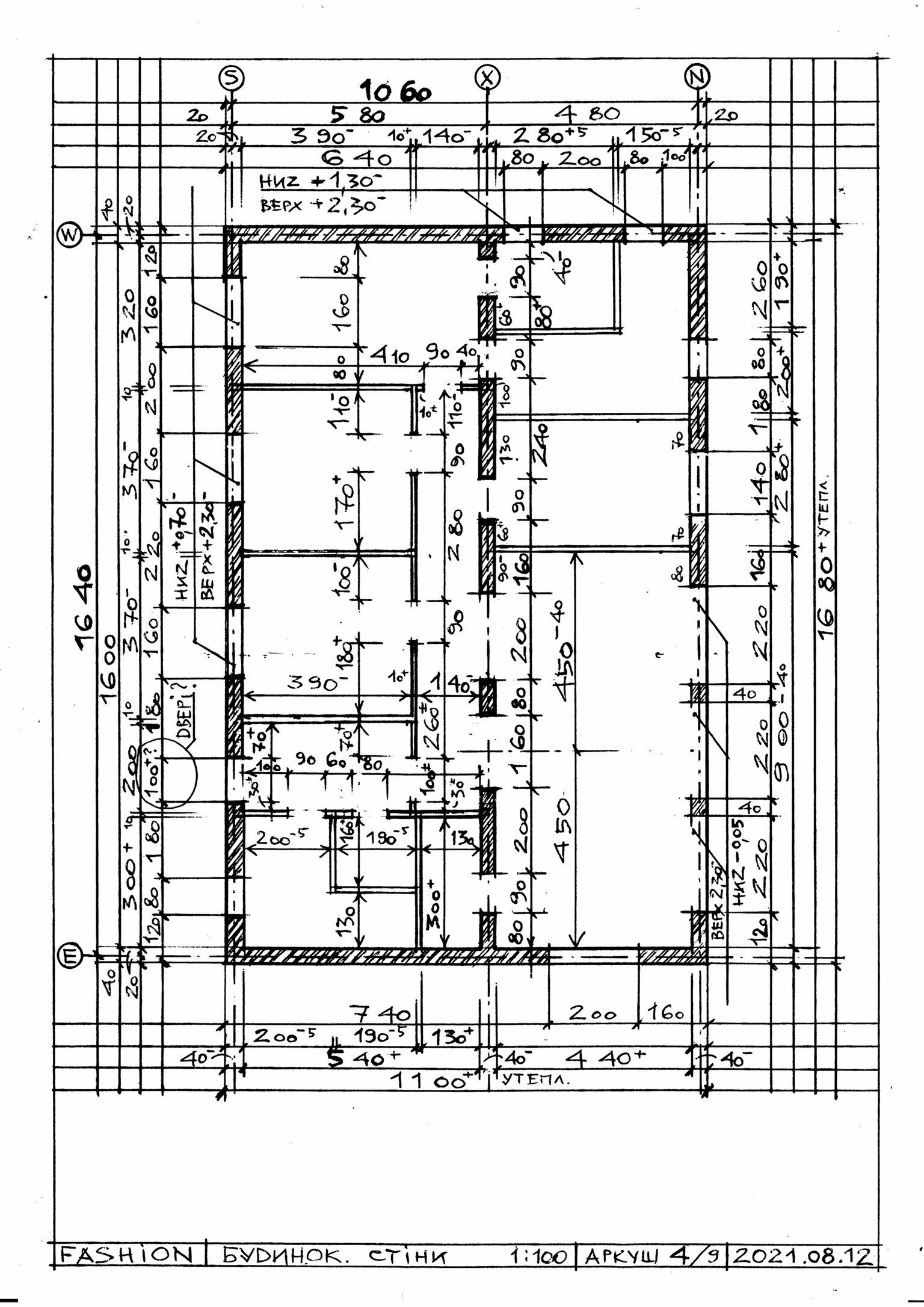
shneider_vova Опубліковано: 1 лютого 2022 Поділитись Опубліковано: 1 лютого 2022 3 минуты назад, 100TON сказал: какие советы можете дать? Преамбула. Где вы в 2021 году нашли архитектора, который чертит от руки?! Еще и такого, который пишет "говно" на чертеже, а также дает дренажную траншею в глине после однокамерного септика. Советы: 1) Сделать геологию (геологические изыскания). тогда будете конкретно знать, что за грунты, а не со слов 2) сделать топосъемку (геодезию) участка, тогда будете знать отметки поверхности земли. Можете и сами сделать с водяным уровнем. На текущий момент возможный перепад по участку неизвестен 3) заказать проект фундамента у конструктора на основании пунктов 1, 2 и архитектуры 1 Посилання на коментар Поділитися на інших сайтах More sharing options...
100TON Опубліковано: 1 лютого 2022 Автор Поділитись Опубліковано: 1 лютого 2022 Ну он человек специфический, но вроде грамотный, как он сказал "он привык от руки" он с сыном работает, предлагал комплект 3Д, но я не вижу смысла в нем, мне картинка не важна, я знаю жену, еще все поменяется, было важно получить то пространство, которое нам будет подходить и которое будет максимально энергоэфективным Посилання на коментар Поділитися на інших сайтах More sharing options...
Рекомендовані повідомлення
Створіть акаунт або увійдіть у нього для коментування
Ви маєте бути користувачем, щоб залишити коментар
Створити акаунт
Зареєструйтеся для отримання акаунта. Це просто!
Зареєструвати акаунтУвійти
Вже зареєстровані? Увійдіть тут.
Увійти зараз