as1976as Опубліковано: 30 грудня 2009 Автор Поділитись Опубліковано: 30 грудня 2009 В вашем варианте надо там, а в моем тут. В углу камин. Под лестницей сделать кладовочку. Да но при таком раскладе по балке на гостинную -холл, на балку надо плиту 75.Про кладовку под лестницей согласен только вход в нее со стороны кухни,можно хранить припасы на случай войны. А что за программа у вас. Посилання на коментар Поділитися на інших сайтах More sharing options...
ИНОЙ Опубліковано: 30 грудня 2009 Поділитись Опубліковано: 30 грудня 2009 Все продумываеться, плиты бывают 72, 73, 74, 75 Балку тоже можно обыграть, арка например и тд. Программа ArCon +2005 Посилання на коментар Поділитися на інших сайтах More sharing options...
as1976as Опубліковано: 30 грудня 2009 Автор Поділитись Опубліковано: 30 грудня 2009 Все продумываеться, плиты бывают 72, 73, 74, 75 Балку тоже можно обыграть, арка например и тд. Программа ArCon +2005 А насколько принципиально размещение балки именно в том месте как на вашей последней модели .Почему нельзя поместить балку на стену к которой примыкает камин.Объясните пожалуйста непонятливому. Посилання на коментар Поділитися на інших сайтах More sharing options...
ИНОЙ Опубліковано: 30 грудня 2009 Поділитись Опубліковано: 30 грудня 2009 Вообще не принципиально, считайте что это два разных варианта. НО у каждой балки есть глубина опирания на стену, это тоже надо учитывать, а у вас там труба камина где-то есть. Посилання на коментар Поділитися на інших сайтах More sharing options...
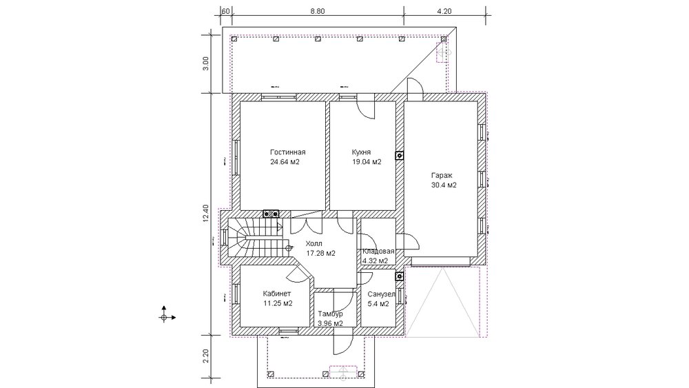
ИНОЙ Опубліковано: 30 грудня 2009 Поділитись Опубліковано: 30 грудня 2009 Вот вариант лестница справа. Над вторым этажем надо думать. Вариантов масса. 1 Посилання на коментар Поділитися на інших сайтах More sharing options...
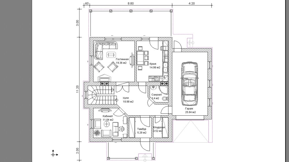
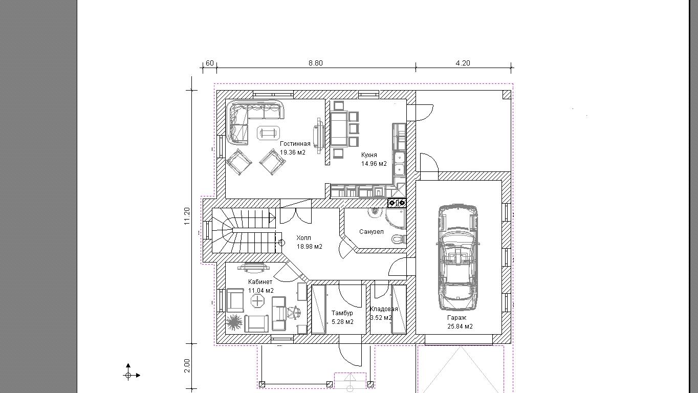
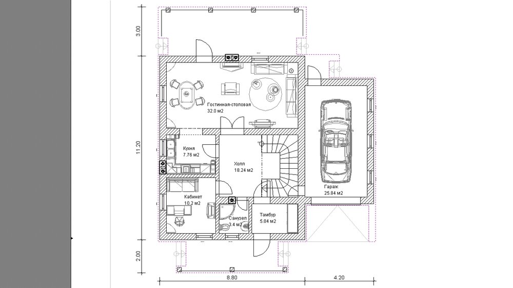
Tugarin Опубліковано: 5 січня 2010 Поділитись Опубліковано: 5 січня 2010 Здравствуйте, Вы просили заглянуть к Вам на "огонек",- заглядываю , к сожалению раньше не получилось . Есть вот такой вариант планировки под стандартные плиты перекрытия, общей площадью 180.36 м.кв. (без терассы и входной группы): 1 Посилання на коментар Поділитися на інших сайтах More sharing options...
as1976as Опубліковано: 5 січня 2010 Автор Поділитись Опубліковано: 5 січня 2010 Здравствуйте, Вы просили заглянуть к Вам на "огонек",- заглядываю , к сожалению раньше не получилось . Есть вот такой вариант планировки под стандартные плиты перекрытия, общей площадью 180.36 м.кв. (без терассы и входной группы): Замысел неплохой но кухня мне кажется маловатой. А площадь помещений на 2 этаже по полу или как? Посилання на коментар Поділитися на інших сайтах More sharing options...
Tugarin Опубліковано: 5 січня 2010 Поділитись Опубліковано: 5 січня 2010 ...А площадь помещений на 2 этаже по полу или как? Да по полу, минимальная высота внутренних стен 1.6 м. Посилання на коментар Поділитися на інших сайтах More sharing options...
Ирина L Опубліковано: 5 січня 2010 Поділитись Опубліковано: 5 січня 2010 Хорошо бы гардеробную на первом этаже и не делать вход в санузел из гостиной. Посилання на коментар Поділитися на інших сайтах More sharing options...
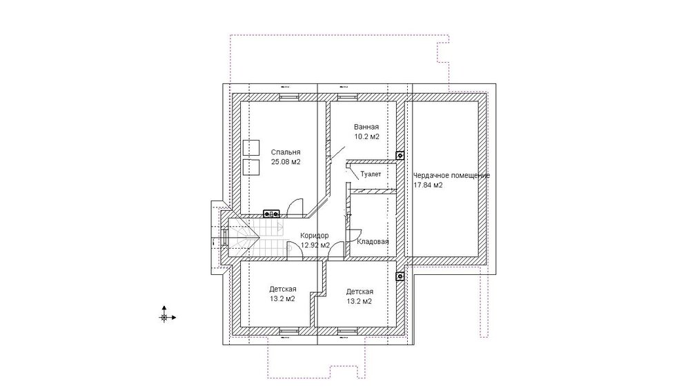
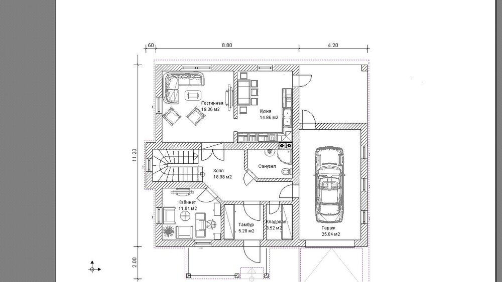
Tugarin Опубліковано: 5 січня 2010 Поділитись Опубліковано: 5 січня 2010 Вот еще один вариант, так сказать, производная от Вашего: Посилання на коментар Поділитися на інших сайтах More sharing options...
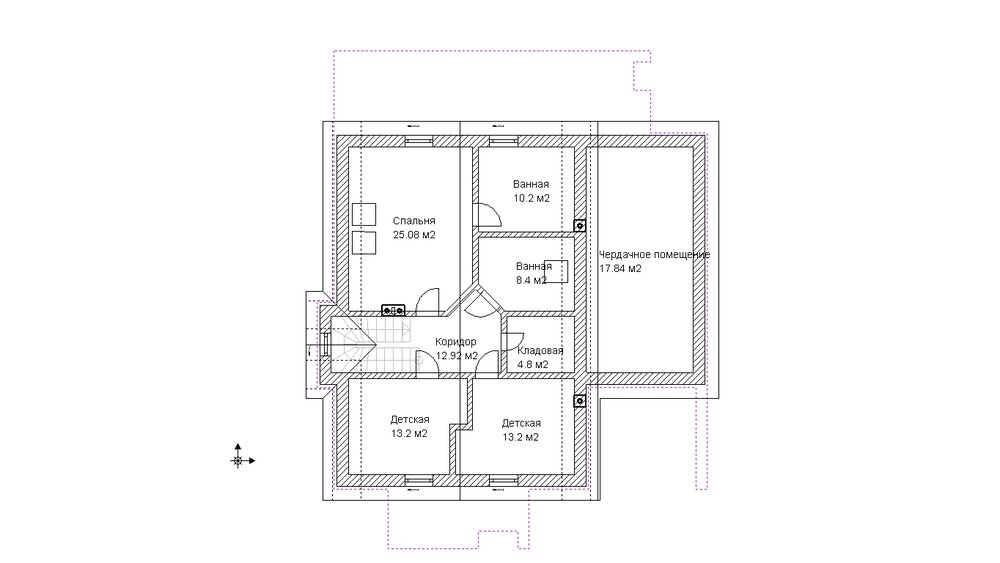
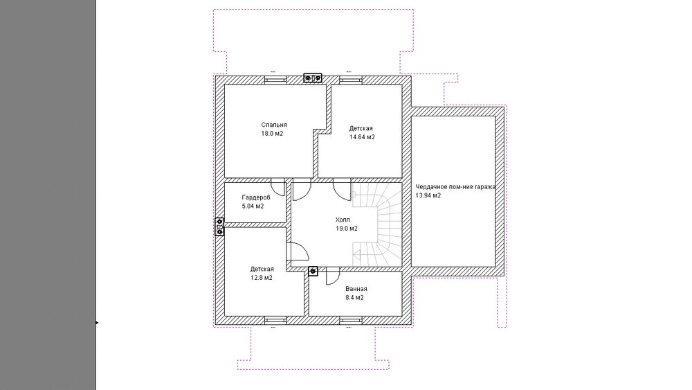
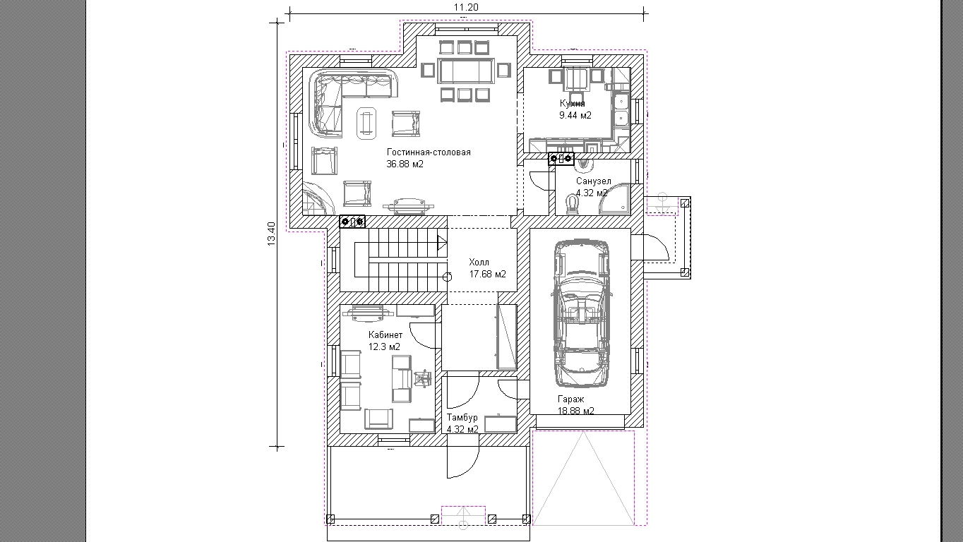
Tugarin Опубліковано: 6 січня 2010 Поділитись Опубліковано: 6 січня 2010 Еще один вариантик: 1 Посилання на коментар Поділитися на інших сайтах More sharing options...
Ирина L Опубліковано: 6 січня 2010 Поділитись Опубліковано: 6 січня 2010 Tugarin, Ваш последний вариант наиболее удачный. Если на втором этаже достаточно трех комнат, то из спальни 11 метров можно сделать санузел (правда коммуникации дополнительно надо будет вести, но при желании можно в частном доме себе позволить), а из санузла гардеробную. Либо гардеробную из спальни 11 метров. Удобство гардеробной познается в процессе эксплуатации, там можно разместить гладильную доску и не складывать ее. Еще в доме хорошо бы иметь постирочную с окном. Посилання на коментар Поділитися на інших сайтах More sharing options...
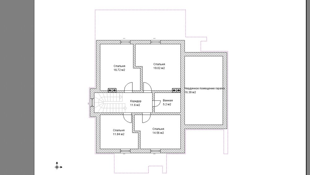
as1976as Опубліковано: 7 січня 2010 Автор Поділитись Опубліковано: 7 січня 2010 Еще один вариантик: Поздравляю с Рождеством Христовым. Всем желаю удачи в Новом Году. Сергей огромное спасибо за варианты.Очень заинтересовал последний вариант.Сразу же накопилось огромное количество вопросов. 1 Перекрытие 1-го этажа. 2 Предусмотрена ли лестница на чердак? Если да, то где? 3 Можно ли продлить гараж до конца дома? 4 За счет чего можно увеличить гостиную,кухню и санузел на 1-м этаже? (Может быть увеличить длину дома?) 5 Для чего нужны ломаные стены на 2-м этаже? 6 Можно ли вместо 4-х спален на втором этаже сделать 3 спальни,но а) увеличить спальню(16,72м) б) вместо ванной (5,2 м) сделать кладовую в) спальню (19,2 м) уменьшить и сделать из нее отдельную ванную и отдельный туалет г) возможно ли спальни (11,84м и 14,56 м) сделать равными по площади ( планируется использовать данные комнаты под детские) Заранее спасибо за помощь и консультации. Посилання на коментар Поділитися на інших сайтах More sharing options...
Tugarin Опубліковано: 7 січня 2010 Поділитись Опубліковано: 7 січня 2010 Поздравляю с Рождеством Христовым. Всем желаю удачи в Новом Году... Вас также с прошедшими и наступившими праздниками, всех благ и сорейшего заселения в свой дом!!! ...Сразу же накопилось огромное количество вопросов. 1 Перекрытие 1-го этажа. 2 Предусмотрена ли лестница на чердак? Если да, то где? 3 Можно ли продлить гараж до конца дома? 4 За счет чего можно увеличить гостиную,кухню и санузел на 1-м этаже? (Может быть увеличить длину дома?) 5 Для чего нужны ломаные стены на 2-м этаже? 6 Можно ли вместо 4-х спален на втором этаже сделать 3 спальни,но а) увеличить спальню(16,72м) б) вместо ванной (5,2 м) сделать кладовую в) спальню (19,2 м) уменьшить и сделать из нее отдельную ванную и отдельный туалет г) возможно ли спальни (11,84м и 14,56 м) сделать равными по площади ( планируется использовать данные комнаты под детские) Заранее спасибо за помощь и консультации. 1. план под стандартные плиты перекрытия; 2. полноценный лестничный марш- нет, из коридора, так сказать, люк-лестница; 3. не вопрос; 4. 4.1 увеличить длину; 4.2 увеличить ширину, что наверное не очень желательно, т.к. участок 18 м (если не ошибаюсь), а ширина дома 13.6 м, т.е. по-минимуму: справа 1м, слева 3.4 м, что на мой взгляд немного. Еще нюанс кухня станет 5.6м х 3.4м (вытянутой прямоугольной формы); 5. Ломаные стены образуют ниши для шкафов, которые установленные во всю ширину ниши будут выглядеть будто встроенные в стену и таким образом не "съедать" визуально площадь комнаты; 6. думаю возможно. 1 Посилання на коментар Поділитися на інших сайтах More sharing options...
as1976as Опубліковано: 7 січня 2010 Автор Поділитись Опубліковано: 7 січня 2010 [ 4.1 увеличить длину; 4.2 увеличить ширину, что наверное не очень желательно, т.к. участок 18 м (если не ошибаюсь), а ширина дома 13.6 м, т.е. по-минимуму: справа 1м, слева 3.4 м, что на мой взгляд немного. Еще нюанс кухня станет 5.6м х 3.4м (вытянутой прямоугольной формы); Это не пугает.Если я правильно понял то вы увеличиваете длину дома до 12,5м. А что сделать с санузлом на первом этаже,как его увеличить? 6. думаю возможно. Извините за настойчивость но можно ли вопрос 6 поподробней.Просто хочется понять как это выглядит глазами профи. Посилання на коментар Поділитися на інших сайтах More sharing options...
as1976as Опубліковано: 7 січня 2010 Автор Поділитись Опубліковано: 7 січня 2010 Спасибо всем за помощь. До встречи,я надеюсь,завтра. Еще раз всех с праздниками!!!!!!!!!!!!!!!! Посилання на коментар Поділитися на інших сайтах More sharing options...
Tugarin Опубліковано: 7 січня 2010 Поділитись Опубліковано: 7 січня 2010 ...Извините за настойчивость но можно ли вопрос 6 поподробней... Можно, конечно, или сегодня или завтра поменяю планировку с четом последних корректив и выложу. Посилання на коментар Поділитися на інших сайтах More sharing options...
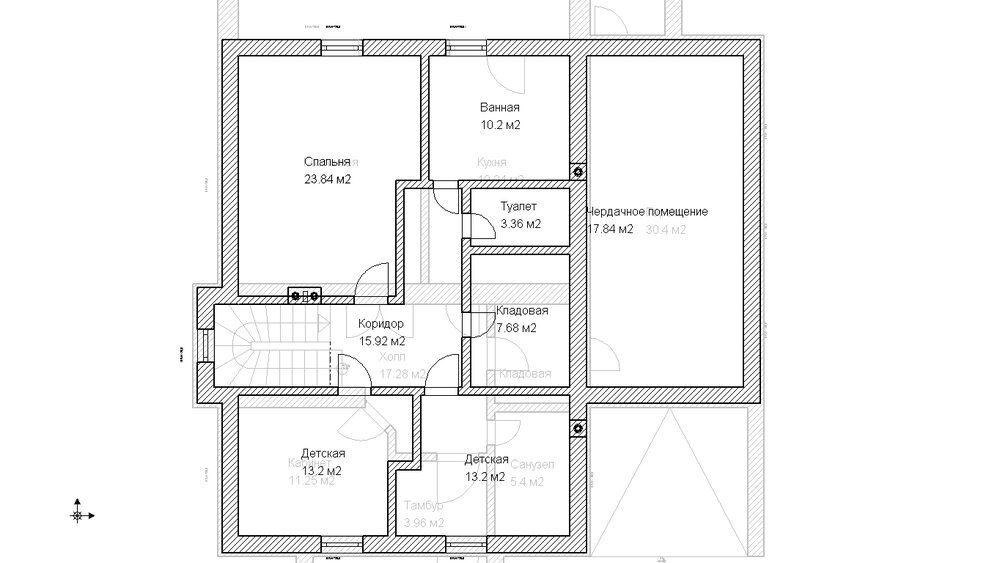
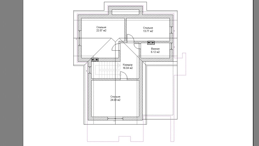
Tugarin Опубліковано: 8 січня 2010 Поділитись Опубліковано: 8 січня 2010 Вот, с коррективами, правда мансарда немного на свой лад: 1 Посилання на коментар Поділитися на інших сайтах More sharing options...
as1976as Опубліковано: 9 січня 2010 Автор Поділитись Опубліковано: 9 січня 2010 (змінено) Возник вопрос а насколько нужен выход из гаража в дом.Может действительно не создавать прецендент для проникновения в дом выхлопных газов и холода.Так как гараж не планируется отапливать.Хотя с другой стороны-кладовая на 1-м этаже(в последнем варианте) тоже необходима(хотя бы для того,что бы поставить в ней консервацию),но возникает вопрос-надо ли ее отапливать? Возможно окно в санузле на 1-м этаже лучше бы смотрелось со стороны центрального входа,а окно выходящее на гараж - убрать. Второй этаж. Все-таки склоняюсь к тому,что более практично с моей точки зрения в планировке бы смотрелось: -продлить кладовую(4,8м) за счет ванной (8,4м),которую разделить на две части (1-я часть под кладовую,2-я часть под туалет); -коридор (12,92м) продлить до ванной (10,2), вход в ванную сделать из коридора, рядом с туалетом. Не хотелось бы делать мансардные окна (ну не нравятся они мне просто!!!) Извините не знаю как правильно называется участок кровли в виде домика который выходит у меня над лестницей,возможно ли обойтись без него,или это более проблематично. И если не тяжело расскажите по раскладке по плитам перекрытия,как в последнем варианте это выглядит и какие плиты? Змінено 9 січня 2010 користувачем as1976as Посилання на коментар Поділитися на інших сайтах More sharing options...
Tugarin Опубліковано: 9 січня 2010 Поділитись Опубліковано: 9 січня 2010 Возник вопрос а насколько нужен выход из гаража в дом... Если не тяжело будет носить покупки из гаража в дом через ворота-входную дверь и так далее, то можно и не делать. ...Хотя с другой стороны-кладовая на 1-м этаже(в последнем варианте) тоже необходима(хотя бы для того,что бы поставить в ней консервацию),но возникает вопрос-надо ли ее отапливать?... Мое мнение- отапливать ее не надо, но и расчитывать, что ее можно будет использовать как холодильник тоже не стоит, а вот вытяжка в ней, в таком случае- не помешает. ...Второй этаж. Все-таки склоняюсь к тому,что более практично с моей точки зрения в планировке бы смотрелось... Переделаю сегодня-завтра. ...Извините не знаю как правильно называется участок кровли в виде домика который выходит у меня над лестницей,возможно ли обойтись без него,или это более проблематично... Возможно. ...И если не тяжело расскажите по раскладке по плитам перекрытия,как в последнем варианте это выглядит и какие плиты? Тоже сделаю сегодня-завтра. 1 Посилання на коментар Поділитися на інших сайтах More sharing options...
as1976as Опубліковано: 10 січня 2010 Автор Поділитись Опубліковано: 10 січня 2010 Второй этаж. Все-таки склоняюсь к тому,что более практично с моей точки зрения в планировке бы смотрелось: -продлить кладовую(4,8м) за счет ванной (8,4м),которую разделить на две части (1-я часть под кладовую,2-я часть под туалет); -коридор (12,92м) продлить до ванной (10,2), вход в ванную сделать из коридора, рядом с туалетом. попробовал нарисовать изменения сам Посилання на коментар Поділитися на інших сайтах More sharing options...
Tugarin Опубліковано: 10 січня 2010 Поділитись Опубліковано: 10 січня 2010 ...попробовал нарисовать изменения сам... Можно так, или так: 1 Посилання на коментар Поділитися на інших сайтах More sharing options...
Tugarin Опубліковано: 10 січня 2010 Поділитись Опубліковано: 10 січня 2010 По раскладке плит сегодня наверное не получится, потерпите до завтра? Посилання на коментар Поділитися на інших сайтах More sharing options...
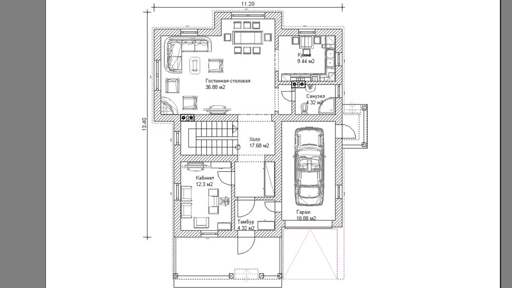
vickov Опубліковано: 10 січня 2010 Поділитись Опубліковано: 10 січня 2010 По раскладке плит сегодня наверное не получится, потерпите до завтра? А как Вам вот такой вариант 1-го этажа? Гараж сместили. Увеличили чуть-чуть санузел. Вход в кухню из гостинной. Выход из кухни в беседку - на освободившееся от гаража место. 1 Посилання на коментар Поділитися на інших сайтах More sharing options...
Tugarin Опубліковано: 10 січня 2010 Поділитись Опубліковано: 10 січня 2010 А как Вам вот такой ... Так это Вы у автора ветки спрашивайте, а не у меня Посилання на коментар Поділитися на інших сайтах More sharing options...
Рекомендовані повідомлення
Створіть акаунт або увійдіть у нього для коментування
Ви маєте бути користувачем, щоб залишити коментар
Створити акаунт
Зареєструйтеся для отримання акаунта. Це просто!
Зареєструвати акаунтУвійти
Вже зареєстровані? Увійдіть тут.
Увійти зараз