vickov Опубліковано: 10 січня 2010 Поділитись Опубліковано: 10 січня 2010 Так это Вы у автора ветки спрашивайте, а не у меня Посмотрим, что автор ответит Из множества разных вариантов, мне больше по душе планы этажей в этой теме. Как-то все прогнозируемо и понятно. А фасад под эти планы я бы выбрал как на проекте A-027-P Классика architek.spb.ru/ready_projects/projects/kottedzh_klassika/ Посилання на коментар Поділитися на інших сайтах More sharing options...
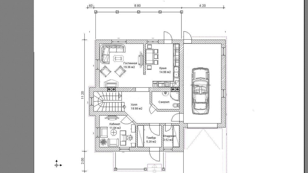
as1976as Опубліковано: 11 січня 2010 Автор Поділитись Опубліковано: 11 січня 2010 А как Вам вот такой вариант 1-го этажа? Гараж сместили. Увеличили чуть-чуть санузел. Вход в кухню из гостинной. Выход из кухни в беседку - на освободившееся от гаража место. возможно имеет шанс на жизнь проход через гостинную на кухню и изменение санузла в холле,но уже при увеличенных размерах дома по длине.Вечером обсудим этот вопрос с женой.Смещение гаража вперед не подходит из-за оставленого перед гаражем места под парковку авто. Посилання на коментар Поділитися на інших сайтах More sharing options...
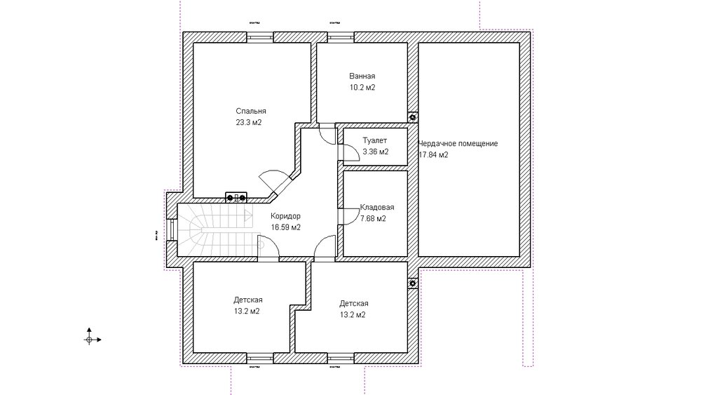
as1976as Опубліковано: 14 січня 2010 Автор Поділитись Опубліковано: 14 січня 2010 Благодаря Сергею(TUGARIN) и vickov немного поменял по внутрянке и пока пришли к мысли что так подходит больше. фасады в принципе пока оставляем также, только хотелось заместо штукатурки сделать кирпич (персик и коричневый, основной-персик).Это если можно отдельная просьба к тем кто это может сделать. Посилання на коментар Поділитися на інших сайтах More sharing options...
Tugarin Опубліковано: 14 січня 2010 Поділитись Опубліковано: 14 січня 2010 ...немного поменял по внутрянке и пока пришли к мысли что так подходит больше... Единственное что меня смущает, так это поход из родительской спальни ночью в туалет, может стоит поменять кладовую и туалет местами? Посилання на коментар Поділитися на інших сайтах More sharing options...
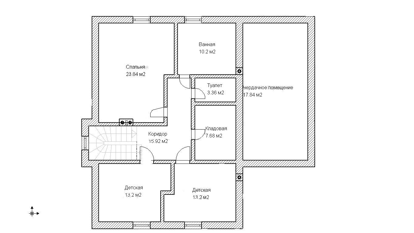
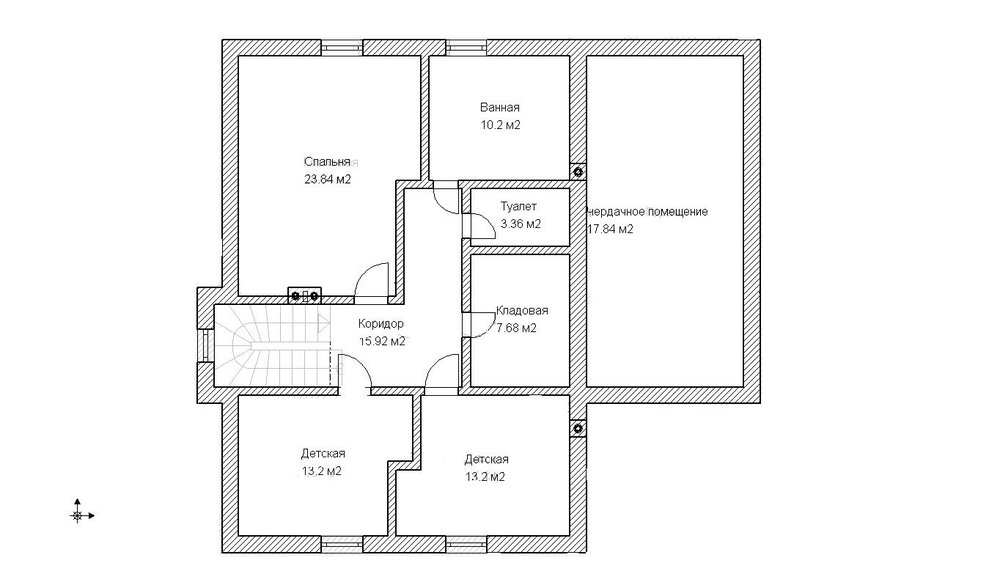
as1976as Опубліковано: 14 січня 2010 Автор Поділитись Опубліковано: 14 січня 2010 Единственное что меня смущает, так это поход из родительской спальни ночью в туалет, может стоит поменять кладовую и туалет местами? А если так Посилання на коментар Поділитися на інших сайтах More sharing options...
Tugarin Опубліковано: 14 січня 2010 Поділитись Опубліковано: 14 січня 2010 А если так [ATTACH]38334[/ATTACH] Так годится тоже, или так: Посилання на коментар Поділитися на інших сайтах More sharing options...
as1976as Опубліковано: 14 січня 2010 Автор Поділитись Опубліковано: 14 січня 2010 Так годится тоже, или так: И снова спасибо так гораздо интересней.Сергей а вы не можете поменять на фасадах штукатурку на кирпич. Посилання на коментар Поділитися на інших сайтах More sharing options...
Tugarin Опубліковано: 14 січня 2010 Поділитись Опубліковано: 14 січня 2010 И снова спасибо так гораздо интересней И,думаю,- удобней (ИМХО). 1 Посилання на коментар Поділитися на інших сайтах More sharing options...
vickov Опубліковано: 14 січня 2010 Поділитись Опубліковано: 14 січня 2010 И снова спасибо так гораздо интересней.Сергей а вы не можете поменять на фасадах штукатурку на кирпич. Я к обсуждению не попал, поэтому могу только констатировать факт, что крайний вариант действительно интересней. Посилання на коментар Поділитися на інших сайтах More sharing options...
as1976as Опубліковано: 14 січня 2010 Автор Поділитись Опубліковано: 14 січня 2010 Я к обсуждению не попал, поэтому могу только констатировать факт, что крайний вариант действительно интересней. А еще я хотел бы задать вопрос относительно двери из комнаты, которая ближе к лестнице. Представим, что во время того, как кто-то поднимается наверх, неожиданно открывается дверь... Хотя, до двери еще приличное расстояние, вроде. а мы возьмем ее и будем открывать внутрь Посилання на коментар Поділитися на інших сайтах More sharing options...
vickov Опубліковано: 15 січня 2010 Поділитись Опубліковано: 15 січня 2010 а мы возьмем ее и будем открывать внутрь Я сначала задал вопрос, а потом подумал и удалил, но, оказывается, на него все таки успели ответить Посилання на коментар Поділитися на інших сайтах More sharing options...
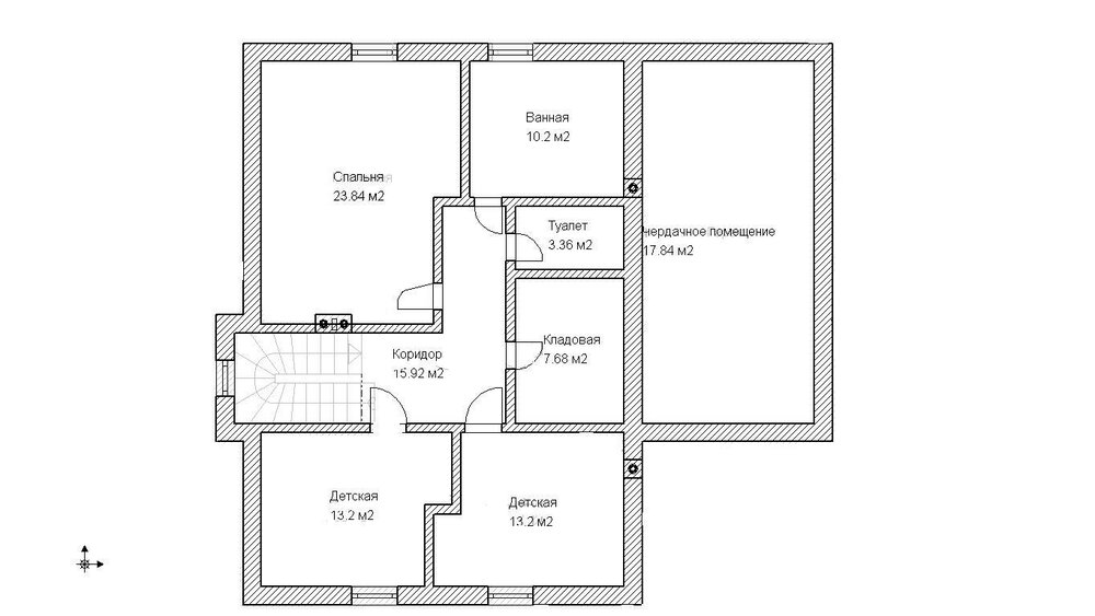
Tugarin Опубліковано: 18 січня 2010 Поділитись Опубліковано: 18 січня 2010 Надеюсь правильно понял: 2 Посилання на коментар Поділитися на інших сайтах More sharing options...
as1976as Опубліковано: 19 січня 2010 Автор Поділитись Опубліковано: 19 січня 2010 Надеюсь правильно понял: Сергей спасибо .Хотел спросить а в какой программе вы это рисуете.Может попробовать самому чтоб не надоедать вам.В живую вижу по цвету кирпича примерно так И теперь как говориться предстоят муки выбора между №1 и №2 что будет лучше смотреться по фасаду и по кровле. И вопрос к специалистам насколько более трудоемкий вариант№1 по сравнению с №2(под трудоемким имею ввиду финансовый вопрос и вопрос дальнейшей эксплуатации Посилання на коментар Поділитися на інших сайтах More sharing options...
Tugarin Опубліковано: 19 січня 2010 Поділитись Опубліковано: 19 січня 2010 Сергей спасибо .Хотел спросить а в какой программе вы это рисуете... Программа Arcon, дело в том что подобрать в ней реальную текстуру сложно, в стандартных наборах ее нет, нужно искать и вставлять, но вставлять не просто, а сначала обработав в фотошопе... Другой способ прогамма 3ds Max, но "с наскоку" в ней не разобраться. 2 Посилання на коментар Поділитися на інших сайтах More sharing options...
ДОКС Опубліковано: 20 січня 2010 Поділитись Опубліковано: 20 січня 2010 И вопрос к специалистам насколько более трудоемкий вариант№1 по сравнению с №2(под трудоемким имею ввиду финансовый вопрос и вопрос дальнейшей эксплуатации [/size][/color] Прошу прощения, но нельзя же так подходить к данному вопросу... Необходимо: 1. Окончательно доделать проекты. 2. Сделать расчёт ВСЕХ материалов и ВСЕХ работ. 3. Просчитать эксплуатационные составляющие (свет, газ, вода и т.д.). 4. Принять решение. 1 Посилання на коментар Поділитися на інших сайтах More sharing options...
as1976as Опубліковано: 20 січня 2010 Автор Поділитись Опубліковано: 20 січня 2010 Прошу прощения, но нельзя же так подходить к данному вопросу... Необходимо: 1. Окончательно доделать проекты. 2. Сделать расчёт ВСЕХ материалов и ВСЕХ работ. 3. Просчитать эксплуатационные составляющие (свет, газ, вода и т.д.). 4. Принять решение. Спасибо Большое за ответ Дмитрий-если я правильно понял .Я просто неправильно написал суть вопроса имелся ввиду (курятник над лестницей). Проект я пока неделал хочется сначала обрисовать все помещения а потом уже переходить к проекту.Я вижу уже это близко.А при помощи форумчан в обсуждениях даже уже где-то и рядом. 1 Посилання на коментар Поділитися на інших сайтах More sharing options...
ДОКС Опубліковано: 20 січня 2010 Поділитись Опубліковано: 20 січня 2010 Прошу прощения, но нельзя же так подходить к данному вопросу... Необходимо: 1. Окончательно доделать проекты. 2. Сделать расчёт ВСЕХ материалов и ВСЕХ работ. 3. Просчитать эксплуатационные составляющие (свет, газ, вода и т.д.). 4. Принять решение. Спасибо Большое за ответ Дмитрий-если я правильно понял .Я просто неправильно написал суть вопроса имелся ввиду (курятник над лестницей). Проект я пока неделал хочется сначала обрисовать все помещения а потом уже переходить к проекту.Я вижу уже это близко.А при помощи форумчан в обсуждениях даже уже где-то и рядом. Пожалуйста. Надо будет помочь - обращайтесь. Помогу нарисовать и построить. Посилання на коментар Поділитися на інших сайтах More sharing options...
ДОКС Опубліковано: 20 січня 2010 Поділитись Опубліковано: 20 січня 2010 Пожалуйста. Нужна будет помощь - обращайтесь, работаю по всей области. Нарисуем и построим. 1 Посилання на коментар Поділитися на інших сайтах More sharing options...
vickov Опубліковано: 20 січня 2010 Поділитись Опубліковано: 20 січня 2010 В первую очередь удачи as1976as в реализации проекта. И еще раз в первую очередь благодарность заслуживает Tugarin за сопровождение этой темы. Параллельно с рождением проекта as1976as рассматривал кучу вариантов для себя. Пока не определился на все 100%. Много вопросов. Стоим перед выбором - 1 этаж или 2 этажа. Гараж в доме или нет. Пока склоняемся к тому, что для нашей семьи из 4-х человек достаточно одного этажа, но еще не определились даже с проектом размещения. Очень помогла эта тема, рассматривали вариант одноэтажного дома с размещением вместо гаража жилого помещения в сообщении №49 этой темы. Но все равно пока еще в творческом поиске... 1 Посилання на коментар Поділитися на інших сайтах More sharing options...
ДОКС Опубліковано: 20 січня 2010 Поділитись Опубліковано: 20 січня 2010 В первую очередь удачи as1976as в реализации проекта. Параллельно с рождением проекта as1976as рассматривал кучу вариантов для себя. Пока не определился на все 100%. Много вопросов. Стоим перед выбором - 1 этаж или 2 этажа. Гараж в доме или нет. Пока склоняемся к тому, что для нашей семьи из 4-х человек достаточно одного этажа, но еще не определились даже с проектом размещения. Очень помогла эта тема, рассматривали вариант одноэтажного дома с размещением вместо гаража жилого помещения в сообщении №49 этой темы. Но все равно пока еще в творческом поиске... Умоляю и очень прошу - не спешите начинать вкладывать деньги даже в проект. Продумайте всё до мелочей - бумага и карандаш и Гугл Вам в помощь. Не пожалеете если пойдёте подобным путём. не сочтите за "флуд"... Посилання на коментар Поділитися на інших сайтах More sharing options...
vickov Опубліковано: 20 січня 2010 Поділитись Опубліковано: 20 січня 2010 Умоляю и очень прошу - не спешите начинать вкладывать деньги даже в проект. Продумайте всё до мелочей - бумага и карандаш и Гугл Вам в помощь. Не пожалеете если пойдёте подобным путём. не сочтите за "флуд"... Мы в творческом поиске того, что нам нужно. Все зависит от того, где мы надумаем строиться. То ли это будет дом для постоянного проживания, то ли это будет дачный вариант... Мелочи продумываются... 1 Посилання на коментар Поділитися на інших сайтах More sharing options...
Рекомендовані повідомлення
Створіть акаунт або увійдіть у нього для коментування
Ви маєте бути користувачем, щоб залишити коментар
Створити акаунт
Зареєструйтеся для отримання акаунта. Це просто!
Зареєструвати акаунтУвійти
Вже зареєстровані? Увійдіть тут.
Увійти зараз