SABOFF Опубліковано: 20 січня 2010 Поділитись Опубліковано: 20 січня 2010 Продается строительный проект. Не использовал, купил готовый дом. Цена 350 у.е. звоните 050 три тройки 1 три девятки. Сергей. Посилання на коментар Поділитися на інших сайтах More sharing options...
annaf Опубліковано: 21 січня 2010 Поділитись Опубліковано: 21 січня 2010 Продается строительный проект. Не использовал, купил готовый дом. Цена 350 у.е. звоните 050 три тройки 1 три девятки. Сергей. сколько общая площадь по этажам и того? Здесь, как я понял, наличествует промежуточная комната? Посилання на коментар Поділитися на інших сайтах More sharing options...
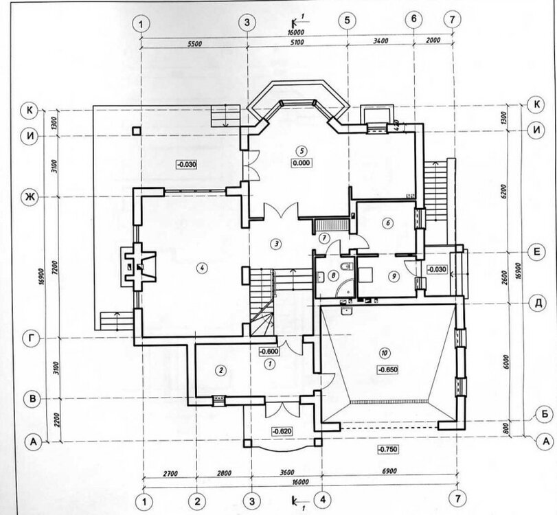
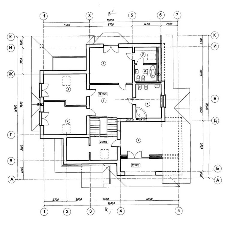
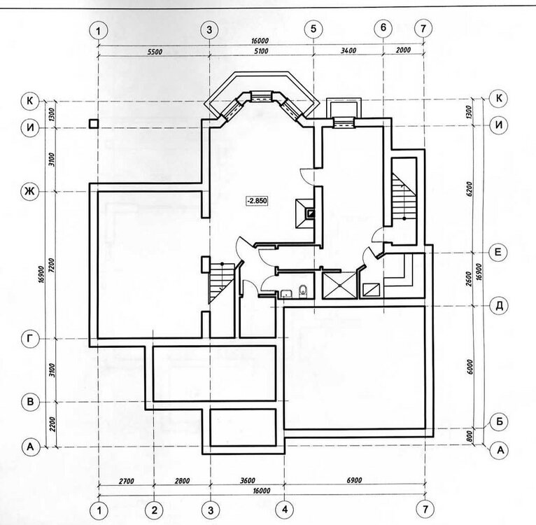
SABOFF Опубліковано: 22 січня 2010 Автор Поділитись Опубліковано: 22 січня 2010 (змінено) сколько общая площадь по этажам и того? Здесь, как я понял, наличествует промежуточная комната? Верно,над гаражом кабинет(гостевая). Жилая площадь-111 квадратов, общая 414,8 квадратов. Эксклюзивный проект васильковского архитектора Виктора Лавринчука. Разработан с привязкой к восточному направлению участка(фасад дома,входная дверь- смотрит на восток.) Также в разработке проекта учитывались основополагающие принципы фен-шуй Лилиан Ту для знаков компасного направления от юго-востока до запада(наша семья это лошадь,петух,змея и овца). Змінено 22 січня 2010 користувачем SABOFF Посилання на коментар Поділитися на інших сайтах More sharing options...
lord Опубліковано: 23 січня 2010 Поділитись Опубліковано: 23 січня 2010 ......(наша семья это лошадь,петух,змея и овца)..... ИНТЕРЕСНАЯ СИМЕЙКА Посилання на коментар Поділитися на інших сайтах More sharing options...
FLASH Опубліковано: 24 січня 2010 Поділитись Опубліковано: 24 січня 2010 красивый дом, правда смущает что из 400 квадратов жилых всего 100. 8) Как то неэкономно выходит. У меня жилой площади процентов 70 от общей если гараж не считать. Посилання на коментар Поділитися на інших сайтах More sharing options...
SABOFF Опубліковано: 25 січня 2010 Автор Поділитись Опубліковано: 25 січня 2010 ......(наша семья это лошадь,петух,змея и овца)..... ИНТЕРЕСНАЯ СИМЕЙКА ...не вырывайте фразы из текста, это не корректно. Посилання на коментар Поділитися на інших сайтах More sharing options...
SABOFF Опубліковано: 25 січня 2010 Автор Поділитись Опубліковано: 25 січня 2010 красивый дом, правда смущает что из 400 квадратов жилых всего 100. 8) Как то неэкономно выходит. У меня жилой площади процентов 70 от общей если гараж не считать. Согласен.Кто строит экономные дома, как правило не выходит за рамки 150-200 квадратов...Я был в похожем доме, только без подвала и поверьте, он не кажется большим... Но ведь не зря говорят, что на вкус и цвет-товарищей нет... Мы купили дом в 220 квадратов без подвала и нам уже тесновато...Огурчики помидорчики хранить не где...,баньку свою хочется..., а когда собираются в доме человек 10-15... хочется еще парочку комнат, гараж на две машины и третий санузел... Посилання на коментар Поділитися на інших сайтах More sharing options...
lord Опубліковано: 25 січня 2010 Поділитись Опубліковано: 25 січня 2010 ...не вырывайте фразы из текста, это не корректно. я не со зла просто настоение себе и вам поднять и заодно поднял темку 1 Посилання на коментар Поділитися на інших сайтах More sharing options...
SABOFF Опубліковано: 27 січня 2010 Автор Поділитись Опубліковано: 27 січня 2010 опускаю цену до 300 уев. Посилання на коментар Поділитися на інших сайтах More sharing options...
FLASH Опубліковано: 27 січня 2010 Поділитись Опубліковано: 27 січня 2010 опускаю цену до 300 уев. ниже смысла нет. типовой стоит 250. я свой проект тоже за 300 продал Посилання на коментар Поділитися на інших сайтах More sharing options...
SABOFF Опубліковано: 28 січня 2010 Автор Поділитись Опубліковано: 28 січня 2010 ниже смысла нет. типовой стоит 250. я свой проект тоже за 300 продал +1. Для разнообразия поставлю 299 уев.;) Посилання на коментар Поділитися на інших сайтах More sharing options...
FLASH Опубліковано: 28 січня 2010 Поділитись Опубліковано: 28 січня 2010 но домик красивый зараза. а что там в проект входит? по материалам расчет нет? Посилання на коментар Поділитися на інших сайтах More sharing options...
SABOFF Опубліковано: 29 січня 2010 Автор Поділитись Опубліковано: 29 січня 2010 но домик красивый зараза. а что там в проект входит? по материалам расчет нет? Красивый...Есть расчеты всех фундаментов и строительных материалов, а так же крыши. Указаны каналы вентиляции...ну и т.п. Делался реальный расчет сметы на строительство на апрель 2009 года с визуализацией проекта... Посилання на коментар Поділитися на інших сайтах More sharing options...
FLASH Опубліковано: 29 січня 2010 Поділитись Опубліковано: 29 січня 2010 Красивый...Есть расчеты всех фундаментов и строительных материалов, а так же крыши. Указаны каналы вентиляции...ну и т.п. Делался реальный расчет сметы на строительство на апрель 2009 года с визуализацией проекта... тогда это шара вообще Посилання на коментар Поділитися на інших сайтах More sharing options...
SABOFF Опубліковано: 1 лютого 2010 Автор Поділитись Опубліковано: 1 лютого 2010 тогда это шара вообще ...где же белые грибы, подумал Штирлиц,пятый час бродя по лесу... наверное не сезон,предположил Борман..., снимая лыжи... Посилання на коментар Поділитися на інших сайтах More sharing options...
SABOFF Опубліковано: 3 лютого 2010 Автор Поділитись Опубліковано: 3 лютого 2010 ...Весна уже не за горами... 298 за проект. Дешевле только нарисовать самому...;) Посилання на коментар Поділитися на інших сайтах More sharing options...
SABOFF Опубліковано: 8 лютого 2010 Автор Поділитись Опубліковано: 8 лютого 2010 297 у.е. Посилання на коментар Поділитися на інших сайтах More sharing options...
SABOFF Опубліковано: 11 лютого 2010 Автор Поділитись Опубліковано: 11 лютого 2010 цена кризисная 296 ;) Посилання на коментар Поділитися на інших сайтах More sharing options...
SABOFF Опубліковано: 15 лютого 2010 Автор Поділитись Опубліковано: 15 лютого 2010 ...295 и прораба в придачу.. Посилання на коментар Поділитися на інших сайтах More sharing options...
Рекомендовані повідомлення
Створіть акаунт або увійдіть у нього для коментування
Ви маєте бути користувачем, щоб залишити коментар
Створити акаунт
Зареєструйтеся для отримання акаунта. Це просто!
Зареєструвати акаунтУвійти
Вже зареєстровані? Увійдіть тут.
Увійти зараз