Проблема Опубліковано: 21 січня 2010 Поділитись Опубліковано: 21 січня 2010 Уважаемые дизайнеры и просто любители.Достраиваем домик на Осокорках.При планировке хотелось получить побольше жилой плошади при небольшой строительной площади. Вот и получилась маленькая кухня.Но если учесть что постоянно мы там жить не собираемся,то нам хватит.Но возникла проблема как раставить мебель и что можно придумать при таком метраже ,да еще с двумя окнами и двумя входами.Еще и холодильник надо поставить и хоть небольшой столик и пару стульчиков. Помогите советом,а то рисуем сами уже не один день,а толку...... Посилання на коментар Поділитися на інших сайтах More sharing options...
Проблема Опубліковано: 21 січня 2010 Автор Поділитись Опубліковано: 21 січня 2010 Уважаемые дизайнеры и просто любители.Достраиваем домик на Осокорках.При планировке хотелось получить побольше жилой плошади при небольшой строительной площади. Вот и получилась маленькая кухня.Но если учесть что постоянно мы там жить не собираемся,то нам хватит.Но возникла проблема как раставить мебель и что можно придумать при таком метраже ,да еще с двумя окнами и двумя входами.Еще и холодильник надо поставить и хоть небольшой столик и пару стульчиков. Помогите советом,а то рисуем сами уже не один день,а толку...... поднимаю тему,а то куда-то потерялась..... Посилання на коментар Поділитися на інших сайтах More sharing options...
Genkot Опубліковано: 21 січня 2010 Поділитись Опубліковано: 21 січня 2010 Подскажу только то, что недостаточно информации Посилання на коментар Поділитися на інших сайтах More sharing options...
Проблема Опубліковано: 21 січня 2010 Автор Поділитись Опубліковано: 21 січня 2010 Подскажу только то, что недостаточно информации А какая нужна? Если можно напишите вопросы,пожалуйста Посилання на коментар Поділитися на інших сайтах More sharing options...
Genkot Опубліковано: 21 січня 2010 Поділитись Опубліковано: 21 січня 2010 А какая нужна? Если можно напишите вопросы,пожалуйста Нужен более детальный обмерочный план, с привязками проёмов во всех плоскостях, высота помещения. Фотографии желательны, в моём конкретном случае - обязательны. 1 Посилання на коментар Поділитися на інших сайтах More sharing options...
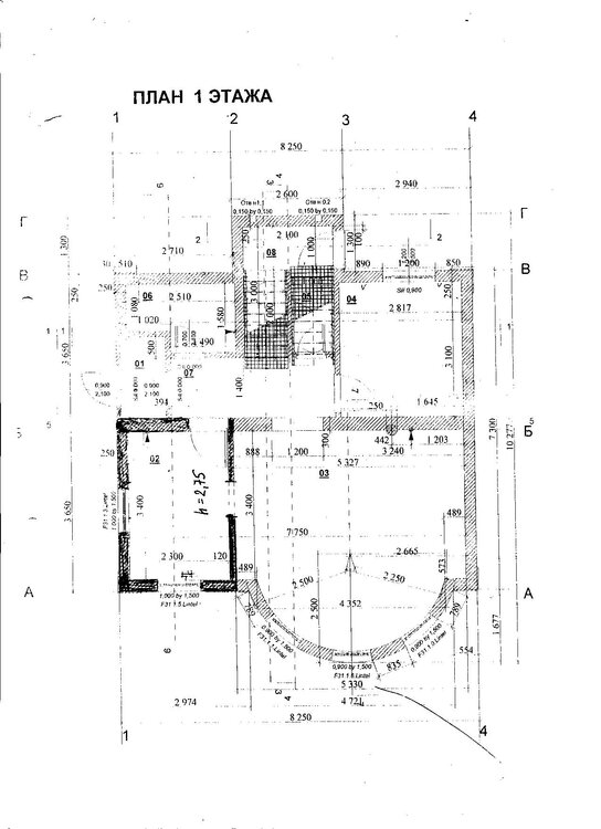
Проблема Опубліковано: 21 січня 2010 Автор Поділитись Опубліковано: 21 січня 2010 Нужен более детальный обмерочный план, с привязками проёмов во всех плоскостях, высота помещения. Фотографии желательны, в моём конкретном случае - обязательны. Я прикрепила план этажа с кухней (выделила жирным контуром) Высота потолков 2,75,фото сделаю в выходные и тоже отправлю. Помогите,если есть возможность.....плиз... Посилання на коментар Поділитися на інших сайтах More sharing options...
Genkot Опубліковано: 21 січня 2010 Поділитись Опубліковано: 21 січня 2010 Ничего не видно. Будете в выходные на объекте, сделайте обмер, подробный, с привязками всех проёмов, сделайте фото. С планировкой помогу, не сложно 1 Посилання на коментар Поділитися на інших сайтах More sharing options...
Genkot Опубліковано: 21 січня 2010 Поділитись Опубліковано: 21 січня 2010 С планировкой помогу, не сложно Планировка - не визуализация. Посилання на коментар Поділитися на інших сайтах More sharing options...
Проблема Опубліковано: 21 січня 2010 Автор Поділитись Опубліковано: 21 січня 2010 Планировка - не визуализация. если бы я понимала о чем Вы?.... Я не архитектор и не дизайнер и мне сложно в терминах.Можно попроще? Посилання на коментар Поділитися на інших сайтах More sharing options...
Genkot Опубліковано: 21 січня 2010 Поділитись Опубліковано: 21 січня 2010 Первая картинка - планировка с расстановкой мебели, вторая - 3d визуализация интерьера 1 Посилання на коментар Поділитися на інших сайтах More sharing options...
Проблема Опубліковано: 21 січня 2010 Автор Поділитись Опубліковано: 21 січня 2010 Первая картинка - планировка с расстановкой мебели, вторая - 3d визуализация интерьера Подскажите,пожалуйста,ставят ли плиты под окном? Возможен ли такой вариант Посилання на коментар Поділитися на інших сайтах More sharing options...
Genkot Опубліковано: 21 січня 2010 Поділитись Опубліковано: 21 січня 2010 Подскажите,пожалуйста,ставят ли плиты под окном? Возможен ли такой вариант Вытяжка над плитой планируется, шторы или жалюзи на окно? Посилання на коментар Поділитися на інших сайтах More sharing options...
zar Опубліковано: 21 січня 2010 Поділитись Опубліковано: 21 січня 2010 Уважаемые дизайнеры и просто любители. Помогите советом,а то рисуем сами уже не один день,а толку...... Сделал для вас небольшую визуализацию ,сразу скажу-это не дизайн проэкт (в плане выбора покрытий,кафеля,фасадов и т.д.),а всего лишь вариант расстановки мебели согласно вашего плана помещения. Подскажите,пожалуйста,ставят ли плиты под окном? Возможен ли такой вариант Как мебельщик, могу сказать, что в принципе вариант возможный,хотя и довольно редко используемый.Плюсы данного решения:1.Естественный источник вентиляции;2.Естественный источник света;3.Ну,и хозяйке помешивая супчик в окно посмотреть на птичек,наверное приятно:D. Минусы:1.Довольно быстро будет пачкаться окно и занавески (если активно готовить);2.Невозможно установить принудительную вентиляцию над плитой;3.Опасность возгорания в случае использования газовой плиты (открытое пламя с декором окна не дружит). 1 Посилання на коментар Поділитися на інших сайтах More sharing options...
Проблема Опубліковано: 25 січня 2010 Автор Поділитись Опубліковано: 25 січня 2010 Вытяжка над плитой планируется, шторы или жалюзи на окно? Вытяжку не планируем,шторы-исключено(возгорание может быть.Думаю,жалюзя плотно к стеклу.Может другой вариант....думаем. Посилання на коментар Поділитися на інших сайтах More sharing options...
Проблема Опубліковано: 25 січня 2010 Автор Поділитись Опубліковано: 25 січня 2010 Сделал для вас небольшую визуализацию ,сразу скажу-это не дизайн проэкт (в плане выбора покрытий,кафеля,фасадов и т.д.),а всего лишь вариант расстановки мебели согласно вашего плана помещения. Как мебельщик, Спасибо,очень красиво получилось.А можно прорисовать еще вариант с холодильником в углу ( в одну линию с мебелью).А столик с одной ножкой прикрепить к окну и с двух сторон по стульчику? И еще ,Вы делаете такую мебель или только дизайн? Посилання на коментар Поділитися на інших сайтах More sharing options...
zar Опубліковано: 25 січня 2010 Поділитись Опубліковано: 25 січня 2010 Спасибо,очень красиво получилось.А можно прорисовать еще вариант с холодильником в углу ( в одну линию с мебелью).А столик с одной ножкой прикрепить к окну и с двух сторон по стульчику? Рад,что Вам понравилось.Нарисовал еще два варианта,сначала с учётом Ваших пожеланий(на первых двух эскизах).А,потом немного изменил(остальные эскизы),так как при первом варианте -проблематично пользоваться холодильником,да и места для посадки- тоже остается мало(если стол поставить напротив окна). И еще ,Вы делаете такую мебель или только дизайн?Мебель делаем, а рисуем как раз для воплощения "идей и желаний в жизнь":). 1 Посилання на коментар Поділитися на інших сайтах More sharing options...
Проблема Опубліковано: 26 січня 2010 Автор Поділитись Опубліковано: 26 січня 2010 Рад,что Вам понравилось.Нарисовал еще два варианта,сначала с учётом Ваших пожеланий(на первых двух эскизах).А,потом немного изменил(остальные эскизы),так как при первом варианте -проблематично пользоваться холодильником,да и места для посадки- тоже остается мало(если стол поставить напротив окна). Мебель делаем, а рисуем как раз для воплощения "идей и желаний в жизнь":). Суппер! Второй вариант подходит,это то что мне надо.А можно будет у Вас заказать?И сколько может эта красота стоить? Мне не надо из натур.материалов.Живем там только летом.Если можно рассскажите что можно предложить из эконом.вариантов? Стол и стулья есть. Посилання на коментар Поділитися на інших сайтах More sharing options...
zar Опубліковано: 26 січня 2010 Поділитись Опубліковано: 26 січня 2010 Суппер! Второй вариант подходит,это то что мне надо.А можно будет у Вас заказать?И сколько может эта красота стоить? Спасибо,всегда приятно, когда твоя работа кому-то нравится .Для того, чтобы я смог дать ответ:"сколько может эта красота стоить?" -покажу Вам образцы кухонь с разными видами фасадов(материалы подписал на фото). Если можно рассскажите что можно предложить из эконом.вариантов?Теперь, по мере возростания стоимости,о вариантах,:1.самый доступный вариант - это когда фасадная часть делается из ДСП;2.фасады по технологии "софтформинг"(тоже ДСП,но фрезерованное и ламированное по краю);3.фасады из рамочного МДФ профиля;4.фасады из пленочного МДФ;5.фасады из крашенного МДФ;6.фасады из алюминиевого профиля.Каждый вариант имеет свои"+" и "-".В вашем случае,я бы смотрел в сторону МДФ фасадов может в комбинации с рамочным или алюм.профилем,но решать конечно Вам.Также, многое зависит от внутреннего наполнения кухни (сушки,выдвижные корзинки(карго),плинтуса кухон. и т.п. Так что,посчитать не сложно,но нужно более четко представлять -чтобы Вы хотели. 1 Посилання на коментар Поділитися на інших сайтах More sharing options...
Андрей "А Буд С" Опубліковано: 26 січня 2010 Поділитись Опубліковано: 26 січня 2010 рассмотрите вариант с центральным расположением плиты с проходом от окна , мебель по варианту 11 вдоль "входа" и другого "окна" 1 Посилання на коментар Поділитися на інших сайтах More sharing options...
Проблема Опубліковано: 27 січня 2010 Автор Поділитись Опубліковано: 27 січня 2010 [QUOТак что,посчитать не сложно,но нужно более четко представлять -чтобы Вы хотели. Спасибо большое.Мне подходить вариант на втором рис.(синий),но тумбы на ножках,сушка над мойкой,в тумбах только полочки и никакого металла.Расчитайте ,пожалуйста ,по моим размерам. Посилання на коментар Поділитися на інших сайтах More sharing options...
zar Опубліковано: 27 січня 2010 Поділитись Опубліковано: 27 січня 2010 Спасибо большое.Мне подходить вариант на втором рис.(синий),но тумбы на ножках,сушка над мойкой,в тумбах только полочки и никакого металла.Расчитайте ,пожалуйста ,по моим размерам. Информацию отправил в личку. Посилання на коментар Поділитися на інших сайтах More sharing options...
atis-ukraine Опубліковано: 27 січня 2010 Поділитись Опубліковано: 27 січня 2010 2.Невозможно установить принудительную вентиляцию над плитой;. ... А как же островная вытяжка? Посилання на коментар Поділитися на інших сайтах More sharing options...
zar Опубліковано: 28 січня 2010 Поділитись Опубліковано: 28 січня 2010 ... А как же островная вытяжка? Согласен,сделать в нашей жизни можно всё.Только давайте не забывать, что прайс на подобные модели от 800$,что может превышать стоимость самой кухни. Посилання на коментар Поділитися на інших сайтах More sharing options...
Рекомендовані повідомлення
Створіть акаунт або увійдіть у нього для коментування
Ви маєте бути користувачем, щоб залишити коментар
Створити акаунт
Зареєструйтеся для отримання акаунта. Це просто!
Зареєструвати акаунтУвійти
Вже зареєстровані? Увійдіть тут.
Увійти зараз