Таня+Саша Опубліковано: 31 січня 2010 Поділитись Опубліковано: 31 січня 2010 Выбрали проект. Проживать будут 2 взрослых + 2 ребенка. Как Вам? Может, кто уже строится по этому проекту? 1 Посилання на коментар Поділитися на інших сайтах More sharing options...
ДОКС Опубліковано: 31 січня 2010 Поділитись Опубліковано: 31 січня 2010 вполне пристойно и без фанатизма... если нравится - стройтесь...!!! Посилання на коментар Поділитися на інших сайтах More sharing options...
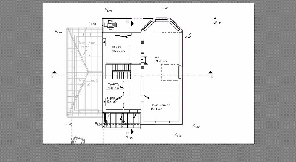
alexmetall Опубліковано: 31 січня 2010 Поділитись Опубліковано: 31 січня 2010 Я бы переместил лестницу на место санузла( а сам санузел - под лестницу) Из кухни сделал дверь в гостинную. Или кухню переместил к гостинной И 2 этаж сделал мансардным - чердачное пространство все равно практически не используется. Посилання на коментар Поділитися на інших сайтах More sharing options...
zalstas Опубліковано: 31 січня 2010 Поділитись Опубліковано: 31 січня 2010 (змінено) Можно типа этого проекта, эркер можно повернуть напротив кухни. По поводу 2этажа согласен с alexmetall. 1этаж можно поднять до 3м. Есть готовый этот проект, разные варианты поворот эркера с гаражом без гаража. Змінено 31 січня 2010 користувачем zalstas Посилання на коментар Поділитися на інших сайтах More sharing options...
ИНОЙ Опубліковано: 31 січня 2010 Поділитись Опубліковано: 31 січня 2010 Проект хороший, но как по мне, на втором этаже вместо холла сделать комнату или "второй свет". Посилання на коментар Поділитися на інших сайтах More sharing options...
as1976as Опубліковано: 31 січня 2010 Поділитись Опубліковано: 31 січня 2010 Вполне все продумано как на мой взгляд.Только поднять первый этаж до 3 м под подвесные пригодиться может. Посилання на коментар Поділитися на інших сайтах More sharing options...
Таня+Саша Опубліковано: 1 лютого 2010 Автор Поділитись Опубліковано: 1 лютого 2010 Честно говоря я тоже хочу на первом этаже потолки 3 метра. Муж против, говорит что 2,8м более чем достаточно. Пока обсуждаем.. И гостинную я тоже хотела вместе с кухней совметить, но в этом проекте между ними несущая стена с камином. Так что никак. Либо все нужно менять коренным образом. Посилання на коментар Поділитися на інших сайтах More sharing options...
Uliana Опубліковано: 17 лютого 2010 Поділитись Опубліковано: 17 лютого 2010 Здравствуйте, мне Очень нравится Ваш проект, из всех, которые я видела, мне он Очень понравился, только как мне кажется, на первом этаже хотелось бы какую-нибудь гардеробную. По поводу трех метров на первом этаже тоже соглашусь, потому как Очень мне нравятся подвесные потолки. И еще подскажите, пожалуйста, я правильно поняла Ваш проект, в нем с кухни и гостиной есть выход на террасу и если можно, дайте подробней информацию о Вашем проекте, уж Очень он хорош (правда, если мы его и возьмем как пример, для нашего будущего дома, то сделаем чуть меньше, потому как чуть больше 185 квадратов нам не хочется, а в целом, Спасибо за хорошую идею Посилання на коментар Поділитися на інших сайтах More sharing options...
Sopa Опубліковано: 24 лютого 2010 Поділитись Опубліковано: 24 лютого 2010 Честно говоря я тоже хочу на первом этаже потолки 3 метра. Муж против, говорит что 2,8м более чем достаточно. Пока обсуждаем.. И гостинную я тоже хотела вместе с кухней совметить, но в этом проекте между ними несущая стена с камином. Так что никак. Либо все нужно менять коренным образом. У Вас довольно большой зал и потолок в "чистоте" ниже 3м будет смотреться низким. Делайте везде на первом 3,1 метра, а где надо опустите гипсокартоном. Посилання на коментар Поділитися на інших сайтах More sharing options...
Рекомендовані повідомлення
Створіть акаунт або увійдіть у нього для коментування
Ви маєте бути користувачем, щоб залишити коментар
Створити акаунт
Зареєструйтеся для отримання акаунта. Це просто!
Зареєструвати акаунтУвійти
Вже зареєстровані? Увійдіть тут.
Увійти зараз