R-Aleksandr Опубліковано: 9 лютого 2010 Автор Поділитись Опубліковано: 9 лютого 2010 План варианта Подумали ли вы про сауну на втором этаже, да и про санузел там же... Посилання на коментар Поділитися на інших сайтах More sharing options...
zalstas Опубліковано: 9 лютого 2010 Поділитись Опубліковано: 9 лютого 2010 Подумали ли вы про сауну на втором этаже, да и про санузел там же... такой вариант, труба не помеха точно симнтрично шо на кухне Посилання на коментар Поділитися на інших сайтах More sharing options...
R-Aleksandr Опубліковано: 9 лютого 2010 Автор Поділитись Опубліковано: 9 лютого 2010 улучшенный вариант. Большое спасибо всем. Жду советов. Заранее благодарен Посилання на коментар Поділитися на інших сайтах More sharing options...
R-Aleksandr Опубліковано: 9 лютого 2010 Автор Поділитись Опубліковано: 9 лютого 2010 Есть еще o2c файлы и acp (Arcon) Посилання на коментар Поділитися на інших сайтах More sharing options...
ИНОЙ Опубліковано: 9 лютого 2010 Поділитись Опубліковано: 9 лютого 2010 Вот, отмеченные свесы, очень большие. Посилання на коментар Поділитися на інших сайтах More sharing options...
R-Aleksandr Опубліковано: 10 лютого 2010 Автор Поділитись Опубліковано: 10 лютого 2010 Вот, отмеченные свесы, очень большие. Согласен. Как считаете, просто уменьшить их или как-то технически решить? Посилання на коментар Поділитися на інших сайтах More sharing options...
R-Aleksandr Опубліковано: 10 лютого 2010 Автор Поділитись Опубліковано: 10 лютого 2010 Д) Попасть в туалет 1 этажа из кухни - возможно только преодолев 25 метров через гостиную. Сообщите эту новость жене – думаю не обрадуется. Е) Решение совмещения кухни – столовой и гостиной применяется в случае ограниченного пространства гостиной и для минимизации коридоров. Поскольку в данном проекте проблем с этим нет – думаю минусы от шума чайников, бленкеров, магнитолы на кухне, запахов готовящейся еды перекроют плюсы от объединения пространства. ИМХО Да и коридор данным мы не уменьшаем, оставляя его в 16 метров при 10 метровой спальне 1 этажа. Рекомендую предварительно побывать в доме с объединенными помещениями в момент приготовления еды на кухне и просмотра телевизора в гостиной. По-моему есть над чем подумать еще в проекте. Согласен, исправлено.... Жду еще советов Посилання на коментар Поділитися на інших сайтах More sharing options...
R-Aleksandr Опубліковано: 11 лютого 2010 Автор Поділитись Опубліковано: 11 лютого 2010 Что-то вяло пошло обсуждение. Вот вам "для затравочки":):) Посилання на коментар Поділитися на інших сайтах More sharing options...
R-Aleksandr Опубліковано: 11 лютого 2010 Автор Поділитись Опубліковано: 11 лютого 2010 Вопросы принимаютя, советы поощряются, критика приветствуется только конструктивная! Предвкушая вопрос про лестницу из кабинета вверх - наверху 10 кв.метров мансардной площади Посилання на коментар Поділитися на інших сайтах More sharing options...
zalstas Опубліковано: 11 лютого 2010 Поділитись Опубліковано: 11 лютого 2010 По моему уже близко к совершенству , я бы увеличил проем в гостиную , окошко сделал в кладовую, симметрично что в топочной. Посилання на коментар Поділитися на інших сайтах More sharing options...
R-Aleksandr Опубліковано: 11 лютого 2010 Автор Поділитись Опубліковано: 11 лютого 2010 По моему уже близко к совершенству , я бы увеличил проем в гостиную , окошко сделал в кладовую, симметрично что в топочной. Спасибо:D Проем увеличу, окошко - скорее всего делать не буду, так как это кладовая в кухне. Там консервы всякие, прочая еда... Зачем там окошко, хотя - посоветуюсь с супругой Посилання на коментар Поділитися на інших сайтах More sharing options...
zalstas Опубліковано: 11 лютого 2010 Поділитись Опубліковано: 11 лютого 2010 (змінено) Еще , ели с окном , то и на втором этаже в гардеробе развернуть окно и моно стену от угла камина и до стеклянных дверей сделать витражной . Змінено 11 лютого 2010 користувачем zalstas Посилання на коментар Поділитися на інших сайтах More sharing options...
R-Aleksandr Опубліковано: 13 лютого 2010 Автор Поділитись Опубліковано: 13 лютого 2010 Послушав мнение достопочтенной публики, предлагаю новую, улучшенную (с моей точки зрения) версию. Критикуйте. Заранее признателен за конструктивную критику. Посилання на коментар Поділитися на інших сайтах More sharing options...
ИНОЙ Опубліковано: 13 лютого 2010 Поділитись Опубліковано: 13 лютого 2010 Здравствуйте. Домик стал гораздо красивей. Еще поработайте над окнами. Особенно со входом. В кухне желательно сделать два вытяжных канала, один для общий, второй для кух.вытяжки. Подумайте над крышей с тыльной стороны. Прикиньте может окна вставить. Посилання на коментар Поділитися на інших сайтах More sharing options...
R-Aleksandr Опубліковано: 13 лютого 2010 Автор Поділитись Опубліковано: 13 лютого 2010 Еще поработайте над окнами. Особенно со входом. А что тут можно придумать? Посилання на коментар Поділитися на інших сайтах More sharing options...
R-Aleksandr Опубліковано: 14 лютого 2010 Автор Поділитись Опубліковано: 14 лютого 2010 Конкретный вопрос - какой вариант крыши вам по душе, и почему... Ответы "никакой" не нужны, оставьте их при себе Посилання на коментар Поділитися на інших сайтах More sharing options...
R-Aleksandr Опубліковано: 14 лютого 2010 Автор Поділитись Опубліковано: 14 лютого 2010 Конкретный вопрос - какой вариант крыши вам по душе, и почему... Ответы "никакой" не нужны, оставьте их при себе Посилання на коментар Поділитися на інших сайтах More sharing options...
R-Aleksandr Опубліковано: 14 лютого 2010 Автор Поділитись Опубліковано: 14 лютого 2010 Конкретный вопрос - какой вариант крыши вам по душе, и почему... Ответы "никакой" не нужны, оставьте их при себе Посилання на коментар Поділитися на інших сайтах More sharing options...
R-Aleksandr Опубліковано: 14 лютого 2010 Автор Поділитись Опубліковано: 14 лютого 2010 Конкретный вопрос - какой вариант крыши вам по душе, и почему... Ответы "никакой" не нужны, оставьте их при себе Посилання на коментар Поділитися на інших сайтах More sharing options...
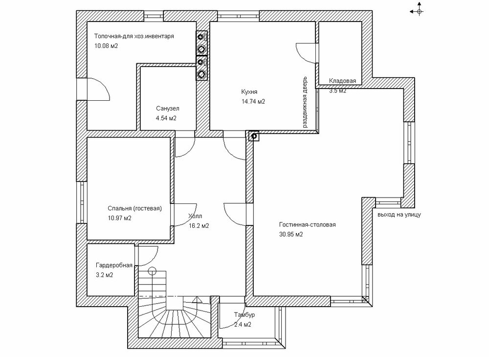
R-Aleksandr Опубліковано: 15 лютого 2010 Автор Поділитись Опубліковано: 15 лютого 2010 И вот последняя планировочка первого этажа с размерами Посилання на коментар Поділитися на інших сайтах More sharing options...
zalstas Опубліковано: 15 лютого 2010 Поділитись Опубліковано: 15 лютого 2010 (змінено) Все классно, все красиво ,только чуть симметричней . с одной стороны 2.54 с другой 2.35 Или 3.11 и 3.53. проще будет в строительстве да смотреться будет лучше , а вообще вы молодец, упорно работаете и это оправдывает. Змінено 15 лютого 2010 користувачем zalstas 1 Посилання на коментар Поділитися на інших сайтах More sharing options...
R-Aleksandr Опубліковано: 15 лютого 2010 Автор Поділитись Опубліковано: 15 лютого 2010 Пару слов хочу рассказать о своем участке. Он расположен фасадной частью на юг. Дорога с запада на восток по южной границе участка. Он почти квадратный, 10 соток, около 33х33. Расположен в нижней части небольшого холма, который поднимается с юга на север (на севере высота максимальная). Расстояние от нижней до верхней точки холма 280 метров, высота подъема от уровня нижней точки где-то 25 метров. Мой участок частично (около 15 метров расположен на плоском участке, а остальные 18 метров дают подъем около 1,2-1,5 метра. Это не много, но так как холм длинный, то выглядит вполне высоким! С юго-востока участка смешанный лес, с юга – небольшое частное озеро. Я хочу поставить дом ромбом, таким образом сделав хороший вид с юга, юго-востока и юго-запада. При этом линия перегиба крыши смотрит четко с севера на юг. Дом на участке будет расположен посередине по линии восток – запад и максимально смещен на север (т.е. в горку). Все, что ниже дома – плоское. Рассказал как мог, сори за непрофессионализм. Александр PS Что касается скосов стен. Они получаются четко на севере, востоке и западе. Мне кажется, так правильнее. Жду комментов Посилання на коментар Поділитися на інших сайтах More sharing options...
ИНОЙ Опубліковано: 15 лютого 2010 Поділитись Опубліковано: 15 лютого 2010 Вот как-то так мне видиться Ваш домик. Над оформление фасадов можно работать и работать, вариантов море. Посилання на коментар Поділитися на інших сайтах More sharing options...
R-Aleksandr Опубліковано: 15 лютого 2010 Автор Поділитись Опубліковано: 15 лютого 2010 Вот как-то так мне видиться Ваш домик. Над оформление фасадов можно работать и работать, вариантов море. как я понимаю, теперь здесь два полноценных этажа? Какой угол крыши? Зачем треугольник на крыше в районе спальни? мансардное окно при наличии полноценного? Здесь многие критиковали меня за отсутствие тамбура. Вы его убрали, я смотрю... Посилання на коментар Поділитися на інших сайтах More sharing options...
zalstas Опубліковано: 15 лютого 2010 Поділитись Опубліковано: 15 лютого 2010 Пару слов хочу рассказать о своем участке. Он расположен фасадной частью на юг. Дорога с запада на восток по южной границе участка. Он почти квадратный, 10 соток, около 33х33. Расположен в нижней части небольшого холма, который поднимается с юга на север (на севере высота максимальная). Расстояние от нижней до верхней точки холма 280 метров, высота подъема от уровня нижней точки где-то 25 метров. Мой участок частично (около 15 метров расположен на плоском участке, а остальные 18 метров дают подъем около 1,2-1,5 метра. Это не много, но так как холм длинный, то выглядит вполне высоким! С юго-востока участка смешанный лес, с юга – небольшое частное озеро. Я хочу поставить дом ромбом, таким образом сделав хороший вид с юга, юго-востока и юго-запада. При этом линия перегиба крыши смотрит четко с севера на юг. Дом на участке будет расположен посередине по линии восток – запад и максимально смещен на север (т.е. в горку). Все, что ниже дома – плоское. Рассказал как мог, сори за непрофессионализм. Александр PS Что касается скосов стен. Они получаются четко на севере, востоке и западе. Мне кажется, так правильнее. Жду комментов Лучше один раз прочитать, чем сто послушать, картина стала ясной Посилання на коментар Поділитися на інших сайтах More sharing options...
Рекомендовані повідомлення
Створіть акаунт або увійдіть у нього для коментування
Ви маєте бути користувачем, щоб залишити коментар
Створити акаунт
Зареєструйтеся для отримання акаунта. Це просто!
Зареєструвати акаунтУвійти
Вже зареєстровані? Увійдіть тут.
Увійти зараз