doc_99999 Опубліковано: 27 березня 2012 Поділитись Опубліковано: 27 березня 2012 Нормально получилось, оччень даже. Все больше прихожу к мысли снести свой дачный домик и построить по проекту "Натали". Участок небольшой, но и дом вполне компактный. Может кто то выложит проект или в личку. Хотелось бы попробовать просчитать вместе со специалистом (дружбан прораб). Просит бумаги посмотреть. Те что есть в нете маловато. Заранее благодарен. Посилання на коментар Поділитися на інших сайтах More sharing options...
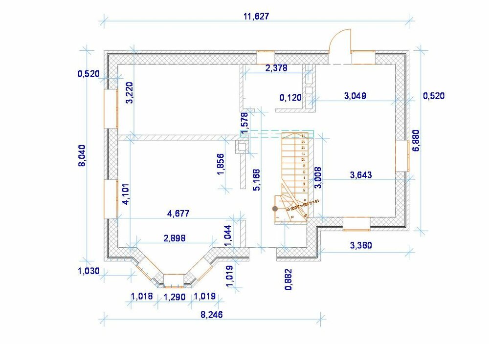
MМаксим Опубліковано: 1 квітня 2012 Поділитись Опубліковано: 1 квітня 2012 Архитектурных чертежей нету т.к. проект буду только заказывать. Выложу чертежи которые делал сам в Архикаде. Прошу сильно не критиковать т.к. по образованию инженер технолог в машиностроении а не в архитектуре, поэтому не заморачивался с правильной простановкой размеров. В чертежах старался просчитать раскладку облицовочного кирпича чтобы не пришлось их прирезать. В процессе строительства были внесены корректировки чаще всего по причине проколов строителей. Например стену с длиной 8м. планировалось сделать из 31 облицовочного кирпича, а вместо этого выложили 30 и 1/2 кирпича увеличив швы. Прокол заметили когда возник вопрос как располагать окна и какой ширины. Второй прокол сделали когда выкладывали опорный столб под балку (возле дымохода), на эту балку должны были опереться плиты над ванной и лестница на второй этаж. Вечером строителям точно объяснил где должен стоять столб, а на следующий день строители не глядя в чертеж по памяти выложили столб на 15см. ближе к входу в дом, что сократило количество ступеней в лестнице на одну и сделало лестницу еще круче. Обнаружили это уже когда был залит армопояс и балка. Теперь придется забыть о шкафе-купе у входа и продлить лестницу прямо ко входу. Так что пока выложу те чертежи которые были у истоков, а то что получилось чуть позже, сейчас занимаюсь их корректировкой. На чертежах раскладка первого ряда блоков в цоколе и первый этаж. 1 Посилання на коментар Поділитися на інших сайтах More sharing options...
MМаксим Опубліковано: 1 квітня 2012 Поділитись Опубліковано: 1 квітня 2012 Если просчитывать материалы, то могу сказать что пошло 9600шт. облицовочного, 39кубов Кератерма38, 8кубов Кератерма25, 7000шт. рядового кирпича, засыпка керамзитом 16кубов. Сделана только коробка. Из внутренних стен- на первом этаже: перегородка между кухней и домом (несущая в кирпич), перегородка между залом и спальней (в пол кирпича); на втором этаже перегородка между комнатой над гаражом и домом (в пол кирпича+Кератерм25). Добавлено через 37 минут Если интересует, есть много фотографий с разных ракурсов и разных этапов строительства, так что если интересует могу выложить интерисующий ракурс. Посилання на коментар Поділитися на інших сайтах More sharing options...
doc_99999 Опубліковано: 2 квітня 2012 Поділитись Опубліковано: 2 квітня 2012 Если интересует, есть много фотографий с разных ракурсов и разных этапов строительства, так что если интересует могу выложить интерисующий ракурс. Было бы здорово. Сейчас планирую построить баньку на участке, что бы было где перекантоваться во время постройки дома. Вторым этапом сносить старый дом и строить "Натали" Посилання на коментар Поділитися на інших сайтах More sharing options...
MМаксим Опубліковано: 22 квітня 2012 Поділитись Опубліковано: 22 квітня 2012 Alexland если не трудно расскажите на каком этапе вы сейчас находитесь? Мене очень интересны Ваши соображения по проекту отопления, вентиляции, проводки. Как дела с камином? Может поделитесь новыми идеями? Заранее спасибо!!!! Посилання на коментар Поділитися на інших сайтах More sharing options...
Alexland Опубліковано: 17 червня 2012 Автор Поділитись Опубліковано: 17 червня 2012 Alexland если не трудно расскажите на каком этапе вы сейчас находитесь? Мене очень интересны Ваши соображения по проекту отопления, вентиляции, проводки. Как дела с камином? Может поделитесь новыми идеями? Заранее спасибо!!!! На данном этапе планируют оклеить основную часть дома белтепом 10 см толщиной + обложить облицовочным кирпичом в пол кирпича. В зоне гаража и над ним - либо пенопласт 35 либо белтеп 10-15 см (горе-бригада 3 года назад с ровностью стен накосячила, надо выровнять утеплителем), а поверх клинкерная плитка + подшивав саксов и ливневка. Все это это были планы на прошлый год, но Родина мне, военному песионеру, в этом самом прошломгоду облагодетельствовала квартиру, так шо :oops:..... Веточка немножко подзамерла в своем обновлении. По поводу отопления: газовый котел однозначно (двухконтурный или с отдельной колонкой, пока не решил), но резервную систему отопления для первого этажа буду планировать однозначно. Скорее всего, это будет камин с водяной рубашкой, интегрированный в общую систему отопления с теплыми полами первого этажа. Система водоподготовки у меня вынесена в отдельное помещение на веранде (видно на прошлых фото). по поводу поэтажных планов - я же их вроде выкладывал в ветке. Посилання на коментар Поділитися на інших сайтах More sharing options...
MМаксим Опубліковано: 6 вересня 2013 Поділитись Опубліковано: 6 вересня 2013 Было бы здорово. Сейчас планирую построить баньку на участке, что бы было где перекантоваться во время постройки дома. Вторым этапом сносить старый дом и строить "Натали" Как успехи в строительстве поделитесь результатами Посилання на коментар Поділитися на інших сайтах More sharing options...
Alexland Опубліковано: 6 вересня 2013 Автор Поділитись Опубліковано: 6 вересня 2013 Так было в начале года (в 2012 - только монолитная Ж/б лестница внутри) Посилання на коментар Поділитися на інших сайтах More sharing options...
Alexland Опубліковано: 6 вересня 2013 Автор Поділитись Опубліковано: 6 вересня 2013 Так стало сейчас (пока), наружные несущие стены из такого блока (кстати, осталось штук 100 блоков польских на продажу). В процессе отделки дом будет отделан таким декором Посилання на коментар Поділитися на інших сайтах More sharing options...
Alexland Опубліковано: 4 листопада 2013 Автор Поділитись Опубліковано: 4 листопада 2013 Уже даже можно показать кое какие картинки фасадов в том виде, каким они задумывались изначально. Посилання на коментар Поділитися на інших сайтах More sharing options...
Olusia Опубліковано: 8 листопада 2013 Поділитись Опубліковано: 8 листопада 2013 Уже даже можно показать кое какие картинки фасадов в том виде, каким они задумывались изначально. Скажите пожалуйста, почему, на этапе собранных лесов и фасадных работ вы не выполнили подшивку карниза и водосток?? Посилання на коментар Поділитися на інших сайтах More sharing options...
Toroki Опубліковано: 9 листопада 2013 Поділитись Опубліковано: 9 листопада 2013 Необходимо подшить крышу доской + сайдингом + метал на карнизную доску + смонтировать водосточную систему + отливы -если масан.помещение доской+сайтингом=60грн.м2 -метал на корнизную доску 35грн.м.п. -водосточка+отлив 45грн.м.п. Посилання на коментар Поділитися на інших сайтах More sharing options...
Alexland Опубліковано: 11 листопада 2013 Автор Поділитись Опубліковано: 11 листопада 2013 Скажите пожалуйста, почему, на этапе собранных лесов и фасадных работ вы не выполнили подшивку карниза и водосток?? Как только начнете строится, столкнетесь с таким явлением, как узко либо -широкопрофильные бригады, прорабы с своим интересом, арендованные на строго определенный срок леса... и т.д. Посилання на коментар Поділитися на інших сайтах More sharing options...
дід василь Опубліковано: 25 липня 2015 Поділитись Опубліковано: 25 липня 2015 Если просчитывать материалы, то могу сказать что пошло 9600шт. облицовочного, 39кубов Кератерма38, 8кубов Кератерма25, 7000шт. рядового кирпича, засыпка керамзитом 16кубов. Сделана только коробка. Из внутренних стен- на первом этаже: перегородка между кухней и домом (несущая в кирпич), перегородка между залом и спальней (в пол кирпича); на втором этаже перегородка между комнатой над гаражом и домом (в пол кирпича+Кератерм25). Добавлено через 37 минут Если интересует, есть много фотографий с разных ракурсов и разных этапов строительства, так что если интересует могу выложить интерисующий ракурс. Есть большое желание увидеть Н 178 в натуре !!! тел 0505384662 Посилання на коментар Поділитися на інших сайтах More sharing options...
Alexland Опубліковано: 30 липня 2015 Автор Поділитись Опубліковано: 30 липня 2015 Есть большое желание увидеть Н 178 в натуре !!! тел 0505384662 А что именно " Н 178" в натуре есть желание увидеть? Площадь? Так у меня она существенно больше, т.к. появилась веранда размерами 3,5 х 11 метров, да каждый этаж стал шире на 1,2 метра (ширина дополнительной панели, + 22 м2)... Да, еще фото с установленной Siba-вской металлической ливневкой и подшивкой свесов. Отдельное огромное СПАСИБО нашей форумчанке Татьяне за изумительную цену!! Посилання на коментар Поділитися на інших сайтах More sharing options...
дід василь Опубліковано: 23 серпня 2015 Поділитись Опубліковано: 23 серпня 2015 Будівництво розпочав у серпні 2015. Проекта немає. За основу взяв Наталі 178, трішки збільшив (12,5м * 10,5м ), дещо хочу запозичити з інших проектів. На даний час викопано котлован, засипано пісок, щебінь, залита стяжка, зроблено гідроізоляцію, заармовано і залито плиту. (не вдається завантажити фото) Що хочу побачити в натурі? - основне це вхід із гаража в будинок, сходи та вхід у кімнату над гаражем. Посилання на коментар Поділитися на інших сайтах More sharing options...
MМаксим Опубліковано: 12 вересня 2017 Поділитись Опубліковано: 12 вересня 2017 Извините давно не заходил на форум. да и строительство вяло тянется. все никак не могу вселится. Если чтото нужно подсказать маякуйте. Постараюсь не пропадать и ответить. Посилання на коментар Поділитися на інших сайтах More sharing options...
Рекомендовані повідомлення
Створіть акаунт або увійдіть у нього для коментування
Ви маєте бути користувачем, щоб залишити коментар
Створити акаунт
Зареєструйтеся для отримання акаунта. Це просто!
Зареєструвати акаунтУвійти
Вже зареєстровані? Увійдіть тут.
Увійти зараз