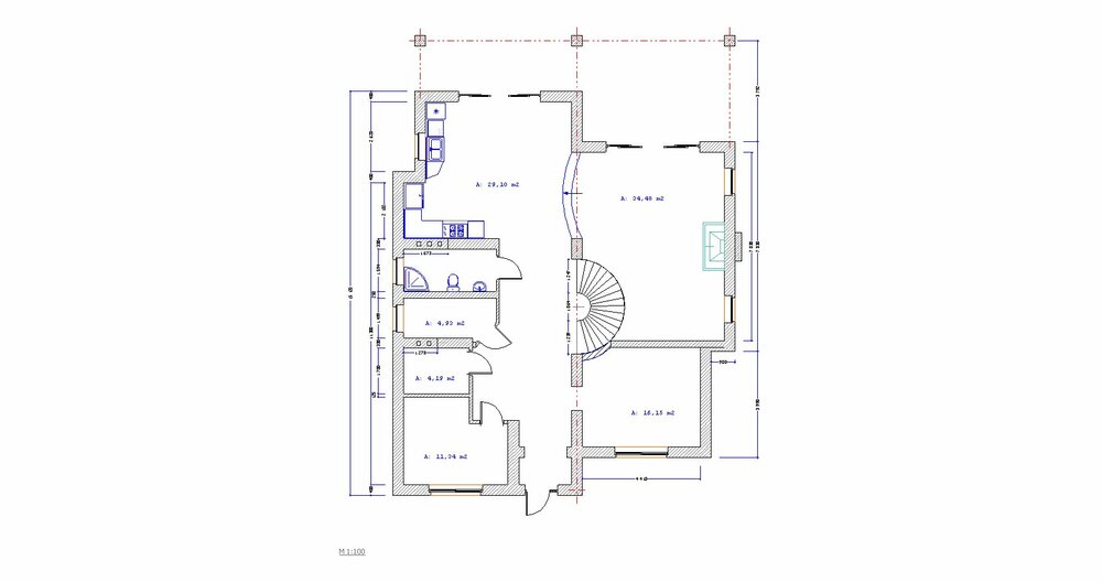
vladf Опубліковано: 2 березня 2010 Поділитись Опубліковано: 2 березня 2010 Ищем квалифицированную бригаду строителей с бригадиром для строительства дома. Планы 1-го и 2-го этажа прилагаю, а также фасады. Интересует смета по схеме "коробка+крыша"(фундамент уже залит). Прилагаю файл Exel для расчета объема и стоимости работ-если чего-то не хватает-добавте. Прошу всех заинтересованных лиц и компании максимально точно указать объемы работ, чтобы избежать в дальнейшем недоразумений из серии: "а вот еще за поднос кирпича и распилка двух досок с вас 100 рублей"-все что будет указано в смете, то и будет оплачиваться, никакие дополнительные статьи затрат на работы, после согласования сметы, приниматься не будут. Планируем начать строительство с 15-20 марта. Будем также признательны за полезные советы по части закупки материалов(когда и сколько[ATTACH][ATTACH][ATTACH][ATTACH][ATTACH][ATTACH]смета.xls[/ATTACH][/ATTACH][/ATTACH][/ATTACH][/ATTACH][/ATTACH]) Посилання на коментар Поділитися на інших сайтах More sharing options...
асстрой Опубліковано: 2 березня 2010 Поділитись Опубліковано: 2 березня 2010 Ищем квалифицированную бригаду строителей с бригадиром для строительства дома. Планы 1-го и 2-го этажа прилагаю, а также фасады. Интересует смета по схеме "коробка+крыша"(фундамент уже залит). Прилагаю файл Exel для расчета объема и стоимости работ-если чего-то не хватает-добавте. Прошу всех заинтересованных лиц и компании максимально точно указать объемы работ, чтобы избежать в дальнейшем недоразумений из серии: "а вот еще за поднос кирпича и распилка двух досок с вас 100 рублей"-все что будет указано в смете, то и будет оплачиваться, никакие дополнительные статьи затрат на работы, после согласования сметы, приниматься не будут. Планируем начать строительство с 15-20 марта. Будем также признательны за полезные советы по части закупки материалов(когда и сколько[ATTACH][ATTACH][ATTACH][ATTACH][ATTACH][ATTACH][ATTACH]42808[/ATTACH][/ATTACH][/ATTACH][/ATTACH][/ATTACH][/ATTACH][/ATTACH]) Добрый день, стройка где будет??? Посилання на коментар Поділитися на інших сайтах More sharing options...
vladf Опубліковано: 2 березня 2010 Автор Поділитись Опубліковано: 2 березня 2010 с. Чубинское, бориспольская трасса. Посилання на коментар Поділитися на інших сайтах More sharing options...
zlodeyhka Опубліковано: 2 березня 2010 Поділитись Опубліковано: 2 березня 2010 с. Чубинское, бориспольская трасса. я могу вам выслать разценки нашых работ все полностю если скините мне ваш емел с покупой и доставкой матеряло можем помочь моб 0939265431 сергей Посилання на коментар Поділитися на інших сайтах More sharing options...
vladf Опубліковано: 2 березня 2010 Автор Поділитись Опубліковано: 2 березня 2010 я могу вам выслать разценки нашых работ все полностю если скините мне ваш емел с покупой и доставкой матеряло можем помочь моб 0939265431 сергей мейл - deepfil@mail.ru Посилання на коментар Поділитися на інших сайтах More sharing options...
ZER-GUT Опубліковано: 2 березня 2010 Поділитись Опубліковано: 2 березня 2010 мейл - deepfil@mail.ru ответил в личку:drinks: Посилання на коментар Поділитися на інших сайтах More sharing options...
Frame-House Опубліковано: 4 березня 2010 Поділитись Опубліковано: 4 березня 2010 С какого материала планируете строится? рассматривали ли Вы строительство каркасника? сможем посчитать!!! если есть доп. вопроссы, пишите! 1 Посилання на коментар Поділитися на інших сайтах More sharing options...
vladf Опубліковано: 4 березня 2010 Автор Поділитись Опубліковано: 4 березня 2010 С какого материала планируете строится? рассматривали ли Вы строительство каркасника? сможем посчитать!!! если есть доп. вопроссы, пишите! Материал дома - кирпич полнотелый. м100 Каркасник даже не рассматривали - не занем что это такое и с чем его едят В любом случае спасибо за предложение. Посилання на коментар Поділитися на інших сайтах More sharing options...
Frame-House Опубліковано: 4 березня 2010 Поділитись Опубліковано: 4 березня 2010 вкратце каркасный дом выглядит так: дом для жизни с комфортом! за прошедшие два года очень много наших сограждан обратились к этой технологии... и не только потому что это дешевле или теплее, а по той причине, что это надежный и долговечный дом! 8-)и конечно же не выпускаем из виду стоимость, ведь она не велика по сравнению с ..... Посилання на коментар Поділитися на інших сайтах More sharing options...
vladf Опубліковано: 4 березня 2010 Автор Поділитись Опубліковано: 4 березня 2010 Если кто-то еще прочитает эту тему - спешу с прискорбием сообщить, что определился с двумя бригадами :D и завтра приму окончательное решение кто будет строить дом. Поэтому новый поиск подрядчиков надеюсь не потребуется Дабы соблюсти весь проток тендера - по результату сообщу победителя. Посилання на коментар Поділитися на інших сайтах More sharing options...
Рекомендовані повідомлення
Створіть акаунт або увійдіть у нього для коментування
Ви маєте бути користувачем, щоб залишити коментар
Створити акаунт
Зареєструйтеся для отримання акаунта. Це просто!
Зареєструвати акаунтУвійти
Вже зареєстровані? Увійдіть тут.
Увійти зараз