Mentor Опубліковано: 18 жовтня 2007 Поділитись Опубліковано: 18 жовтня 2007 Стрелка - обращение фасада к дороге, указанное в строительном паспорте. Вопрос собственно в том, что типовой проект и так будет переделываться, вот хочется узнать мнение форумчан, относительно расположения дома ( и помещений в нем) по сторонам света. В моем случае. Дом планируется 10*9, 11*10. Мансардный. Спасибо. Посилання на коментар Поділитися на інших сайтах More sharing options...
Romka Опубліковано: 18 жовтня 2007 Поділитись Опубліковано: 18 жовтня 2007 у меня расположение идентичное. Посилання на коментар Поділитися на інших сайтах More sharing options...
КиевлянинЪ Опубліковано: 18 жовтня 2007 Поділитись Опубліковано: 18 жовтня 2007 хорошое расположение фасад на северо-запад тыл на юго-восток было бы намного хуже наоборот Посилання на коментар Поділитися на інших сайтах More sharing options...
Надежда Опубліковано: 18 жовтня 2007 Поділитись Опубліковано: 18 жовтня 2007 хорошое расположение фасад на северо-запад тыл на юго-восток было бы намного хуже наоборот У меня дача как раз расположена наоборот, и я очень рада была этому. Утром, днем и ранним вечером с тыльной стороны дома тень и прохлада, вот там и проводим все время. А юго-восточный фасад хорош зимой, но в это время года лучше на печке, чем на улице. Посилання на коментар Поділитися на інших сайтах More sharing options...
Белая Рысь Опубліковано: 18 жовтня 2007 Поділитись Опубліковано: 18 жовтня 2007 Так где же проект? Посилання на коментар Поділитися на інших сайтах More sharing options...
alexa Опубліковано: 19 жовтня 2007 Поділитись Опубліковано: 19 жовтня 2007 Такое расположение хорошо по многим причинам: 1. для дома и внутренней планировки. Можно гостинную расположить внутрь двора с южной стророны. На северную сторону кухню. У меня такое же расположение. 2. У меня терасса на северовосточной стороне. Как оказалось, там даже летом очень прохладно и и очень часто сквозняк. Т.е. этой террассой и не пользуемся. Планируем сделать беседку с южной стороны дома. 3. Дом хоть не много но защищает сад от северного ветра. Посилання на коментар Поділитися на інших сайтах More sharing options...
Leslie Опубліковано: 19 жовтня 2007 Поділитись Опубліковано: 19 жовтня 2007 У меня кухня и одна гостиная выходят на запад. Летом, конечно, будет тма жарко. Но ужинать, мне кажется, приятнее при лучах заходящего солнца. ВАЖНО! У вас будут дети. Гулять они будут где? Во дворе. Если кухня будет выходить окном стор. улицы, как Вы за ними наблюдать будете? Когда дети подрастут и будут гулять ЗА двором, окно на дорогу не поможет. ))) И последнее. ТусЯт в основном дома где? На кухне. Где вид из окна будет лучше? Когда смотришь телек, вид из окна не так важен. ИМХО. Посилання на коментар Поділитися на інших сайтах More sharing options...
Romka Опубліковано: 19 жовтня 2007 Поділитись Опубліковано: 19 жовтня 2007 И последнее. ТусЯт в основном дома где? На кухне. вот-вот именно поэтому в доме где планируешь помещения сам лучше сделать кухню-столовую-гостинную одним просторным помещением это ж не хрущевка всетаки Посилання на коментар Поділитися на інших сайтах More sharing options...
alexa Опубліковано: 19 жовтня 2007 Поділитись Опубліковано: 19 жовтня 2007 При планировке нужно учитывать многие факторы. Идеального размещения не найдете. В условиях дорожания энергоресурсов нужно учитывать еще и размещение помещений и окон для минимальных теплопотерь. Посему нужно просто выбрать с учетом специфики участка, близости соседей, дороги, наиболее важные факторы для Вас. Например, если учитвать теплопотери дома, самые теплые и светлые помещения должны быть с южной стороны - гостинная, детская. С северной глухая стена или помещения с небольшими окнами. В холодный период года с южной стороны солнце светит практически целый день. Гостинная обычно самая большая по площади. В межсезонье за день прогревается солнцем отлично без отопления. С северной же стороны в это же время нужно включать отопление. Кухня считается самым теплым помещением за счет кухонный приборов и размещать ее на юг смысла нет. С северной стороны начиная с сентября солнце вообще не появляется. Представьте, что будет у Вас за гостинная без солнца пол года? Вообще для гостинной оптимально несколько окон на разные стороны дома. Посилання на коментар Поділитися на інших сайтах More sharing options...
george2007 Опубліковано: 19 жовтня 2007 Поділитись Опубліковано: 19 жовтня 2007 Расположение отличное можно разделить входную или въездную группу и приватную зону т.е. кухню, столовую, гостиную разместить с видом на участок, на сад ,и продолжить дом открытой терассой для "летнего кафе." Посилання на коментар Поділитися на інших сайтах More sharing options...
Mentor Опубліковано: 22 жовтня 2007 Автор Поділитись Опубліковано: 22 жовтня 2007 Всем спасибо за советы. Уже внял. Щас перекраиваю планировку, почти зеркально. Возникли вопросы с размещением лестницы, а точнее с перекрытием 2-го этажа. Как только разберусь, проект выложу в соответсвующую ветку. Посилання на коментар Поділитися на інших сайтах More sharing options...
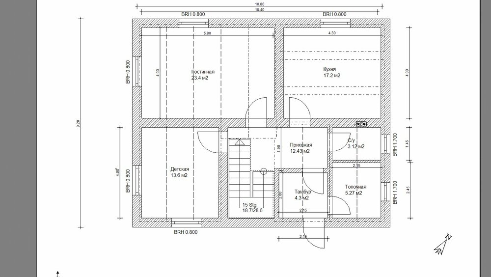
Mentor Опубліковано: 7 листопада 2007 Автор Поділитись Опубліковано: 7 листопада 2007 Вот, выкладываю пока общую концепцию планировки первого этажа. Стены-40 см-пеноблок Фундамент - монолитная лента, 40 см, глубиной 1.2 м. Перекрытие- пустотные плиты, шириной 1.2 м. крыша - скорее всего крашеный шифер. Собственно вопросы: -как Вам такое расположение комнат относительно сторон света? -прошу помощи в планировке второго(мансардного, а возможно и полноценного этажа). Если кто и эскиз какой-нить скинет, совсем будет хорошо. Ограничения: никак нельзя увеличивать площадь застройки. Рассматриваю даже уменьшение , ибо по деньгам не потяну. Спасибо , буду благодарен всем практичным советам. Посилання на коментар Поділитися на інших сайтах More sharing options...
alexa Опубліковано: 7 листопада 2007 Поділитись Опубліковано: 7 листопада 2007 На кухне окно маленькое, тем более не солнечная сторона. У меня на кухне 11 м. окно шириной 1 м и света маловато. На кухне плюс столовая нужно света побольше, особенно на рабочую поверхность. Лучше добавить еще окно с другой стены. Сделать так, чтобы одно окно было над рабочей поверхностью, другое напротив обеденного стола. В гостинной тоже окон мало. А вот в детской наоборот много. Но если экономишь средства, то нужно более эффективно использовать пространство дома, для этого делают на первом этаже открытую совмещенную зону кухня-столовая-гостинная. Иежду кухней и гостинной можно арку сделать. Посмотри польские проекты небольшой площади. Совмещением сэкономишь средства еще за счет уменьшения перегородок, кол-ва дверей. Посилання на коментар Поділитися на інших сайтах More sharing options...
Mentor Опубліковано: 7 листопада 2007 Автор Поділитись Опубліковано: 7 листопада 2007 Насчет окон: они обозначены образно. На кухне может одного и мало, вот только обратите внимание на расположение относительно сторон света, северо-восток однако. Холодно. А детская наоборот на юг обращена. Посилання на коментар Поділитися на інших сайтах More sharing options...
alexa Опубліковано: 7 листопада 2007 Поділитись Опубліковано: 7 листопада 2007 Насчет окон: они обозначены образно. На кухне может одного и мало, вот только обратите внимание на расположение относительно сторон света, северо-восток однако. Холодно. А детская наоборот на юг обращена. На кухне холодно не бывает. Во первых там полно приборов, выделяющих тепло (холодильник; духовка, плита и т.п.), во вторых на кухне обычно проводим времени меньше, чем в гостинной, не сидим, а работаем. А вот когда мало света и приходится постояннго включать искуственный свет, это хуже по моему. Да и прибавка одного окна не сильно увеличит теплопотери. Я бы сделал планировку следующим образом - перегородку убрал бы, гостинную объеденил со столовой, кухню поменьше и отделил бы аркой кухню от гостинной со столовой. Вход из прихожей один посредине тоже через арку или двухстворчатые двери. Посилання на коментар Поділитися на інших сайтах More sharing options...
Mentor Опубліковано: 7 листопада 2007 Автор Поділитись Опубліковано: 7 листопада 2007 Арка между кухней и гостинной......хм., рассмотрим. Скорее да, чем нет. Вход в гостинную скорее всего тоже будет выполнен без дверей, т.е. в виде арки или просто проема. Насчет окон подумаю, хотя с той стороны где Вы советуете сделать еще одно, у меня соседский дом, и особого смысла делать окно с видом на его сарай у меня нет. Ну теперь может посоветуете, что-то насчет второго этажа? Посилання на коментар Поділитися на інших сайтах More sharing options...
alexa Опубліковано: 7 листопада 2007 Поділитись Опубліковано: 7 листопада 2007 Второй этаж: санузел над санузлом первого этажа для упрощения коммуникаций. Возле лестницы лестничная площадка. над лестницей окно для нормального ее освещения. И еще три комнаты получается. Посилання на коментар Поділитися на інших сайтах More sharing options...
Рекомендовані повідомлення
Створіть акаунт або увійдіть у нього для коментування
Ви маєте бути користувачем, щоб залишити коментар
Створити акаунт
Зареєструйтеся для отримання акаунта. Це просто!
Зареєструвати акаунтУвійти
Вже зареєстровані? Увійдіть тут.
Увійти зараз