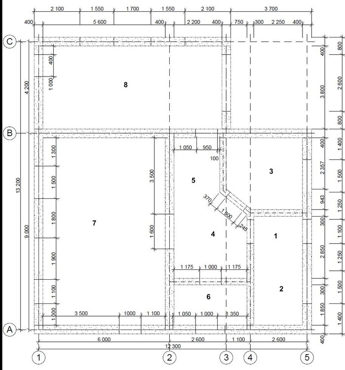
as1976as Опубліковано: 11 березня 2010 Поділитись Опубліковано: 11 березня 2010 (змінено) Вот как говориться с чего начинали : www.stroimdom.com.ua/forum/showthread.php?t=27976 Огромное спасибо на этом этапе тем ЛЮДЯМ, которые помогли, посоветовали и поставили на путь истинный, а в частности: ИНОЙ, Tugarin, vickov, Ирина L, и конечно же ДОКС Благодаря ценномуи плодотворному сотрудничеству, с которым и родился проект, который имеем на сегодня. Хотелось бы услышать мнение и рецензии по проекту. Описание по помещениям 1-й этаж -94.3 м²+31.1 м² гараж=125.4 м² 1-2—тамбур с прихожей и гардеробной(11.25м) 3—кабинет(11м) 4—холл – (12,5м) 5—лестница –(5,25м) 6—санузел 1-й этаж(6.2м) 7 –гостиная, кухня-столовая(48.1м) 8 –гараж, мастерская(31.1м) 2-й этаж-91.68 м² 1—лестница+холл большой – (14,02м) 2—холл малый – (4,76м) 3-4—детские – (13,76м) 5—кладовая(5.02м) 6—санузел(4.3м) 7-ванная+мини оранжерея(14.5м) 8 –спальня – (21,56м) Материалы планируемые в строительстве:дом в ракушку-400мм,перлит-80мм,облицовочный кирпич(Евротон)-120мм.Перекрытие первого этажа плиты,второй и гараж дерево.Крыша полимерпесчаная черепица Змінено 11 березня 2010 користувачем as1976as ошибка текста Посилання на коментар Поділитися на інших сайтах More sharing options...
ИНОЙ Опубліковано: 11 березня 2010 Поділитись Опубліковано: 11 березня 2010 Здравствуйте. Сразу вопрос почему внутренние перегородки по 300 мм? Откуда цифра такая? Не понятна лестница (вход) на терассе. Посилання на коментар Поділитися на інших сайтах More sharing options...
as1976as Опубліковано: 11 березня 2010 Автор Поділитись Опубліковано: 11 березня 2010 Здравствуйте. Сразу вопрос почему внутренние перегородки по 300 мм? Откуда цифра такая? Не понятна лестница (вход) на терассе. 300 - это в кирпич плюс штукатурка с двух сторон.а с лестницей - было условие выход на юг,продиктованное женой и чисто моими соображениями. по расположению по сторонам света.Центральный вход-восток,гараж-север,терраса-запад. Посилання на коментар Поділитися на інших сайтах More sharing options...
ИНОЙ Опубліковано: 11 березня 2010 Поділитись Опубліковано: 11 березня 2010 А зачем такой толщины перегородки? Это перерасход кирпича, работа, вес, а там дверные коробки(ширина). Хотя... Посилання на коментар Поділитися на інших сайтах More sharing options...
as1976as Опубліковано: 11 березня 2010 Автор Поділитись Опубліковано: 11 березня 2010 А зачем такой толщины перегородки? Это перерасход кирпича, работа, вес, а там дверные коробки(ширина). Хотя... при высоте этажа 3м я б наверно не рискнул положить стену в пол кирпича а использовать кроме ракушки и кирпича другие материалы пока как то и не планировал. Посилання на коментар Поділитися на інших сайтах More sharing options...
ДОКС Опубліковано: 11 березня 2010 Поділитись Опубліковано: 11 березня 2010 А зачем такой толщины перегородки? Это перерасход кирпича, работа, вес, а там дверные коробки(ширина). Хотя... Это было принципиальное желание Алексея... И выход с террасы на юг то же было жестким условием... Пришлось соединить три горизонтальных плоскости - терраса, отмостка, выход в сад. Посилання на коментар Поділитися на інших сайтах More sharing options...
ALEXX17 Опубліковано: 11 березня 2010 Поділитись Опубліковано: 11 березня 2010 У меня похожая ситуация на участке (узкий), очень классное решение по терассе!!! Кста, ДОКС мне тоже делает проект. Як зробе - виложу тоже!!!! Удачи в стойке!!! 1 Посилання на коментар Поділитися на інших сайтах More sharing options...
ИНОЙ Опубліковано: 11 березня 2010 Поділитись Опубліковано: 11 березня 2010 (змінено) при высоте этажа 3м я б наверно не рискнул положить стену в пол кирпича Для устранения рисков существует армирование перегородок, ну тут проехали, хозяин барин. Дальше, не понравилась лестница при входе в гараж. Может есть смысл продлить терассу? Змінено 11 березня 2010 користувачем ИНОЙ Посилання на коментар Поділитися на інших сайтах More sharing options...
ДОКС Опубліковано: 11 березня 2010 Поділитись Опубліковано: 11 березня 2010 Для устранения рисков существует армирование перегородок, ну тут проехали, хозяин барин. Дальше, не понравилась лестница при входе в гараж. Может есть смысл продлить терассу? Армопояс - присутствует. С лесенкой в гараж - то же спорный был вопрос... Возможно при строительстве ещё изменим решение. Основная задача стояла - дом. А в процессе, возникла идея с перепадом участка. Посилання на коментар Поділитися на інших сайтах More sharing options...
as1976as Опубліковано: 11 березня 2010 Автор Поділитись Опубліковано: 11 березня 2010 Для устранения рисков существует армирование перегородок, ну тут проехали, хозяин барин. Дальше, не понравилась лестница при входе в гараж. Может есть смысл продлить терассу? Функциональность продления террасы в чем? Как из гаража инструмент(газонокосилку и т.д.) доставать и вывозить через террасу?Или делать на север второй выход с террасы(мне так точно не нравиться)? Посилання на коментар Поділитися на інших сайтах More sharing options...
ИНОЙ Опубліковано: 11 березня 2010 Поділитись Опубліковано: 11 березня 2010 Функциональность продления террасы в чем? Функциональности ни какой, это я так, что б Вы не расслаблялись, В целом планировка мне нравиться. А почему все проемы для дверей 1м? Тоже желание заказчика? Посилання на коментар Поділитися на інших сайтах More sharing options...
ДОКС Опубліковано: 11 березня 2010 Поділитись Опубліковано: 11 березня 2010 Функциональности ни какой, это я так, что б Вы не расслаблялись, В целом планировка мне нравиться. А почему все проемы для дверей 1м? Тоже желание заказчика? Это Алексей черновики выложил... В них (для удобства) я закладывал 1м. на промежуточных "визуалках" лучше смотрелись... По каждому этапу строительства я делал "скрины". Теперь у него есть полный план строительства в картинках. Посилання на коментар Поділитися на інших сайтах More sharing options...
ИНОЙ Опубліковано: 11 березня 2010 Поділитись Опубліковано: 11 березня 2010 Это Алексей черновики выложил... То-то я смотрю на чертежи... штриховки бетон... контуры стен не выделены, размерные линии глаза режут, ну и т.д. Теперь все понятно. Планировка дейсвительно хорошая, но я бы на втором этаже центральный проем сделал бы метра 2, а может и больше, получился бы центральный холл. Но, это на любителя. Посилання на коментар Поділитися на інших сайтах More sharing options...
ДОКС Опубліковано: 12 березня 2010 Поділитись Опубліковано: 12 березня 2010 То-то я смотрю на чертежи... штриховки бетон... контуры стен не выделены, размерные линии глаза режут, ну и т.д. Теперь все понятно. в чистовом варианте - по стенам многослойная конструкция... Планировка дейсвительно хорошая, но я бы на втором этаже центральный проем сделал бы метра 2, а может и больше, получился бы центральный холл. Но, это на любителя. решили проём шире на делать - соединение балок перекрытия на этой стене и высота 2-го этажа 2.700 .... Посилання на коментар Поділитися на інших сайтах More sharing options...
as1976as Опубліковано: 12 березня 2010 Автор Поділитись Опубліковано: 12 березня 2010 Неужели больше ни кого никаких вопросов ,дополнений, предложений. Может кому что-то не понравилось ?Или наоборот?Не стесняйтесь критика и одобрения принимаются. Посилання на коментар Поділитися на інших сайтах More sharing options...
MWer Опубліковано: 12 березня 2010 Поділитись Опубліковано: 12 березня 2010 Хороший проект, если что, зовите , крышу в днепропетровской области недорого сделаем (но качественно! ) 2 Посилання на коментар Поділитися на інших сайтах More sharing options...
Danshow Опубліковано: 13 березня 2010 Поділитись Опубліковано: 13 березня 2010 Неужели больше ни кого никаких вопросов ,дополнений, предложений. Может кому что-то не понравилось ?Или наоборот?Не стесняйтесь критика и одобрения принимаются. Покажите, пожалуйста, читаемые планировки с лестницей и мебелью. Может тогда что-то и выплывет. Хотя после уже проделанной работы, врядли. Ну и стандартный вопрос: чем будете топить (где будет размещен котел)? Посилання на коментар Поділитися на інших сайтах More sharing options...
as1976as Опубліковано: 13 березня 2010 Автор Поділитись Опубліковано: 13 березня 2010 Покажите, пожалуйста, читаемые планировки с лестницей и мебелью. Может тогда что-то и выплывет. Хотя после уже проделанной работы, врядли. Ну и стандартный вопрос: чем будете топить (где будет размещен котел)? планировки с мебелью и лестницей будут немного позже .Котел турбо на кухне.Возможно резервный в гараже твердотопливник. Посилання на коментар Поділитися на інших сайтах More sharing options...
vickov Опубліковано: 14 березня 2010 Поділитись Опубліковано: 14 березня 2010 Я не опоздал к обсуждению? Ширина лестницы получается максимум 1050 мм. Мое мнение - не очень комфортная ширина. Когда обсуждались планировки в другой теме, то я как-то не обратил внимание на это. А недавно решал вопрос по расчету лестницы и почерпнул очень много нового для себя. Оказывается, самая комфортная ступенька - это примерно 150*300. Ширина 1 метр - маловато. Посилання на коментар Поділитися на інших сайтах More sharing options...
ДОКС Опубліковано: 14 березня 2010 Поділитись Опубліковано: 14 березня 2010 Я не опоздал к обсуждению? Ширина лестницы получается максимум 1050 мм. Мое мнение - не очень комфортная ширина. Когда обсуждались планировки в другой теме, то я как-то не обратил внимание на это. А недавно решал вопрос по расчету лестницы и почерпнул очень много нового для себя. Оказывается, самая комфортная ступенька - это примерно 150*300. Ширина 1 метр - маловато. Но при этом ещё существуют: определённое ограничение по площади, кол-во проживающих и заданная функциональность 2-го этажа... В данном проекте размер ступеней в пределах нормы 180*290. Посилання на коментар Поділитися на інших сайтах More sharing options...
vickov Опубліковано: 14 березня 2010 Поділитись Опубліковано: 14 березня 2010 Но при этом ещё существуют: определённое ограничение по площади, кол-во проживающих и заданная функциональность 2-го этажа... В данном проекте размер ступеней в пределах нормы 180*290. Я привык к ступенькам хрущевки:D и считаю их очень удобными. Даже в кромешной мгле, при отсутствии малейшего источника освещения по таким ступеням можно уверенно подниматься и спускаться. 180*290 - тоже нормально будет, дело привычки. Я для себя ширину марша сделал бы 1100. Посилання на коментар Поділитися на інших сайтах More sharing options...
ДОКС Опубліковано: 14 березня 2010 Поділитись Опубліковано: 14 березня 2010 Я привык к ступенькам хрущевки:D и считаю их очень удобными. Даже в кромешной мгле, при отсутствии малейшего источника освещения по таким ступеням можно уверенно подниматься и спускаться. 180*290 - тоже нормально будет, дело привычки. Я для себя ширину марша сделал бы 1100. Думаю 50 мм. (1050 или 1100?)не существенно скажутся на удобство перемещения....;) 1 Посилання на коментар Поділитися на інших сайтах More sharing options...
as1976as Опубліковано: 14 березня 2010 Автор Поділитись Опубліковано: 14 березня 2010 Я привык к ступенькам хрущевки:D и считаю их очень удобными. Даже в кромешной мгле, при отсутствии малейшего источника освещения по таким ступеням можно уверенно подниматься и спускаться. 180*290 - тоже нормально будет, дело привычки. Я для себя ширину марша сделал бы 1100. В принципе ДОКС меня опередил я тоже считаю что 50мм это уже не принципиально.А еще какие будут вопросы или замечания. Спасибо за ваше время которое вы тратите на обсуждение моего проекта. Посилання на коментар Поділитися на інших сайтах More sharing options...
vickov Опубліковано: 14 березня 2010 Поділитись Опубліковано: 14 березня 2010 В принципе ДОКС меня опередил я тоже считаю что 50мм это уже не принципиально.А еще какие будут вопросы или замечания. Спасибо за ваше время которое вы тратите на обсуждение моего проекта. Взял рулетку, пошел в подъезд, стал мерять и мысленно сужать лестницу и увеличивать высоту ступенек:D:D:D Скажу так. Если будет 180*290 и меньше ширина, то прыгать через ступеньку уже не удобно. А прыгать-то зачем? Нужно степенно передвигаться, так что на счет лестницы не заморачивайтесь. Остальное, что я не хотел бы у себя в доме, это большой разнос канализационных труб, но это так, чисто мое мнение. Посилання на коментар Поділитися на інших сайтах More sharing options...
as1976as Опубліковано: 14 березня 2010 Автор Поділитись Опубліковано: 14 березня 2010 Остальное, что я не хотел бы у себя в доме, это большой разнос канализационных труб, но это так, чисто мое мнение. По каналье и воде полностью с вами согласен потому и старался объединять помещения связанные с сантехникой,в одной стороне и примерно по одному стояку. Посилання на коментар Поділитися на інших сайтах More sharing options...
Рекомендовані повідомлення
Створіть акаунт або увійдіть у нього для коментування
Ви маєте бути користувачем, щоб залишити коментар
Створити акаунт
Зареєструйтеся для отримання акаунта. Це просто!
Зареєструвати акаунтУвійти
Вже зареєстровані? Увійдіть тут.
Увійти зараз