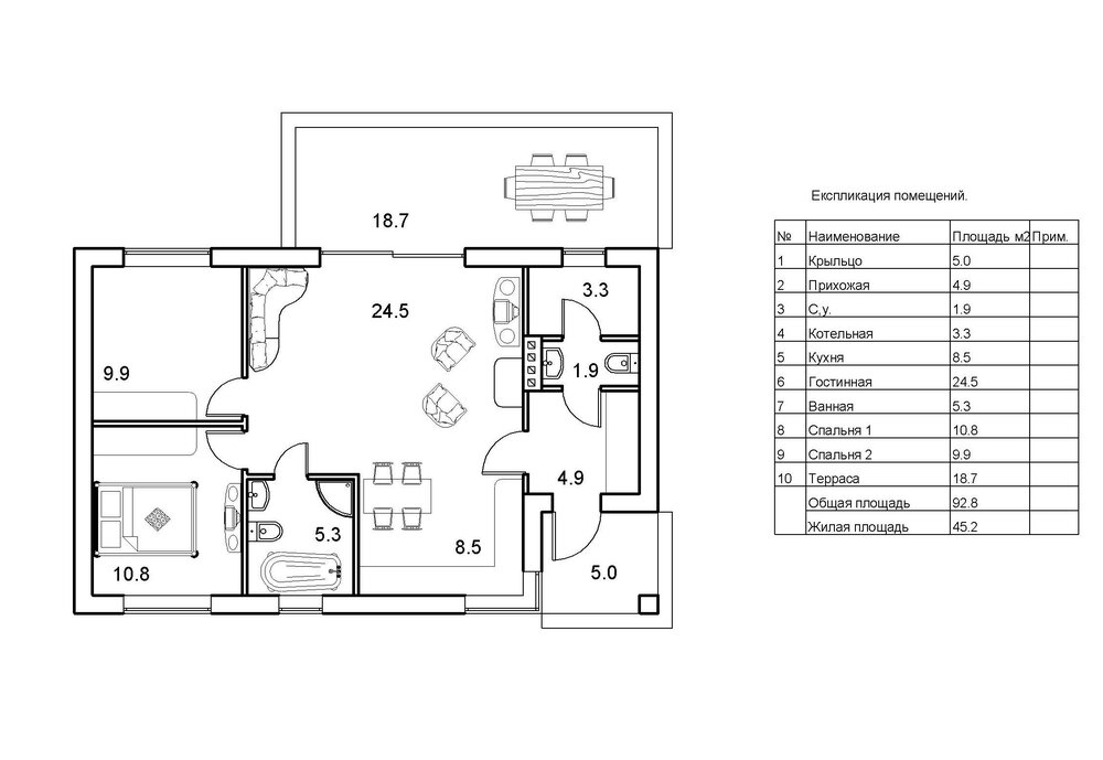
DimaS Опубліковано: 13 березня 2010 Поділитись Опубліковано: 13 березня 2010 Всем привет! есть такой проект. нравится и из-за этого не вижу объективных недостатков ))) хотелось бы взглянуть на него свежим (независимым :D)взглядом. приглашаю к обсуждению Посилання на коментар Поділитися на інших сайтах More sharing options...
DimaS Опубліковано: 13 березня 2010 Автор Поділитись Опубліковано: 13 березня 2010 хотя в оригинальном проекте коридором с.у. отделен из гостиной не видно Посилання на коментар Поділитися на інших сайтах More sharing options...
Danshow Опубліковано: 13 березня 2010 Поділитись Опубліковано: 13 березня 2010 Всем привет! есть такой проект. нравится и из-за этого не вижу объективных недостатков ))) У меня пока одно стандартное замечание: снег с крыши будет валится на крыльцо. Кроме этого по вытяжным каналам: как будет организована вытяжка из большого санузла? из топочной кроме дымохода нужна еще и естественная вытяжка на крышу. Посилання на коментар Поділитися на інших сайтах More sharing options...
ИНОЙ Опубліковано: 14 березня 2010 Поділитись Опубліковано: 14 березня 2010 Котельная меньше нормы, а это не есть гуд. Газовщики могут не принять. Посилання на коментар Поділитися на інших сайтах More sharing options...
Вредный Хряк Опубліковано: 14 березня 2010 Поділитись Опубліковано: 14 березня 2010 Котельная меньше нормы, а это не есть гуд. Газовщики могут не принять. в нормах емнип для котлов мощностью менее тридцати киловатт требуется кубатура помещения котельной от 7.5 кубометров. у ТС при потолках 2.5 кубатура будет 8.25. к чему придраться должны-то? Посилання на коментар Поділитися на інших сайтах More sharing options...
ИНОЙ Опубліковано: 14 березня 2010 Поділитись Опубліковано: 14 березня 2010 Вредный Хряк Согласен, даже если высота 2,2, все равно проходит. Но газовщики попадаються вредные особенно проектанты. Не понравилось угловое окно при входе. На картинке красиво, а при строительстве узел этот геморойный, перемычки и т.д. Посилання на коментар Поділитися на інших сайтах More sharing options...
kedr76 Опубліковано: 14 березня 2010 Поділитись Опубліковано: 14 березня 2010 А мені не дуже подобається наявність двох сан.вузлів-це додаткові проблеми з прокладанням водозабезпечення та каналізації.Думаю зав'язувати ванну+кухню+малий сан.вузол буде суто технічно не дуже з р у ч но.Існує ж правило-один поверх-один сан. вузол,хоча звичайно вирішувати Вам.Бажаю удачі! Посилання на коментар Поділитися на інших сайтах More sharing options...
DimaS Опубліковано: 14 березня 2010 Автор Поділитись Опубліковано: 14 березня 2010 спасибо за поддержку в обсуждении У меня пока одно стандартное замечание: снег с крыши будет валится на крыльцо. Кроме этого по вытяжным каналам: как будет организована вытяжка из большого санузла? из топочной кроме дымохода нужна еще и естественная вытяжка на крышу. вытяжка с ванной может пойти в конструкции потолка , аналогично и из кухни. в нормах емнип для котлов мощностью менее тридцати киловатт требуется кубатура помещения котельной от 7.5 кубометров. у ТС при потолках 2.5 кубатура будет 8.25. к чему придраться должны-то? Вредный Хряк Согласен, даже если высота 2,2, все равно проходит. Но газовщики попадаються вредные особенно проектанты. Не понравилось угловое окно при входе. На картинке красиво, а при строительстве узел этот геморойный, перемычки и т.д. кстати не сталкивался с ситуацией когда котел навесной в кухне, какие тут нормы? угловое окно это проблем... ) с одной стороны и красиво, но и геморно. думаю можно заменить на 2 через угловой кирпичный столб. А мені не дуже подобається наявність двох сан.вузлів-це додаткові проблеми з прокладанням водозабезпечення та каналізації.Думаю зав'язувати ванну+кухню+малий сан.вузол буде суто технічно не дуже з р у ч но.Існує ж правило-один поверх-один сан. вузол,хоча звичайно вирішувати Вам.Бажаю удачі! спасибо!!! таки да, удобней конечно когда все рядом, но для одноэтажного дома чем то придется пожертвовать. ))) 2 су желательно. Посилання на коментар Поділитися на інших сайтах More sharing options...
as1976as Опубліковано: 14 березня 2010 Поділитись Опубліковано: 14 березня 2010 кстати не сталкивался с ситуацией когда котел навесной в кухне, какие тут нормы? спасибо!!! таки да, удобней конечно когда все рядом, но для одноэтажного дома чем то придется пожертвовать. ))) 2 су желательно. Котел навесной в кухне до 30квт мощность,лучше когда турбо вывел в стену и не надо дымоход. А если дом 1-этаж то правда 2-санузла нужны -мое имхо. Посилання на коментар Поділитися на інших сайтах More sharing options...
Danshow Опубліковано: 14 березня 2010 Поділитись Опубліковано: 14 березня 2010 вытяжка с ванной может пойти в конструкции потолка , аналогично и из кухни. Где установлено газовое оборудование с открытой горелкой (например газовая плита), необходимо наличие _естественной_ вентиляции. Нужна прямая вытяжная труба выше конька. Вот документ. Там много. Вам нужен раздел 6.дбн_газ.zip Посилання на коментар Поділитися на інших сайтах More sharing options...
DimaS Опубліковано: 15 березня 2010 Автор Поділитись Опубліковано: 15 березня 2010 Где установлено газовое оборудование с открытой горелкой (например газовая плита), необходимо наличие _естественной_ вентиляции. Нужна прямая вытяжная труба выше конька. Вот документ. Там много. Вам нужен раздел 6. спасибо за документ! но _______ "6.28 Установку газовых плит в жилых зданиях следует предусматривать в помещениях кухонь высотой не менее 2,2 м, имеющих окно с форточкой (фра*мугой) или конструкцией жалюзийного типа, вытяжной вентиляционный канал (от себя - он предусмотрен воздуховодом пластиковым в блок венканалов в с.у.) и естественное освещение. ...... а здесь есть даже такой допуск -- 6.29 В существующих жилых зданиях допускается установка газовых плит: - в помещениях кухонь высотой не менее 2,2 м и объемом не менее ука*занного в 6.28 при отсутствии вентиляционного канала и невозможности ис*пользования в качестве такого канала дымоходов, но при наличии в помещении окна с форточкой (фрамугой) в верхней части окна или конструкции жалюзий*ного типа;" Посилання на коментар Поділитися на інших сайтах More sharing options...
Рекомендовані повідомлення
Створіть акаунт або увійдіть у нього для коментування
Ви маєте бути користувачем, щоб залишити коментар
Створити акаунт
Зареєструйтеся для отримання акаунта. Це просто!
Зареєструвати акаунтУвійти
Вже зареєстровані? Увійдіть тут.
Увійти зараз