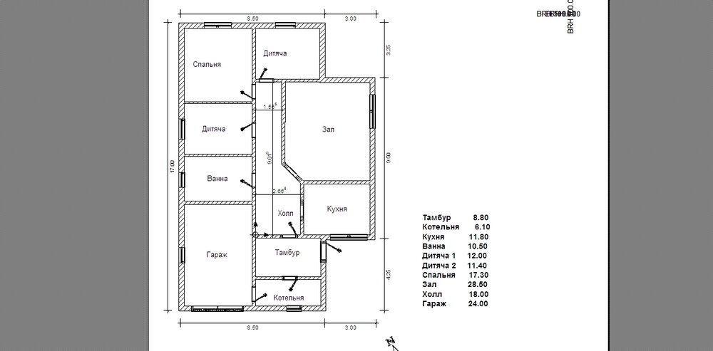
calipso Опубліковано: 27 березня 2010 Поділитись Опубліковано: 27 березня 2010 Необходимы услги архитектора для составления проектной документции. Место подачи проекта - Васильков Киевская обл. За основу взят проект "Запах весны М70" на muratordom.com.ua в зеркальном отображении. Немного переделан. Поэтому заказать готовый не представляется возможным. Да и дорого. Проектная документация необходима для получения согласований, разрешений и прочей бюрократии. Минимально необходимый минимум. Рад видеть ваши предложения! Прошу писать в личку. Не забывайте указывать Ваш контактный телефон - смогу ответить Вам в кратчайшие сроки. Спасибо! Посилання на коментар Поділитися на інших сайтах More sharing options...
Александр2008_111 Опубліковано: 13 квітня 2010 Поділитись Опубліковано: 13 квітня 2010 Можу допомогти з проектом, ліцензія дійсна по всій Україні. Посилання на коментар Поділитися на інших сайтах More sharing options...
Александр2008_111 Опубліковано: 13 квітня 2010 Поділитись Опубліковано: 13 квітня 2010 Можу допомогти з проектом. Ліцензія діє по всій Україні. 067-306-73-59 Александр Посилання на коментар Поділитися на інших сайтах More sharing options...
Александр2008_111 Опубліковано: 13 квітня 2010 Поділитись Опубліковано: 13 квітня 2010 Можу допомогти з проектом. Ліцензія діє по всій Україні. Посилання на коментар Поділитися на інших сайтах More sharing options...
dimidrolkin Опубліковано: 6 травня 2010 Поділитись Опубліковано: 6 травня 2010 Работаю в архитектурной компании. Если еще актуально могу спросить у архитектора. Сам проектирую электрику внешку и внутрянку + пожарку (для справки) Посилання на коментар Поділитися на інших сайтах More sharing options...
Рекомендовані повідомлення
Створіть акаунт або увійдіть у нього для коментування
Ви маєте бути користувачем, щоб залишити коментар
Створити акаунт
Зареєструйтеся для отримання акаунта. Це просто!
Зареєструвати акаунтУвійти
Вже зареєстровані? Увійдіть тут.
Увійти зараз