Lili Опубліковано: 30 жовтня 2007 Поділитись Опубліковано: 30 жовтня 2007 Всем добрый день! Необходим готовый проект одноэтажного домика с эксплуатируемой мансардой и гаражем (условно 10*10). Строить будем для продажи, потому особых изысков не требуется. может есть у кого нечто подобное?... оч надо! готова купить. спасибки Посилання на коментар Поділитися на інших сайтах More sharing options...
Мишка Опубліковано: 30 жовтня 2007 Поділитись Опубліковано: 30 жовтня 2007 Строить будем для продажи Извините, что не в тему. А какая прилизительная рентабельность предприятия? Посилання на коментар Поділитися на інших сайтах More sharing options...
Vl@dimir Опубліковано: 30 жовтня 2007 Поділитись Опубліковано: 30 жовтня 2007 Всем добрый день! Необходим готовый проект одноэтажного домика с эксплуатируемой мансардой и гаражем (условно 10*10). Добрый! Если найдёте такой, скиньте ссылочку, на план посмотриеть плз Посилання на коментар Поділитися на інших сайтах More sharing options...
NP Опубліковано: 30 жовтня 2007 Поділитись Опубліковано: 30 жовтня 2007 Предлагаю такой проект (ссылка устарела). Пользуется популярностью в России. Несложен в исполнении, относительно недорог в строительстве, подходит под ваши требования .Если понравится звоните 80954293773 или на мыло lavina.04@mail.ru Посилання на коментар Поділитися на інших сайтах More sharing options...
Alexander Pryakha Опубліковано: 1 листопада 2007 Поділитись Опубліковано: 1 листопада 2007 Предлагаю проект современного котеджа S=212м2. Проект - разработан мною, для себя я его и построил,т.е. являюсь -Автором и Влдельцем. Может быть построен и на продажу. Термодом - Cтены из термоблоков (пенополистерол+железобетон), перекрытия ж/б по стальным балкам, крыша - натуральная черепица. Есть все разделы проекта(РД)-рабочая документация, сметы по расходам и ст-ти материалов, адреса, телефоны поставщиков материалов. Дом годится для участка 5 соток - по генплану и схеме расположения - не нарушает правила застройки по ДБН. Долговечность такого дома составит 100-200 лет. Дом реально построен в Киевской обл. Бородянский район Есть фотофиксация всех строительных процесов (2Gbt фоток). Бригада строителей которые его делали тоже есть. Ждем вас в нашем проектном бюро на бул. Л.Украинки,26. 8-067-7334889 Александр pryakha@gmail.com Посилання на коментар Поділитися на інших сайтах More sharing options...
Юл-и-я Опубліковано: 1 листопада 2007 Поділитись Опубліковано: 1 листопада 2007 так лучше Посилання на коментар Поділитися на інших сайтах More sharing options...
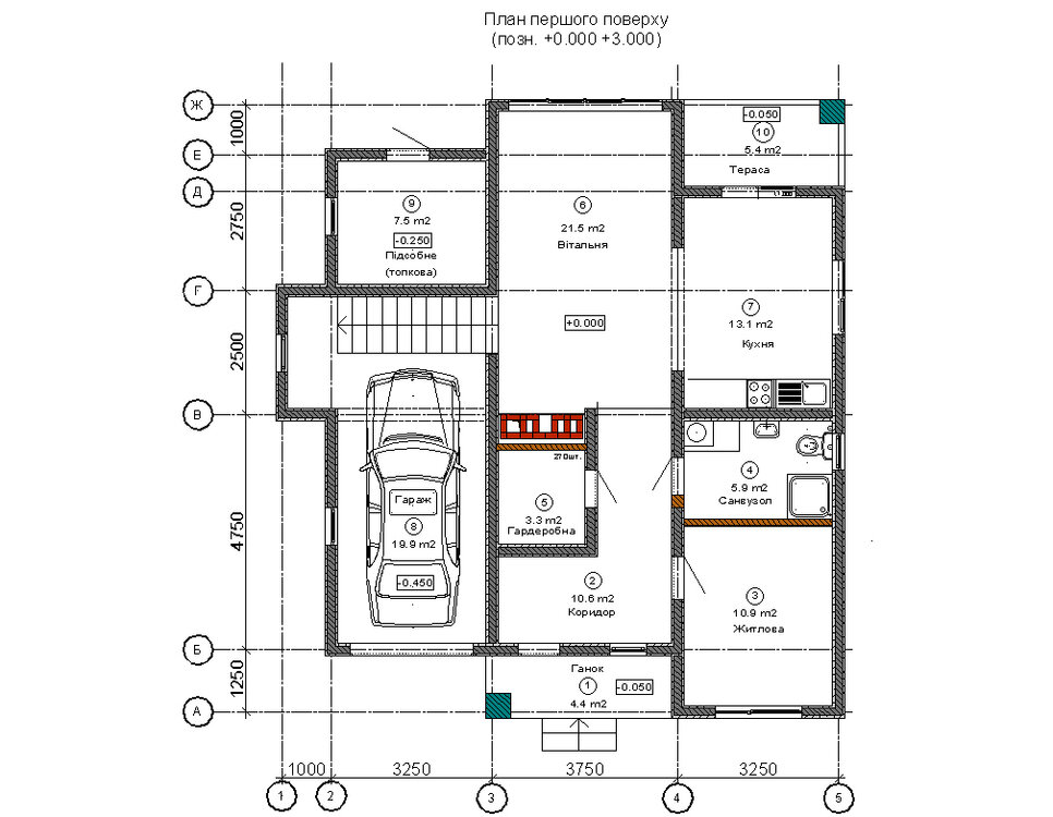
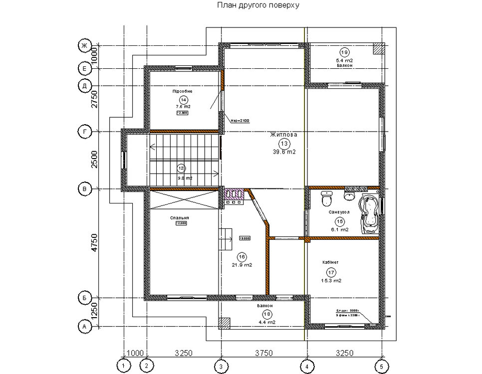
Alexander Pryakha Опубліковано: 3 листопада 2007 Поділитись Опубліковано: 3 листопада 2007 Вот собстенно продолжение... Фасады, разрез 1-1. Вопросы - приветствуются! Посилання на коментар Поділитися на інших сайтах More sharing options...
pronin Опубліковано: 7 листопада 2007 Поділитись Опубліковано: 7 листопада 2007 Всем добрый день! Необходим готовый проект одноэтажного домика с эксплуатируемой мансардой и гаражем (условно 10*10). Строить будем для продажи, потому особых изысков не требуется. может есть у кого нечто подобное?... оч надо! готова купить. спасибки Тоже могу предложить проект "Фига" архетоновский www.archeton.com.ua/index.php зеркальная проекция по нему и строюсь , только я его немного упростил при стройке. Посилання на коментар Поділитися на інших сайтах More sharing options...
Jarik Опубліковано: 8 листопада 2007 Поділитись Опубліковано: 8 листопада 2007 Могу предложить www.archon.com.ua/index.php?act=12&sid=m4107a2c6e180b&lang=ua По нему построились я и Сирко (у него упрощенный сельский вариант). Можно посмотреть внатуре. Посилання на коментар Поділитися на інших сайтах More sharing options...
Рекомендовані повідомлення
Створіть акаунт або увійдіть у нього для коментування
Ви маєте бути користувачем, щоб залишити коментар
Створити акаунт
Зареєструйтеся для отримання акаунта. Це просто!
Зареєструвати акаунтУвійти
Вже зареєстровані? Увійдіть тут.
Увійти зараз