Перейти до публікації
Пошук в
  • Додатково...
Шукати результати, які містять...
Шукати результати в...

Монолитное межэтажное перекрытие жилого дома

Гість DenisLisin

Рекомендовані повідомлення

Здравствуйте!

 

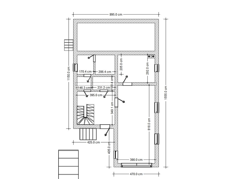
Хотел бы получить консультацию по устройству межэтажного монолитного перекрытия двухэтажного дома.

 

Чертеж проекта в приложенном файле.

 

Интересует рекомендуемая толщина, состав (пропорции щебня, песка, цемента) бетона, диаметр используемой арматуры, арматурный каркас.

 

Несущие стены - монолитные, толщина 15 см, пролеты 4.2 - 4.5 м.

 

Предварительно планирую толщину перекрытия 15 см, бетон М 300 (цемент М 400 - 300 кг, песок - 0.5 м3, щебень - 0.8 м3 на 1м3 бетона), однослойный каркас перекрытия из арматуры d 16мм, шаг 20*20 см.

 

Соответствуют ли планируемы параметры конструкции ее назначению или есть другие, более оптимальные варианты с экономической и нормативной точки зрения.

 

Буду очень рад и благодарен понятному для неспециалиста ответу.

1309912067_.thumb.jpg.8eeade88c3f8f90cd8ff344809d4dcb8.jpg

Посилання на коментар
Поділитися на інших сайтах

Здравствуйте!

 

Хотел бы получить консультацию по устройству межэтажного монолитного перекрытия двухэтажного дома.

 

Чертеж проекта в приложенном файле.

 

Интересует рекомендуемая толщина, состав (пропорции щебня, песка, цемента) бетона, диаметр используемой арматуры, арматурный каркас.

 

Несущие стены - монолитные, толщина 15 см, пролеты 4.2 - 4.5 м.

 

Предварительно планирую толщину перекрытия 15 см, бетон М 300 (цемент М 400 - 300 кг, песок - 0.5 м3, щебень - 0.8 м3 на 1м3 бетона), однослойный каркас перекрытия из арматуры d 16мм, шаг 20*20 см.

 

Соответствуют ли планируемы параметры конструкции ее назначению или есть другие, более оптимальные варианты с экономической и нормативной точки зрения.

 

Буду очень рад и благодарен понятному для неспециалиста ответу.

 

Тема много раз обсуждалась...поищите на форуме по ключевому слову "монолит"

 

www.stroimdom.com.ua/forum/showthread.php?t=4253&highlight=%ED%E8%EA%EE%E3%E4%E0+%E4%E5%EB%E0%EB

 

Далее ИМХО:

1) Для таких пролетов 15 см мало (18 см думаю)

2) Нужно делать 2 сетки. Верхняя- пожарная.

 

А вообще - нужно считать !!! Есть проги - попробуйте поиграться...

Змінено користувачем Sharkan
Посилання на коментар
Поділитися на інших сайтах

Створіть акаунт або увійдіть у нього для коментування

Ви маєте бути користувачем, щоб залишити коментар

Створити акаунт

Зареєструйтеся для отримання акаунта. Це просто!

Зареєструвати акаунт

Увійти

Вже зареєстровані? Увійдіть тут.

Увійти зараз
×
×
  • Створити...