vladf Опубліковано: 25 квітня 2010 Поділитись Опубліковано: 25 квітня 2010 Заканчиваем делать первый этаж, уже начали перекрывать и подошло время начать думать по дизайну. Планируем привлечь к этому вопросу специалиста. Прилагаю план первого этажа. Есть наше примерное видение внутреннего убранства, понимая что сами мы не справимся-готовы оплатить услуги дизайнера. Для принятия окончательного решения хотелось бы увидеть эскизы, рисунки или 3D визуализацию и стоимость м2. Прилагая также те варианты ,которые мы сами нашли в инете, для понимания общей концепции. Зал - , ,пол ламинат темный под дерево - вишня или темный дуб и тд Кухня - , обязательно хотим "остров" в кухне и как на картинках отделенная варочная панель с вытяжкой холл - на усмотрение дизайнера, но желательны ниши из гипсокартона, разноуровневый потолок, а в зале натяжные потолки. С нетерпением ждем Ваших предложений! Посилання на коментар Поділитися на інших сайтах More sharing options...
irri Опубліковано: 25 квітня 2010 Поділитись Опубліковано: 25 квітня 2010 vladf интересно было бы узнать, сколько человек будет жить в доме, часто ли приезжают гости, что именно вы хотели бы разместить на первом этаже: гостинная, кухня, столовая, хоз. помещения и т.д. Посилання на коментар Поділитися на інших сайтах More sharing options...
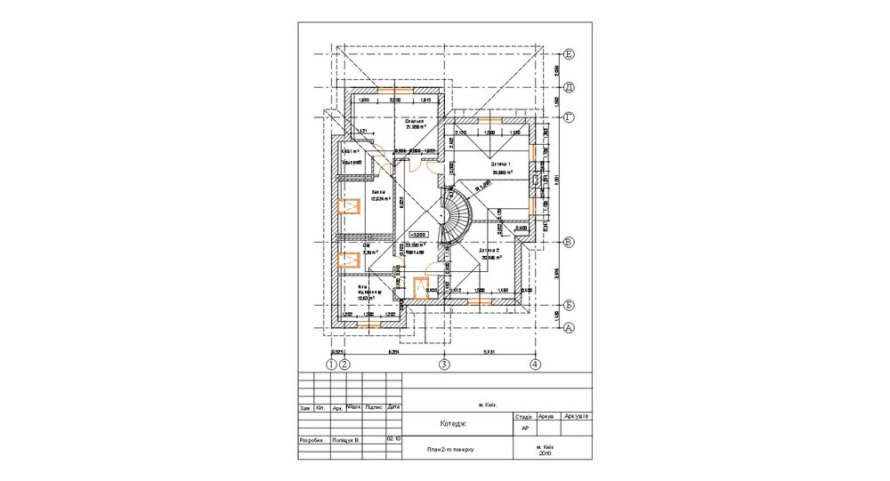
Genkot Опубліковано: 25 квітня 2010 Поділитись Опубліковано: 25 квітня 2010 И планировку второго этажа покажите Посилання на коментар Поділитися на інших сайтах More sharing options...
vladf Опубліковано: 25 квітня 2010 Автор Поділитись Опубліковано: 25 квітня 2010 vladf интересно было бы узнать, сколько человек будет жить в доме, часто ли приезжают гости, что именно вы хотели бы разместить на первом этаже: гостинная, кухня, столовая, хоз. помещения и т.д. Жить будет семья из 5-ти человек, гости/друзья родственники тоже будут наведоваться, но без фанатизма :D,на первом этаже слева нижняя часть по часовой стрелке-гостевая комната, небольшая кладовая или гардеробная, котельная, с/у, кухня-столовая, зал, кабинет. Посилання на коментар Поділитися на інших сайтах More sharing options...
vladf Опубліковано: 25 квітня 2010 Автор Поділитись Опубліковано: 25 квітня 2010 И планировку второго этажа покажите упсс, забыл вставить - Посилання на коментар Поділитися на інших сайтах More sharing options...
irri Опубліковано: 25 квітня 2010 Поділитись Опубліковано: 25 квітня 2010 над планировкой еще нужно подумать, а общее цветовое и стилевое решение, я вижу таким: Посилання на коментар Поділитися на інших сайтах More sharing options...
vladf Опубліковано: 25 квітня 2010 Автор Поділитись Опубліковано: 25 квітня 2010 Первая картинка, из присланных Вами, наиболее близко подходит, единственно цвет стен ИМХО делает зал очень темным. Если Вы дизайнер-не могли бы вы прислать, можно в личку, какие-нибудь реальные свои работы и стоимость Ваших услуг и что в них входит? Посилання на коментар Поділитися на інших сайтах More sharing options...
vladf Опубліковано: 27 квітня 2010 Автор Поділитись Опубліковано: 27 квітня 2010 получил 4 предложения в личку - всем отписался. Жду еще предложений, чтобы точно определится с подрядчиком Посилання на коментар Поділитися на інших сайтах More sharing options...
vladf Опубліковано: 27 квітня 2010 Автор Поділитись Опубліковано: 27 квітня 2010 Судя по активности, а точнее по ее отсутствию, понимаю что у всех работы очень много...пока нормальное комм.предложение дал Genkot.., подожду еще пару дней и начнем мучать дизайнера своими глубыми пожеланиями:D Посилання на коментар Поділитися на інших сайтах More sharing options...
vladf Опубліковано: 6 травня 2010 Автор Поділитись Опубліковано: 6 травня 2010 Судя по активности, а точнее по ее отсутствию, понимаю что у всех работы очень много...пока нормальное комм.предложение дал Genkot.., подожду еще пару дней и начнем мучать дизайнера своими глубыми пожеланиями:D Всем спасибо за предложения - работать буду с Gencot*oм, потом выложу что получилось в итоге. Посилання на коментар Поділитися на інших сайтах More sharing options...
Alf_енок Опубліковано: 6 травня 2010 Поділитись Опубліковано: 6 травня 2010 и как это я тебя прозевала может стоит создать уже свою ветку о строительстве? показывать уже есть что... Посилання на коментар Поділитися на інших сайтах More sharing options...
vladf Опубліковано: 6 травня 2010 Автор Поділитись Опубліковано: 6 травня 2010 и как это я тебя прозевала может стоит создать уже свою ветку о строительстве? показывать уже есть что... первую и вторую фразы не понял а показывать пока не хочу, думаю сначала все сделать, а потом уже показывать-я в процессе строительства принимаю опосредствованное участие, привожу денежные знаки и говорю что нравится и как бы и что я хотел бы дальше видеть;) Посилання на коментар Поділитися на інших сайтах More sharing options...
vladf Опубліковано: 26 травня 2010 Автор Поділитись Опубліковано: 26 травня 2010 Получил первые работы от Genkot, очень порадовали. прошу любить и жаловать если есть конструктивные замечания(что-то упущено из техники, освещения, переместить что-то - буду благодарен), к общему же стилю и цветовой гамме комментарии прошу не писать-мне все нравится! Посилання на коментар Поділитися на інших сайтах More sharing options...
savvang Опубліковано: 26 травня 2010 Поділитись Опубліковано: 26 травня 2010 красивая кухня получилась 1. кран на мойке я бы разместила сбоку, т.к окно не сможете окрыть. 2.колличество галогенок над плитой можно уменьшить, а вот добавить овещение непосредственно под навесными шкафчиками над рабочей зоной было бы неплохо 3.возможно возле стеклянного стола поставила что-то вроде торшера вместо вазона т.к. света от галогенок как по мне маловато. 1 Посилання на коментар Поділитися на інших сайтах More sharing options...
vladf Опубліковано: 26 травня 2010 Автор Поділитись Опубліковано: 26 травня 2010 красивая кухня получилась 1. кран на мойке я бы разместила сбоку, т.к окно не сможете окрыть. 2.колличество галогенок над плитой можно уменьшить, а вот добавить овещение непосредственно под навесными шкафчиками над рабочей зоной было бы неплохо 3.возможно возле стеклянного стола поставила что-то вроде торшера вместо вазона т.к. света от галогенок как по мне маловато. Спасибо огромное! все правильно, как это мы сразу не заметили!? Посилання на коментар Поділитися на інших сайтах More sharing options...
vladf Опубліковано: 27 травня 2010 Автор Поділитись Опубліковано: 27 травня 2010 Теперь зал...много вопросов, если кухня очень понравилась, то зал получился скучноватым. Понравилось мне только лестница на второй этаж и ступеньки из кухни в зал...камин скучный, переходов цветовых нет, стол чопорный, стулья тоже, света кажется мало, стены все одинаковые, нет навесных полочек, натяжной потолок аналогичен кухонному-а может другой цвет использовать?... в общем буду признателен форумчанам за новые идеи, которые наш дизайнер воплотит в следующие работы по залу, после чего выставим на ваш суд. Посилання на коментар Поділитися на інших сайтах More sharing options...
vladf Опубліковано: 27 травня 2010 Автор Поділитись Опубліковано: 27 травня 2010 и никто ничего не говорит... хоть немного подскажите, что да как лучше сделать;) Посилання на коментар Поділитися на інших сайтах More sharing options...
Hover Опубліковано: 27 травня 2010 Поділитись Опубліковано: 27 травня 2010 Вот как ......................................., на да сначала сделать саму модель здания потом сформировать интерьер да не один, расставить, дать освещения, и уж потом крутить вертеть, продумывать. И на это все уходить вагоны времени. А если просто сказать кто как видит интерьер моего дома, ну ладна скажу засеять все живой травой во красота будет, вы только представьте, Сидишь в кресле вокруг трава, плазменный телевизор у самой кромки травы блаженство единение с природой. ....Лепота.... ..................................................... И кто будет этим нашару заниматься. Но вот сам посуди. Посилання на коментар Поділитися на інших сайтах More sharing options...
Домовой другой Опубліковано: 27 травня 2010 Поділитись Опубліковано: 27 травня 2010 1. Зона гостиной отделена от столовой ригелем, лежащим на прямоугольных колоннах. Вот именно это стоит обыграть как момент естественной смены колора. 2. Камин стоит встроить в вертикальный пилон, не квадратить, а вытянуть ввысь. Само пространство расползается по горизонтали, поэтому такой акцент будет уместен. ну и еще ряд замечаний и советов. Но как верно сказал Ховер - рецензии и консультации профессионалов должны оплачиваться. Потому как не совсем верно, если разум коллективный, а гонорар индивидуальный. 1 Посилання на коментар Поділитися на інших сайтах More sharing options...
vladf Опубліковано: 28 травня 2010 Автор Поділитись Опубліковано: 28 травня 2010 Вот как ......................................., на да сначала сделать саму модель здания потом сформировать интерьер да не один, расставить, дать освещения, и уж потом крутить вертеть, продумывать. И на это все уходить вагоны времени. А если просто сказать кто как видит интерьер моего дома, ну ладна скажу засеять все живой травой во красота будет, вы только представьте, Сидишь в кресле вокруг трава, плазменный телевизор у самой кромки травы блаженство единение с природой. ....Лепота.... ..................................................... И кто будет этим нашару заниматься. Но вот сам посуди. Уважаемый Hover, мы работаем с Genkotом, я просто спрашивал совета, что где можно добавить...и все Посилання на коментар Поділитися на інших сайтах More sharing options...
vladf Опубліковано: 28 травня 2010 Автор Поділитись Опубліковано: 28 травня 2010 1. Зона гостиной отделена от столовой ригелем, лежащим на прямоугольных колоннах. Вот именно это стоит обыграть как момент естественной смены колора. 2. Камин стоит встроить в вертикальный пилон, не квадратить, а вытянуть ввысь. Само пространство расползается по горизонтали, поэтому такой акцент будет уместен. ну и еще ряд замечаний и советов. Но как верно сказал Ховер - рецензии и консультации профессионалов должны оплачиваться. Потому как не совсем верно, если разум коллективный, а гонорар индивидуальный. спасибо за советы, что касается вашего последнего предложения, то насколько я понимаю, этот форум и создан для обмена опытом и советами что, где и как лучше сделать, люди делятся своим мнением и опытом 8-) я к примеру с удовольствием подскажу что и в какой последовательности делать при оформлении дома(запуска в эксплуатацию), так как сам это прошел/прохожу с боями и зачем люди должны натыкаться на те же грабли что и я? и денег за это я не попрошу. Посилання на коментар Поділитися на інших сайтах More sharing options...
Домовой другой Опубліковано: 28 травня 2010 Поділитись Опубліковано: 28 травня 2010 Вот я увлекаюсь каллиграфией. И с удовольствием делюсь с людьми своими умениями и знаниями. Бесплатно, поскольку это лишь косвенно касается сферы моей профдеятельности. Все, что лежит в рамках этой сферы, я делаю за деньги, поскольку это основной источник выживания моей семьи. Если я буду в чужих проектах участвовать на благотворительной основе, моя семья умрет с голоду. Все очень просто. И у всех именно так. Вы ведь, насколько понимаю, не занимаетесь решением вопросов по отводу-регистрации, как основным видом деятельности? Это для вас та же каллиграфия. Делитесь. С вами тоже делятся, если заметили. Посилання на коментар Поділитися на інших сайтах More sharing options...
vladf Опубліковано: 28 травня 2010 Автор Поділитись Опубліковано: 28 травня 2010 . Делитесь. С вами тоже делятся, если заметили. 1. Делюсь чем могу. 2. Заметил. 3. Спасибо. p.s кто-то не из меркантильных побуждений может высказать свое мнение о дизайне моего зала? Просто высказать свое мнение, чтобы он сделал или добавил в дизайн? Посилання на коментар Поділитися на інших сайтах More sharing options...
Basik Опубліковано: 28 травня 2010 Поділитись Опубліковано: 28 травня 2010 Я бы поменяла столовую и гостинную зону местами.Во-первых,на мой взгляд такой диванчик маловат для такого шикарного зала.А вдруг гости нагрянут-где сидеть будут?:DДа и стол под лестницей,мне кажется,не очень уют создает,и тарелки носить через диваны неудобно...НА стены можно обои добавить,внести какую-то динамику.Рисунков сейчас великое множество!!Все-таки помещение большое и все однотонное очень.А там где будет диванная и каминная,поставить мягкую мебель или Г-образно или П-образно(угловой диван+кресло или разных размеров диванчики 3+2+1).Так лучше будет и ТВ смотреть,и за огнем наблюдать.Форму мебели,конечно,можно сменить,но я думаю,что это все-таки рисунок,и реальную мебель все-таки Вы будете подбирать уже вместе с дизайнером,так-сказать"живьем".А вообще,все выглядит очень и очень симпатично!! 1 Посилання на коментар Поділитися на інших сайтах More sharing options...
vladf Опубліковано: 28 травня 2010 Автор Поділитись Опубліковано: 28 травня 2010 (змінено) Я бы поменяла столовую и гостинную зону местами.Во-первых,на мой взгляд такой диванчик маловат для такого шикарного зала.А вдруг гости нагрянут-где сидеть будут?:DДа и стол под лестницей,мне кажется,не очень уют создает,и тарелки носить через диваны неудобно...НА стены можно обои добавить,внести какую-то динамику.Рисунков сейчас великое множество!!Все-таки помещение большое и все однотонное очень.А там где будет диванная и каминная,поставить мягкую мебель или Г-образно или П-образно(угловой диван+кресло или разных размеров диванчики 3+2+1).Так лучше будет и ТВ смотреть,и за огнем наблюдать.Форму мебели,конечно,можно сменить,но я думаю,что это все-таки рисунок,и реальную мебель все-таки Вы будете подбирать уже вместе с дизайнером,так-сказать"живьем".А вообще,все выглядит очень и очень симпатично!! менять гостевую и столовую зону в зале наверно не стоит(мы тоже думали так изначально сделать), но потом подумав, что в зале у нас выход большой на террасу и закрывать столом вид на участок наверно не стоит+столовой зоной пользоваться(принимать гостей и праздновать что-то) мы будем значительно реже чем просто смотреть телик или смотреть на огонь, а в общем спасибо огромное за советы! обязательно передам Ваши замечания жене:D и дизайнеру, что получится обязательно покажу чуть позже! Змінено 28 травня 2010 користувачем vladf вспомнил :) Посилання на коментар Поділитися на інших сайтах More sharing options...
Рекомендовані повідомлення
Створіть акаунт або увійдіть у нього для коментування
Ви маєте бути користувачем, щоб залишити коментар
Створити акаунт
Зареєструйтеся для отримання акаунта. Це просто!
Зареєструвати акаунтУвійти
Вже зареєстровані? Увійдіть тут.
Увійти зараз