wolf_cub Опубліковано: 22 травня 2010 Поділитись Опубліковано: 22 травня 2010 (змінено) Уважаемые специалисты по возведению крыш, если кого-то интересует фронт работ по возведению крыши площадью 226,7 м.кв. под ключ в сентябре-октябре этого года, готов рассмотреть Ваши сметы, при условии, что сметы включают полную спецификацию комплектующих и стоимость работ. На основании предложенных смет буду определятся с подрядчиком. Параметры крыши: 1. Материал кровли - Катепал; 2. Стропильная система - на данный мометн отсутствует, прошу включить в смету; 3. Вводосточка, подшивка карнизов - прошу включить в смету однозначно; 4. Утепление - не уверен, но прошу включить для рассмотрения; 5. Крыша будет располагаться в с. Чабаны (к.-святошинский рн., около 2-х км. от киева). Вариант "позвоните, поговорим" не интиресует, так как звонить буду не раньше августа, а понимание сколько денег нужно и на что хотелось бы получить уже сейчас. Вариант " ххх грн./м.кв." не интиресует, так-как без понимания составляющих цены не дает возможности объективно сравнивать предложения. Заранее благодарю за проявленное внимание к данной теме и за Ваши ответы. Змінено 22 травня 2010 користувачем wolf_cub Посилання на коментар Поділитися на інших сайтах More sharing options...
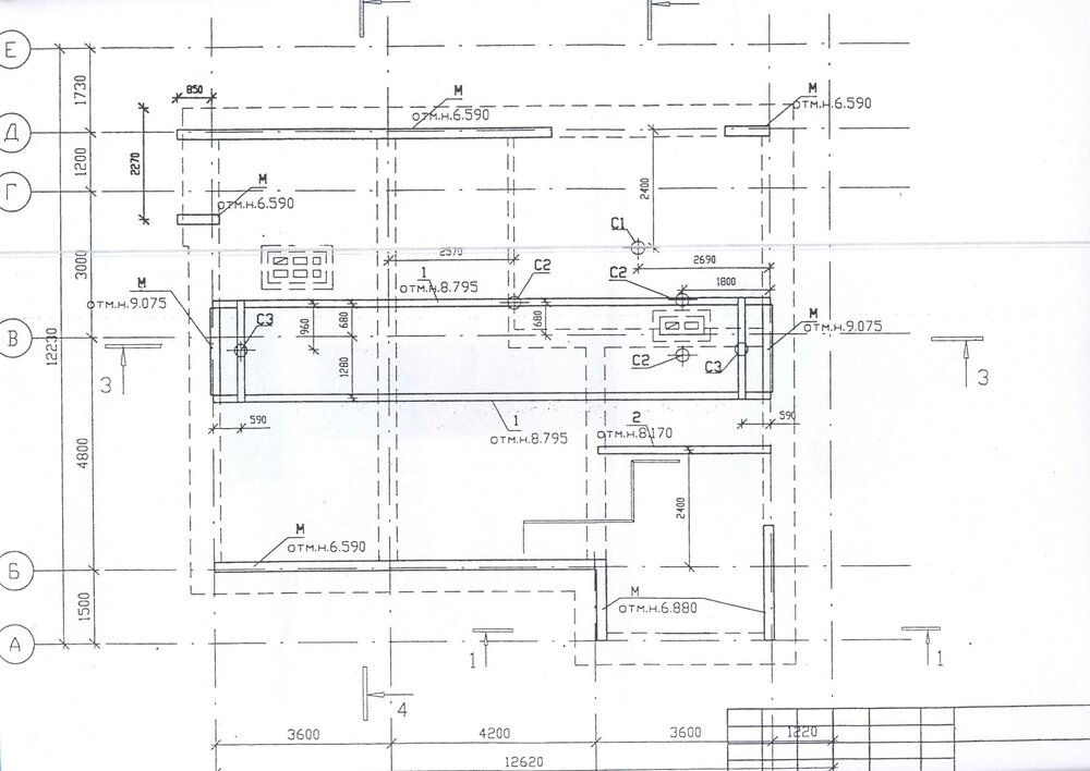
wolf_cub Опубліковано: 22 травня 2010 Автор Поділитись Опубліковано: 22 травня 2010 а вот и чертежи. Посилання на коментар Поділитися на інших сайтах More sharing options...
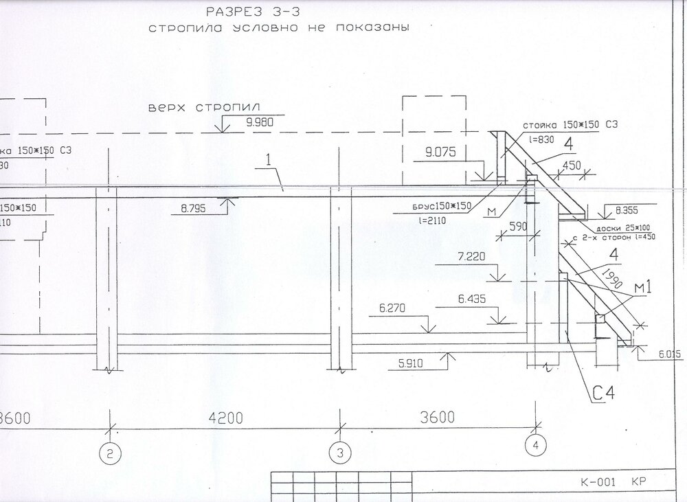
wolf_cub Опубліковано: 22 травня 2010 Автор Поділитись Опубліковано: 22 травня 2010 продолжение чертежей Посилання на коментар Поділитися на інших сайтах More sharing options...
Expert Опубліковано: 22 травня 2010 Поділитись Опубліковано: 22 травня 2010 Добрый день! Чтобы понять, сколько примерно Вам нужно денег, вполне подойдет вариант "ххх грн. /м2". что даст Вам возможность БАЗОВО сравнивать предложения и до августа собирать лэвэ. Можете вполне готовить 35-40 штук гривень. Вот Вам и вся смета в хорошем исполнении работ. Тем более, что денег лишних у Вас не останется, а судя по выбору кровельного покрытия, со вкусом и общим пониманием, что такое качество у Вас все впорядке, а это значит, что и на работах Вы не будете необоснованно экономить. Поэтому, чтобы сравнить объективно, наверное, нужно не только созвониться, но и встретиться, для уточнения Ваших пожеланий, условий проживания, сроков и т.д. В том числе и посмотреть портфолио с работами строителей, проверить их компетенции и т.д. Наверное, только тогда речь дойдет до настоящей сметы по конкретно Вашему объекту. А пока, по Вашим тробования можно понять, чтобы Вы сейчас простреливаете только ценовую составляющую без вникания в другие более важные моменты. Вот у Вас и получится разбег от 20 до 50 тыс.грн. Неужели Вам это нужно? 2 Посилання на коментар Поділитися на інших сайтах More sharing options...
wolf_cub Опубліковано: 22 травня 2010 Автор Поділитись Опубліковано: 22 травня 2010 (змінено) Добрый день! Чтобы понять, сколько примерно Вам нужно денег, вполне подойдет вариант "ххх грн. /м2". что даст Вам возможность БАЗОВО сравнивать предложения и до августа собирать лэвэ. Можете вполне готовить 35-40 штук гривень. Вот Вам и вся смета в хорошем исполнении работ. Тем более, что денег лишних у Вас не останется, а судя по выбору кровельного покрытия, со вкусом и общим пониманием, что такое качество у Вас все впорядке, а это значит, что и на работах Вы не будете необоснованно экономить. Поэтому, чтобы сравнить объективно, наверное, нужно не только созвониться, но и встретиться, для уточнения Ваших пожеланий, условий проживания, сроков и т.д. В том числе и посмотреть портфолио с работами строителей, проверить их компетенции и т.д. Наверное, только тогда речь дойдет до настоящей сметы по конкретно Вашему объекту. А пока, по Вашим тробования можно понять, чтобы Вы сейчас простреливаете только ценовую составляющую без вникания в другие более важные моменты. Вот у Вас и получится разбег от 20 до 50 тыс.грн. Неужели Вам это нужно? По словам Крышника м.кв. кровли будет стоить 550 +-50 грн. - это около 120 тыс. грн. По вашим словам это около 35-40 тыс. грн. Не понимаю за счет чего такая разница. Да мне хочется понять цену всего пирога в разрезе, это правда. Пытался сам набрать 550 грн, никак не получилось... Поэтому, если все же не сложно, может кто посчитает детальную смету? Змінено 22 травня 2010 користувачем wolf_cub Посилання на коментар Поділитися на інших сайтах More sharing options...
Рекомендовані повідомлення
Створіть акаунт або увійдіть у нього для коментування
Ви маєте бути користувачем, щоб залишити коментар
Створити акаунт
Зареєструйтеся для отримання акаунта. Це просто!
Зареєструвати акаунтУвійти
Вже зареєстровані? Увійдіть тут.
Увійти зараз