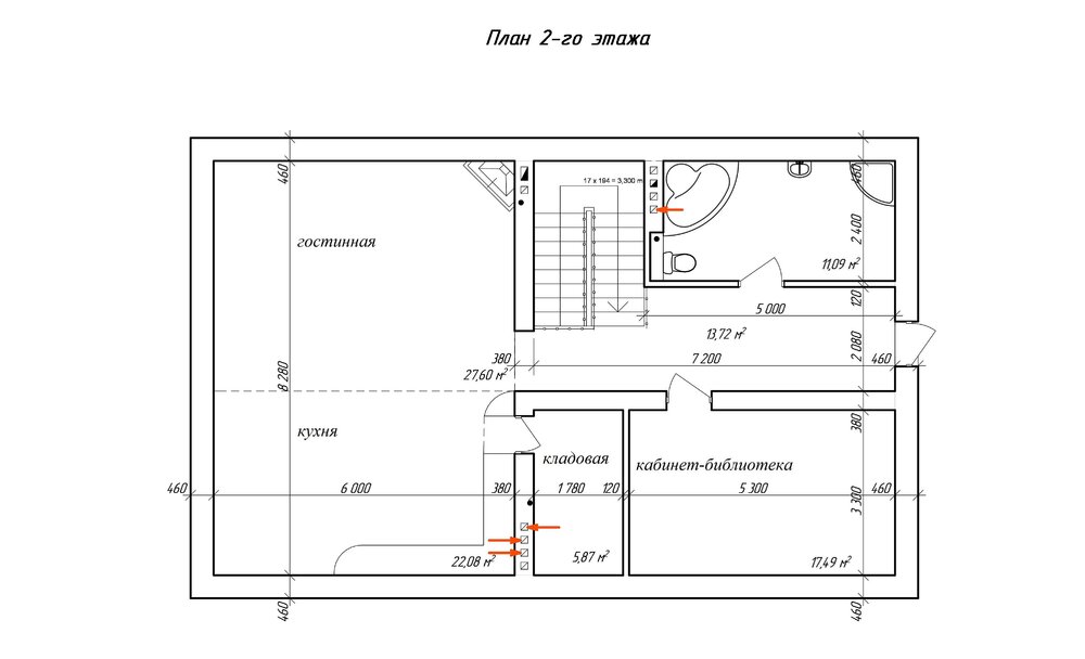
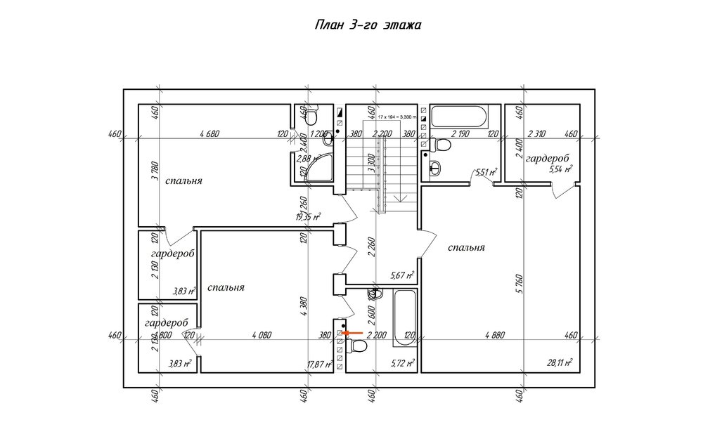
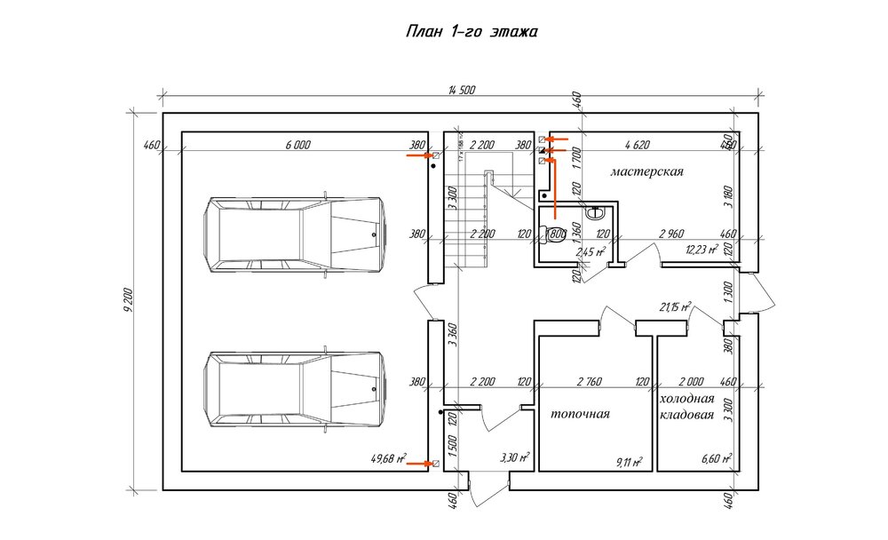
VasAnd Опубліковано: 5 червня 2010 Поділитись Опубліковано: 5 червня 2010 Нуждаемся в конструктивной критике будущего проекта дома. Возможно, Ваша критика поможет нам лучше воплотить свою мечту в реальность!.. Ведь, как говорится, одна голова хорошо, а гуртом і батька легше бити! :D Дом планируется на семью из пока маленьких двух деток и их родителей (уже не маленьких):D. 1-й этаж НЕ цокольный (т.к. вода близко с. Гатное) решили максимально отсечь от жилой части дома и сгруппировать все техпомещения там. На втором этаже кухня, кладовая, гостинная, санузел и кабинет-библиотека. Тут у нас есть сомнения по планировке этого этажа. Смущает та половина, где санузел и кабинет. 3-й этаж мансардный. Включает 3 спальни с персональным горшком-душем для каждого и гардеробной. Посилання на коментар Поділитися на інших сайтах More sharing options...
вторик Опубліковано: 5 червня 2010 Поділитись Опубліковано: 5 червня 2010 скучно очень. подозреваю вход-вьезд слева. попробуйте организовать внешнюю парадную лестницу пол подъема, и остальную половину в вестибюле, тоже парадной, поиграйте с уровнями, может чего нарисуется. Посилання на коментар Поділитися на інших сайтах More sharing options...
ДОКС Опубліковано: 5 червня 2010 Поділитись Опубліковано: 5 червня 2010 Нуждаемся в конструктивной критике будущего проекта дома. Возможно, Ваша критика поможет нам лучше воплотить свою мечту в реальность!.. Ведь, как говорится, одна голова хорошо, а гуртом і батька легше бити! :D Дом планируется на семью из пока маленьких двух деток и их родителей (уже не маленьких):D. 1-й этаж НЕ цокольный (т.к. вода близко с. Гатное) решили максимально отсечь от жилой части дома и сгруппировать все техпомещения там. На втором этаже кухня, кладовая, гостинная, санузел и кабинет-библиотека. Тут у нас есть сомнения по планировке этого этажа. Смущает та половина, где санузел и кабинет. 3-й этаж мансардный. Включает 3 спальни с персональным горшком-душем для каждого и гардеробной. 1. Что такое с.Гатное? 2. Всё что планировали на первом этаже, размещайте на первом. 3. Соответственно с третьего переносим на второй. 4. Планировку надо дорабатывать 5. Остальное написал Вам в "личное сообщение". ;) Посилання на коментар Поділитися на інших сайтах More sharing options...
VasAnd Опубліковано: 5 червня 2010 Автор Поділитись Опубліковано: 5 червня 2010 1. Что такое с.Гатное? 2. Всё что планировали на первом этаже, размещайте на первом. 3. Соответственно с третьего переносим на второй. 4. Планировку надо дорабатывать 5. Остальное написал Вам в "личное сообщение". ;) Намек понял с. Гатное - это фактически Киев (возле Одесской площади). Киево-Святошинский р-н. Если перенести с все с третьего на второй, сохранняя приблизительные размеры помещений, то куда поместится кухня, гостинная, библиотека и санузел или получится громаднейший дом, расплывшийся на 70% участка (12 соток)... В нашем варианте участка 25х50 м мы пытаемся оставить в итоге побольше места для собственно природы, плодовых деревьев, кУлУбники и т.п. Поэтому и возник третий этаж... Хотя, может в ходе Ваших мыслей и есть огромное рациональное зерно. Спасибки, будем думать. Посилання на коментар Поділитися на інших сайтах More sharing options...
ДОКС Опубліковано: 5 червня 2010 Поділитись Опубліковано: 5 червня 2010 Намек понял с. Гатное - это фактически Киев (возле Одесской площади). Киево-Святошинский р-н. Если перенести с все с третьего на второй, сохранняя приблизительные размеры помещений, то куда поместится кухня, гостинная, библиотека и санузел или получится громаднейший дом, расплывшийся на 70% участка (12 соток)... В нашем варианте участка 25х50 м мы пытаемся оставить в итоге побольше места для собственно природы, плодовых деревьев, кУлУбники и т.п. Поэтому и возник третий этаж... Хотя, может в ходе Ваших мыслей и есть огромное рациональное зерно. Спасибки, будем думать. Думайте...;) нужна помощь - обращайтесь... Посилання на коментар Поділитися на інших сайтах More sharing options...
VasAnd Опубліковано: 9 червня 2010 Автор Поділитись Опубліковано: 9 червня 2010 Неужели больше нет ни у кого замечаний и предложений?.. Проект идеален? Посилання на коментар Поділитися на інших сайтах More sharing options...
Virrus Опубліковано: 9 червня 2010 Поділитись Опубліковано: 9 червня 2010 Сугубо мое личное мнение (хотели критику "нате"): по сообщению можно понять - подход серьезный, было пару семейных советов и высшее образование тоже имеется - поэтому по планировке все лгично, но "по жизни": - вся активная жизнь в доме протекает на кухне\гостинной, а если на улице хорошо (весна,лето,осень) то это кухня\гостинная\газон. Следовательно расстояние меджу этими местами должно быть минимальным и никак не связано подъемами и спусками по лестнице. Да можно подняться на второй этаж поспать или переодеться - но не на третий же... Так как дома строятся не на один год можно представить себе пожилого человека которому приходиться прилагать соответствующие усилия... Вобщем не буду негативить, по моему нужно пересмотреть назначение помещений, вплоть до отдельного гаража с мастерской на чердаке. Посилання на коментар Поділитися на інших сайтах More sharing options...
ИНОЙ Опубліковано: 9 червня 2010 Поділитись Опубліковано: 9 червня 2010 Вход из гаража в дом желательно выполнить через тамбур иначе рискуете нюхать "бензин" по всему дому. Посилання на коментар Поділитися на інших сайтах More sharing options...
руки_из_попы Опубліковано: 10 червня 2010 Поділитись Опубліковано: 10 червня 2010 если вы не ремонтируете свою машину сами. то для машины уже никто не строит гараж.... делается навес...для машины так лучше и для вас дешевле..)) Посилання на коментар Поділитися на інших сайтах More sharing options...
MSVUA Опубліковано: 13 червня 2010 Поділитись Опубліковано: 13 червня 2010 - вся активная жизнь в доме протекает на кухне\гостинной, а если на улице хорошо (весна,лето,осень) то это кухня\гостинная\газон. Следовательно расстояние меджу этими местами должно быть минимальным и никак не связано подъемами и спусками по лестнице. Полностью согласен с этим утверждением.Первый этаж--вся активная жизнь в доме. - Так как дома строятся не на один год можно представить себе пожилого человека которому приходиться прилагать соответствующие усилия... Есть парочка знакомых (сейчас им от 43 до 45),так бегали на 2 этаж когда были помоложе:D,а сейчас уже не охота.Говорят достаточно 1 этажа и террасы. Однозначно первый этаж---гостиная,кухня... Посилання на коментар Поділитися на інших сайтах More sharing options...
Рекомендовані повідомлення
Створіть акаунт або увійдіть у нього для коментування
Ви маєте бути користувачем, щоб залишити коментар
Створити акаунт
Зареєструйтеся для отримання акаунта. Це просто!
Зареєструвати акаунтУвійти
Вже зареєстровані? Увійдіть тут.
Увійти зараз