yojig Опубліковано: 7 червня 2010 Поділитись Опубліковано: 7 червня 2010 наконец-то наши архитекторы закончили проект теперь пора обсуждать его, и искать косяки =) Посилання на коментар Поділитися на інших сайтах More sharing options...
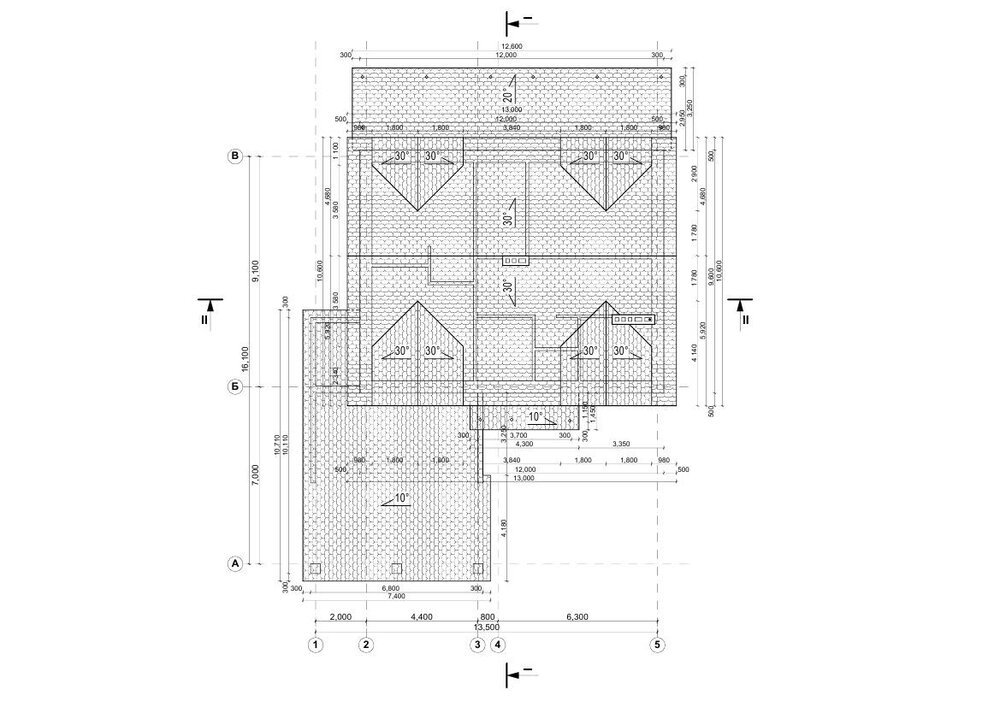
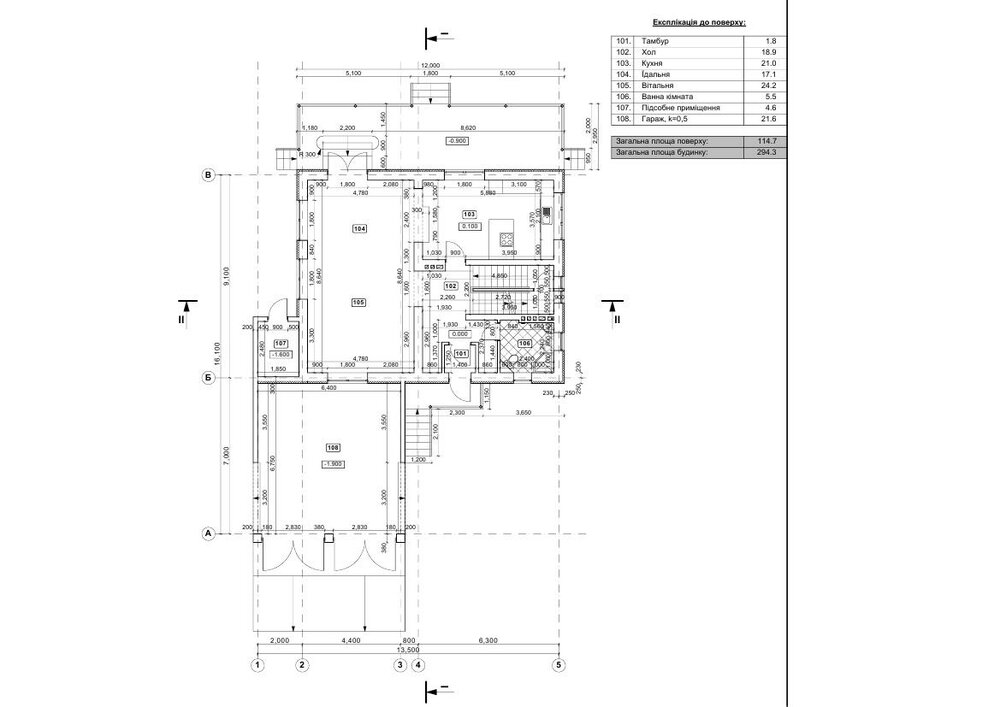
вторик Опубліковано: 7 червня 2010 Поділитись Опубліковано: 7 червня 2010 окно с видом на стропила над гаражом находка еще та. А вход такой неудобный, это по феншую, чтобы злые духи входить обломились? На разрезе вижу стену несущую под коньком, на плане нет, постройте разрез по лестнице перпендикулярно ходу. Внешность никогда не обсуждаю, но здесь явный плагиат с пособия 1980 гг. чертежнику бан Посилання на коментар Поділитися на інших сайтах More sharing options...
yojig Опубліковано: 7 червня 2010 Автор Поділитись Опубліковано: 7 червня 2010 окно с видом на стропила над гаражом находка еще та. часть, перекрытая крышей гаража закроется чем-нибудь декоративным, а вот отсутствие окна на западной стороне гостинной явно не комильфо А вход такой неудобный, это по феншую, чтобы злые духи входить обломились? именно если сделать вход в лоб - там будет парадная лестница шириной в два метра, которая перекроет все пространство перед домом, вывод - отказать На разрезе вижу стену несущую под коньком, на плане нет, постройте разрез по лестнице перпендикулярно ходу. а есть ли смысл? Посилання на коментар Поділитися на інших сайтах More sharing options...
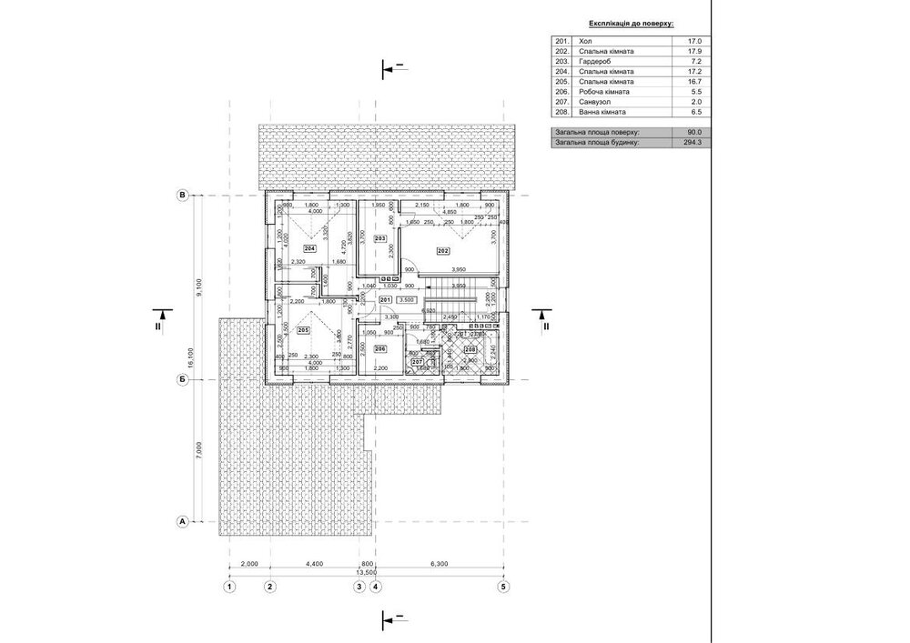
вторик Опубліковано: 7 червня 2010 Поділитись Опубліковано: 7 червня 2010 смысл появится когда поймете что конек опереть не на что, но будет поздно. лестницу оставьте в покое, переместите тамбур к гостиной, чтобы при входе не натыкатся на стену лестницы. окно можно поднять, пожно поменять навес. Посилання на коментар Поділитися на інших сайтах More sharing options...
yojig Опубліковано: 7 червня 2010 Автор Поділитись Опубліковано: 7 червня 2010 смысл появится когда поймете что конек опереть не на что, но будет поздно. не понял стена есть, я о ней помню, куда она испарится, если я не перестрою разрез? лестницу оставьте в покое, переместите тамбур к гостиной, чтобы при входе не натыкатся на стену лестницы. ага, и лишиться всего полезного пространства в прихожей =) окно можно поднять, пожно поменять навес. куда ж его поднять, чтобы оно стало форточкой? и навес на что поменять? итак плоский, а ниже опускать некуда вобщем ваши комментарии очень конструктивны :bad: Посилання на коментар Поділитися на інших сайтах More sharing options...
вторик Опубліковано: 7 червня 2010 Поділитись Опубліковано: 7 червня 2010 и помагай после этого людям Посилання на коментар Поділитися на інших сайтах More sharing options...
Воздушная кукуруза Опубліковано: 7 червня 2010 Поділитись Опубліковано: 7 червня 2010 Конструктивный, однако подход... Сначала: теперь пора обсуждать его, и искать косяки =) А после: вобщем ваши комментарии очень конструктивны :bad: В то время, как сам не заметил полной лажи в чертежах... Тщательнее нуна Посилання на коментар Поділитися на інших сайтах More sharing options...
Danshow Опубліковано: 7 червня 2010 Поділитись Опубліковано: 7 червня 2010 наконец-то наши архитекторы закончили проект теперь пора обсуждать его, и искать косяки =) Посмотрите на план крыши. В правой нижней части дымарь создает снеговой мешок. 1 Посилання на коментар Поділитися на інших сайтах More sharing options...
yojig Опубліковано: 8 червня 2010 Автор Поділитись Опубліковано: 8 червня 2010 Конструктивный, однако подход... В то время, как сам не заметил полной лажи в чертежах... Тщательнее нуна а поконкретнее можно на выделенное? Посилання на коментар Поділитися на інших сайтах More sharing options...
yojig Опубліковано: 8 червня 2010 Автор Поділитись Опубліковано: 8 червня 2010 Посмотрите на план крыши. В правой нижней части дымарь создает снеговой мешок. о спасибо, с этим будем бороться Посилання на коментар Поділитися на інших сайтах More sharing options...
Рекомендовані повідомлення
Створіть акаунт або увійдіть у нього для коментування
Ви маєте бути користувачем, щоб залишити коментар
Створити акаунт
Зареєструйтеся для отримання акаунта. Це просто!
Зареєструвати акаунтУвійти
Вже зареєстровані? Увійдіть тут.
Увійти зараз