LiVi Опубліковано: 7 червня 2010 Поділитись Опубліковано: 7 червня 2010 Имеем каркасный домик: 3,71х8,1 с пристройкой (веранда, терраса) 2,45х8,1. Скоро начнем строить мансардный этаж. Приложил сегодняшнюю фотку домика и планируемую схему стропилки. Шаг стропил 625 мм. Стропила 50х200 под утепление. Конькового прогона нет. Дополнительных опор нет. Кровля будет из битумки по ОСП-3 10мм. 1. Очень беспокоит не выпрет ли опорные стены стропил на мансарде? 2. Достаточно ли поперечной прочности такого фронтона (второй фронтон такой же)? Прошу констркутивной критики и помощи в оптимизации конструкции, если это нужно! P.S.: Не слишком ли высоко ригель для такого типа конструкции (ниже для мансарды уже некуда). Где-то читал что ригель делается на одну треть высоты стропилки снизу, а у меня на середине практически... Посилання на коментар Поділитися на інших сайтах More sharing options...
Воздушная кукуруза Опубліковано: 9 червня 2010 Поділитись Опубліковано: 9 червня 2010 Имеем каркасный домик: 3,71х8,1 с пристройкой (веранда, терраса) 2,45х8,1. Скоро начнем строить мансардный этаж. Приложил сегодняшнюю фотку домика и планируемую схему стропилки. Шаг стропил 625 мм. Стропила 50х200 под утепление. Конькового прогона нет. Дополнительных опор нет. Кровля будет из битумки по ОСП-3 10мм. 1. Очень беспокоит не выпрет ли опорные стены стропил на мансарде? 2. Достаточно ли поперечной прочности такого фронтона (второй фронтон такой же)? Прошу констркутивной критики и помощи в оптимизации конструкции, если это нужно! P.S.: Не слишком ли высоко ригель для такого типа конструкции (ниже для мансарды уже некуда). Где-то читал что ригель делается на одну треть высоты стропилки снизу, а у меня на середине практически... Если сечение стропил (50х200) вызвано толщиной утеплителя - то да. А так - явный перерасход леса. Для такого пролета 3,7/2 достаточно 40х100. 1. Для мансарды (8,1 м.) нужно поставить коньковый прогон - иначе выпрет опорные стены стропил на мансарде? 2. У фронтона запас по прочности как у лифта: 9-ти кратный только не увидел "коньковой затяжки", т.е. чем связаны стропила в коньке... 1 Посилання на коментар Поділитися на інших сайтах More sharing options...
LiVi Опубліковано: 9 червня 2010 Автор Поділитись Опубліковано: 9 червня 2010 Если сечение стропил (50х200) вызвано толщиной утеплителя - то да. А так - явный перерасход леса. Для такого пролета 3,7/2 достаточно 40х100. 1. Для мансарды (8,1 м.) нужно поставить коньковый прогон - иначе 2. У фронтона запас по прочности как у лифта: 9-ти кратный только не увидел "коньковой затяжки", т.е. чем связаны стропила в коньке... Благодарствую за конструктивный комент. Нужно 200 утеплителя, отсюда и сечение. Вот с учетом необходимости конькового прогона в данной конструкции и улучшая внешний вид сделал другой вариант. стропила в коньке соединяются пластиной оцинкованой 260х100х2 - гвозди крученые 4х50 + глухари 8х50 по два-три в ногу. Также планировал крепить ригели-затяжки к стропилам - в одной плоскости, а не в накладку. По этому поводу тоже думаю пока, что скажете? З.Ы. Фронтон пока эскизно, 9-ти кратный запас заложу позже Посилання на коментар Поділитися на інших сайтах More sharing options...
Лёха UA Опубліковано: 10 червня 2010 Поділитись Опубліковано: 10 червня 2010 а де Вы возьмете 50х200х6800? Посилання на коментар Поділитися на інших сайтах More sharing options...
Воздушная кукуруза Опубліковано: 10 червня 2010 Поділитись Опубліковано: 10 червня 2010 Благодарствую за конструктивный комент. Нужно 200 утеплителя, отсюда и сечение. Вот с учетом необходимости конькового прогона в данной конструкции и улучшая внешний вид сделал другой вариант. стропила в коньке соединяются пластиной оцинкованой 260х100х2 - гвозди крученые 4х50 + глухари 8х50 по два-три в ногу. Также планировал крепить ригели-затяжки к стропилам - в одной плоскости, а не в накладку. По этому поводу тоже думаю пока, что скажете? З.Ы. Фронтон пока эскизно, 9-ти кратный запас заложу позже Это лучшеЕ. Можно обойтись без конька. Для замены 50Х200х6800 посмотрите принцип установки т.н. "подмоги" (рис. 3Б): www.fwhaus.ru/Fachwerk_struktura_4.htm При более тонких стропилах получаете нужное пространство для утеплителя. 1 Посилання на коментар Поділитися на інших сайтах More sharing options...
LiVi Опубліковано: 10 червня 2010 Автор Поділитись Опубліковано: 10 червня 2010 а де Вы возьмете 50х200х6800? А я разве не могу сплотить на венце левой стены две части??? Там точка опирания, по полметра вверх и вниз, на гвозди и глухари. И куда оно денется! Посилання на коментар Поділитися на інших сайтах More sharing options...
LiVi Опубліковано: 10 червня 2010 Автор Поділитись Опубліковано: 10 червня 2010 Это лучшеЕ. Можно обойтись без конька. Для замены 50Х200х6800 посмотрите принцип установки т.н. "подмоги" (рис. 3Б): www.fwhaus.ru/Fachwerk_struktura_4.htm При более тонких стропилах получаете нужное пространство для утеплителя. Очень поучительный сайт! Спасибо за ссылочку! Посилання на коментар Поділитися на інших сайтах More sharing options...
LiVi Опубліковано: 15 червня 2010 Автор Поділитись Опубліковано: 15 червня 2010 Помыслил еще и надумал еще один вариант с развязанными крышами над домом и верандой/террасой. Что скажете? Посилання на коментар Поділитися на інших сайтах More sharing options...
mspacer Опубліковано: 16 червня 2010 Поділитись Опубліковано: 16 червня 2010 Почему вы не делаете второй этаж над всем строением (6.1 х 8.1) с простой двухскатной крышей? Посилання на коментар Поділитися на інших сайтах More sharing options...
Воздушная кукуруза Опубліковано: 16 червня 2010 Поділитись Опубліковано: 16 червня 2010 Помыслил еще и надумал еще один вариант с развязанными крышами над домом и верандой/террасой. Что скажете? Это, конечно, самый простой и эстэтичный вариант. Он самый приемлимый, но в предыдущем варианте можно увеличить площадь мансарды за счет смещения средней стены к краю стропил (влево) до высоты стены 1,4-1,6 м. Так, что думайте... Успехов Посилання на коментар Поділитися на інших сайтах More sharing options...
LiVi Опубліковано: 16 червня 2010 Автор Поділитись Опубліковано: 16 червня 2010 Почему вы не делаете второй этаж над всем строением (6.1 х 8.1) с простой двухскатной крышей? Да блин, не поверите, если будет просто второй этаж, то не будет в нем ската, значит не будет мансардного окна, значит мечта половинки не сбудется... Я чтоб ненароком не сделать полный второй этаж сразу купил мансардные окна... Вот такая история. И это фактор, скажу я Вам, мечты должны сбываться! Иначе будет скучно и не интересно! Есть еще фактор против цельной общей крыши - разные фундаменты под основной частью и пристройкой. И еще - слишком польшая высота в коньке - смотреться будет не ахти. Не пропорционально будет. И еще - 20 лишних квадратов кровли - деньги и время! И еще - огромный крутой пустой скат на основном фасаде дома. Есть еще нюансы, но по сравнению с перечисленным - мелочные. Посилання на коментар Поділитися на інших сайтах More sharing options...
LiVi Опубліковано: 16 червня 2010 Автор Поділитись Опубліковано: 16 червня 2010 Это, конечно, самый простой и эстэтичный вариант. Он самый приемлимый, но в предыдущем варианте можно увеличить площадь мансарды за счет смещения средней стены к краю стропил (влево) до высоты стены 1,4-1,6 м. Так, что думайте... Успехов В принципе, площади достаточно и так. Этож не ПМЖ, а всего лишь дача. Такой вариант в голову приходил, но отказался из-за кучи нюансов из прошлого поста. А так я еще и окна сделаю в промежутке между скатами, узкие горизонтальные на высоте 1,3 метра от пола. Смогу с мансарды во все стороны выглядывать Позитив! И на леснице как раз окошко будет и даже в санузле мансардном - дабл-позитив! И внешний вид будет молее модерный, учитывая, что кровля будет из битумки Катепал (а может Керабит - Волна), а в нашем селе битумки еще ни у кого нет! Посилання на коментар Поділитися на інших сайтах More sharing options...
Воздушная кукуруза Опубліковано: 17 червня 2010 Поділитись Опубліковано: 17 червня 2010 В принципе, площади достаточно и так. Этож не ПМЖ, а всего лишь дача. А так я еще и окна сделаю в промежутке между скатами, узкие горизонтальные на высоте 1,3 метра от пола. Смогу с мансарды во все стороны выглядывать Позитив! И на леснице как раз окошко будет и даже в санузле мансардном - дабл-позитив! И внешний вид будет молее модерный, учитывая, что кровля будет из битумки Катепал (а может Керабит - Волна), а в нашем селе битумки еще ни у кого нет! Да все нормально! Такую-же крышу я сделал куму-смотрится классно (в отличии от "стандартных" вариантов). Один нюанс - навес ската крыши над скатом веранды делайте не менее 0,5 м, иначе заливает на стену. И еще: Вы не пишите про материал кровли... Лучше сразу длину стропил предусмотреть с учетом кровельного материала. Например: шифер = 1750 мм (нахлест 200-300 мм.) х 2 = 3500 - 200 = 3300 мм. ? С длиной стропил не "вяжется", если не резать сам шифер. Но это если шифер... Посилання на коментар Поділитися на інших сайтах More sharing options...
LiVi Опубліковано: 17 червня 2010 Автор Поділитись Опубліковано: 17 червня 2010 Да все нормально! Такую-же крышу я сделал куму-смотрится классно (в отличии от "стандартных" вариантов). Один нюанс - навес ската крыши над скатом веранды делайте не менее 0,5 м, иначе заливает на стену. И еще: Вы не пишите про материал кровли... Лучше сразу длину стропил предусмотреть с учетом кровельного материала. Например: шифер = 1750 мм (нахлест 200-300 мм.) х 2 = 3500 - 200 = 3300 мм. ? С длиной стропил не "вяжется", если не резать сам шифер. Но это если шифер... Битумка будет, я писАл в предыдущем посте. На переходе на стену будет подкладочный ковер, как положено, а на стене сайдинг в нахлест. А вот там где мансардное окно - нужно будет кратность посчитать, чтоб не было вопросов в примыкании. Посилання на коментар Поділитися на інших сайтах More sharing options...
mspacer Опубліковано: 17 червня 2010 Поділитись Опубліковано: 17 червня 2010 Да блин, не поверите, если будет просто второй этаж, то не будет в нем ската, значит не будет мансардного окна, значит мечта половинки не сбудется... Я чтоб ненароком не сделать полный второй этаж сразу купил мансардные окна... Вот такая история. И это фактор, скажу я Вам, мечты должны сбываться! Иначе будет скучно и не интересно! Есть еще фактор против цельной общей крыши - разные фундаменты под основной частью и пристройкой. И еще - слишком польшая высота в коньке - смотреться будет не ахти. Не пропорционально будет. И еще - 20 лишних квадратов кровли - деньги и время! И еще - огромный крутой пустой скат на основном фасаде дома. Есть еще нюансы, но по сравнению с перечисленным - мелочные. Я имел ввиду такой вариант, с той разницей что у вас будут франтоны По скатам как раз требуются мансардные окна на ваш фундамент можно смело ставить газоблочный дом Вы времени больше потратите реализовывая мелкие части. А заодно и лишних денег на обрезы. Вопрос ненужности лишней площади снимается отсутствием необходимости поднятия стен мансардного этажа. И как следствие упрощение и удешевление конструкции. ИМХО, Вы усложняеете конструкцию (или я не постиг всю глубину задуманного) Удачи Посилання на коментар Поділитися на інших сайтах More sharing options...
LiVi Опубліковано: 17 червня 2010 Автор Поділитись Опубліковано: 17 червня 2010 Я имел ввиду такой вариант, с той разницей что у вас будут франтоны [ATTACH]56961[/ATTACH] По скатам как раз требуются мансардные окна на ваш фундамент можно смело ставить газоблочный дом Вы времени больше потратите реализовывая мелкие части. А заодно и лишних денег на обрезы. Вопрос ненужности лишней площади снимается отсутствием необходимости поднятия стен мансардного этажа. И как следствие упрощение и удешевление конструкции. ИМХО, Вы усложняеете конструкцию (или я не постиг всю глубину задуманного) Удачи Вы не учитываете все мелкие факторы, имеющие место. Неужели я бы не пошел по пути упрощения/удешевления, если бы все было так просто. Есть еще привязки планировок, высоты дверей, выход лестницы, желание размещения окон в определенных местах, чтоб с мебелью мороки не было и из этого вытекающее удобство планировки. По поводу экономии, если делать общую крышу, то длина стропильной ноги никак не вписывается в 4,5 метра при наличии мансарды, значит экономии нет никакой, только гемор с длинющими срощеными стропильными ногами... Конечно, Ваш вариант имеет право на жизнь... но есть много оговорок. По фундаменту можно пенобетон, по основному! А вот пристройка стоит на 5 столбиках, связанных срощенным брусом 200х150 в ряд. С основным фундаментом связь только лагами пола. Хоть что бы мне не говорили, нельзя на такое общую крышу! Вот если бы ростверк общий был, тогда да, тогда бы я мансардный этаж делал на всю ширину и с крышей было бы все проще, вернее не проща, а тривиальнее. Мот такие мысли. Посилання на коментар Поділитися на інших сайтах More sharing options...
Воздушная кукуруза Опубліковано: 22 червня 2010 Поділитись Опубліковано: 22 червня 2010 Мот такие мысли. На чем закончились "мытарства"? Посилання на коментар Поділитися на інших сайтах More sharing options...
LiVi Опубліковано: 22 червня 2010 Автор Поділитись Опубліковано: 22 червня 2010 На чем закончились "мытарства"? Последний мой вариант пойдет в работу. Сейчас делаем перекрытие, после чего займемся стенками мансарды и фронтонами. А потом уже и стропила! Не долго до этого осталось. Все остальное и прогресс можно смотреть в моей теме! Сюда выложу фоты, когда кровлю буду делать... Посилання на коментар Поділитися на інших сайтах More sharing options...
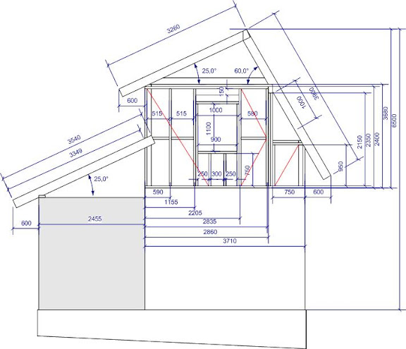
LiVi Опубліковано: 29 червня 2010 Автор Поділитись Опубліковано: 29 червня 2010 То что пошло в работу: А вот что на сегодня имеем: Общий вид: Мансарда: Стойки две крайние 150х100 (сшитая пара 150х50). Стойки две промежуточные, стоящие на спаренной лаге перекрытия 100х100 (сшитая пара 100х50). Расстояния между стойками по факту в свету: 2550 - 2050 - 3000. Ригель из трех частей между парами стоек - 100х100 (наруба сшитая пара 100х50). По ней вразбежку швов доска ложком 100х50. Это то что уже есть в натуре и на фото. Дальше еще будет верхняя обвязка вместе со стенами еще одна доска 100х50. Итого ригель получается из 4-ех досок 100х50 - две наруба и по ним две плашмя - 100(шир)х200(выс). У меня вопрос в продолжение темы: Достаточно ли такой сборки и такого сечения ригеля для моей крыши? Посилання на коментар Поділитися на інших сайтах More sharing options...
Воздушная кукуруза Опубліковано: 29 червня 2010 Поділитись Опубліковано: 29 червня 2010 У меня вопрос в продолжение темы: Достаточно ли такой сборки и такого сечения ригеля для моей крыши? Даже более чем достаточно такого ригеля. Смущает другое-как планируется осуществить пространственную жесткость второго (мансардного) этажа? На мой взгляд: 1. Установить диагональные раскосы (не подкосы) на эти три рамы, т.е. из верхнего угла в нижний. Это воизбежание завала фронтонов. 2. Связать параллельные стены (та, что с окнами, и эти 3 рамы) перпендикулярной стеной или если будут потолочные балки. А вообще-то получилось очччень даже ничего. P.S. На что будут опираться стропила со стороны этих рам? Где "мауэрлат"? Желательно положить "досточку"...;) Посилання на коментар Поділитися на інших сайтах More sharing options...
LiVi Опубліковано: 29 червня 2010 Автор Поділитись Опубліковано: 29 червня 2010 Даже более чем достаточно такого ригеля. ОК! Смущает другое-как планируется осуществить пространственную жесткость второго (мансардного) этажа? На мой взгляд: 1. Установить диагональные раскосы (не подкосы) на эти три рамы, т.е. из верхнего угла в нижний. Это воизбежание завала фронтонов. Если сделаю в трех рамах раскосы, потеряется смысл крутого ската где будут мансардные окна... доступ к ним закроют раскосы. Как вариант установить накрест два ракоса в центральном пролете (эскиз в миниатюрах). Можно еще, как вариант, но не хотелось бы, но если надо, то сделать, подкосы в левом и правом квадрате по верхним углам... Будет ли этого достаточно по вашему мнению? 2. Связать параллельные стены (та, что с окнами, и эти 3 рамы) перпендикулярной стеной или если будут потолочные балки. Средние 2 стойки спрячутся как раз в тело поперечных стен - будет две стены. А по верху же будут ригели-связки стропильных пар (см. чертежик), которые и будут перекрытием. А вообще-то получилось очччень даже ничего. Спасибо, стараемся! P.S. На что будут опираться стропила со стороны этих рам? Где "мауэрлат"? Желательно положить "досточку"...;) Еще же по тому, что на фото, будет уложен один слой доски 50-ки - верхняя обвязка. Над стеной и фронтонами шириной 150, а по ригелю соточка. 100(выс)х150(шир) с одной стороны (над стеной) и 20(выс)х100(шир) (ригель) - чем не мауэрлат? Посилання на коментар Поділитися на інших сайтах More sharing options...
Воздушная кукуруза Опубліковано: 29 червня 2010 Поділитись Опубліковано: 29 червня 2010 Если сделаю в трех рамах раскосы, потеряется смысл крутого ската где будут мансардные окна... доступ к ним закроют раскосы. Как вариант установить накрест два ракоса в центральном пролете (в миниатюре). Можно еще, как вариант, но не хотелось бы, но если надо, то сделать, подкосы в левом и правом квадрате по верхним углам... Будет ли этого достаточно по вашему мнению? Подкосы не дают необходимой жесткости, или их нужно делать минимум на 3/4 высоты пролета, а это Вам не подходит...Поэтому панель жесткости, которая на миниатюре (средняя рама с "крестом"), вполне решит задачу. И хотя Вы "потеряете" один пролет, Вы уже к этому готовы, так, что тут все Ок! Средние 2 стойки спрячутся как раз в тело поперечных стен - будет две стены. А по верху же будут ригели-связки стропильных пар (см. чертежик), которые и будут перекрытием. Встретил Вашу аналогию на форумхаус.ру, и увидел планировку. Посему: вопрос о связке параллельных стен симается. И тут все Ок! Еще же по тому, что на фото, будет уложен один слой доски 50-ки - верхняя обвязка. Над стеной и фронтонами шириной 150, а по ригелю соточка. 100(выс)х150(шир) с одной стороны (над стеной) и 20(выс)х100(шир) (ригель) - чем не мауэрлат? Я имел ввиду нижнее опирание стропильной ноги. (см. фото - красный элемент). Просто, если крепить к OSB........ - она хрупкая на скол. Кстати, просто для консультации: красный - это типа мауэрлат, а то, что сверху - промежуточный прогон. Не понтов ради, а для уточнения теминологии;) Одного не смог понять: что Вы искали на этом форуме? Технически, Вы достаточно грамотный человек . Или для уверенности и самоконтроля? В любом случае: счастливого новоселья и удачных дачных сезонов! 1 Посилання на коментар Поділитися на інших сайтах More sharing options...
LiVi Опубліковано: 29 червня 2010 Автор Поділитись Опубліковано: 29 червня 2010 Подкосы не дают необходимой жесткости, или их нужно делать минимум на 3/4 высоты пролета, а это Вам не подходит...Поэтому панель жесткости, которая на миниатюре (средняя рама с "крестом"), вполне решит задачу. И хотя Вы "потеряете" один пролет, Вы уже к этому готовы, так, что тут все Ок! Просто коридор в мансарде станет уже, а именно 90 см. Думаю на даче в мансарде такого будет достаточно, особенно учитывая, что двери в комнаты будут с полотном 70 см, а в санузел 60 см. Все будет открываться нормально. А прстранство я не потеряю, сделаю там несколько кладовочек. Думаю на даче всегда найдется что в них положить Встретил Вашу аналогию на форумхаус.ру, и увидел планировку. Посему: вопрос о связке параллельных стен симается. И тут все Ок! Значит ОК! Я имел ввиду нижнее опирание стропильной ноги. (см. фото - красный элемент). Просто, если крепить к OSB........ - она хрупкая на скол. Кстати, просто для консультации: красный - это типа мауэрлат, а то, что сверху - промежуточный прогон. Не понтов ради, а для уточнения теминологии;) За уточнение спасибо. Там где красное еще будет стеночка высотой 1100 (на последней схеме она есть, на нее опирается стропило под углом 60 градусов к горизонту). Еще думаю как ее жестко привязать в вертикальную ось, чтоб не выпирало стропилами, хоть и врядли выпрет, есть же еще промежуточный прогон, да и ноги стропильные 200х50 - вертикальная жескость у них с двойным, а то и тройным запасом. Но для пущей уверенности нужно скязать навеки. Думаю это будет нечто со стальными полосами к фронтонам и прмежуточным стенам. Кстати, в промежуточных стенах сделаю раскосы V-образные для дополнительной поперечной жесткости. А про ОСП я интуитивно понимаю, что нельзя к ней крепиться, она же как труха в этом измерении! Одного не смог понять: что Вы искали на этом форуме? Технически, Вы достаточно грамотный человек . Или для уверенности и самоконтроля? В любом случае: счастливого новоселья и удачных дачных сезонов! Дома никогда не строил и на стройках никогда не был. По образованию программист. У меня всегда масса сомнений и + убеждение: лучше перестраховаться и на 10% удорожить конструкцию, чем получить геморрой в будущем на 50% общей стоимости из-за мелочной экономии. Поэтому, вроде как очевидные для многих вещи на всякий случай пытаюсь уточнять. Вот раскосы всплыли, а я их не досмотрел - чрезмерно увлекся промежуточным прогоном А до новоселья еще далековато , но джем его с нетерпением, а то жить в доме которому 56 лет как-то не очень комфортно (фото в миниатюрах). В любом случае большое спасибо за консультацию. Посилання на коментар Поділитися на інших сайтах More sharing options...
LiVi Опубліковано: 2 липня 2010 Автор Поділитись Опубліковано: 2 липня 2010 ... 1. Установить диагональные раскосы (не подкосы) на эти три рамы, т.е. из верхнего угла в нижний. Это воизбежание завала фронтонов... Думал еще раз об этом, вот что надумал: А если не делать этих раскосов, а просто бросить ветровые диагональные связи по стропилам. Ведь когда фронтон кирпичный его ж ничего не подпирает, кроме связей стропил... а то все таки жалковато этого места, которое скушается, если сделать раскосы накрест в средней ячейке как на схеме у меня показано... Этот вариант живой или "авось"? Ну и походу второй вопрос: Стыковка стропильных ног в коньке в торец. Левой стропило 25 градусов, правое - 60. В коньке угол между стропилами 95 градусов. Под каким углом к горизонту делается эта стыковка - обязательно вертикально или это не принципиально? Немного путано, поясню на примере: кода крыша с равными углами скатов, стык делают вертикальным, а если угды разные? Посилання на коментар Поділитися на інших сайтах More sharing options...
Воздушная кукуруза Опубліковано: 2 липня 2010 Поділитись Опубліковано: 2 липня 2010 Думал еще раз об этом, вот что надумал: А если не делать этих раскосов, а просто бросить ветровые диагональные связи по стропилам. Ведь когда фронтон кирпичный его ж ничего не подпирает, кроме связей стропил... а то все таки жалковато этого места, которое скушается, если сделать раскосы накрест в средней ячейке как на схеме у меня показано... Этот вариант живой или "авось"? Диагональные связи по внутренней стороне стропил и так необходимы (только вот не все их монтируют)... Что бы не быть голословным, приведу выдержку из книги американского мэтра-каркасника: Ну, кирпичный фронтон - самонесущий (если правильно сложен), а в Вашем случае, они (фронтоны) в общей схеме жесткости всего этажа, и тут уж никак... Можете сделать крестообразные раскосы не на всю ширину рамы (как на Вашей схемке), а на ширину коридора Т.е. вставить в раму по стойке в местах примыкания стен к этим 3-м рамам, и уже от них пустить раскосы. Но раскосы должны быть. Ну и походу второй вопрос: Стыковка стропильных ног в коньке в торец. Левой стропило 25 градусов, правое - 60. В коньке угол между стропилами 95 градусов. Под каким углом к горизонту делается эта стыковка - обязательно вертикально или это не принципиально? Немного путано, поясню на примере: кода крыша с равными углами скатов, стык делают вертикальным, а если угды разные? Вообще-то, это не так принципиально как кажется... Проще сказать - "по-барабану". Можете смело монтировать стропила внахлест друг на друга, с подрезкой выступающих концов под угол самой кровли. И "тупо" сбить их (стропила) между собой гвоздями. Конечно желательно сделать "врубку" (выборку в стропило для опирания на конек), но на Ваших пролетах это не столь существенно. 1 Посилання на коментар Поділитися на інших сайтах More sharing options...
Рекомендовані повідомлення
Створіть акаунт або увійдіть у нього для коментування
Ви маєте бути користувачем, щоб залишити коментар
Створити акаунт
Зареєструйтеся для отримання акаунта. Це просто!
Зареєструвати акаунтУвійти
Вже зареєстровані? Увійдіть тут.
Увійти зараз