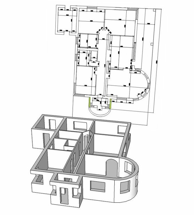
Luck_man Опубліковано: 15 червня 2010 Поділитись Опубліковано: 15 червня 2010 Вот фактически финальная планировка нашей семейной мечты. Прошу знатоков ( а на форуме их не мало) откликнуться и высказать свое мнение. Посилання на коментар Поділитися на інших сайтах More sharing options...
Luck_man Опубліковано: 15 червня 2010 Автор Поділитись Опубліковано: 15 червня 2010 Дом планируется строить из газобетона ААС ( Новая Каховка) перекрытие деревянными балками , крыша металочерепица. Посилання на коментар Поділитися на інших сайтах More sharing options...
Hover Опубліковано: 15 червня 2010 Поділитись Опубліковано: 15 червня 2010 Вот мне кажется что дом коридорный получается (не нравится) но на вкус и цвет товарищей нет. Смотрите сами. 1 Посилання на коментар Поділитися на інших сайтах More sharing options...
Luck_man Опубліковано: 16 червня 2010 Автор Поділитись Опубліковано: 16 червня 2010 Hover премного благодарен за Ваш труд. Полностью с Вами согласен, но ума не приложу как разместить помещения по другому , чтоб уйти от длинного коридора. Двух этажный дом не хочу принципиально. Посилання на коментар Поділитися на інших сайтах More sharing options...
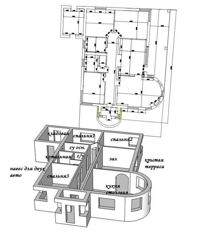
Katya Опубліковано: 16 червня 2010 Поділитись Опубліковано: 16 червня 2010 Hoverу респект! Согласна, дом коридорный. а каково назначение помещений? Посилання на коментар Поділитися на інших сайтах More sharing options...
вторик Опубліковано: 16 червня 2010 Поділитись Опубліковано: 16 червня 2010 а вы сделайте прихожую вместо санузлов, и вход с одного крыльца в мастерскую и дом. 1 Посилання на коментар Поділитися на інших сайтах More sharing options...
Luck_man Опубліковано: 16 червня 2010 Автор Поділитись Опубліковано: 16 червня 2010 Честно сам не ожидал такого ответа ! Респект Hover :drinks: Подписал назначение помещений. Со стороны залы терраса 10 м на 3 м, гараж не планирую, машины ( 2 шт пока будут под навесом). Посилання на коментар Поділитися на інших сайтах More sharing options...
Рекомендовані повідомлення
Створіть акаунт або увійдіть у нього для коментування
Ви маєте бути користувачем, щоб залишити коментар
Створити акаунт
Зареєструйтеся для отримання акаунта. Це просто!
Зареєструвати акаунтУвійти
Вже зареєстровані? Увійдіть тут.
Увійти зараз