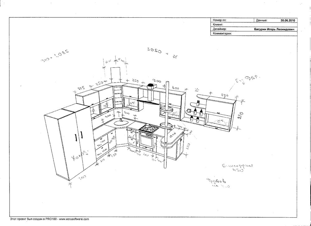
andreo Опубліковано: 2 липня 2010 Поділитись Опубліковано: 2 липня 2010 вот размеры, качество правда не очень, но профессионалы разберуться. и зеркало около 4 м кв, с 2 отверстиями под вент каналы. Посилання на коментар Поділитися на інших сайтах More sharing options...
Руля Опубліковано: 3 липня 2010 Поділитись Опубліковано: 3 липня 2010 Напишите разрер кухни, плохо видно. Посилання на коментар Поділитися на інших сайтах More sharing options...
andreo Опубліковано: 3 липня 2010 Автор Поділитись Опубліковано: 3 липня 2010 вверху написано 2085 на 3030 Посилання на коментар Поділитися на інших сайтах More sharing options...
glasGO Опубліковано: 6 липня 2010 Поділитись Опубліковано: 6 липня 2010 а стекло закрашенное белым для рабочей поверхности кухни? если да - то какая максимальная длинна цельного куска ..стекло для рабочей поверхности без проблем. длинна куска может быть до 3 метров. Посилання на коментар Поділитися на інших сайтах More sharing options...
Рекомендовані повідомлення
Створіть акаунт або увійдіть у нього для коментування
Ви маєте бути користувачем, щоб залишити коментар
Створити акаунт
Зареєструйтеся для отримання акаунта. Це просто!
Зареєструвати акаунтУвійти
Вже зареєстровані? Увійдіть тут.
Увійти зараз