Шульман Опубліковано: 5 липня 2010 Поділитись Опубліковано: 5 липня 2010 Я безумно счастлив создавай свою тему в этом разделе. Так начнем по порядку. В начале 90 - х тесть с успехом приватизировал себе участок земли в 16, 5 соток в Вите Почтовой, и с любезностью предоставил его нам для строительства своего дома. Идеей строительства дома я загорелся практически сразу после своей свадьбы. практически два года назад приступили с женой к выбору проекта (ох и мучительное это дело). В результате обратился к своим клиентам - архитекторам, которые и сделали мне проект моего дома. Начать строительство планировал еще ранней весной, но начала стройки все откладывалось и откладывалось. 2 Посилання на коментар Поділитися на інших сайтах More sharing options...
Шульман Опубліковано: 5 липня 2010 Автор Поділитись Опубліковано: 5 липня 2010 И так 25.06 2010 года точка отсчета для строительства моего дома. Тянуть дальше некуда было. 24.06.2010 г. в течения часа я нашел экскаватора "Атласа" для копки котлована. Договорились по 180 грн. /час и 150 грн. подача. Вечером экскаватор стоял уже у меня на участке. Таких ответственных экскаваторщиков как мой - редко встретить. На следующий день котлован объемом прим 200 м.куб. был выкопан с 8:00 - 15:00, а вся земля была аккуратненько сложена на территории примерно в 3 сотки. Неровность на котлована составила 20 см на 14 метров длины !!!!!! Посилання на коментар Поділитися на інших сайтах More sharing options...
Шульман Опубліковано: 5 липня 2010 Автор Поділитись Опубліковано: 5 липня 2010 Цокольный этаж решили делать следующим образом: 1. Подушка под несущии стены - ширина 80 см., 10 см подсыпка щебня, пленка, каркас арматуры и 30 см бетона. 2. Монолитная стена - 1,2 м высота и 0,5 м. ширина 3. Бутовая стена - 1,2 высота и 0.5 ширина. 4. Армопояс и панельное перекрытия. Работа по п.п.1, 2 решили делать самостоятельно, так как муж моей матери, профессиональный строитель, в сфере строительства уже более 30 лет. Вот под его чётким руководством мы преступили к работам. На данный момент уже залит периметр дома, сегодня будем разбирать опалубку и выставлять под внутренние стены. Потом еще необходимо сделать гидроизоляцию, выбрать остатки грунта в котловане, чтоб вывести на нужный уровень грунт, обсыпать стены, выгнать фундамент под гараж и приступать к кладке бута. Все что до бута будем делать самостоятельно, так как возможности раскошелится на оплату этой работы нету, а желания работать есть. Посилання на коментар Поділитися на інших сайтах More sharing options...
Шульман Опубліковано: 5 липня 2010 Автор Поділитись Опубліковано: 5 липня 2010 Отдельно хотел было сказать о опалубке. Щиты я посбивал заранее, пронумеровав каждый щит, размеры были подогнаны до сантиметра. Доску брал 30 мм еще в феврале по 900 грн. куб. Когда начали выставлять опалубку все нас начали пугать относительно ее крепости, типа - "Вы еще не видели как бетон рвет опалубку, как газету". Опалубку укрепляли основательно, в подушку просверливали арматуру, чтоб держало дно, через метр поставили шпильки из арматуры, верх скрепили распорками и сбили досками, периметр обкидали землей, каждый щит обтянули пленкой. Но она выдержала!!! В субботу залили 12 кубов бетона, а воскресенья еще 12 кубов. П.С. Отдельно спасибо форумчанину Semenovsky за оперативность и качество бетона. Сработали на высшем уровни. Посилання на коментар Поділитися на інших сайтах More sharing options...
AlexandrK Опубліковано: 5 липня 2010 Поділитись Опубліковано: 5 липня 2010 Интересный проектик Посилання на коментар Поділитися на інших сайтах More sharing options...
Шульман Опубліковано: 19 липня 2010 Автор Поділитись Опубліковано: 19 липня 2010 По состоянию на сегодняшний день залили внутренние стены, сделал гидроизоляцию и обсыпали фундамент. На этом работа "своими силами" практически заканчивается, единственное что осталось сделать так выбрать грунт внутри под уровень с подушкой, установить армировку в полу по грунту и перед укладкой панелей залить с миксера черновую стяжку. ПС: Тяжело конечно совмещать работу и непосредственно строить. В полноценный отпуск уйти не могу, так перебежками по два три дня, да и плюс практически все разъехались по морям. Так что сейчас интенсивно ищу бригаду - которой необходимо будет залить фундамент под гараж, положить бут и накрыть панелями. Посилання на коментар Поділитися на інших сайтах More sharing options...
Шульман Опубліковано: 19 липня 2010 Автор Поділитись Опубліковано: 19 липня 2010 сегодня выложу подробный отчет по строй материалам и ценам Посилання на коментар Поділитися на інших сайтах More sharing options...
Шульман Опубліковано: 20 липня 2010 Автор Поділитись Опубліковано: 20 липня 2010 Как и обещал вылажываю смету по состоянию на сегодняшний день. Копка котлована (экскаватор + машина) - 2500 грн. Доска обрезная калиброванная 30 мм - 4 м.куб. - 3600 грн. Электрорубанок - 420 грн. Гвозди - 15 кг - 210 грн Щебень - 10 т. - 1400 грн. Пленка - 1 рул. - 300 грн. Бетон - 35 м.куб. - 17 500 грн. Арматура - 3 т. - 3000 грн. Гидроизоляция (праймер + рубероид) - 1800 грн. Цемент - 1.6 т. - 1200 грн. ИТОГО - 31 900 грн. Работу до данного этапа делали всю сами, по этому в смету не включается. До окончания работ по цоколю планирую еще затратить до 50 000 грн., посмотрим впишусь ли я в эти цифры. 1 Посилання на коментар Поділитися на інших сайтах More sharing options...
Soyka Опубліковано: 20 липня 2010 Поділитись Опубліковано: 20 липня 2010 Продолжайте в том же духе! Удачи! 1 Посилання на коментар Поділитися на інших сайтах More sharing options...
НАФИГАТОР Опубліковано: 20 липня 2010 Поділитись Опубліковано: 20 липня 2010 Красивое место В.Почтовая!Служил там в своё время! Проэкт зачотный!! Молодцы что столько всего своими силами!! Описывайте поподробнее и прикрепляйте фотки по ходу действия--будем перенимать опыт,,,,,,,Удачи,,,,,,,,,,, 1 Посилання на коментар Поділитися на інших сайтах More sharing options...
gefest01 Опубліковано: 20 липня 2010 Поділитись Опубліковано: 20 липня 2010 Как и обещал вылажываю смету по состоянию на сегодняшний день. Копка котлована (экскаватор + машина) - 2500 грн. Доска обрезная калиброванная 30 мм - 4 м.куб. - 3600 грн. Электрорубанок - 420 грн. Гвозди - 15 кг - 210 грн Щебень - 10 т. - 1400 грн. Пленка - 1 рул. - 300 грн. Бетон - 35 м.куб. - 17 500 грн. Арматура - 3 т. - 3000 грн. Гидроизоляция (праймер + рубероид) - 1800 грн. Цемент - 1.6 т. - 1200 грн. ИТОГО - 31 900 грн. . Поздравляю с началом! скажите, а что это у Вас за арматура по 1000грн. за тонну? у меня 1т=6500грн... Посилання на коментар Поділитися на інших сайтах More sharing options...
НАФИГАТОР Опубліковано: 20 липня 2010 Поділитись Опубліковано: 20 липня 2010 Как и обещал вылажываю смету по состоянию на сегодняшний день. Копка котлована (экскаватор + машина) - 2500 грн. Доска обрезная калиброванная 30 мм - 4 м.куб. - 3600 грн. Электрорубанок - 420 грн. Гвозди - 15 кг - 210 грн Щебень - 10 т. - 1400 грн. Пленка - 1 рул. - 300 грн. Бетон - 35 м.куб. - 17 500 грн. Арматура - 3 т. - 3000 грн. Гидроизоляция (праймер + рубероид) - 1800 грн. Цемент - 1.6 т. - 1200 грн. ИТОГО - 31 900 грн. Работу до данного этапа делали всю сами, по этому в смету не включается. До окончания работ по цоколю планирую еще затратить до 50 000 грн., посмотрим впишусь ли я в эти цифры. Где это ВЫ нашли арматуру по 1000 за тонну??Подскажете?? Посилання на коментар Поділитися на інших сайтах More sharing options...
Валерий Валентинович Опубліковано: 20 липня 2010 Поділитись Опубліковано: 20 липня 2010 Как и обещал вылажываю смету по состоянию на сегодняшний день. Копка котлована (экскаватор + машина) - 2500 грн. Доска обрезная калиброванная 30 мм - 4 м.куб. - 3600 грн. Электрорубанок - 420 грн. Гвозди - 15 кг - 210 грн Щебень - 10 т. - 1400 грн. Пленка - 1 рул. - 300 грн. Бетон - 35 м.куб. - 17 500 грн. Арматура - 3 т. - 3000 грн. Гидроизоляция (праймер + рубероид) - 1800 грн. Цемент - 1.6 т. - 1200 грн. ИТОГО - 31 900 грн. Работу до данного этапа делали всю сами, по этому в смету не включается. До окончания работ по цоколю планирую еще затратить до 50 000 грн., посмотрим впишусь ли я в эти цифры. Вот же написано. Посилання на коментар Поділитися на інших сайтах More sharing options...
Шульман Опубліковано: 20 липня 2010 Автор Поділитись Опубліковано: 20 липня 2010 Поясняю по поводу арматуры - зимой 2009 года демонтировали теплицы на Теремках. И чисто случайно мой тесть оказался в нужном месте в нужное время - арматура б/у, порезаня размерами 1,5 м. - 5 м., по цене металлолома на то время. Взяли 3 тоны. Дома я ее отсортировал и повяза в пучки, для удобства транспортировки. 2 Посилання на коментар Поділитися на інших сайтах More sharing options...
Шульман Опубліковано: 20 липня 2010 Автор Поділитись Опубліковано: 20 липня 2010 Красивое место В.Почтовая!Служил там в своё время! Проэкт зачотный!! Молодцы что столько всего своими силами!! Описывайте поподробнее и прикрепляйте фотки по ходу действия--будем перенимать опыт,,,,,,,Удачи,,,,,,,,,,, Фото постараюсь выложить, так как фоткаю телефоном, а шнур никак не могу найти. Посилання на коментар Поділитися на інших сайтах More sharing options...
Шульман Опубліковано: 20 липня 2010 Автор Поділитись Опубліковано: 20 липня 2010 На данный момент окончательно еще не определился с конструкцией стены. Рассматриваю три варианта: 1. 375 мм газоблок + облицовочный кирпич. 2. 400 мм газоблок + 50 мм пенопласт + 50 мм клинкерная плитка 3. 400 мм газоблок + 100 мм пенопласт + фасадная штукатурка. Более склоняюсь к варианту № 3, основными аргументами являются дешевле по сравнению с другими вариантами, самый теплый вариант. Может у кого то есть свои мнения по этому поводу. Посилання на коментар Поділитися на інших сайтах More sharing options...
НАФИГАТОР Опубліковано: 20 липня 2010 Поділитись Опубліковано: 20 липня 2010 На данный момент окончательно еще не определился с конструкцией стены. Рассматриваю три варианта: 1. 375 мм газоблок + облицовочный кирпич. 2. 400 мм газоблок + 50 мм пенопласт + 50 мм клинкерная плитка 3. 400 мм газоблок + 100 мм пенопласт + фасадная штукатурка. Более склоняюсь к варианту № 3, основными аргументами являются дешевле по сравнению с другими вариантами, самый теплый вариант. Может у кого то есть свои мнения по этому поводу. Согласен что третий вариант наиболее подходящий,, И бюджет целее будет и по человекочасам менее затратно,,,, Кстати Вы проэкт сами рисовали или обращались к архитектору?? Посилання на коментар Поділитися на інших сайтах More sharing options...
Шульман Опубліковано: 20 липня 2010 Автор Поділитись Опубліковано: 20 липня 2010 Ничо такие фотки,, Шо за телефончик?? Nokia N 70 камера 2 м.п., Посилання на коментар Поділитися на інших сайтах More sharing options...
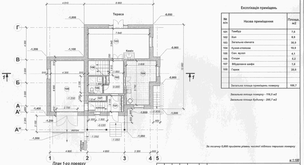
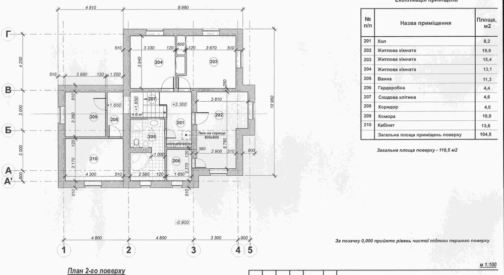
Шульман Опубліковано: 20 липня 2010 Автор Поділитись Опубліковано: 20 липня 2010 Согласен что третий вариант наиболее подходящий,, И бюджет целее будет и по человекочасам менее затратно,,,, Кстати Вы проэкт сами рисовали или обращались к архитектору?? Обращался к архитектору, они мне сделали эскизный проект, сейчас делают рабочий. В стартовом топика я выложил немного устаревший вариант проекта, сегодня сброшу обновленный. Посилання на коментар Поділитися на інших сайтах More sharing options...
НАФИГАТОР Опубліковано: 20 липня 2010 Поділитись Опубліковано: 20 липня 2010 На мой взгляд 400 газоблока достаточно для наших зим и без пенопласта.. В любом случае внутри будет скорее всего гипсокартон,,,а между ним и блоком можно бросить утеплитель какой нить Посилання на коментар Поділитися на інших сайтах More sharing options...
НАФИГАТОР Опубліковано: 20 липня 2010 Поділитись Опубліковано: 20 липня 2010 Обращался к архитектору, они мне сделали эскизный проект, сейчас делают рабочий. В стартовом топика я выложил немного устаревший вариант проекта, сегодня сброшу обновленный. Во сколько обошлись услуги архитектора?? Посилання на коментар Поділитися на інших сайтах More sharing options...
НАФИГАТОР Опубліковано: 20 липня 2010 Поділитись Опубліковано: 20 липня 2010 Nokia N 70 камера 2 м.п., Старичок, а как работает... Посилання на коментар Поділитися на інших сайтах More sharing options...
gefest01 Опубліковано: 20 липня 2010 Поділитись Опубліковано: 20 липня 2010 Поясняю по поводу арматуры - зимой 2009 года демонтировали теплицы на Теремках. И чисто случайно мой тесть оказался в нужном месте в нужное время - арматура б/у, порезаня размерами 1,5 м. - 5 м., по цене металлолома на то время. Взяли 3 тоны. Дома я ее отсортировал и повяза в пучки, для удобства транспортировки. Зачетная экономия вышла! Желаю Вам всегда быть в нужное время в нужном месте! Посилання на коментар Поділитися на інших сайтах More sharing options...
НАФИГАТОР Опубліковано: 20 липня 2010 Поділитись Опубліковано: 20 липня 2010 Зачетная экономия вышла! Желаю Вам всегда быть в нужное время в нужном месте! Белая зависть,,,,,У меня Посилання на коментар Поділитися на інших сайтах More sharing options...
Шульман Опубліковано: 20 липня 2010 Автор Поділитись Опубліковано: 20 липня 2010 Вот сел и прикинул, что исходя из расценок на строй материалы и работу то на сегоднишний день экономия сотавила примерно 40 000 грн. Посилання на коментар Поділитися на інших сайтах More sharing options...
Рекомендовані повідомлення
Створіть акаунт або увійдіть у нього для коментування
Ви маєте бути користувачем, щоб залишити коментар
Створити акаунт
Зареєструйтеся для отримання акаунта. Це просто!
Зареєструвати акаунтУвійти
Вже зареєстровані? Увійдіть тут.
Увійти зараз