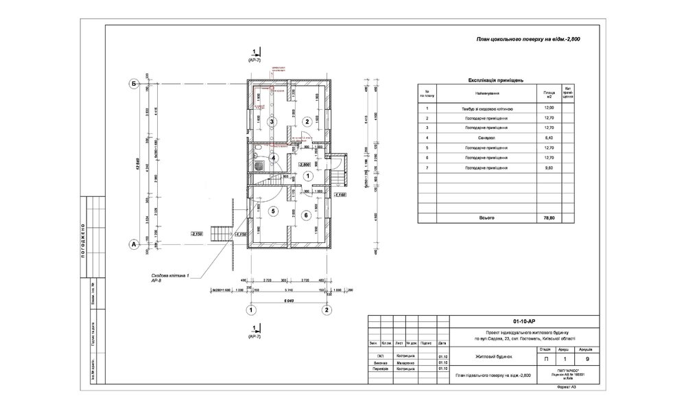
lavilong Опубліковано: 23 липня 2010 Поділитись Опубліковано: 23 липня 2010 Пришло время делать стяжку в цоколе. Изначально в цоколе планировалось под домом делать гараж на 2 машины, потом отказался от этой идеи, но в подушке имеется замурованная пластиковая каналья, правда с техотверстиями для стока воды с машин, под трапики.. с выходом на ружу можно ли какимто образом заделять (запаять, заклеить и т.п.). Как в нее потом врезать стояки? какая должна быть разуклонка или можно врезаться под прямым углом. План схема цоколя прилагается.. Посилання на коментар Поділитися на інших сайтах More sharing options...
lavilong Опубліковано: 23 липня 2010 Автор Поділитись Опубліковано: 23 липня 2010 типа гдето так Посилання на коментар Поділитися на інших сайтах More sharing options...
lavilong Опубліковано: 23 липня 2010 Автор Поділитись Опубліковано: 23 липня 2010 что, никто не подскажет? а я слово волсебное жнаю - "Пожялюста!") Посилання на коментар Поділитися на інших сайтах More sharing options...
IJK_ Опубліковано: 5 березня 2013 Поділитись Опубліковано: 5 березня 2013 Может конечно и поздно что-то советовать, но я бы лучше проложил другую трубу, потому как из открытого канала может нести запашок ... или гидрозатвор надо сделать прямо под стеной дома, куда идет выход канализационной трубы. А уклон стандартный 2 см разница высот на метр длины. Посилання на коментар Поділитися на інших сайтах More sharing options...
Рекомендовані повідомлення
Створіть акаунт або увійдіть у нього для коментування
Ви маєте бути користувачем, щоб залишити коментар
Створити акаунт
Зареєструйтеся для отримання акаунта. Це просто!
Зареєструвати акаунтУвійти
Вже зареєстровані? Увійдіть тут.
Увійти зараз