ви-рус Опубліковано: 1 вересня 2010 Поділитись Опубліковано: 1 вересня 2010 (змінено) Здравствуйте. На форуме уже давно, но все больше читал. И вот решился выложить свои разработки на суд общественности, так сказать. Преамбула такова. Был дом. старый. Вот такой. (ссылка на изображение устарела) Пардон за художества, рисовал как мог. В итоге хочу получить нечто такое: (ссылка на изображение устарела) Перестраиваю сам, что придумал, то и леплю. А придумал я вот что: (ссылка на изображение устарела) Это внутренний план, как вы уже поняли. Спасибо Hover помог. И вот в общем то сама амбула - нужны помощь зала, любое мнение, любой отклик. И самое главное - идеи куда приткнуть лестницу на второй этаж. Всем заранее спасибо. Змінено 1 вересня 2010 користувачем ви-рус Посилання на коментар Поділитися на інших сайтах More sharing options...
Hover Опубліковано: 1 вересня 2010 Поділитись Опубліковано: 1 вересня 2010 Сверьтесь с размерами что то не так. Дорисуйте пожалуста где входы в комнаты с размерами, чистый план схему вышлю на почту. ps... А почему мой ник помечен красным цветом. если я вам чем то не угодил. а если все нормально так лучше зеленым. 1 Посилання на коментар Поділитися на інших сайтах More sharing options...
daniel Опубліковано: 1 вересня 2010 Поділитись Опубліковано: 1 вересня 2010 с лестницей, как обычно, у всех бывают проблемы и трудности, если план строительства придумываете сами и про лестницу вспоминаете в самом конце у меня тоже месяц голова за лестницу болела.. в итоге вертел я ее куда угодно, но до этого еще не знав основных законов проектирования лестниц.. (ширина шага при спуске, ширина ступеньки и т.д.).. что бы лестница не была очень крутая и сложная - нужно правильно расчитать растояние между ступеньками, что бы потом комфортно было ходить.. для комфортной ходьбы по лестнице существуют несколько правил, это 30 см глубина ступеньки и 15 см высота.. но это уж очень идеально.. примерно усреднённо на сегодняшний день можно считать глубину ступеньки 25-28см и высота 16-18см.. Если в один марш не выходит установить лестницу, тогда ставят лестницу с забегом, с поворотом или винтовую... лично у меня лстница будет с небольшим забегом сбоку, где то 2-3 ступеньки я так полагаю, глубина ступеньки при спуске будет 27 см, высота кажись 17см я подсчитывал... ширина ступеней будет 110 см. Что бы правильно спроектировать лестницу, нужно знать габариты отведенного под лестницу места... высоту между полами нижнего и верхнего этажей, длину подъема, точнее ее проекции. ну и тоннеля над головой, в который будет лестница подниматься.. Укажите габариты тамбурка, где у Вас лестница нарисована, попробуем просчитать комфортабельность такой лестницы.. Посилання на коментар Поділитися на інших сайтах More sharing options...
ви-рус Опубліковано: 1 вересня 2010 Автор Поділитись Опубліковано: 1 вересня 2010 ps... А почему мой ник помечен красным цветом. если я вам чем то не угодил. а если все нормально так лучше зеленым. :lol: наоборот понравилось . Спасибо большое . исправить не могу не дают больше 2 раз Посилання на коментар Поділитися на інших сайтах More sharing options...
Hover Опубліковано: 1 вересня 2010 Поділитись Опубліковано: 1 вересня 2010 Лестницу в модели я проектировал в реальный размер. Вот модель для дальнейшего проектирования. 1 Посилання на коментар Поділитися на інших сайтах More sharing options...
daniel Опубліковано: 1 вересня 2010 Поділитись Опубліковано: 1 вересня 2010 ага, вижу теперь.. лестница в принципе отличная выйдет.. Посилання на коментар Поділитися на інших сайтах More sharing options...
ви-рус Опубліковано: 2 вересня 2010 Автор Поділитись Опубліковано: 2 вересня 2010 Сверьтесь с размерами что то не так. Дорисуйте пожалуста где входы в комнаты с размерами, чистый план схему вышлю на почту. Сверился. Дорисовал красным, что уже сделано . Если что-то не так, объясните, мне пожалуйста поподробней, и желательно, понятней, что мне нужно сделать, а то у меня профиль немного другой Красным пунктиром нарисовано то, что еще в моих строительных планах. Лестница в помещении 4 устраивает. Хочу спросить, а можно ли ее сделать так, как у меня зеленым цветом нарисовано? Просто фишка в том, что я хочу сэкономить немного места в этом помещении, украв кусочек у гаража. Его высота 2,25 м. Посилання на коментар Поділитися на інших сайтах More sharing options...
Hover Опубліковано: 2 вересня 2010 Поділитись Опубліковано: 2 вересня 2010 Вот пока что получилось. Посилання на коментар Поділитися на інших сайтах More sharing options...
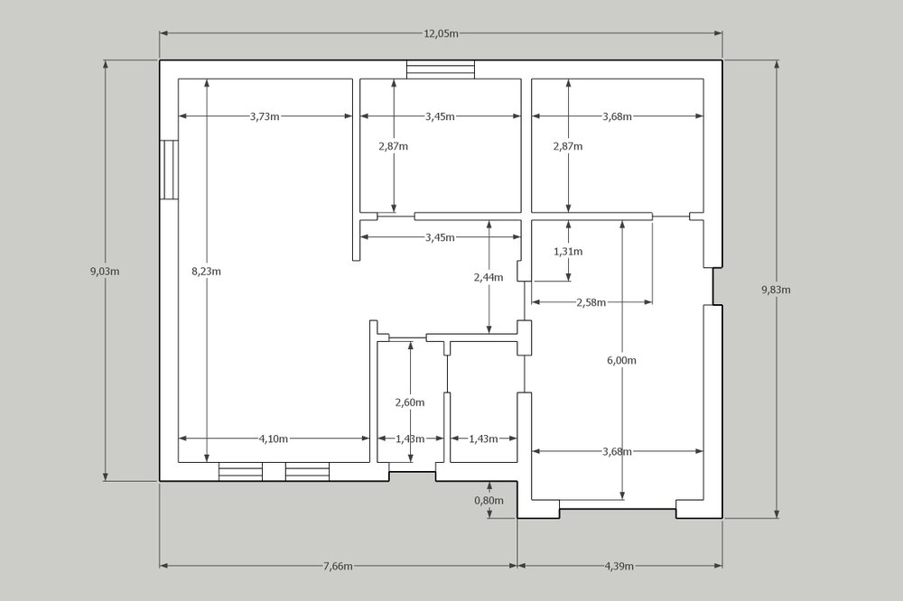
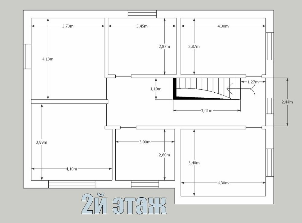
ви-рус Опубліковано: 2 вересня 2010 Автор Поділитись Опубліковано: 2 вересня 2010 Спасибо. Красиво. Наконец-то есть, что показать жене:D. Немного подправил размеры первого этажа (ссылка на изображение устарела) размеры лестницы должны быть немного меньше, так как высота пола на втором этаже над гаражом 2,50м. (значит лестница выходит чуть короче) А высота пола над домом -3м., значит добавляем на втором этаже еще три ступеньки -выходит типа три уровня. Вот бы это увидеть графически... Вот каракули второго этажа: (ссылка на изображение устарела) Почему решил делать ванную над гаражем? У меня трое детей, если они принимают ванну, потопа не избежать. Вот и решил в случае чего - так сразу и машину заодно мне помоют.:lol: Посилання на коментар Поділитися на інших сайтах More sharing options...
daniel Опубліковано: 2 вересня 2010 Поділитись Опубліковано: 2 вересня 2010 вот теперь лестница вообще отличная! в один марш... Посилання на коментар Поділитися на інших сайтах More sharing options...
Hover Опубліковано: 2 вересня 2010 Поділитись Опубліковано: 2 вересня 2010 Ну готовьтесь, вот набросал, лесенку я оставляю прямую с подъемам 18х28 самый нормальный вариант и ходить удобно и ноги задирать не придется. Так что смотрите сами, не советую лестницу делать очень крутой. 2 Посилання на коментар Поділитися на інших сайтах More sharing options...
daniel Опубліковано: 2 вересня 2010 Поділитись Опубліковано: 2 вересня 2010 абалденные чертежи и 3Д-схемы а крыши Вы умеете моделировать? Посилання на коментар Поділитися на інших сайтах More sharing options...
Hover Опубліковано: 2 вересня 2010 Поділитись Опубліковано: 2 вересня 2010 Смоделировать крышу, стропильную ферму сложной крыши смогу, главное переложить на чертежи понятные кровельщикам, бо иногда приходилась с ноутбуком выезжать на объекты, и там на месте показывать 3D модель. Ну а в общем я моделирую и просчитываю будущую конструкцию крыши. Ну на картинках ниже, так без просчетов, так для показухи. 1 Посилання на коментар Поділитися на інших сайтах More sharing options...
ви-рус Опубліковано: 2 вересня 2010 Автор Поділитись Опубліковано: 2 вересня 2010 (змінено) Вау! Это превзошло все мои ожидания. Спасибище! Пол-года пытался все это представить себе - и ничего, а тут - рррааз - и готово. Супер. Только гараж я достраивал, руководствуясь вот этим рисунком(размеры +-) (ссылка на изображение устарела) У меня потолок в гараже уже получается залит, он ниже уровня потолка самого дома на 0.5м. Вот почему я говорю, что у меня лестница короче получается. И еще - я баран, назвал второй этаж - вторым этажом, хотя на самом деле - это массандра. Можно этот факт как-то подкорректировать, плииз? Змінено 2 вересня 2010 користувачем ви-рус Посилання на коментар Поділитися на інших сайтах More sharing options...
daniel Опубліковано: 2 вересня 2010 Поділитись Опубліковано: 2 вересня 2010 Ну а в общем я моделирую и просчитываю будущую конструкцию крыши. Ну на картинках ниже, так без просчетов, так для показухи. Абалдеть! А не могли бы Вы, для показухи , прикинуть примерно крышу на мой макет, потому что так, как прикидывает мне 3Д-Хоум, в реальности сделать невозможно... картинки мои здесь: www.stroimdom.com.ua/forum/showpost.php?p=668500&postcount=6 но новая форма крыши, как мне сегодня человек показал, будет выглядеть примерно так: (см. фото, только что в фотошопе накалякал, исправляя изначальный макет), выходит полувальмовая крыша (если смотреть с улицы), а изнутри двора такой вот полуужас с фронтоном несиметричным и полуфронтончиком (зашиваемым вагонкой) над углублением здания.. Посилання на коментар Поділитися на інших сайтах More sharing options...
Hover Опубліковано: 2 вересня 2010 Поділитись Опубліковано: 2 вересня 2010 Вот со смещением на пол метра. daniel сейчас прикину, подождите!!! о...о..о.. РАЗМЕРЫ ДАЙТЕ от чего отталкиваться Нашол 1 Посилання на коментар Поділитися на інших сайтах More sharing options...
daniel Опубліковано: 2 вересня 2010 Поділитись Опубліковано: 2 вересня 2010 там у меня по ссылочке есть картинка такая вынос под софит где то 40см (без мауэрлата, стропилы будут опираться на балки перекрытия между 2м этажом и крышей) чердак не жилой и практически непосещаемый, поэтому там угол крыши минимальный для металочерепицы (градусов 30 у основы как я понимаю) Посилання на коментар Поділитися на інших сайтах More sharing options...
Hover Опубліковано: 2 вересня 2010 Поділитись Опубліковано: 2 вересня 2010 Ну вот на скорую руку. под софит где то 60см 1 Посилання на коментар Поділитися на інших сайтах More sharing options...
daniel Опубліковано: 3 вересня 2010 Поділитись Опубліковано: 3 вересня 2010 спасибо большое! но Вы изобразили тот вариант крыши (такой как мне 3Д-хоум рисует), который очень сложный в исполнении и там несостыковка коньков получается.. а я вот щас в своей ветке пытаюсь начёркать крышу, что бы конёк был один общий, и над выступом сделать вынос крыши, что бы скат (который у Вас написано 21.35кв.м) был общий и над входом в дом и без ендов.. ну вобщемвот примерно такая схемка: (хотя я понимаю, что ни одна компьютерная программа такое не сможет изобразить) Посилання на коментар Поділитися на інших сайтах More sharing options...
Hover Опубліковано: 3 вересня 2010 Поділитись Опубліковано: 3 вересня 2010 попробуем сделать. 1 Посилання на коментар Поділитися на інших сайтах More sharing options...
Hover Опубліковано: 3 вересня 2010 Поділитись Опубліковано: 3 вересня 2010 Ну вот на скорую руку. 1 Посилання на коментар Поділитися на інших сайтах More sharing options...
daniel Опубліковано: 3 вересня 2010 Поділитись Опубліковано: 3 вересня 2010 ага, спасибо! вот это уже примерно почти оно только справа фронтончик будет... и конёк немного сдвинут ближе к нижней части рисунка.. Посилання на коментар Поділитися на інших сайтах More sharing options...
Gitan Опубліковано: 3 вересня 2010 Поділитись Опубліковано: 3 вересня 2010 ага, спасибо! вот это уже примерно почти оно только справа фронтончик будет... и конёк немного сдвинут ближе к нижней части рисунка.. Делайте как вам Хомер прикинул. В вашем варианте с фронтоном некрасиво получается. Посилання на коментар Поділитися на інших сайтах More sharing options...
daniel Опубліковано: 3 вересня 2010 Поділитись Опубліковано: 3 вересня 2010 да я понимаю, что некрасиво... самому не нравится... просто по другому, с ендовами (как я изначально планировал и как Hover нарисовал), там коньки на 3-х разных уровнях находятся и выходят гребни сверху крыши непонятные... я вот только что сидел и еще 2 варианта придумал, что бы было симетрично и не сложно.. щас попробую изобразить как-то.. Посилання на коментар Поділитися на інших сайтах More sharing options...
daniel Опубліковано: 3 вересня 2010 Поділитись Опубліковано: 3 вересня 2010 Hover будьте добры, если не сложно, прикинте крышу по моей новой схеме www.stroimdom.com.ua/forum/showthread.php?p=672177#post672177 Посилання на коментар Поділитися на інших сайтах More sharing options...
Рекомендовані повідомлення
Створіть акаунт або увійдіть у нього для коментування
Ви маєте бути користувачем, щоб залишити коментар
Створити акаунт
Зареєструйтеся для отримання акаунта. Це просто!
Зареєструвати акаунтУвійти
Вже зареєстровані? Увійдіть тут.
Увійти зараз