specialistv Опубліковано: 6 вересня 2010 Поділитись Опубліковано: 6 вересня 2010 Уважаемые Форумчане! Прошу прокоментировать приведенные на фото варианты стыковки закрытой веранды к дому. Функция веранды: тепловой буфер перед входом в дом (в холодное время года), и организация входа в подвал (под верандой). Вариант 1. Запланировано на уровне фундаментной ленты дома положить ЖБ плиту, на ней поставить столбы (1,5 кирпича). На столбы положить ЖБ балку, на которую опереть плиты пола веранды. Второй край плит планирую опереть на цоколь дома (Рис.1) и прижать фасадной стеной (облицовочный кирпич). Возник вопрос, не привидет ли такой вариант стыковки к разрушению фасадной стены, от морозного пучения грунта? Вариант 2. Обе стороны плит пола веранды опереть на столбы. По данному варианту везростают материало- и трудозатраты. Веранду запланировано выполнить в 0,5 кирпича, размер 1,5 *3.3м. Прошу прощения за вероятную сумбурность изложенного8-), за раннее благодарен за участие в диалоге Посилання на коментар Поділитися на інших сайтах More sharing options...
trianom Опубліковано: 6 вересня 2010 Поділитись Опубліковано: 6 вересня 2010 Не помешал бы и планчик - неясно плитами веранды будет перекрываться только вход в подвал или будет помещение под "пятном" наземной веранды. А так, ИМХО, II вар. не нужен - слишком трудоемок и результат того не стоит. Для компенсации действия сил морозного пучения предусмотрите под фундам. плитой щебеночную подготовку толщ. 400 мм. Посилання на коментар Поділитися на інших сайтах More sharing options...
specialistv Опубліковано: 6 вересня 2010 Автор Поділитись Опубліковано: 6 вересня 2010 Под всем "пятном" наземной веранды запланировано открытое помещение. Плиту уже установил... подготовку щебнем уже не получится. Под плитой песок. Если пренебречь силами морозного пучения, можно было бы и стенки связать (дом-веранда), и накрыть все одной крышей.. но гложут смутные сомнения Посилання на коментар Поділитися на інших сайтах More sharing options...
trianom Опубліковано: 6 вересня 2010 Поділитись Опубліковано: 6 вересня 2010 Тогда имеет смысл защитить грунты основания от водички (дренаж продумать). От промерзания фундаментная плита будет защищена подвальным тамбуром насколько я понимаю. Теперь ограждающие конструкции - по столбам ж.б. балка это вроде понятно. А вот чем заполняется пространство между столбами? Ж.б. перекрытие - рабочий вариант, только узлы опирания нужно проработать. ИМХО, лучше сделать узел опирания плит перекрытия на цоколь дома (под фасадной стеной) жестким т.е. связать арматуру плит и опорного ж.б. пояса (придется делать) с помощью сварки. Тогда сверху можно пригружать кладкой из лицевого кирпича. В противном случае под лицевую кладку фасадной стены не помешала бы упругая прокладка скажем из того же ЭППС (или в идеале устроить опирание фасадной стены на независмую балку (независимую от плит перекрытия пристройки)). Посилання на коментар Поділитися на інших сайтах More sharing options...
specialistv Опубліковано: 6 вересня 2010 Автор Поділитись Опубліковано: 6 вересня 2010 (змінено) trianom спасибо Вам за идеи и предложения! Пространство между столбами планирую замуровать кирпичем (0,5 - 1 кирпич). Подвальный тамбур планирую холодным - без двери, полагаю что установка дверей не обеспечит положительных температур. Поэтому есть опасения, что жесткая связка плит и ж.б. пояса выдержит морозных пучений грунта. Упругая прокладка из ЭППС под весом кирпичной стены 6м. - потеряет свойство упругости.. ИМХО. По поводу устроить опирание фасадной стены на независмую балку, это есть идея! Сейчас изображу графически и выложу на ваш суд Змінено 6 вересня 2010 користувачем specialistv Посилання на коментар Поділитися на інших сайтах More sharing options...
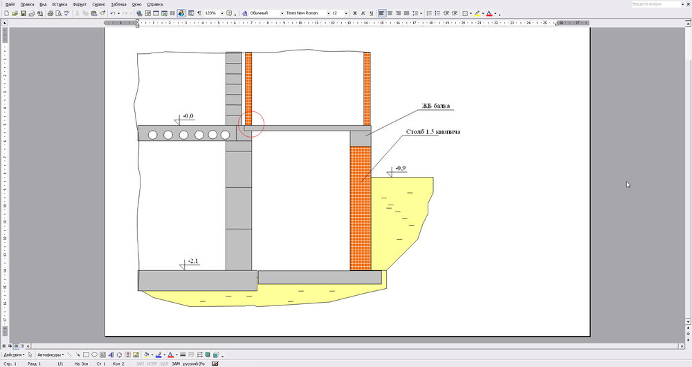
specialistv Опубліковано: 6 вересня 2010 Автор Поділитись Опубліковано: 6 вересня 2010 Вот набросал вариант с опиранием фасадной стены на балку независимую от плит перекрытия пристройки.. И выполнить такой узел не сложно Что скажите? Посилання на коментар Поділитися на інших сайтах More sharing options...
trianom Опубліковано: 6 вересня 2010 Поділитись Опубліковано: 6 вересня 2010 Пространство между столбами планирую замуровать кирпичем (0,5 - 1 кирпич) Вот тут стоит начинать с толщ. стены в 1 кирпич да еще усилить кладочной сеткой, поскольку стена будет работать как подпорная (ее высота 1.2 м с разреза). Подвальный тамбур планирую холодным - без двери, полагаю что установка дверей не обеспечит положительных температур. Я бы двери установил, в морозы думаю все равно выше ноля (+2,+3 С) держаться будет за счет земляного аккумулятора тепла. Если без дверей - стоит утеплить фунд. плиту, чтобы не промерзал грунт под ней. Вот набросал вариант с опиранием фасадной стены на балку независимую от плит перекрытия пристройки.. Вроде выполнимо, только утеплитель я бы и по торцу плиты заложил (компенсировать подвижки по горизонтали). Хотя вариант жесткого защемления плиты в цоколе я бы не отбрасывал - одновременно и ж.б. пояс можно выполнить (пространственный каркас из 4 стержней вдоль, а не армо- шов из 2 стержней), и прочность для восприятия возможных деформаций (от морозного пучения) более чем достаточная. Во вложении пример заделки ж.б. плиты в стену. Посилання на коментар Поділитися на інших сайтах More sharing options...
specialistv Опубліковано: 6 вересня 2010 Автор Поділитись Опубліковано: 6 вересня 2010 (змінено) trianom спасибо. С коментариями согласен. Вот только вариант жесткой заделки плит в цоколе смущает. У меня заготовлены плиты, они вероятно изготавливались для установки в многоэтажке на площадке мусоропровода, в них отверстие ~D500. Толщина этих плит порядка 10см, какое в них армирование незнаю. Боюсь что при жесткой заделке могут разрушиться сами плиты (при пучении грунта). Змінено 6 вересня 2010 користувачем specialistv Посилання на коментар Поділитися на інших сайтах More sharing options...
trianom Опубліковано: 7 вересня 2010 Поділитись Опубліковано: 7 вересня 2010 У меня заготовлены плиты, они вероятно изготавливались для установки в многоэтажке на площадке мусоропровода, в них отверстие ~D500. Для сборных плит соглашусь, жесткую заделку с помощью сварки выполнить достаточно трудоемко. И еще, кирпич материал довольно гигроскопичный - будет тянуть влагу из грунта, поэтому стоит задуматься о вертикальной гидроизоляции подпорных стен (обмазочная или наплавляемая) или отказаться от кирпича и смотреть в сторону других материалов (бут, блоки ФБС). Посилання на коментар Поділитися на інших сайтах More sharing options...
specialistv Опубліковано: 7 вересня 2010 Автор Поділитись Опубліковано: 7 вересня 2010 Подпорные стены веранды планирую оштукатурить, оклеить еврорубероидом и залить отмостку. Интересно знать, хотя бы приблизительно, величину этих морозных пучений грунта (песка). Насколько будет "играть" веранда относительно статичного дома, если все-таки грунт под верандой промерзнет (например дверь тамбура подвала забыли закрыть). Исходя из этих величин, необходимо определить размеры демпферов (ЭППС) для компенсации возможных подвижек веранды. Посилання на коментар Поділитися на інших сайтах More sharing options...
trianom Опубліковано: 7 вересня 2010 Поділитись Опубліковано: 7 вересня 2010 В районах с высоким расположением грунтовых вод на фундаменты малоэтажных зданий воздействуют силы морозного пучения. В тяжелых пучинистых грунтах (водонасыщенные глины, суглинки, супеси, мелкие и пылеватые пески) эти силы достигают 100...150 кПа (10...15 тс/м2) и, действуя на фундамент снизу вверх, часто превосходят нагрузки вышерасположенных конструкций. При этом сезонные вертикальные перемещения поверхностного слоя грунта при его промерзании на 1...1,5 м составляют 10...15 см. Перекошенные крыльца, террасы, веранды, а иногда и стены домов - в подавляющем большинстве случаев результат действия именно сил морозного пучения грунтов Источник: www.mensh.ru Посилання на коментар Поділитися на інших сайтах More sharing options...
specialistv Опубліковано: 7 вересня 2010 Автор Поділитись Опубліковано: 7 вересня 2010 trianom спасибо за информацию. При заданной глубине промерзания 0,6м моя веранда рискует уйти вверх на 6см . Похоже одними демпферами точно не обойтись. Прийдется принять меры для минимилизации промерзания грунта: однозначно дверь в тамбур подвала, утепление пола на грунте. Посилання на коментар Поділитися на інших сайтах More sharing options...
specialistv Опубліковано: 12 вересня 2010 Автор Поділитись Опубліковано: 12 вересня 2010 Уважаемые форумчене! Кто пристраивал к дому пристройку (веранду) на отдельном фундаменте, поделитесь опытом устройства такой пристройки и информацией об особенностях ее последующей эксплуатации. Неужели никто не сталкивался с такой проблемой? Посилання на коментар Поділитися на інших сайтах More sharing options...
nowhereMAN Опубліковано: 12 вересня 2010 Поділитись Опубліковано: 12 вересня 2010 Уважаемые форумчене! Кто пристраивал к дому пристройку (веранду) на отдельном фундаменте, поделитесь опытом устройства такой пристройки и информацией об особенностях ее последующей эксплуатации. Неужели никто не сталкивался с такой проблемой? Мы еще строим престройку из кирпича. (www.stroimdom.com.ua/forum/showthread.php?t=40300, www.stroimdom.com.ua/forum/showthread.php?t=39959) для фундамента использовали старые блоки. Вырыли яму, пригнали кран - опустили блоки, затем кладка кирпича. Сейчас подошли к перекрытию. есть идея сделать деревянными балками. Поскольку сверху будет терасса, то наверное попробуем залить бетоном. Опыта эксплуатации нет 1 Посилання на коментар Поділитися на інших сайтах More sharing options...
Igor_M Опубліковано: 13 вересня 2010 Поділитись Опубліковано: 13 вересня 2010 Уважаемые Форумчане! Прошу прокоментировать приведенные на фото варианты стыковки закрытой веранды к дому. Функция веранды: тепловой буфер перед входом в дом (в холодное время года), и организация входа в подвал (под верандой). Вариант 1. Запланировано на уровне фундаментной ленты дома положить ЖБ плиту, на ней поставить столбы (1,5 кирпича). На столбы положить ЖБ балку, на которую опереть плиты пола веранды. Второй край плит планирую опереть на цоколь дома (Рис.1) и прижать фасадной стеной (облицовочный кирпич). Возник вопрос, не привидет ли такой вариант стыковки к разрушению фасадной стены, от морозного пучения грунта? Вариант 2. Обе стороны плит пола веранды опереть на столбы. По данному варианту везростают материало- и трудозатраты. Веранду запланировано выполнить в 0,5 кирпича, размер 1,5 *3.3м. Прошу прощения за вероятную сумбурность изложенного8-), за раннее благодарен за участие в диалоге Что-то не пойму - если вы собираетесь ПОД верандой устраивать вход в подвал, то как вы обойдетесь ТОЛЬКО столбами? Наверное, нужно тогда полные стены делать фундаментные? А что касаемо вариантов, то мое мнение такое - если бы это было крыльцо, то можно было бы опереть его одной стороной на стену, а в вашем случае я бы делал отдельный фундамент и предусмотрел бы дилатационный разрыв между фундаментом дома и веранды... По крайней мере я так себе террасу пристраивал - столбчатый фундамент, соединенный лентой... (отчет здесь - www.stroimdom.com.ua/forum/showthread.php?t=21751&page=69, начиная с поста 1362...) Посилання на коментар Поділитися на інших сайтах More sharing options...
specialistv Опубліковано: 13 вересня 2010 Автор Поділитись Опубліковано: 13 вересня 2010 Что-то не пойму - если вы собираетесь ПОД верандой устраивать вход в подвал, то как вы обойдетесь ТОЛЬКО столбами? Наверное, нужно тогда полные стены делать фундаментные? Полные стены со стороны подпора грунта - да. Пространство между столбами будет заполнено кирпичной кладкой. На эту стенку опирается один край плит перекрытия пристройки, а другой край плит хочу опереть на фундамент дома, но жестко не связывать (устроить демпферы из ЭППС для компенсации возможных верт. и гориз. подвижек пристройки). Нуууу очень интерестно знать: имеет место быть, такой вариант? Читал посты о Вашей, Igor_M, террасе. Соединение балки под мауэрлат со стеной, как я понимаю обеспечивает независимость балки в горизонтальной плоскости, а по вертикали получилась жесткая заделка (http://www.stroimdom.com.ua/forum/showpost.php?p=606391&postcount=1401), но возможно у Вас эти вертикальные перемещения исключены в принципе, чего не могу сказать о своей пристройке. Отдельное спасибо хочу сказать за Ваш отчет о стройке. Постоянно читаю этапы эквидистантные этапам моей стройки, почерпнул много полезного . Посилання на коментар Поділитися на інших сайтах More sharing options...
Igor_M Опубліковано: 14 вересня 2010 Поділитись Опубліковано: 14 вересня 2010 Полные стены со стороны подпора грунта - да. Пространство между столбами будет заполнено кирпичной кладкой. На эту стенку опирается один край плит перекрытия пристройки, а другой край плит хочу опереть на фундамент дома, но жестко не связывать (устроить демпферы из ЭППС для компенсации возможных верт. и гориз. подвижек пристройки). Нуууу очень интерестно знать: имеет место быть, такой вариант? В-общем посмотрел еще раз внимательно первый пост. Я бы себе делал по варианту 2, но только вот те столбы, что примыкают к цоколю дома, я бы не ставил на фундаментную плиту самого дома (т.е. сместил бы правее)... Если бы вы дали еще картинку ан фас, а не только в профиль и на ней обозначили бы лестницу вниз и дверь в подвал, было бы проще разобраться сразу... ЗЫ У меня нет жеской связи балки крыши террасы со стенами дома - в местах их "входа" дом ниша 100мм, обложенная эппс 30мм и туда залит бетон... между армопоясом дома и балкой тоже эппс 50мм. Жесткость обеспечивается сцеплением со столбами... 1 Посилання на коментар Поділитися на інших сайтах More sharing options...
specialistv Опубліковано: 25 вересня 2010 Автор Поділитись Опубліковано: 25 вересня 2010 Хочу оживить тему... Уважаемые форумчане, поделитесь опытом эксплуатации совмещенных построек (пристроек к основному зданию, на независимых фундаментах). Как они ведут себя в зимнее время? Посилання на коментар Поділитися на інших сайтах More sharing options...
TT Опубліковано: 25 вересня 2010 Поділитись Опубліковано: 25 вересня 2010 Хочу оживить тему... Уважаемые форумчане, поделитесь опытом эксплуатации совмещенных построек (пристроек к основному зданию, на независимых фундаментах). Как они ведут себя в зимнее время? Они живут живут отдельной жизнью !!! Сегодня я впал в раздумия : "Зачем гараж отделился от дома ? Сепаратизм ,что-ли ?" ))) Посилання на коментар Поділитися на інших сайтах More sharing options...
specialistv Опубліковано: 26 вересня 2010 Автор Поділитись Опубліковано: 26 вересня 2010 Они живут живут отдельной жизнью !!! Сегодня я впал в раздумия : "Зачем гараж отделился от дома ? Сепаратизм ,что-ли ?" ))) Скажите, образование "автономии" произошло в резульнате морозного пучения грунта, или в следствии разной усадки? И что связывало их вместе до отделения? Посилання на коментар Поділитися на інших сайтах More sharing options...
TT Опубліковано: 29 вересня 2010 Поділитись Опубліковано: 29 вересня 2010 Скажите, образование "автономии" произошло в резульнате морозного пучения грунта, или в следствии разной усадки? И что связывало их вместе до отделения? Предполагаю,что из-за разной усадки. Гараж был пристроен несколько позже. Кроме того ,обнаружилось, что к дому гараж не был "привязан" ,как то оговривалось с бригадой стройбатовцев... Посилання на коментар Поділитися на інших сайтах More sharing options...
Igor_M Опубліковано: 30 вересня 2010 Поділитись Опубліковано: 30 вересня 2010 Предполагаю,что из-за разной усадки. Гараж был пристроен несколько позже. Кроме того ,обнаружилось, что к дому гараж не был "привязан" ,как то оговривалось с бригадой стройбатовцев... Так оно и к лучшему... Если бы был привязан, то порвало бы, причем непонятно где - гараж мог отъехать с куском стены... То, что сильно разбежались говорит о том, что либо плохо рассчитали фундамент (не учли несущую способность грунта, допустим), либо сделали некачественно... Посилання на коментар Поділитися на інших сайтах More sharing options...
TT Опубліковано: 30 вересня 2010 Поділитись Опубліковано: 30 вересня 2010 Так оно и к лучшему... Если бы был привязан, то порвало бы, причем непонятно где - гараж мог отъехать с куском стены... То, что сильно разбежались говорит о том, что либо плохо рассчитали фундамент (не учли несущую способность грунта, допустим), либо сделали некачественно... "Уехал" гараж на 1мм. Ну и пусть. Задуем пеной. Кстати, продаю пену монтажную Makroflex !!! И очень даже недорого ! Посилання на коментар Поділитися на інших сайтах More sharing options...
Igor_M Опубліковано: 30 вересня 2010 Поділитись Опубліковано: 30 вересня 2010 "Уехал" гараж на 1мм. Ну и пусть. Задуем пеной. Кстати, продаю пену монтажную Makroflex !!! И очень даже недорого ! Нужно чем-то эластичным заполнить... Потому как пена "задубеет", а подвижки еще вполне возможны, причем как в одну, так и в другую сторону... Посилання на коментар Поділитися на інших сайтах More sharing options...
TT Опубліковано: 1 жовтня 2010 Поділитись Опубліковано: 1 жовтня 2010 Нужно чем-то эластичным заполнить... Потому как пена "задубеет", а подвижки еще вполне возможны, причем как в одну, так и в другую сторону... Логично. А мы заполним герметиками ! ))) У нас отличный выбор. (ссылка устарела) (ссылка устарела) Посилання на коментар Поділитися на інших сайтах More sharing options...
Рекомендовані повідомлення
Створіть акаунт або увійдіть у нього для коментування
Ви маєте бути користувачем, щоб залишити коментар
Створити акаунт
Зареєструйтеся для отримання акаунта. Це просто!
Зареєструвати акаунтУвійти
Вже зареєстровані? Увійдіть тут.
Увійти зараз