Sharkan Опубліковано: 5 жовтня 2010 Поділитись Опубліковано: 5 жовтня 2010 (змінено) Для начало нужно отметить, что дом еще до конца не построен. Но поскольку цокольный этаж уже завершен, то положение как минимум несущих стен уже предопределено. Размеры проема: длина – 380 см (394см если вломиться в стену на пол кирпича); Высота – 290 см. Ну и ширина может вариироваться до 2 метров. В проекте была запланирована лестница с забежными ступенями. Но почитав форум и обратив внимание на мнение авторитетных форумчан я решил попробовать забежные ступеньки обойти – или как минимум минимизировать их количество. Вот что у меня получилось: Вариант 1: лестница с двумя промежуточными площадками (Рис. 1). Теоретически можно делать – хотя и пришлось вломиться на пол кирпича в стену. Параметры: количество ступенек: 16; высота подступенька: 18,13 см; проступь: 24,25 см. . Недостатки: парное количество ступенек, 18,3 см подступенек – немного высоковато – неудобно будет.Существенный недостаток – проступь критически мала. Вариант 2: чтобы как-то ликвидировать недостатки первую промежуточную площадку я разделил надвое по диагонали (Рис. 2). Получились параметры: количество ступенек: 16; высота подступенька: 18,13 см; проступь: 27,71 см. . Вопрос с проступью решился. Выходит неплохо. Но два других недостатка остались. Вариант 3: чтобы избавиться от двух остальных недостатков первую промежуточную плодщадку разделил на 3 ступеньки (Рис.3).. Получились параметры: количество ступенек: 17; высота подступенька: 17,05 см; проступь: 27,71 см.. Вроде бы самый идеальный вариант – но площадка, разделенная на 3 ступеньки – это уже забежные выходит... Вторую промежуточную площадку опускать ниже нельзя – под ней входная дверь. Вот уже который день сижу и ломаю голову – какой вариант выбрать...первый по идеи отпадает – остается два... А какой вариант выбрали бы вы ? Посоветуйте пожалуйста...или может у кого-то есть идея усовершенствования одного из вариантов... Приоритеты расставляю: безопасность (в доме дети), удобство, красота. Змінено 5 жовтня 2010 користувачем Sharkan Посилання на коментар Поділитися на інших сайтах More sharing options...
Igor_M Опубліковано: 5 жовтня 2010 Поділитись Опубліковано: 5 жовтня 2010 Я три месяца думал, так что у вас все еще впереди... Вот эти площадки поворотные на 90 градусов - страшное зло. Неудобные они, сбивается шаг... Да и соотношение проступи и подступенка во всех вариантах скажем так неоптимальное... вот тут у меня был диспут www.stroimdom.com.ua/forum/showpost.php?p=617325&postcount=1425 Может, вам добавить где-то одну ступеньку, чтоб получилось хотя бы 170х290??? Посилання на коментар Поділитися на інших сайтах More sharing options...
Sharkan Опубліковано: 6 жовтня 2010 Автор Поділитись Опубліковано: 6 жовтня 2010 Я три месяца думал, так что у вас все еще впереди... Вот эти площадки поворотные на 90 градусов - страшное зло. Неудобные они, сбивается шаг... Да и соотношение проступи и подступенка во всех вариантах скажем так неоптимальное... вот тут у меня был диспут www.stroimdom.com.ua/forum/showpost.php?p=617325&postcount=1425 Может, вам добавить где-то одну ступеньку, чтоб получилось хотя бы 170х290??? Игорь, так я уже тоже мучаюсь довольно долго - вот результы мучений представил на суд так сказать . Сил моих больше нет крутить, считать, думать и комбинировать. Касательно площадок - вопрос довольно спорный зло это или нет. Так же как и вопрос о забежных срупеньках. Ну а соотношение проступи и подступенка в последних двух вариантах довольно таки оптимально должен я Вам сказать. И по Блонделю, и по безопасности и по удобству. Притом в последнем вариате вообще хорошо получается. Кстати, в процесе мук творчества я Ваши посты и дискуссии раз 200 наверное перечитывал. Должен сказать Вам от себя и я думаю от всех форумчан СПАСИБО за то что находите время писать и выносить темы на всеобщее обсуждение.:beer: 1 Посилання на коментар Поділитися на інших сайтах More sharing options...
Мирт Опубліковано: 6 жовтня 2010 Поділитись Опубліковано: 6 жовтня 2010 Треугольные забежные ступени - небезопасны. Лучше чтобы ступени имели форму трапеции. Покажите для сравнения лестницу по проекту. 1 Посилання на коментар Поділитися на інших сайтах More sharing options...
Sharkan Опубліковано: 6 жовтня 2010 Автор Поділитись Опубліковано: 6 жовтня 2010 По проекту получалось приблизительно как на рисунке. Тоесть забежные. Посилання на коментар Поділитися на інших сайтах More sharing options...
DenverAF Опубліковано: 6 жовтня 2010 Поділитись Опубліковано: 6 жовтня 2010 А не рассматривали такой вариант (правда я не смог понять впишется ли он Вам)? Посилання на коментар Поділитися на інших сайтах More sharing options...
Мирт Опубліковано: 6 жовтня 2010 Поділитись Опубліковано: 6 жовтня 2010 По проекту получалось приблизительно как на рисунке. Тоесть забежные. Как по мне то нормальная лестница, два человека разойдутся при встрече по ней, в изготовлении она трудоёмкая, ступени почти все разные, косоуры причудливой формы получатся. Вообще советую почитать ветку одного мастера по лестницам на форуме forum.dwg.ru/showthread.php?t=3785 и его книгу www.kodges.ru/48829-sovremennye-lestnicy.-proektirovanie-izgotovlenie.html Посилання на коментар Поділитися на інших сайтах More sharing options...
Sharkan Опубліковано: 6 жовтня 2010 Автор Поділитись Опубліковано: 6 жовтня 2010 А не рассматривали такой вариант (правда я не смог понять впишется ли он Вам)? Такой вариант рассматривал...но он занимает слишком много места в прихожей. Тоесть большую половину. Но всеравно спасибо за вариант. Может стоить выложить план первого этажа - чтобы людям понятее было куда я именно хочу вписать эту лестницу ? Посилання на коментар Поділитися на інших сайтах More sharing options...
Sharkan Опубліковано: 6 жовтня 2010 Автор Поділитись Опубліковано: 6 жовтня 2010 Как по мне то нормальная лестница, два человека разойдутся при встрече по ней, в изготовлении она трудоёмкая, ступени почти все разные, косоуры причудливой формы получатся. Вообще советую почитать ветку одного мастера по лестницам на форуме forum.dwg.ru/showthread.php?t=3785 и его книгу www.kodges.ru/48829-sovremennye-lestnicy.-proektirovanie-izgotovlenie.html За ссылки спасибо - изучу. Хотя я теорию довольно таки серьезно проштудировал перед тем как начать что-то проектировать. Но если Вы говорите что лестница вполне нормальная - тогда почему подавляющее большинство конструкторов, архитекторов, а также форумчан так эти забежные ступеньки ругают ? Посилання на коментар Поділитися на інших сайтах More sharing options...
Мирт Опубліковано: 6 жовтня 2010 Поділитись Опубліковано: 6 жовтня 2010 тогда почему подавляющее большинство конструкторов, архитекторов, а также форумчан так эти забежные ступеньки ругают ? Потому-что по незнанию многие архитекторы и конструктора проектируют лестницу с забежными ступенями как здесь goravsky.ua/edu/211-27.html А такая разметка неправильная. В книге которую я привёл выше вы увидите разницу. Посилання на коментар Поділитися на інших сайтах More sharing options...
Sharkan Опубліковано: 6 жовтня 2010 Автор Поділитись Опубліковано: 6 жовтня 2010 Потому-что по незнанию многие архитекторы и конструктора проектируют лестницу с забежными ступенями как здесь goravsky.ua/edu/211-27.html А такая разметка неправильная. В книге которую я привёл выше вы увидите разницу. Я использую для проектирования програмку StairDesigner - тоесть получается что разметка ступенек идет автоматически - тлоько нужно параметры задать. Думаю что программа считает правильно... Посилання на коментар Поділитися на інших сайтах More sharing options...
Мирт Опубліковано: 6 жовтня 2010 Поділитись Опубліковано: 6 жовтня 2010 Вот пример нормальной лестницы с забежными ступенями: Посилання на коментар Поділитися на інших сайтах More sharing options...
Igor_M Опубліковано: 6 жовтня 2010 Поділитись Опубліковано: 6 жовтня 2010 Вот пример нормальной лестницы с забежными ступенями: Боже, какое счастье... А посмотрите - у меня "нормальная"??? Вот здесь www.stroimdom.com.ua/forum/showpost.php?p=687345&postcount=1526... Посилання на коментар Поділитися на інших сайтах More sharing options...
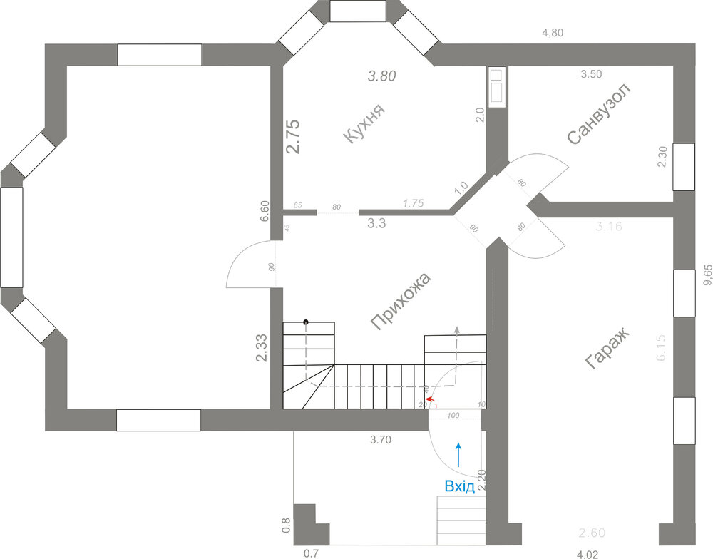
Sharkan Опубліковано: 7 жовтня 2010 Автор Поділитись Опубліковано: 7 жовтня 2010 (змінено) Я выставляю для наглядности план первого этажа (ступеньки изображены чисто схематически - просто чтобы видеть где они должны быть). Может это натолкнет форумчан на новые идеи. Вот пример нормальной лестницы с забежными ступенями: Такой тип лестницы у меня не получится...под лестницей идущей на второй этаж размещена лестница в подвал. Тоесть сразу при входе поворачиваем налево (на плане этажа маленькая красная стрелочка) - и спускаемся в подвал. Змінено 7 жовтня 2010 користувачем Sharkan Посилання на коментар Поділитися на інших сайтах More sharing options...
Мирт Опубліковано: 7 жовтня 2010 Поділитись Опубліковано: 7 жовтня 2010 Боже, какое счастье... А посмотрите - у меня "нормальная"??? Вот здесь www.stroimdom.com.ua/forum/showpost.php?p=687345&postcount=1526... У вас винтовая лестница, со всеми достатками и недостатками таких типов лестниц. Сравнить не получиться. Посилання на коментар Поділитися на інших сайтах More sharing options...
Мирт Опубліковано: 7 жовтня 2010 Поділитись Опубліковано: 7 жовтня 2010 (змінено) Такой тип лестницы у меня не получится...под лестницей идущей на второй этаж размещена лестница в подвал. Тоесть сразу при входе поворачиваем налево (на плане этажа маленькая красная стрелочка) - и спускаемся в подвал. Не обязательно такой формы, просто обратите внимание на размеры торцов ступенек , там минимум 14-15 см . Фото лестницы было найдено на этом сайте evrostep.ru/taxonomy/term/11 Не путать с украинским евростепом. Змінено 7 жовтня 2010 користувачем Мирт Посилання на коментар Поділитися на інших сайтах More sharing options...
Sharkan Опубліковано: 7 жовтня 2010 Автор Поділитись Опубліковано: 7 жовтня 2010 Не обязательно такой формы, просто обратите внимание на размеры торцов ступенек , там минимум 14-15 см . Да, я понял. Сейчас прорабатываю следующий вариант: сделать забежные трапецевидные ступеньки до второй площадки (вторую площадку все-таки оставлю). Вы говорили что треугольные ступеньки не безопасные. Это касается и варианта 2 (площадка разделена на де половины - выходит по сути два больших треугольника) ? Посилання на коментар Поділитися на інших сайтах More sharing options...
Мирт Опубліковано: 7 жовтня 2010 Поділитись Опубліковано: 7 жовтня 2010 Вы говорили что треугольные ступеньки не безопасные. Это касается и варианта 2 (площадка разделена на де половины - выходит по сути два больших треугольника) ? У меня на работе такие ступеньки. Большие треугольники лучше чем маленькие, ходить можно, единственное что сбивается ритм ходьбы на этих ступеньках, как говорил Игорь М про площадки. Линия хода не равномерная получается. Посилання на коментар Поділитися на інших сайтах More sharing options...
Sharkan Опубліковано: 7 жовтня 2010 Автор Поділитись Опубліковано: 7 жовтня 2010 У меня на работе такие ступеньки. Большие треугольники лучше чем маленькие, ходить можно, единственное что сбивается ритм ходьбы на этих ступеньках, как говорил Игорь М про площадки. Линия хода не равномерная получается. Тоесть из трех приведенных вариантов (другие варианты пока не в счет - только эти три) Вы бы предпочли вариант 2 - несмотря на вытоту подсутпенька 18.13 см (немного многовато) ? Посилання на коментар Поділитися на інших сайтах More sharing options...
Мирт Опубліковано: 7 жовтня 2010 Поділитись Опубліковано: 7 жовтня 2010 Тоесть из трех приведенных вариантов (другие варианты пока не в счет - только эти три) Вы бы предпочли вариант 2 - несмотря на вытоту подсутпенька 18.13 см (немного многовато) ? Вообще я вступился в защиту лестниц с забежными ступенями . Посилання на коментар Поділитися на інших сайтах More sharing options...
Sharkan Опубліковано: 7 жовтня 2010 Автор Поділитись Опубліковано: 7 жовтня 2010 Вообще я вступился в защиту лестниц с забежными ступенями . Ок, я все понял. Просто я подумал если Вы конструктор, то у Вас всегда есть какие-то идеи как оптимально выйти из положения при поставленой задаче Посилання на коментар Поділитися на інших сайтах More sharing options...
Мирт Опубліковано: 7 жовтня 2010 Поділитись Опубліковано: 7 жовтня 2010 Ок, я все понял. Просто я подумал если Вы конструктор, то у Вас всегда есть какие-то идеи как оптимально выйти из положения при поставленой задаче Я не вижу в вашем случае лестницы оптимальнее чем с забежными. Конечно прошу расматривать моё мнение как субьективное. При высоте ступени 18см и выше ноги поднимать придётся выше и это чувствуется, спотыкаться чаще будете. 1 Посилання на коментар Поділитися на інших сайтах More sharing options...
Fedioxa Опубліковано: 7 жовтня 2010 Поділитись Опубліковано: 7 жовтня 2010 Я не вижу в вашем случае лестницы оптимальнее чем с забежными. Конечно прошу расматривать моё мнение как субьективное. При высоте ступени 18см и выше ноги поднимать придётся выше и это чувствуется, спотыкаться чаще будете. А с другой стороны - при шаге 16-17см приедется идти дольше на 1-2 ступени.. Вобще, напишу еще раз, что оптимальным является 17-18см высота шага... у меня это уже как закон! В прошлов месяце поставили лестницу П-образную в чешской или словацкой планировке(таунхауз) так там вышло 16,5см на 290см глубиной, так сами заказчики сказали, что блин так долго подниматься мстало наверх... Ну это как прелюдие... Вопрос к ТС - а почему Вы не используете всю длину по левой стене, если смотреть на план как есть, и можно ли глянуть план второго этажа? Все - таки почему вы не хотите забежные ступени... Соглашусь с Мирт что многие просто неправильно их проетируют, вот люди их боятся, но правильные забежные ступени удобны. и экономят вам пространство... Посилання на коментар Поділитися на інших сайтах More sharing options...
Igor_M Опубліковано: 7 жовтня 2010 Поділитись Опубліковано: 7 жовтня 2010 Я выставляю для наглядности план первого этажа (ступеньки изображены чисто схематически - просто чтобы видеть где они должны быть). Может это натолкнет форумчан на новые идеи. Такой тип лестницы у меня не получится...под лестницей идущей на второй этаж размещена лестница в подвал. Тоесть сразу при входе поворачиваем налево (на плане этажа маленькая красная стрелочка) - и спускаемся в подвал. А в подвал вы проходите? Ведь получается, что перед площадкой ступеньки сразу вниз идут... Вы померяли там высоту? Выходит, что первая ступенька в подвал практически по обрезу дверного косяка... да еще и рядом с ручкой дверной... не опасно ли? И какая планируется лестница в подвал? Посилання на коментар Поділитися на інших сайтах More sharing options...
Sharkan Опубліковано: 7 жовтня 2010 Автор Поділитись Опубліковано: 7 жовтня 2010 (змінено) Вобще, напишу еще раз, что оптимальным является 17-18см высота шага... у меня это уже как закон! Вопрос к ТС - а почему Вы не используете всю длину по левой стене, если смотреть на план как есть, и можно ли глянуть план второго этажа? Все - таки почему вы не хотите забежные ступени... Соглашусь с Мирт что многие просто неправильно их проетируют, вот люди их боятся, но правильные забежные ступени удобны. и экономят вам пространство... В первую очередь - спасибо за участие в дискуссии. Полностью с Вами согласен что высота 17-18 см самая оптимальная. Хотя разные источники пишут по-разному. Некоторые и 20-22 пишут. Всю дину по левой стене не использую с эстетических соображений. Просто некрасиво будет. Входишь в дом - смотришь налево - а там лестница с перилами на всю стену - а далее сразу дверь. И потом для того чтобы подняться на второй этаж - нужно шагать фактически до самой двери в большую комнату - а потом налево поворачивать на ступеньки. В этом же районе и вход в кухню - получается столпотворение... Я не боюсь забежных ступенек. Просто форума начитался - и те кто их использует дают не самые радужные отзывы...хотя с другой стороны: кто как. Выкладываю план второго этажа. Там квадратом (пунктир) со знаком вопроса показана возможная ниша под лестницу. Размеры не указаны - поскольку как и писал - перекрытия первого этажа еще нету - тоесть есть ограничение только по несущим стенам. Змінено 7 жовтня 2010 користувачем Sharkan Посилання на коментар Поділитися на інших сайтах More sharing options...
Рекомендовані повідомлення
Створіть акаунт або увійдіть у нього для коментування
Ви маєте бути користувачем, щоб залишити коментар
Створити акаунт
Зареєструйтеся для отримання акаунта. Це просто!
Зареєструвати акаунтУвійти
Вже зареєстровані? Увійдіть тут.
Увійти зараз