Перейти до публікації
Пошук в
  • Додатково...
Шукати результати, які містять...
Шукати результати в...

Требуется бригада для строительства стропильной системы

Piastr

Рекомендовані повідомлення

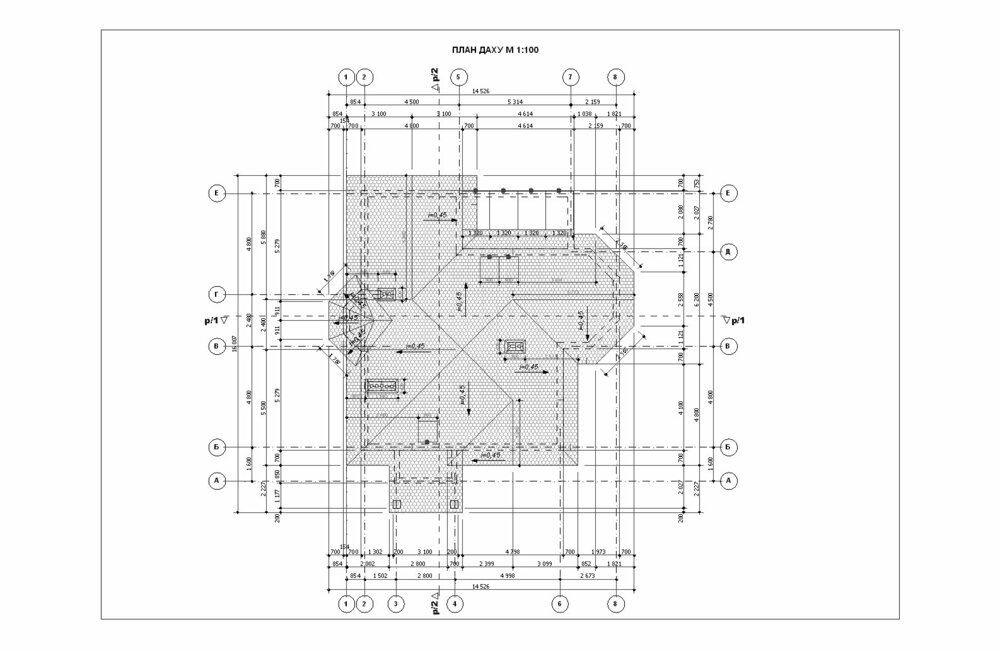
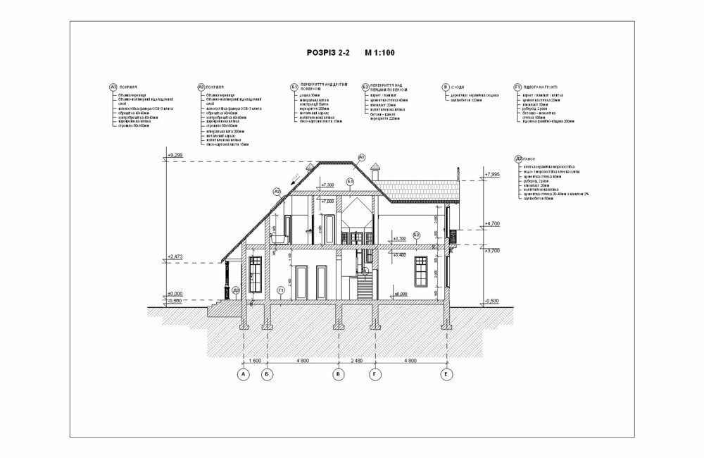
Здравствуйте, господа. Я сейчас подыскиваю бригаду специалистов для строительства стропильной системы (крыши) на своем доме в с. Дмитровка. Ориентировочно, нужно начать работы через 7-10 дней. Крыша шатровая, 9,5*9,5 м, с тремя балконами (фронтоны), общая площадь около 220 м2, покрытие - натуральная черепица. Если есть время и желание, прошу позвонить 0503105298, Сергей Алексеевич, atas07@ukr.net. По факту крыша немного упрощена по сравнеию с проектной. Меня интересует: 1) Установка стропильной полностью включая ендовы и потолочные балкию Предпочтение отдается "классическим" типам соединения - "в зуб", "в нахлест". Пластины только в ненагруженных элементах или на растяжение. 2) гидрозащита, контробрешетка и обрешетка, 3) укладка черепицы, 4 ) обустройство примыканий, окон, без утепления и подшивки, все вместе или по-минимуму, стропилка. Прошу сделать ценовые предложения "с учетом всего, под ключ", лучше на почту. Превышение согласованной суммы "за все" не допускается.

С наилучшими пожеланиями, С.А.

pic-2.jpg.433bc6f16332edf9ef0b0dbd88bb7e01.jpg

2093600300_.thumb.JPG.e10fe50ed78b31807d89193323f06651.JPG

14476896_.thumb.JPG.6f6378be564e8845f1992d02ce4f8994.JPG

18067467_2-2.thumb.JPG.08f98318989aa5ec3ab256cc6f8b03d7.JPG

Посилання на коментар
Поділитися на інших сайтах

Это Алексей 67-449-2-446. Мы с Вами сегодня беседовали. Жду недостающих чертежей.
Посилання на коментар
Поділитися на інших сайтах

Створіть акаунт або увійдіть у нього для коментування

Ви маєте бути користувачем, щоб залишити коментар

Створити акаунт

Зареєструйтеся для отримання акаунта. Це просто!

Зареєструвати акаунт

Увійти

Вже зареєстровані? Увійдіть тут.

Увійти зараз
×
×
  • Створити...