Katya Опубліковано: 9 листопада 2010 Поділитись Опубліковано: 9 листопада 2010 В первом посте! Там две картинки, на первой с фасадами, а на второй чисто планировка. сорри, моя вина. теперь все цвидела. А скажите, какой размер у Вас лестничного проема? Посилання на коментар Поділитися на інших сайтах More sharing options...
Оксенюк Владимир Опубліковано: 9 листопада 2010 Автор Поділитись Опубліковано: 9 листопада 2010 Если я не ошибаюсь то около 2,2 метра. Весь дом подогнан по стандартные плиты перекрытия. Монолит очень дорого получается (я писал выше). Посилання на коментар Поділитися на інших сайтах More sharing options...
Katya Опубліковано: 9 листопада 2010 Поділитись Опубліковано: 9 листопада 2010 Если я не ошибаюсь то около 2,2 метра. Весь дом подогнан по стандартные плиты перекрытия. Монолит очень дорого получается (я писал выше). я имела в виду полный размер. 2.2 на ____ высота_____? Посилання на коментар Поділитися на інших сайтах More sharing options...
Оксенюк Владимир Опубліковано: 9 листопада 2010 Автор Поділитись Опубліковано: 9 листопада 2010 Попробую, плиты перекрытия ПК 24-15.8, т.е. ширина лестничной клетки будет гдето 2,2 (2,4 - 1,2*2), глубина около 3,0 метров и высота потолка планируется около 2,6-2,7 метра. Есть какие-то идеи? Посилання на коментар Поділитися на інших сайтах More sharing options...
Katya Опубліковано: 9 листопада 2010 Поділитись Опубліковано: 9 листопада 2010 Попробую, плиты перекрытия ПК 24-15.8, т.е. ширина лестничной клетки будет гдето 2,2 (2,4 - 1,2*2), глубина около 3,0 метров и высота потолка планируется около 2,6-2,7 метра. Есть какие-то идеи? да нет, вроде все в порядке. однако беспокоит то, что вы неточны в размерах (2.6 или 2.7?) и еще - не низковаты потолки? Посилання на коментар Поділитися на інших сайтах More sharing options...
Оксенюк Владимир Опубліковано: 9 листопада 2010 Автор Поділитись Опубліковано: 9 листопада 2010 да нет, вроде все в порядке. однако беспокоит то, что вы неточны в размерах (2.6 или 2.7?) и еще - не низковаты потолки? Немогу точно сказать, жена занимается проектной частью, вроде говорила что будет гдето в этих пределах (имеется ввиду уже чистая высота после всех отделочных работ). Я думаю достаточно 2,7 м., а Вы как считаете? Посилання на коментар Поділитися на інших сайтах More sharing options...
Katya Опубліковано: 9 листопада 2010 Поділитись Опубліковано: 9 листопада 2010 Немогу точно сказать, жена занимается проектной частью, вроде говорила что будет гдето в этих пределах (имеется ввиду уже чистая высота после всех отделочных работ). Я думаю достаточно 2,7 м., а Вы как считаете? Я? я считаю, что биться головой об люстру неприятно :D у вас дома какие потолки? вопрос исключительно внутреннего комфорта. подозреваю, что меня могут закидать шапками любители экономить, но считаю, что высота 2,7 маловата. я стартовала от 3м на первом этаже, 2.85 на втором, в спальной зоне. 1 Посилання на коментар Поділитися на інших сайтах More sharing options...
Оксенюк Владимир Опубліковано: 9 листопада 2010 Автор Поділитись Опубліковано: 9 листопада 2010 Наверное Вы правы, первый этаж метра 3, а второй можно и пониже, комфортнее будет. Спасиббо, учту это! Посилання на коментар Поділитися на інших сайтах More sharing options...
ATX Опубліковано: 14 листопада 2010 Поділитись Опубліковано: 14 листопада 2010 Проект выглядит професионально, но мне не нравится круглое окно - выпадает из общего вида. 1 Посилання на коментар Поділитися на інших сайтах More sharing options...
Оксенюк Владимир Опубліковано: 15 листопада 2010 Автор Поділитись Опубліковано: 15 листопада 2010 Я когда первый раз увидел эскиз проекта (это был подарок моей жены) я тоже сразу обратил внимание на это окно, но не стал с ней спорить на тот момент это была ее задумка. Сейчас проект активно переделывается, может там и не будет круглого окна, или наоборот оно останется дабы фокусировать Ваше внимание Посилання на коментар Поділитися на інших сайтах More sharing options...
Оксенюк Владимир Опубліковано: 19 листопада 2010 Автор Поділитись Опубліковано: 19 листопада 2010 Круглое окно будет! Но в ванной комнате на втором этаже. Может еще есть у кого какие замечания? Посилання на коментар Поділитися на інших сайтах More sharing options...
silver8848 Опубліковано: 8 лютого 2011 Поділитись Опубліковано: 8 лютого 2011 А можно увидеть Ваши выкладки по перекрытию, какая разница в цене за монолит и плиты перекрытия. Плиты перекрытия посчитать просто (цена плиты, доставка, монтаж), а в монолите много разной работы+ материал, что самое дорогое в монолите? Я сам сейчас перед выбором Посилання на коментар Поділитися на інших сайтах More sharing options...
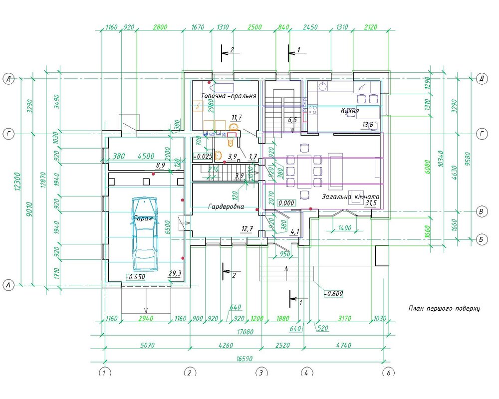
Оксенюк Владимир Опубліковано: 15 березня 2011 Автор Поділитись Опубліковано: 15 березня 2011 Извеняюсь, давно не заходил...невидел Вашего сообщения. Выкладываю доработаную планировку с размерами. Там видно все плиты. По монолиту точно Вам не скажу, мне цену назвали примерно и не в самой дешовой конторе города Полтава. Но со слов моих товарищей монолит от частной бригады будет дешевле процентов на 30. Т.е. для меня все равно дорого получается. Тем более уже все подогнали под плиты и суть проекта не поменялась, я думаю в ближайшее время будет готова визуализация - сразу выложу. Посилання на коментар Поділитися на інших сайтах More sharing options...
Рекомендовані повідомлення
Створіть акаунт або увійдіть у нього для коментування
Ви маєте бути користувачем, щоб залишити коментар
Створити акаунт
Зареєструйтеся для отримання акаунта. Це просто!
Зареєструвати акаунтУвійти
Вже зареєстровані? Увійдіть тут.
Увійти зараз