hlopushka Опубліковано: 18 листопада 2010 Поділитись Опубліковано: 18 листопада 2010 Форум читаю давно, но вот наконец настал мой счастливый час в наличии 1-комнатная квартира в новострое. Семья в количестве 3-х человек - я, муж, ребенок, и собака. Хотелось бы максимально продумать планировку перед тем, как начинать ремонт. К своему стыду не знаю как нарисовать план квартиры (если подскажите в какой програмке это не сложно делать, буду очень благодарна) по этому пока сфоткала то, что у нас есть с размерами, и то что я примерно попыталась изменить. На кухне хочу убрать окно и дверь, утеплить лоджию и вынести туда обеденную зону. Комнату увеличить за счет коридора, и выделить в ней "спальную зону" при помощи кровати-подиума, и детскую зону отделить (та часть, что с окном) или шкафом купе, или стенкой гипсокартонной. Еще муж хочет раздельный сан-узел, я пока не согласна ведем дебаты на этот счет. Ну вот примерно так это выглядит на моем "эскизе" Буду рада любой критике и особенно конструктивным предложениям Посилання на коментар Поділитися на інших сайтах More sharing options...
Genkot Опубліковано: 18 листопада 2010 Поділитись Опубліковано: 18 листопада 2010 если подскажите в какой программке это не сложно делать, буду очень благодарна я например, удобный интерфейс, не требует особых навыков Еще муж хочет раздельный сан-узел раздельный санузел наверно практичнее Посилання на коментар Поділитися на інших сайтах More sharing options...
hlopushka Опубліковано: 18 листопада 2010 Автор Поділитись Опубліковано: 18 листопада 2010 я например, удобный интерфейс, не требует особых навыков так и называется "Я"? Посилання на коментар Поділитися на інших сайтах More sharing options...
aleks_a77 Опубліковано: 18 листопада 2010 Поділитись Опубліковано: 18 листопада 2010 ... и детскую зону отделить (та часть, что с окном) или шкафом купе, или стенкой гипсокартонной... По моему скромному мнению, такая перегородка сильно затенит остальное пространство комнаты. Попробуйте рассмотреть вариант из стеклоблоков. Отлично смотряться в интерьере. Разные ценовые категории. Себе недавно брал китайские безцветные по 16 грн. штука. Удачи! Посилання на коментар Поділитися на інших сайтах More sharing options...
hlopushka Опубліковано: 18 листопада 2010 Автор Поділитись Опубліковано: 18 листопада 2010 По моему скромному мнению, такая перегородка сильно затенит остальное пространство комнаты. Думали об этом, и про стеклоблоки думали, и про гипсокартонную стенку не до потолка, но у нас уже есть шикарный шкаф купе, и если его поставить так, как на моем эскизе, то слишком мало места остается для дверного проема в "детскую" и домашнего кинотеатра (нужно минимум 2,5 метра что-бы колонки и телик нормально вписались) Посилання на коментар Поділитися на інших сайтах More sharing options...
aleks_a77 Опубліковано: 18 листопада 2010 Поділитись Опубліковано: 18 листопада 2010 А! Вон оно что! Что ж Вы сразу не сказали, что весь ремонт для этого шкафа затеваете? Посилання на коментар Поділитися на інших сайтах More sharing options...
avery Опубліковано: 18 листопада 2010 Поділитись Опубліковано: 18 листопада 2010 С точки зрения экономии пространства лучше делать совместный санузел.Но исходя из удобства - раздельный.Особенно,если в семье 3 человека. А Вам обязательно использовать этот шкаф-купе в квартире?Есть ли возможность заменить его на что-то более компактное? Посилання на коментар Поділитися на інших сайтах More sharing options...
avery Опубліковано: 18 листопада 2010 Поділитись Опубліковано: 18 листопада 2010 А для планов подойдет Archicad. Посилання на коментар Поділитися на інших сайтах More sharing options...
hlopushka Опубліковано: 18 листопада 2010 Автор Поділитись Опубліковано: 18 листопада 2010 А Вам обязательно использовать этот шкаф-купе в квартире?Есть ли возможность заменить его на что-то более компактное? ну возможность заменить конечно есть, и не весь ремонт под шкаф подстроен как заметили выше НО . . . . даже в него у нас все вещи не влазят, а если делать что-то более компактное, то будет большая проблема - куда это все складывать. Кроме того у нас комод в том же стиле сделан и книжный стелаж, по этому хотелось бы задействовать по максиму имеющуюся мебель но это так . . . пожелание Может его в коридор, шкаф этот Посилання на коментар Поділитися на інших сайтах More sharing options...
Минутка Опубліковано: 19 листопада 2010 Поділитись Опубліковано: 19 листопада 2010 Форум читаю давно, но вот наконец настал мой счастливый час в наличии 1-комнатная квартира в новострое. Семья в количестве 3-х человек - я, муж, ребенок, и собака. Хотелось бы максимально продумать планировку перед тем, как начинать ремонт. К своему стыду не знаю как нарисовать план квартиры (если подскажите в какой програмке это не сложно делать, буду очень благодарна) по этому пока сфоткала то, что у нас есть с размерами, и то что я примерно попыталась изменить. На кухне хочу убрать окно и дверь, утеплить лоджию и вынести туда обеденную зону. Комнату увеличить за счет коридора, и выделить в ней "спальную зону" при помощи кровати-подиума, и детскую зону отделить (та часть, что с окном) или шкафом купе, или стенкой гипсокартонной. Еще муж хочет раздельный сан-узел, я пока не согласна ведем дебаты на этот счет. Ну вот примерно так это выглядит на моем "эскизе" Буду рада любой критике и особенно конструктивным предложениям Ребята, квартирка маленькая, но все же своя. Ура. Мой совет: раздельный туалет, конечно, хорошо, но если есть место в нем сделать отдельный умывальник хотя бы с гигиеническим душем, вы представьте, каждый раз выходить из туалета с непомытыми руками ( а нас всегда учат мыть руки после туалета, значит в этом что-то есть) браться за все ручки, чтобы зайти в ванную и помыть руки и еще что-то. Лучше в том месте, где планируете отдельный кабинет сделать маленькую гардеробную. Мы сделали сестре 1,40х1,20 и оказалось, что шкафа вообще не нужно. Я вижу у вас душевую кабину (совсем лишняя на таком метраже) или это стиралка. Дальше, кровать на подиуме это хорошо, только предусмотрите подъемную конструкцию, тогда туда можно вместить не сезонную одежду. Шкаф купе как перегородка, но ведь он перекроет вам не только сет, но и воздух. На кухне барная стойка настолько уплотнит ваше пространство, что вы ничему не рады будете. Посилання на коментар Поділитися на інших сайтах More sharing options...
hlopushka Опубліковано: 19 листопада 2010 Автор Поділитись Опубліковано: 19 листопада 2010 раздельный туалет, конечно, хорошо, но если есть место в нем сделать отдельный умывальник хотя бы с гигиеническим душем согласна как бы еще мужа убедить Посилання на коментар Поділитися на інших сайтах More sharing options...
hlopushka Опубліковано: 19 листопада 2010 Автор Поділитись Опубліковано: 19 листопада 2010 Лучше в том месте, где планируете отдельный кабинет сделать маленькую гардеробную. а мы кабинет не планировали нигде. Вы имеете введу коридор на плане? Я вижу у вас душевую кабину (совсем лишняя на таком метраже) или это стиралка.. это стиралка Дальше, кровать на подиуме это хорошо, только предусмотрите подъемную конструкцию, тогда туда можно вместить не сезонную одежду. это обязательно, частично подъемную (дальняя часть) частично ящики глубиной около 1 метра на направляющих. До конца еще не придумали конструктив, но хранилище сделать там хотим обязательно. Шкаф купе как перегородка, но ведь он перекроет вам не только сет, но и воздух. На кухне барная стойка настолько уплотнит ваше пространство, что вы ничему не рады будете. на счет шкафа - согласна но в принципе там 1,5 метра проход останется, может не все так плохо с воздухом и светом будет ? А барная стойка врятли влезет конечно, вы правы Спасибо Посилання на коментар Поділитися на інших сайтах More sharing options...
Минутка Опубліковано: 19 листопада 2010 Поділитись Опубліковано: 19 листопада 2010 а мы кабинет не планировали нигде. Вы имеете введу коридор на плане? это стиралка это обязательно, частично подъемную (дальняя часть) частично ящики глубиной около 1 метра на направляющих. До конца еще не придумали конструктив, но хранилище сделать там хотим обязательно. на счет шкафа - согласна но в принципе там 1,5 метра проход останется, может не все так плохо с воздухом и светом будет ? А барная стойка врятли влезет конечно, вы правы Спасибо Кабинет - это описка, я имела в виду туалет Посилання на коментар Поділитися на інших сайтах More sharing options...
Елена А. Опубліковано: 19 листопада 2010 Поділитись Опубліковано: 19 листопада 2010 (змінено) не очень получилось с мебелью, но идея сделать кровать на подиуме хорошая , по моему подиум должен быть со ступеньками . между кроватью и залом повесить занавесь или даже раздвижную жосткую ширму(как двери на шкафу-купе) Ваш шкаф купе можно поставить в детской под стену с встроенным окном (по верху стены), план делала в ваших размерах , детская длинной 3 метра, можно сделать 3,15. тогда меньше места для гостинной. Под кровать место 3 метра (длинна кровати 2 и + метр на подиум со ступеньками) на 185 см (180 матрас и 5 см для ширмы). не плохо бы сделать приточную вентиляцию (например сразу с кондиционированием)квартира.pdf Змінено 19 листопада 2010 користувачем Елена А. Посилання на коментар Поділитися на інших сайтах More sharing options...
hlopushka Опубліковано: 19 листопада 2010 Автор Поділитись Опубліковано: 19 листопада 2010 Елена, огромное спасибо за внимание к нашей проблемке Ваш шкаф купе можно поставить в детской под стену с встроенным окном (по верху стены), у шкафа высота 2600, это как раз до потолка. Он закроет любое окно не плохо бы сделать приточную вентиляцию (например сразу с кондиционированием) это она на вашей схеме над кроватью? Посилання на коментар Поділитися на інших сайтах More sharing options...
arca Опубліковано: 20 листопада 2010 Поділитись Опубліковано: 20 листопада 2010 А почему не сделать детскую вместо кухни, со входом из гостинной, а кухню сделать в гостинной -студио, и можно вам сделать откидную кровать как вариант экономии места. Посилання на коментар Поділитися на інших сайтах More sharing options...
Елена А. Опубліковано: 20 листопада 2010 Поділитись Опубліковано: 20 листопада 2010 Елена, огромное спасибо за внимание к нашей проблемке у шкафа высота 2600, это как раз до потолка. Он закроет любое окно это она на вашей схеме над кроватью? нет это книжная полка (в моем "гениальном" исполнении;)), а вентиляция это такие маленькие воздуховоды в потолке, А по поводу шкафа подумайте, может лучше его двери использовать для того чтобы закрыть кровать... Посилання на коментар Поділитися на інших сайтах More sharing options...
Минутка Опубліковано: 21 листопада 2010 Поділитись Опубліковано: 21 листопада 2010 (змінено) А почему не сделать детскую вместо кухни, со входом из гостинной, а кухню сделать в гостинной -студио, и можно вам сделать откидную кровать как вариант экономии места. По Закону не разрешается кухню делать в другом месте, не пройдет в БТИ, да и канализация и вода не простое решение. А посмотрите на сайте квартирный вопрос, наши переделки, стр 4 , №174 спальня под девизом "круиз на двоих", может возникнут какие-нибудь идеи. www.peredelka.tv/ Змінено 21 листопада 2010 користувачем Минутка Посилання на коментар Поділитися на інших сайтах More sharing options...
Минутка Опубліковано: 21 листопада 2010 Поділитись Опубліковано: 21 листопада 2010 нет это книжная полка (в моем "гениальном" исполнении;)), а вентиляция это такие маленькие воздуховоды в потолке, А по поводу шкафа подумайте, может лучше его двери использовать для того чтобы закрыть кровать... Я бы не стала вешать над головой тяжелые ( книги очень тяжелые ) полки Посилання на коментар Поділитися на інших сайтах More sharing options...
hlopushka Опубліковано: 22 листопада 2010 Автор Поділитись Опубліковано: 22 листопада 2010 Большое спасибо всем за идеи, вчера с мужем пол дня обсуждали, чертили, ездили на квартиру перемеряли некоторые размеры, которых нет на плане. Он обещал "воплотить в электронном виде" то, что у нас вышло. И я вам покажу обязательно. По Закону не разрешается кухню делать в другом месте, не пройдет в БТИ, да и канализация и вода не простое решение. www.peredelka.tv/ Да, я такое тоже слышала, вот тока там загвоздка в газовых трубах кажись, а у нас электро-плита. Так что может можно и такой вариант рассмотреть - в кухне спальня, на лоджии рабочее место небольшое, а в комнате кухня-гостинная Еще про откидную кровать хотела спросить, я слышала что максимальная ширина, которой они бывают - 1,60 м. Это действительно так? Посилання на коментар Поділитися на інших сайтах More sharing options...
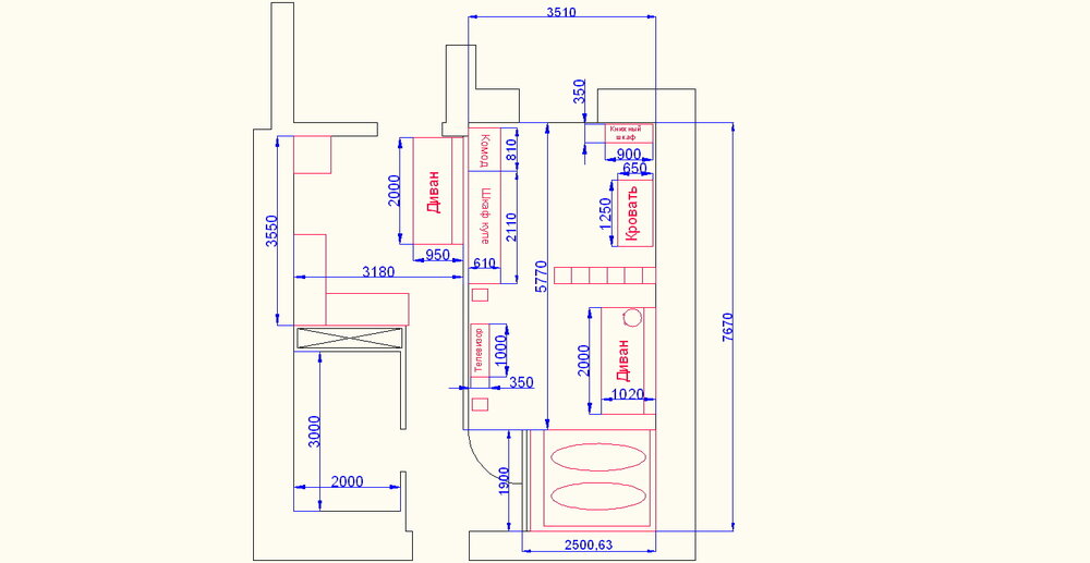
hlopushka Опубліковано: 22 листопада 2010 Автор Поділитись Опубліковано: 22 листопада 2010 Ну вот наш рабочий вариант с имеющейся в наличии (новой и красивой ;) ) мебелью и уточненными размерами. Посилання на коментар Поділитися на інших сайтах More sharing options...
Минутка Опубліковано: 22 листопада 2010 Поділитись Опубліковано: 22 листопада 2010 Ну вот наш рабочий вариант с имеющейся в наличии (новой и красивой ;) ) мебелью и уточненными размерами. [ATTACH]79391[/ATTACH] Я не знаю возраст ребенка, но даже в 5 лет ему уже нужно рабочее место, может книжный шкаф обустроить в перегородке, а на том месте отличное место для рабочего стола. А зачм на кухне диван? Посилання на коментар Поділитися на інших сайтах More sharing options...
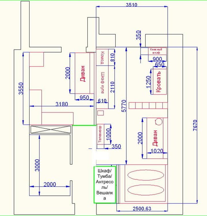
Nikalya Опубліковано: 22 листопада 2010 Поділитись Опубліковано: 22 листопада 2010 Ну вот наш рабочий вариант с имеющейся в наличии (новой и красивой ;) ) мебелью и уточненными размерами. [ATTACH]79391[/ATTACH] чуть дополню ваш вариант своим взглядом и подручными средствами малевания) переиначил вход в комнату. теперь в нишу в прихожей становится вешалка/шкаф/тумба/антресоль (кому что нравится), у кухни появилась дверь (считаю её обязательной, потому что вытяжка не спасает от запахов). вход в комнату пока остался без двери дабы визуально увеличить пространство Посилання на коментар Поділитися на інших сайтах More sharing options...
hlopushka Опубліковано: 22 листопада 2010 Автор Поділитись Опубліковано: 22 листопада 2010 Я не знаю возраст ребенка, но даже в 5 лет ему уже нужно рабочее место, может книжный шкаф обустроить в перегородке, а на том месте отличное место для рабочего стола. А зачм на кухне диван? Ребенку 7 месяцев, но стол все равно будет нужен, я согласна. Книжный стелаж уже есть, позможно с него начнем перегородку, а дальше в том же стиле из того-же материала дозакажем сквозную. Диван на кухне для бабушек и других неожиданых гостей 8-) Посилання на коментар Поділитися на інших сайтах More sharing options...
hlopushka Опубліковано: 22 листопада 2010 Автор Поділитись Опубліковано: 22 листопада 2010 чуть дополню ваш вариант своим взглядом и подручными средствами малевания) переиначил вход в комнату. теперь в нишу в прихожей становится вешалка/шкаф/тумба/антресоль (кому что нравится), у кухни появилась дверь (считаю её обязательной, потому что вытяжка не спасает от запахов). вход в комнату пока остался без двери дабы визуально увеличить пространство В кухне дверь планировалась, просто ее "художник" забыл отметить на плане в комнате хочу дверь тоже, по этому вход не перенесешь в другое место, да и сложно будет что-то габаритное заносить в комнату, если вход переместить на левую стенку. В прихожей небольшая вешалко-тумба думаю влезет. Но все равно спасибо Вам за взгляд со стороны Посилання на коментар Поділитися на інших сайтах More sharing options...
Рекомендовані повідомлення
Створіть акаунт або увійдіть у нього для коментування
Ви маєте бути користувачем, щоб залишити коментар
Створити акаунт
Зареєструйтеся для отримання акаунта. Це просто!
Зареєструвати акаунтУвійти
Вже зареєстровані? Увійдіть тут.
Увійти зараз