TATARIN Опубліковано: 24 березня 2008 Поділитись Опубліковано: 24 березня 2008 Уважаемые форумчане покритикуйте проэкт моИво будующего домика...заранее сенкс) Посилання на коментар Поділитися на інших сайтах More sharing options...
levoved Опубліковано: 24 березня 2008 Поділитись Опубліковано: 24 березня 2008 Это Вы в гарячечном бреду рисовали? Порадовали двери на среднем рисунке. Посилання на коментар Поділитися на інших сайтах More sharing options...
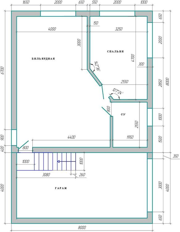
nazarij Опубліковано: 24 березня 2008 Поділитись Опубліковано: 24 березня 2008 Мне кажется кухня узковата, тем более если учесть то, что лестница отсекает гостинную от кухни... И еще по поводу лесницы вообще ничего не понятно. А прихожая на втором этаже??? Предполагаю что лестница вынесена на улицу Посилання на коментар Поділитися на інших сайтах More sharing options...
Алик Опубліковано: 25 березня 2008 Поділитись Опубліковано: 25 березня 2008 1. вы что пул будете ставить? нормальный стол для русского бильярда не станет. у вас ширина бильярдной 4м свободного места от бортов должно быть минимум 1.8м. 2. спать в спальне когда рядом играют - нереально 3 все запутано Посилання на коментар Поділитися на інших сайтах More sharing options...
TATARIN Опубліковано: 26 березня 2008 Автор Поділитись Опубліковано: 26 березня 2008 Да, буду пуловский стол ставить, а на счет спальни возле бильярдной - так она планируется как гостевая...пока не наиграются - спать не лягут... Посилання на коментар Поділитися на інших сайтах More sharing options...
TATARIN Опубліковано: 26 березня 2008 Автор Поділитись Опубліковано: 26 березня 2008 Нууу почему в горячечном........)))....я кстати забыл сказать, что к дому, с той стороны где двери, будет примыкать веранда....ее пока на риснках нет......в процессе Посилання на коментар Поділитися на інших сайтах More sharing options...
Рекомендовані повідомлення
Створіть акаунт або увійдіть у нього для коментування
Ви маєте бути користувачем, щоб залишити коментар
Створити акаунт
Зареєструйтеся для отримання акаунта. Це просто!
Зареєструвати акаунтУвійти
Вже зареєстровані? Увійдіть тут.
Увійти зараз