loeron Опубліковано: 30 січня 2011 Поділитись Опубліковано: 30 січня 2011 Доброго времени всем форумчанам. Есть мечта, построить свой дом. В данный момент появилась призрачная надежда на то, что она может осуществиться и даже в ближайшем будущем. Собственно нужна оценка финансовой стороны. Поэтому ищу толкового архитектора который бы смог сделать мне, за вменяемую(разумную) сумму проект и рассчитал бы материалы. Я приблизительно накидал в Arcon то что я хотел бы построить. И выкладываю все на суд общественности. Немного вводных по участку, в прицепе ровный на месте строительства, но довольно высоки грунтовые воды по словам владельцев - 5 метров от уровня земли. На участке была произведена насыпка земли 20 лет назад, 1.5 метра. Все это будет строится в Харьковской области. Все коммуникации на участке есть. Участок сориентированный четко по сторонам света, относительно проекта север со стороны гаража. Предполагаемый основной материал стен - шлакоблок. Снаружи утепление, штукатурка, покраска. Высота потолков: цоколь - 2.6м Первый этаж - 3 м Второй этаж - 2.80м Чердачный ? как получится Прилагаемые планы были набросаны мною в программе Arcon 2005, для тех, у кого есть эта программа приложен исходник в zip файле. Не судите строго, я тока учусь Отвечу на наиболее часто задаваемые вопросы про мой проект. 1. Зачем такой большой. Ну как бы дом рассчитан на семью из 4х человек, родители и 2е детей. Поэтому имеет 3 спальни на втором этаже, 1 для родителей с балконом и по одной на каждого ребенка. Первый этаж имет исключительно общее назначение. 2. Зачем цокольный этаж. Ну во первых для размещения сауны . На самом деле сауна и спортзал не самые важные элементы и тем более не самые необходимые. Цокольный этаж нужен, в первую очередь, для нагрева основных этажей и для размещения всех элементов отопления, также я планирую, рано или поздно обеспечить полную автономность дома, следовательно мне нужно место для котельной и для силовой, где я размещу генератор и силовые батареи. 3. Почему полный второй этаж, а не мансардный. Люблю тишину, следовательно барабанная дробь дождя по крыше над головой будет меня несколько раздражать . Опятьже с целью энерго независимости и т.д. планирую разместить на крыше солнечные батареи, которые нужно будет как-то обслуживать, а следовательно нужен будет удобный выход к ним, что легче реализуется с чердака, а не с мансарды. Во вторых, планирую разместить на чердаке дополнительную емкость для воды, для обеспечения напора в душе как то так.SweetHome1.zip Посилання на коментар Поділитися на інших сайтах More sharing options...
Malishka Опубліковано: 30 січня 2011 Поділитись Опубліковано: 30 січня 2011 Первое что бросается в глаза очень маленькая лестница - длина пролета 2,07 м.???? Длина лестничного пролета должна в 2 раза быть больше высоты этажа. То есть в Вашем случае длина одного пролета должна быть 3 метра. Второе в топочной нет окон, по нормам должно быть окно размерами 30% от площади помещения. Посилання на коментар Поділитися на інших сайтах More sharing options...
Malishka Опубліковано: 30 січня 2011 Поділитись Опубліковано: 30 січня 2011 И еще толщина стены 36 см, из чего Вы планируете строить? Плюс под несущей стеной в доме, тоже должен быть фундамент. Посилання на коментар Поділитися на інших сайтах More sharing options...
loeron Опубліковано: 30 січня 2011 Автор Поділитись Опубліковано: 30 січня 2011 Первое что бросается в глаза очень маленькая лестница - длина пролета 2,07 м.???? Длина лестничного пролета должна в 2 раза быть больше высоты этажа. То есть в Вашем случае длина одного пролета должна быть 3 метра. Второе в топочной нет окон, по нормам должно быть окно размерами 30% от площади помещения. ну как бы лесница и получается где-то такой длины, просто пролет не прямой а буквой П. Хотя возможно вы и правы, обдумаю этот вопрос. И еще толщина стены 36 см, из чего Вы планируете строить? Плюс под несущей стеной в доме, тоже должен быть фундамент. Понятия не имею Это значение по умолчанию для наружных стен в программе Arcon. Это все набросок. Вот как-раз и ищу архитектора, который и нарисует все это уже с учетом материала, всех норм и правил. Про фундамент под несущими стенами я знаю просто не рисовал фундаментную плиту. Посилання на коментар Поділитися на інших сайтах More sharing options...
Malishka Опубліковано: 30 січня 2011 Поділитись Опубліковано: 30 січня 2011 ну как бы лесница и получается где-то такой длины, просто пролет не прямой а буквой П. Хотя возможно вы и правы, обдумаю этот вопрос. Имеется в виду если буквой П то каждый пролет по 3 м. (в общей сложности 6= высота этажа 3м*2), а у вас они по 2,07 - очень высокие ступеньки будут. Понятия не имею Это значение по умолчанию для наружных стен в программе Arcon. Это все набросок. Вот как-раз и ищу архитектора, который и нарисует все это уже с учетом материала, всех норм и правил. Этот вопрос к тому что если у вас в реале стены получатся по 50 см или больше у вас внутренняя площадь уменьшится, а если хотите сохранить внутреннюю площадь - придется увеличивать габариты дома.8-) А от этого зависят и финансы! Посилання на коментар Поділитися на інших сайтах More sharing options...
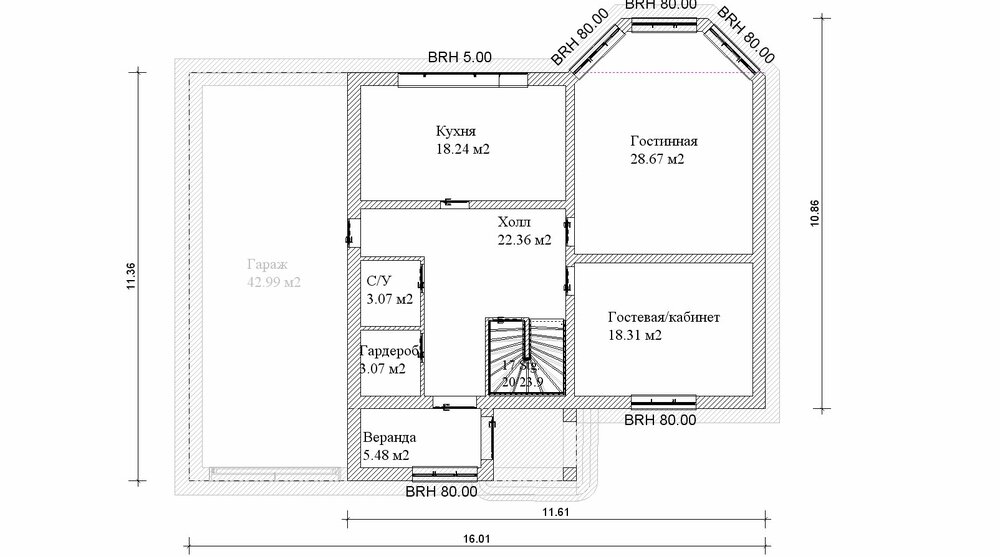
loeron Опубліковано: 31 січня 2011 Автор Поділитись Опубліковано: 31 січня 2011 Жена случайно наткнулась на готовый проект, который нас вполне устраивает и ощутимо меньше по площади, что тоже есть хорошо. Осталось внести косметические изменения в планировку и поменять материал. вот он: www.cottage.com.ua/project.php?id=908 возник по ходу вопрос, а можно ли сделать цокольный этаж не под всей площадью дома? В данном проекте сделать допустим только меньшую часть, которая 38 с копейками метров. Насколько это будет дешевле? Будет ли это дешевле в принципе? Не повлияет ли такое решение на прочность дома? Посилання на коментар Поділитися на інших сайтах More sharing options...
Max77 Опубліковано: 1 лютого 2011 Поділитись Опубліковано: 1 лютого 2011 Жена случайно наткнулась на готовый проект, который нас вполне устраивает и ощутимо меньше по площади, что тоже есть хорошо. Осталось внести косметические изменения в планировку и поменять материал. вот он: www.cottage.com.ua/project.php?id=908 А что, потребность в гараже уже отпала? Посилання на коментар Поділитися на інших сайтах More sharing options...
loeron Опубліковано: 1 лютого 2011 Автор Поділитись Опубліковано: 1 лютого 2011 А что, потребность в гараже уже отпала? Да нет конечно просто этот проект без гаража. И его только в качестве базового использовать буду при разговоре с архитектором, то бишь наглядная демонстрация того что надо + устные комментарии. Посилання на коментар Поділитися на інших сайтах More sharing options...
VOVANM Опубліковано: 3 лютого 2011 Поділитись Опубліковано: 3 лютого 2011 возник по ходу вопрос, а можно ли сделать цокольный этаж не под всей площадью дома? В данном проекте сделать допустим только меньшую часть, которая 38 с копейками метров. Насколько это будет дешевле? Будет ли это дешевле в принципе? Не повлияет ли такое решение на прочность дома? а вы уверены что он Вам нужен, это ж закопаные деньги в землю, уже много раз обсуждалось на форуме, прочитайте темку про отдельный погреб на участке www.stroimdom.com.ua/forum/showthread.php?t=47770 Посилання на коментар Поділитися на інших сайтах More sharing options...
loeron Опубліковано: 3 лютого 2011 Автор Поділитись Опубліковано: 3 лютого 2011 а вы уверены что он Вам нужен, это ж закопаные деньги в землю, уже много раз обсуждалось на форуме, прочитайте темку про отдельный погреб на участке www.stroimdom.com.ua/forum/showthread.php?t=47770 Да вот уже начитался, даже съездил посмотрел в живую. Даже уже морально готов отказаться и нарисовал пару проектиков без цоколя, но окончательный вердикт поставит геология, ибо на участке который я хочу купить полтора метра насыпной земли, если она не слежалась то цоколь просто придется строить Посилання на коментар Поділитися на інших сайтах More sharing options...
Рекомендовані повідомлення
Створіть акаунт або увійдіть у нього для коментування
Ви маєте бути користувачем, щоб залишити коментар
Створити акаунт
Зареєструйтеся для отримання акаунта. Це просто!
Зареєструвати акаунтУвійти
Вже зареєстровані? Увійдіть тут.
Увійти зараз