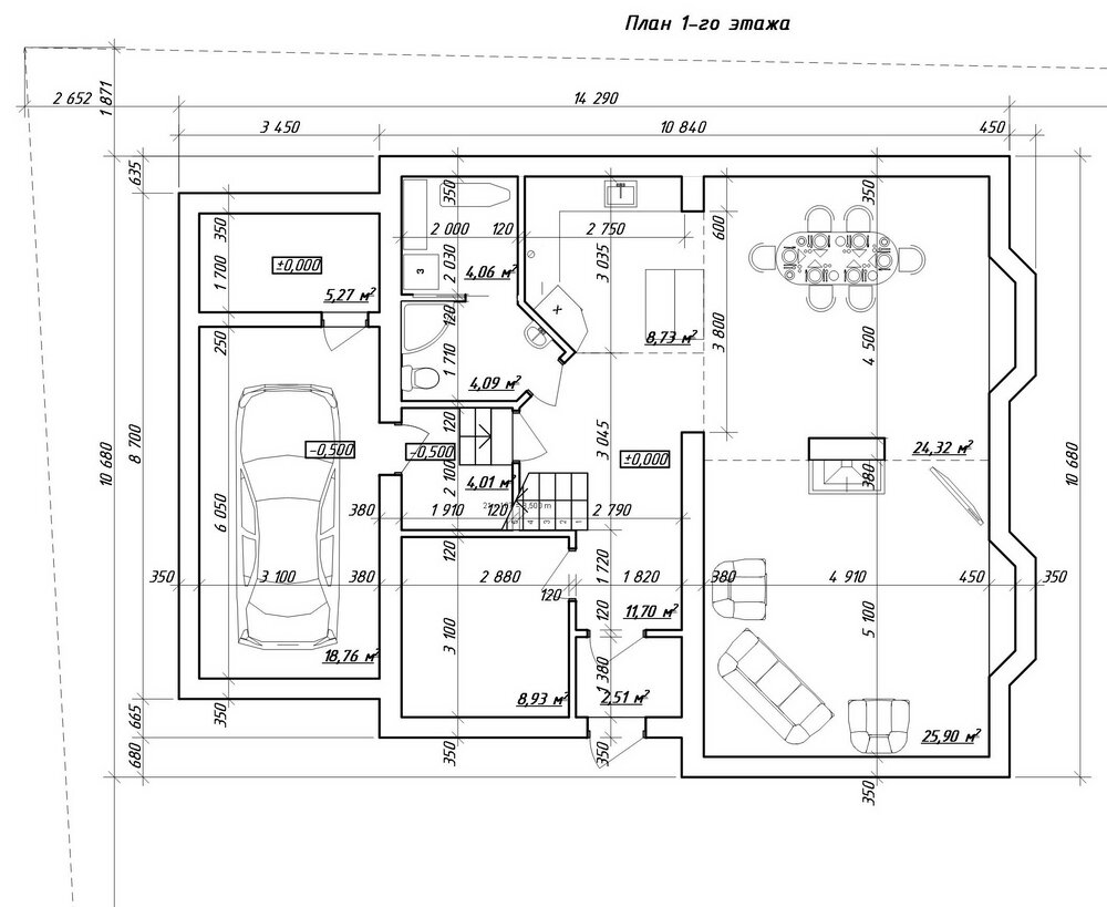
Sterch Опубліковано: 14 лютого 2011 Поділитись Опубліковано: 14 лютого 2011 Планируем строится на небольшом участке (дачный кооператив), с двух сторон соседи а с других двух дорога. Рядом сосед строит дом в полметра от нашего забора. Соответственно попытались дом расположить так, что бы минимально окон на соседей (на того который строится вообще гараж выходит). Дом 2 этажа (второй мансардный), и без цоколя. Вот что получилось. Надеюсь на аргументированную критику. Посилання на коментар Поділитися на інших сайтах More sharing options...
Sterch Опубліковано: 14 лютого 2011 Автор Поділитись Опубліковано: 14 лютого 2011 Ап тему.. Что не у кого нет никаких сображений?(( Посилання на коментар Поділитися на інших сайтах More sharing options...
Гість dyoma1970 Опубліковано: 15 лютого 2011 Поділитись Опубліковано: 15 лютого 2011 По моему для лета или южных стран неплохо, а вот зимой будет накладненько. Протопить такую студию с тремя наружными стенами, даже с камином в -20 непрсто Посилання на коментар Поділитися на інших сайтах More sharing options...
Sterch Опубліковано: 15 лютого 2011 Автор Поділитись Опубліковано: 15 лютого 2011 Планируем строится на небольшом участке (дачный кооператив), с двух сторон соседи а с других двух дорога. Рядом сосед строит дом в полметра от нашего забора. Соответственно попытались дом расположить так, что бы минимально окон на соседей (на того который строится вообще гараж выходит). Дом 2 этажа (второй мансардный), и без цоколя. Вот что получилось. Надеюсь на аргументированную критику. По моему для лета или южных стран неплохо, а вот зимой будет накладненько. Протопить такую студию с тремя наружными стенами, даже с камином в -20 непрсто Такой мороз у нас слава богу максимум месяц в году так что надеюсь затраты будут по итогам года не сильно увеличенны. Вопрос отопления тоже конечно смущает, хочу еще сделать теплый пол, но с опен спейсрм как по мне намного красивее, особенно после жизни в клетушках квартирах))) Посилання на коментар Поділитися на інших сайтах More sharing options...
glirus Опубліковано: 17 лютого 2011 Поділитись Опубліковано: 17 лютого 2011 Проект выглядит совсем неплохо как по мне... один вопрос где у вас сад будет(я понимаю с противоположной стороны от входа)? я б добавил выход в сад и по вашему проекту предположытельно у вас и зал и столовая смотрят на соседей а не в сад Посилання на коментар Поділитися на інших сайтах More sharing options...
Grimm777 Опубліковано: 17 лютого 2011 Поділитись Опубліковано: 17 лютого 2011 Если соседские постройки слева-и-справа расположены очень близко, то лучше использовать двухфасадную планировку - стены будущего дома, идущие вдоль участка, проектируются сплошными и без окон (или только небольшие окна техн. помещений), а все окна выносятся по-максимуму на передний и задний фасады здания. Но !!! При такой планировке обязательно необходимо учитывать ориентацию по сторонам света. В целом проект понравился. Удачи. 1 Посилання на коментар Поділитися на інших сайтах More sharing options...
Zhan_ala Опубліковано: 18 лютого 2011 Поділитись Опубліковано: 18 лютого 2011 Добрый день, уважаемые не стала заводить новую тему, тут их очень много. Прошу покритиковать мою планировку 2-х этажного домика. В квадратуре комнат могла быть не точной. участок в длину 30мх20м, габариты дома 9х10, крыша-двускатная, фундамент-ленточный. только как пример фасадной отделки прошу посмотреть это www.homeplans.ru/projects/index.php?info=L-3028-0&par=atticwind. при одобрение проекта прошу подсказать тип фундамента (ссылка на изображение устарела) (1,2,3 и 4 типы), если честно даже не могу себе это представить. спасибо. Посилання на коментар Поділитися на інших сайтах More sharing options...
temka Опубліковано: 18 лютого 2011 Поділитись Опубліковано: 18 лютого 2011 ..Прошу покритиковать мою планировку 2-х этажного домика... на первый взгляд, на 4 спальни - слишком мало санузлов, маловата кухня, нету постирочной, слишком слабая инсоляция холлов 1-го и 2-го этажей, темная лестница 1 Посилання на коментар Поділитися на інших сайтах More sharing options...
glirus Опубліковано: 18 лютого 2011 Поділитись Опубліковано: 18 лютого 2011 Добрый день, уважаемые не стала заводить новую тему, тут их очень много. Прошу покритиковать мою планировку 2-х этажного домика. В квадратуре комнат могла быть не точной. участок в длину 30мх20м, габариты дома 9х10, крыша-двускатная, фундамент-ленточный. только как пример фасадной отделки прошу посмотреть это www.homeplans.ru/projects/index.php?info=L-3028-0&par=atticwind. при одобрение проекта прошу подсказать тип фундамента (ссылка на изображение устарела) (1,2,3 и 4 типы), если честно даже не могу себе это представить. спасибо. Вы просчитывали лестницу? Не уверен что она будет комфортной. Кухня по моему слишком маленькая для большого дома Посилання на коментар Поділитися на інших сайтах More sharing options...
Zhan_ala Опубліковано: 18 лютого 2011 Поділитись Опубліковано: 18 лютого 2011 Вы просчитывали лестницу? Не уверен что она будет комфортной. Кухня по моему слишком маленькая для большого дома не просчитывала, в каком плане не комфортной, слишком большая или что то другое? вот, чуть переделала планировку и можно совет по фундаменту, какой заливать? спасибо. Посилання на коментар Поділитися на інших сайтах More sharing options...
glirus Опубліковано: 18 лютого 2011 Поділитись Опубліковано: 18 лютого 2011 не просчитывала, в каком плане не комфортной, слишком большая или что то другое? вот, чуть переделала планировку и можно совет по фундаменту, какой заливать? спасибо. Как я понимаю лестница у вас не поворотная из этого получается на верху вы упираетесь в стенку. Плюс нужно посчитать какой размер ступеньки из общей высоты этажа и длинны лестницы - думаю ступеньки будут слишком высокие(комфортный размер ступеньки 260-300мм длинна и высота 150-180мм) 1 Посилання на коментар Поділитися на інших сайтах More sharing options...
Sterch Опубліковано: 20 лютого 2011 Автор Поділитись Опубліковано: 20 лютого 2011 Если соседские постройки слева-и-справа расположены очень близко, то лучше использовать двухфасадную планировку - стены будущего дома, идущие вдоль участка, проектируются сплошными и без окон (или только небольшие окна техн. помещений), а все окна выносятся по-максимуму на передний и задний фасады здания. Но !!! При такой планировке обязательно необходимо учитывать ориентацию по сторонам света. В целом проект понравился. Удачи. Спсибо, соседи слева и сверху, поэтому проект так и сделали что бы максимально укрыться от них, дом посажен в глубену участка и справа, где большие окна, получается участок. Сначала думал делать выход в сад, но решил отказаться от этой идеи из за безопасности....как то один вход в дом вроде безопаснее Посилання на коментар Поділитися на інших сайтах More sharing options...
Татьяна5 Опубліковано: 20 лютого 2011 Поділитись Опубліковано: 20 лютого 2011 а назначение домика - как дача? или постоянное проживание? Посилання на коментар Поділитися на інших сайтах More sharing options...
Sterch Опубліковано: 21 лютого 2011 Автор Поділитись Опубліковано: 21 лютого 2011 Если соседские постройки слева-и-справа расположены очень близко, то лучше использовать двухфасадную планировку - стены будущего дома, идущие вдоль участка, проектируются сплошными и без окон (или только небольшие окна техн. помещений), а все окна выносятся по-максимуму на передний и задний фасады здания. Но !!! При такой планировке обязательно необходимо учитывать ориентацию по сторонам света. В целом проект понравился. Удачи. а назначение домика - как дача? или постоянное проживание? Для постоянного проживания, уж очень достали ссоседи сверху с постоянными вечеринка да и маленький ребенок - пусть будет больше на воздухе Посилання на коментар Поділитися на інших сайтах More sharing options...
руки_из_попы Опубліковано: 23 лютого 2011 Поділитись Опубліковано: 23 лютого 2011 по мне все продумано... я бы только сделал камин сквозным... чтобы сидя в кухне можно было любоваться и от туда 1 Посилання на коментар Поділитися на інших сайтах More sharing options...
Рекомендовані повідомлення
Створіть акаунт або увійдіть у нього для коментування
Ви маєте бути користувачем, щоб залишити коментар
Створити акаунт
Зареєструйтеся для отримання акаунта. Це просто!
Зареєструвати акаунтУвійти
Вже зареєстровані? Увійдіть тут.
Увійти зараз