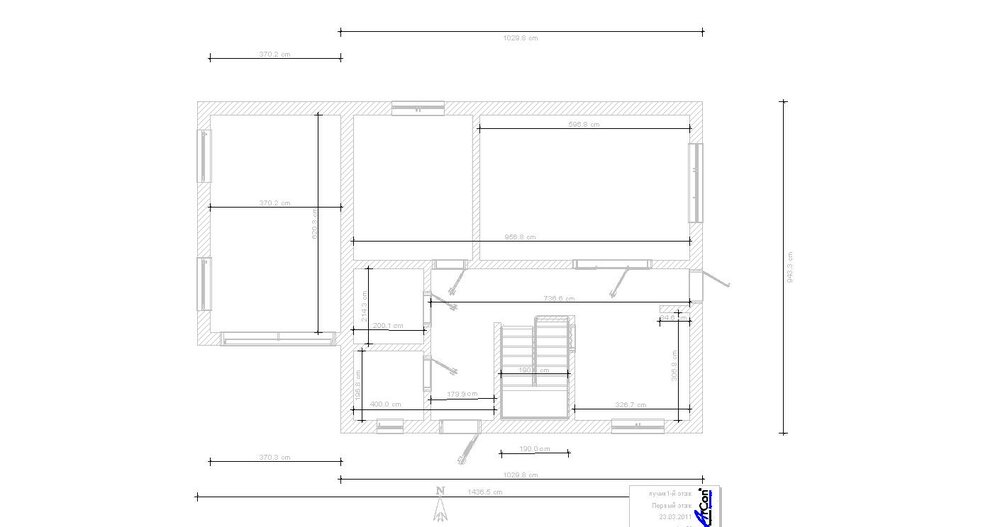
Lawyer Опубліковано: 23 березня 2011 Поділитись Опубліковано: 23 березня 2011 Доброго дня! жду предложения с полной сметой на изготовление ленточного фундамента (подземная часть 1 метр, над землей 30-40 см, ширина 40 см. с горизонтальной гидроизоляцией. эскиз первого этажа прилагается. предложения прошу отправлять в личку или на почту: yuramail@inet.ua. Посилання на коментар Поділитися на інших сайтах More sharing options...
DimonO Опубліковано: 23 березня 2011 Поділитись Опубліковано: 23 березня 2011 Ответ в личке Посилання на коментар Поділитися на інших сайтах More sharing options...
mahno 31 Опубліковано: 23 березня 2011 Поділитись Опубліковано: 23 березня 2011 Ответил в личку. Посилання на коментар Поділитися на інших сайтах More sharing options...
Рекомендовані повідомлення
Створіть акаунт або увійдіть у нього для коментування
Ви маєте бути користувачем, щоб залишити коментар
Створити акаунт
Зареєструйтеся для отримання акаунта. Це просто!
Зареєструвати акаунтУвійти
Вже зареєстровані? Увійдіть тут.
Увійти зараз