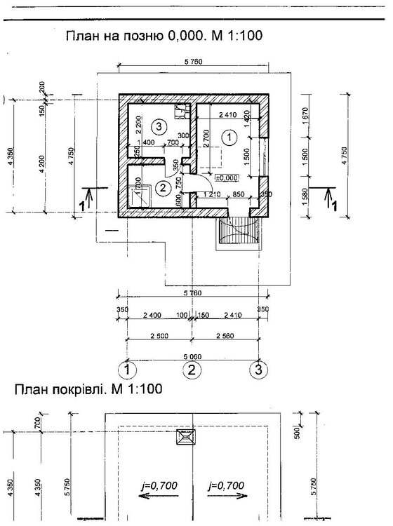
bigl Опубліковано: 6 квітня 2011 Поділитись Опубліковано: 6 квітня 2011 Залит фундамент шириной 350 (4350х5300 по осям) - парная, моечная, комната отдыха. Нужны кирп. коробка, крыша , отмостка, заливка черн. пола, ближе к осени - сайдинг с утеплителем и отделка под ключ. Броварской р-н. Посилання на коментар Поділитися на інших сайтах More sharing options...
smail Опубліковано: 6 квітня 2011 Поділитись Опубліковано: 6 квітня 2011 (змінено) Готов пообщатся по по вашему объекту. Антон00000000000000 Змінено 7 квітня 2011 користувачем Оз тендер Посилання на коментар Поділитися на інших сайтах More sharing options...
mahno 31 Опубліковано: 6 квітня 2011 Поділитись Опубліковано: 6 квітня 2011 Ответил в личку. Посилання на коментар Поділитися на інших сайтах More sharing options...
Dmitry Bud Опубліковано: 7 квітня 2011 Поділитись Опубліковано: 7 квітня 2011 Дайте высоту домика. Посилання на коментар Поділитися на інших сайтах More sharing options...
РОМАН ПЕРЕДЕРИЙ Опубліковано: 8 квітня 2011 Поділитись Опубліковано: 8 квітня 2011 (змінено) Залит фундамент шириной 350 (4350х5300 по осям) - парная, моечная, комната отдыха. Нужны кирп. коробка, крыша , отмостка, заливка черн. пола, ближе к осени - сайдинг с утеплителем и отделка под ключ. Броварской р-н. Печь лучше поставить между парной и моечной, топкой в комнату отдыха Змінено 8 квітня 2011 користувачем Оз Посилання на коментар Поділитися на інших сайтах More sharing options...
bigl Опубліковано: 8 квітня 2011 Автор Поділитись Опубліковано: 8 квітня 2011 Печь лучше поставить между парной и моечной, топкой в комнату отдыха Согласен. Так и задумано. А какую печь мне лучше? С ней я не определился, думаю, купить готовую, т.к. хорошие печники в дефиците. А какова цена каменки в Вашем исполнении? Здравствуйте! Спасибо ответившим, в т.ч. и в личку. Стена в один кирпич высотой 2500 с последующей (осенью) обшивкой сайдингом с утеплителем. Перекрытие в проекте не указано, здесь мне требуется совет - плиты перекрытия или балки. Крыша двускатная простая ондулин. Печь скорее всего готовая заводская. В проекте окно в комнате отдыха, вероятно, будет исполнено в виде 2 узких бойниц из стеклоблоков (2х4 шт) и одно такое же в душевой. В душевой унитаз, раковина, душевая стойка, подводка для стиральной машины. Вентиляция в проекте не указана, но должна быть Эффективной))) с выводом на крышу вместе с трубой. 2 2-х этажных полка в парилке Г-образных. Ну еще ниша в перегородке для вывода топки в к. отдыха. Вн. отделка - кафель. Вот и все премудрости. С уважением bigL Посилання на коментар Поділитися на інших сайтах More sharing options...
bigl Опубліковано: 10 квітня 2011 Автор Поділитись Опубліковано: 10 квітня 2011 Предложение остается в силе. Также нужен совет. 1) Какое перекрытие для бани лучше - бетонные плиты перекрытия (выше противопожарная безопасность, долговечность) или дерево (ниже теплопроводность)? 2) искать хорошего печника или купить готовую железяку-каменку? Заранее благодарен. Посилання на коментар Поділитися на інших сайтах More sharing options...
РОМАН ПЕРЕДЕРИЙ Опубліковано: 11 квітня 2011 Поділитись Опубліковано: 11 квітня 2011 Предложение остается в силе. Также нужен совет. 1) Какое перекрытие для бани лучше - бетонные плиты перекрытия (выше противопожарная безопасность, долговечность) или дерево (ниже теплопроводность)? 2) искать хорошего печника или купить готовую железяку-каменку? Заранее благодарен. Если настоящую русскую парную то вам сюда stove.ru/index.php?lng=0&rs=11 и сюда forum.stovemaster.ru/viewtopic.php?t=1292 по предложению отпишу в личку. Посилання на коментар Поділитися на інших сайтах More sharing options...
Рекомендовані повідомлення
Створіть акаунт або увійдіть у нього для коментування
Ви маєте бути користувачем, щоб залишити коментар
Створити акаунт
Зареєструйтеся для отримання акаунта. Це просто!
Зареєструвати акаунтУвійти
Вже зареєстровані? Увійдіть тут.
Увійти зараз