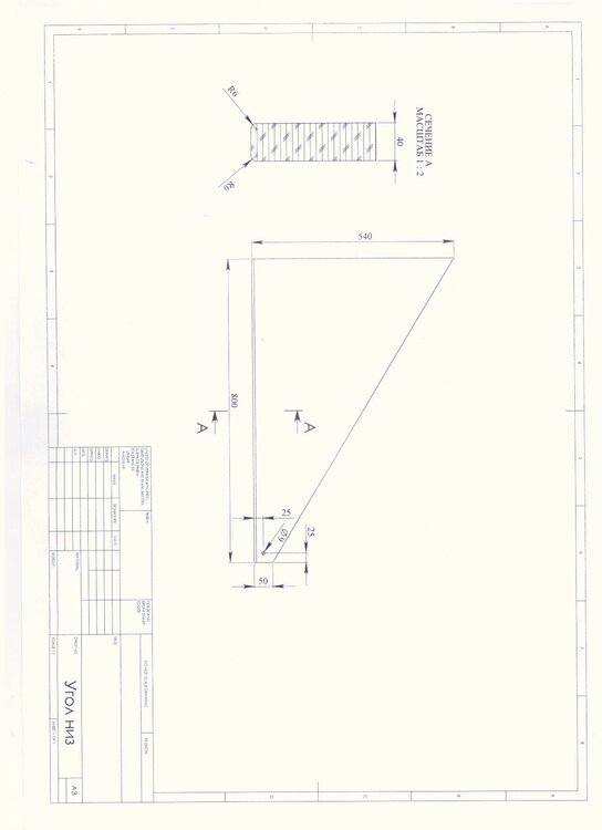
Vitalik_2008 Опубліковано: 19 квітня 2011 Поділитись Опубліковано: 19 квітня 2011 Нужны дубовые ступени согласно ниже приведенных чертежей. Рисунок № 1 - 9 шт. Рисунок № 2 - 2 шт. Рисунок № 3 - 2 шт. Рисунок № 4 - 2 шт. Посилання на коментар Поділитися на інших сайтах More sharing options...
Spec Опубліковано: 19 квітня 2011 Поділитись Опубліковано: 19 квітня 2011 Нужны дубовые ступени согласно ниже приведенных чертежей. Рисунок № 1 - 9 шт. Рисунок № 2 - 2 шт. Рисунок № 3 - 2 шт. Рисунок № 4 - 2 шт. Какое качество дерева и срок исполнения ? Посилання на коментар Поділитися на інших сайтах More sharing options...
Vitalik_2008 Опубліковано: 19 квітня 2011 Автор Поділитись Опубліковано: 19 квітня 2011 В каком смысле кокого "качества дерево" Посилання на коментар Поділитися на інших сайтах More sharing options...
Spec Опубліковано: 20 квітня 2011 Поділитись Опубліковано: 20 квітня 2011 В каком смысле кокого "качества дерево" Распил - радиал \тангенциал или смешанный ,заболонь,сучки и т.д. Посилання на коментар Поділитися на інших сайтах More sharing options...
natu-1 Опубліковано: 20 квітня 2011 Поділитись Опубліковано: 20 квітня 2011 Распил - радиал \тангенциал или смешанный ,заболонь,сучки и т.д. Валит... гы.. Посилання на коментар Поділитися на інших сайтах More sharing options...
Татьяна5 Опубліковано: 20 квітня 2011 Поділитись Опубліковано: 20 квітня 2011 В каком смысле кокого "качества дерево" скорее всего, Вам нужны цельноламельные Посилання на коментар Поділитися на інших сайтах More sharing options...
Spec Опубліковано: 21 квітня 2011 Поділитись Опубліковано: 21 квітня 2011 скорее всего, Вам нужны цельноламельные Того же мнения. Посилання на коментар Поділитися на інших сайтах More sharing options...
Рекомендовані повідомлення
Створіть акаунт або увійдіть у нього для коментування
Ви маєте бути користувачем, щоб залишити коментар
Створити акаунт
Зареєструйтеся для отримання акаунта. Це просто!
Зареєструвати акаунтУвійти
Вже зареєстровані? Увійдіть тут.
Увійти зараз