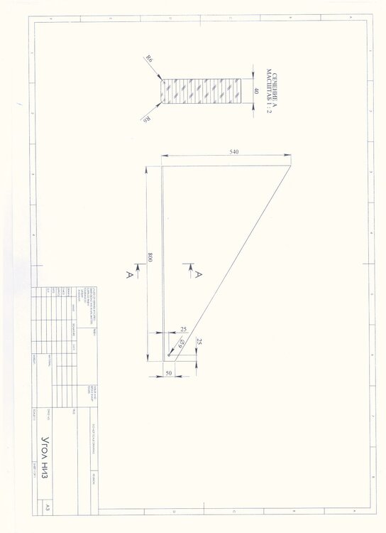
Vitalik_2008 Опубліковано: 19 квітня 2011 Поділитись Опубліковано: 19 квітня 2011 Кто может сделать дубовые ступени по чертежам Рисунок № 1 - 9 шт. Рисунок № 2 - 2 шт. Рисунок № 3 - 2 шт. Рисунок № 4 - 2 шт. Посилання на коментар Поділитися на інших сайтах More sharing options...
Татьяна5 Опубліковано: 19 квітня 2011 Поділитись Опубліковано: 19 квітня 2011 фирма К*лен, забежные делать будут 1 месяц, прямые всегда есть в наличии 1 Посилання на коментар Поділитися на інших сайтах More sharing options...
Андрей столяр Опубліковано: 20 квітня 2011 Поділитись Опубліковано: 20 квітня 2011 Кто может сделать дубовые ступени по чертежам Рисунок № 1 - 9 шт. Рисунок № 2 - 2 шт. Рисунок № 3 - 2 шт. Рисунок № 4 - 2 шт. Можем выполнить. Если интересует качество, обращайтесь. Посилання на коментар Поділитися на інших сайтах More sharing options...
Vitalik_2008 Опубліковано: 20 квітня 2011 Автор Поділитись Опубліковано: 20 квітня 2011 Можем выполнить. Если интересует качество, обращайтесь. Интересует, по этому и написал и чертежи дал а некто конкретно сказать не может сколько стоит, срок испольнения. Огромное спасибо Татьяне5 за наводку на фирму К*лен, посчитали, не задвая глупых вопросов, предложили разные варианты. Посилання на коментар Поділитися на інших сайтах More sharing options...
Андрей столяр Опубліковано: 21 квітня 2011 Поділитись Опубліковано: 21 квітня 2011 Интересует, по этому и написал и чертежи дал а некто конкретно сказать не может сколько стоит, срок испольнения. Огромное спасибо Татьяне5 за наводку на фирму К*лен, посчитали, не задвая глупых вопросов, предложили разные варианты. Скорее всего это связано с тем что масса подобных тем поднимается, и тут же замолкает. Т.е. создатель темы теряет к ней интерес, и как ответная реакция, народ смотрит, живая тема или нет и только потом начинает реагировать Мое ИМХО! С уважением, Андрей. Посилання на коментар Поділитися на інших сайтах More sharing options...
Spec Опубліковано: 21 квітня 2011 Поділитись Опубліковано: 21 квітня 2011 Интересует, по этому и написал и чертежи дал а некто конкретно сказать не может сколько стоит, срок испольнения. Огромное спасибо Татьяне5 за наводку на фирму К*лен, посчитали, не задвая глупых вопросов, предложили разные варианты. А меня забыли... Я предложил в личку конкретную цену за найлучший вариант ,но может быть такой и не нужен, а нужны более дешевые ступени. Посилання на коментар Поділитися на інших сайтах More sharing options...
Vitalik_2008 Опубліковано: 22 квітня 2011 Автор Поділитись Опубліковано: 22 квітня 2011 А меня забыли... Я предложил в личку конкретную цену за найлучший вариант ,но может быть такой и не нужен, а нужны более дешевые ступени. Валера ВАс не забыл, Спасибо, смотрите личку. У вас найлучшая цена. Посилання на коментар Поділитися на інших сайтах More sharing options...
Рекомендовані повідомлення
Створіть акаунт або увійдіть у нього для коментування
Ви маєте бути користувачем, щоб залишити коментар
Створити акаунт
Зареєструйтеся для отримання акаунта. Це просто!
Зареєструвати акаунтУвійти
Вже зареєстровані? Увійдіть тут.
Увійти зараз