Перейти до публікації
Пошук в
  • Додатково...
Шукати результати, які містять...
Шукати результати в...

Фундаментные работы, Ирпень

Odin

Рекомендовані повідомлення

Есть помещение, которое мы хотим реконструировать.

Нужны следующие работы на первый этап:

1. Укрепление некоторой части существующего фундамента.

2. Земляные работы, по подготовке котлована и заливка нового фундамента, рядом со старым.

 

Есть чертежи конструктора по фундаменту, так же, он будет привлекаться для консультации на основные виды работ.

 

Что нужно:

1.По предоставленым чертежам, хотелось бы увидеть готовую смету по необходимым работам и материалам.

2.Возможно, что-то еще с нашей стороны, необходимо предоставить для полной оценки работ и материалов, и начала работы?

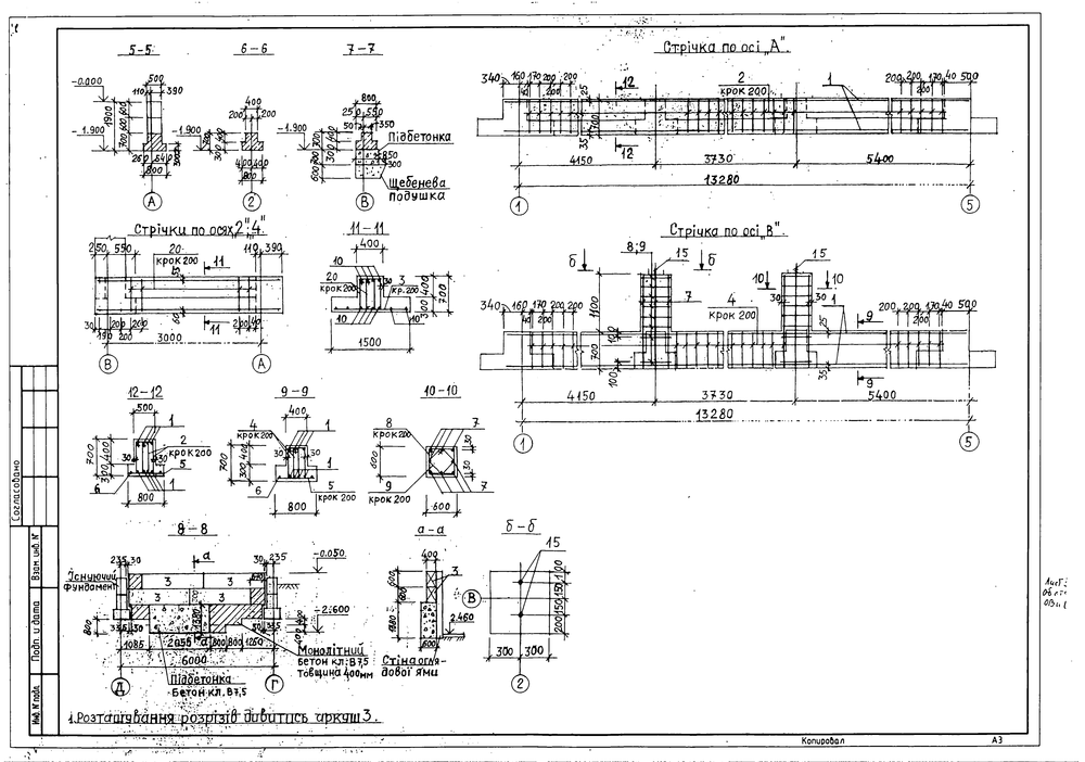
A3small.pdf

PojasnitZapiska small.pdf

  • Лайк 1
Посилання на коментар
Поділитися на інших сайтах

Уважаемые подрядчики, у кого не открылся PDF документ, прошу ознакомится с чертежами, я их преобразовал в картинки. В чертежах, есть расход по материалам, я расчитываю что они будут закупаться подрядчиком, после согласования и утверждения с нашей стороны. Так же очень прошу, высылать не прайс по работам, а хотя-бы примерную смету. Ведь я не строитель и могу пропустить какой-то этап работ, и не посчитать это в стоимости, либо промахнуться с ценами на материалы, и что-бы между нами не было недоразумений, прошу всетаки высылать первоночальную смету работ.

Я согласен, что смета, потом будет еще уточняться по месту, надеюсь что в пределах 10-20%.

Спасибо.

A3Page1.thumb.gif.177df3dc51e704993097d2d8f2c3c153.gif

A3Page2.thumb.gif.01c94887b666c354da3309f1b8e871a8.gif

A3Page3.thumb.gif.d750308e4ed973e30567bf6149eda625.gif

A3Page4.thumb.gif.c176ff3f5677207f06ff13dc8b9e7908.gif

A3Page5.thumb.gif.2b8bcfaa3875ec87244f128ea71385ae.gif

Посилання на коментар
Поділитися на інших сайтах

Вот, пояснительная записка конструктора, где он посчитал, примерный обьем земляных работ и расход бетона. Я правда боюсь, что тут не все учтено, по этому прошу рассматривать это как рекоммендацию, и просто помощь для предварительного расчета сметы.

Спасибо

PojasnitZapiska-1.thumb.gif.425597ed7133f5983df976c294043364.gif

PojasnitZapiska-2.thumb.gif.d3d0c4579d882292c31c6ead41b4b847.gif

PojasnitZapiska-3.thumb.gif.4874402606c3a0d793a478c8a947d778.gif

PojasnitZapiska-4.thumb.gif.4cd05a1f631f9c97860d2f2d0cc8b26d.gif

Посилання на коментар
Поділитися на інших сайтах

Створіть акаунт або увійдіть у нього для коментування

Ви маєте бути користувачем, щоб залишити коментар

Створити акаунт

Зареєструйтеся для отримання акаунта. Це просто!

Зареєструвати акаунт

Увійти

Вже зареєстровані? Увійдіть тут.

Увійти зараз
×
×
  • Створити...